Проект бани 3х3 из бруса. Особенности бани 3х3
Проект бани 3х3 из бруса. Особенности бани 3х3
Баня 3х3 м это небольшая конструкция подходящая для дачи или садового домика. Разместить в такой, можно 2-3 человека одновременно. Строят обычно одноэтажную, но можно выбрать проект с открытой верандой и мансардой. В такой площади хватит для небольшой комнаты отдыха на втором этаже, а на веранде можно благоустроить место под чаепитие.
В основном выбор падает на небольшую баню в двух ситуациях:
- Недостаточно денег на строительство большой.
- Участок под застройку слишком мал по площади.
Одноэтажная баня

Баня 3х3 в один этаж может стать хорошим местом для отдыха небольшой семьи.
Одноэтажная конструкция 3х3 имеет максимальную площадь в 8-8,5 м². Разделяют на предбанник в 2-3 м², парилку 4-5 м², душевую 2м². Предбанник совмещают с местом для отдыха. Несмотря на небольшие размеры здесь помещается небольшой стол и пара лавочек для отдыха. Столик можно сделать своими руками, складной, тогда место будет сэкономлено. И во время растопки или уборке можно максимально освободить место в предбаннике.
Баня с мансардой
Баня с мансардой 3х3 имеет максимальную площадь 14–15 м². Причем второй этаж в 6–7 м² подходит под комнату отдыха. Не редко такие бани с мансардой строят на дачных участках, когда второй этаж используется как гостевая комната или место для детской комнаты. Можно построить не утепленную мансарду, тогда ее используют как место для хранения веников, хоз. инструментов и т. д.
Для строительства бани 3х3 под круглогодичное использование нужно строить утепленную конструкцию, для дачи можно каркасный вариант с 1-м слоем утеплителя.
Квадратная форма бани делает постройку удобной при размещении и выборе места на участке. Из-за небольшой формы можно установить пристроив к дому или отдельно стоящую.
Планировки бань 3 н. Проект бани 3 на 3: плюсы и минусы
Современные банные постройки включают в себя несколько помещений, хотя раньше достаточно было и одного. Отдельными комнатами могут быть: моечная, душевая, бассейн, предбанник, бильярдная зона, раздевалка, тамбур и т. д. Однако на маленькой площади реализовать все идеи сложно, поэтому следует все хорошо продумать и выбрать самые важные аспекты. Рассмотрим преимущества и недостатки маленьких построек.
| Плюсы | Минусы |
| Экономия на строительных материалах как для внутренней отделки, так и для возведения фундамента; | Баня рассчитана минимум на 2-3 человека одновременно; |
| Тратится меньше времени на работы по возведению бани; | Можно возвести только одноэтажную конструкцию; |
| Площади хватит даже на организацию небольшой комнаты для отдыха; | Может потребоваться дополнительное утепление стен, если баня стоит отдельно от жилого дома и не является пристройкой. |
| При желании можно построить веранду или террасу для чаепитий; | |
| Подходит для маленьких по площади дачных участков; | |
| Для обогрева бани потребуется самое простое и бюджетное оборудование. |
Обычно для внутренней отделки бани 3 на 3 используется липа, кедр или осина. Возводят постройку из профильного бруса, бревен, вагонки и срубов, а также керамзита, кирпича и массивных блоков. Однако считается, что объекты из бруса наиболее качественные и не подвержены усадки со временем. Для визуального расширения пространства прибегают к строительству небольшой веранды. Увеличив таким образом полезную площадь, можно организовать себе дополнительное место для отдыха.
Баня с выходом на мини-веранду
Бани могут разного типа:
- Постройки, которые прогреваются за счет сухого пара. При этом температура может достигать от 60 до 120 градусов. Однако помещения отличаются пониженной влажностью – до 25%;
- Сырые банные помещения с температурой до 60 градусов и высоким уровнем влажности;
- Водяные бани на горячей воде.
Пример внутренней планировки
Сегодня встречаются римские, ирландские, русские, финские бани, офуро и хаммамы. Рассмотрим каждый вид отдельно:
- Русские – самый распространенный тип банных построек, подразумевающий наличие предбанника, моечной и парной с большой печью;
- Ирландские – бани из 5 комнат, которые соединены друг с другом общим коридором посередине;
- Римские – включают 5 отдельных помещений, соединенных смежными стенами: предбанник, теплую, жаркую и парную комнату, а также разгрузочное помещение с более низкой температурой;
- Финские – это традиционные сауны. Состоят из одной комнаты с низкой влажностью и горячим паром;
- Хаммам – турецкая водяная баня, подходит для людей, не любящих слишком высокие температуры. Внутренняя планировка включает бассейн с горячей водой и еще несколько емкостей с более прохладной;
- Офуро – или японские бани в виде бочки с горячей водой и травяными отварами.
Территорию вокруг бани на участке можно оформить различным способом: посадить красивую живую изгородь, кустарники, выложить альпинарий, альпийскую горку или цветник. Строить банный дом не рекомендуется близко с сараем или гаражом, чтобы избежать возгорания.
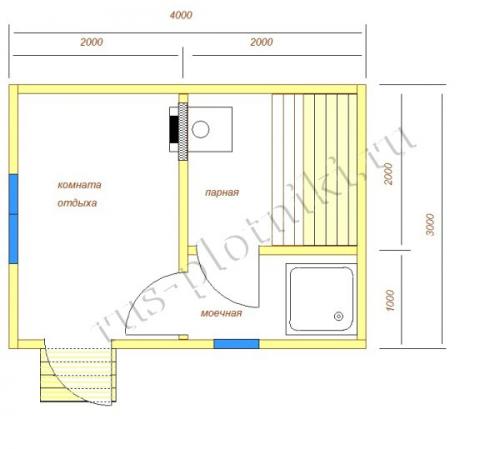
Баня 3 на 3 с предбанником. Раздельная планировка
Этот вариант наиболее удобен. Реализовать его на небольшой площади можно. Помывочную делают совсем небольшой или расширяют за счет зоны отдыха. Более просторное помещение понадобится, если это дача для большой семьи или дом, в котором живут круглый год. В этих случаях необходимо больше мест для хранения, а в помывочной можно дополнительно обустроить летний душ или место для стирки.
На заметку!
Для одного человека достаточно одного квадратного метра площади. Меньший размер комнаты нежелателен.
Простой, но практичный вариант – обустройство проходной помывочной и расположение комнат друг за другом. Сначала предбанник с минимальной температурой, затем зона для мытья, которую не нужно дополнительно обогревать, а после парная с топкой. Часть печи при этом может быть размещена во второй комнате, что позволит полностью отказаться от дополнительного прогрева зимой. Подача горячей воды из котла также будет удобной в этом случае. Появится возможность провести сплошной трубопровод через все здание.
Другой вариант – выделение помывочной параллельно с парной. В этом случае важно изолировать холодные наружные стены, чтобы не потребовалось дополнительное отапливание помещения. Использование печи и горячего трубопровода также возможно. Недостаток такой планировки в том, что вход в парную никак не отделен от зоны отдыха. При открывании двери сюда попадет не только горячий воздух, но и влажный пар. Поэтому важно для отделки и обстановки выбирать устойчивые, к таким негативным факторам воздействия, материалы. Однако можно перенести в ход в зону помывочной, сделав ее проходной. В этом случае важно изолировать стену прилегания, чтобы предбанник прогревался не слишком сильно, а парная, наоборот, не выстужалась раньше времени.
При раздельном размещении каждой зоны пространство буквально «съедают» двери и перегородки, а также углы, которые сложно использовать в полной мере. Поэтому можно предусмотреть не классическую прямоугольную форму комнат, а скошенные стены по диагонали. Помывочную треугольной формы располагают в дальнем углу, чтобы туда не попадал холодный воздух от входа в баню. У парной скошенной становится стык двух стен. При этом один угол сохраняют, чтобы он надежно защищал зону от холодного воздуха из входной двери. Это позволяет увеличить активную площадь как парилки, так и зоны отдыха. Много интересных идей планировок бани 3х3, где мойка и парилка обустроены отдельно, можно найти на фото. Такой вариант очень удобен тем, кто постоянно проживает на участке и часто пользуется данной постройкой.
Сколько нужно бруса на баню 3 н. Производим правильный расчет самостоятельно
Прежде чем определиться, сколько бруса нужно на баню 3 на 4, следует более детально ознакомиться с конструкционными особенностями самой постройки, которая чаще всего обладает габаритами 3 на 4, 3 на 5 и 3 на 6. А связано это с тем, что количество бруса будет зависеть от числа помещений, высоты и этажности бани. В данном вопросе достаточно проблематично выделить какие-либо общие рекомендации и правила, однако в любом случае, нужно будет провести проектный расчет, в который будет входить длина всех перегородок и стен конструкции, а также ее высота. На основе полученных данных можно будет более точно определиться с размерами самого бруса (100х100 либо 150х150) и его количеством.
Вторым важным нюансом, который обязательно следует учитывать при выполнении расчета нужного количества бруса, является его размер. Стандартной является длина в 6 метров, однако сечение материала в подобном случае может иметь различные вариации: 100 на 100 мм, 100 на 150 мм, 100 на 200 мм, 150 на 150 мм либо 150 на 200 мм . Максимальным показателем, как правило, становится сечение 200х200 мм.
Используя показатели протяженности перегородок и стен, можно самостоятельно выполнить расчет бруса, требуемого для создания одного венца (в виду имеется один ряд постройки, выполненный по ее периметру, при этом в учет берутся и перегородки). Далее можно будет перейти к подсчету венцов, определить количество которых позволит обыкновенное деление на высоту бруса высоты всей постройки.
Используя эти цифры, можно определить нужное количество материала в штуках. Это даст возможность избежать возникновения лишнего расхода брусьев, а значит, и получить дополнительную экономию при построении бани.
Каких бы размеров ни планировалась баня (3х4, 4х5, 4х4, 6х6 и т.п.), если в процессе ее возведения был использован брус, тогда в конечном результате можно будет получить множество преимуществ:
- Длительные эксплуатационные сроки конструкции.
- Отличные тепло- и звукоизоляционные показатели.
- Неповторимый микроклимат внутри самого строения.
- Эстетичный и самобытный внешний облик бани.
- Высокие показатели устойчивости к разнообразным внешним воздействиям.
- Возможность выполнения монтажных работ собственными силами, без привлечения при этом профессиональных мастеров и дорогостоящей спецтехники.
- Доступность материала и минимальный его расход в процессе использования (однако второе достигается только при условии правильно проведенного расчета бруса).
Соблюдая все предложенные выше рекомендации, можно без особых усилий выполнить все необходимые расчеты.
Баня 3 на 3 планировка внутри. 3 на 4
Чем дальше — тем веселее. Планировки бани 3 на 4 внутри, конечно, не могут похвастаться такой вариативностью, как у решений с общей квадратурой полезной площади, превышающих 50 квадратных метров, но, тем не менее, позволяют грамотно распределить все необходимые функциональные зоны с единственно верной целью — сделать использование банного помещения действительно приятным и запоминающимся.
Разумеется, на общей площади в 12 квадратных метров трудно разместиться большой компании. Поэтому при размещении тех или иных зон следует учитывать наиболее вероятный факт: такой небольшой баней, скорее всего, будет пользоваться семья из 2-3 человек либо дружеская компания на столько же человек. Все, что свыше, так или иначе, но будет немного снижать уровень комфорта. Взглянем на варианты внутренней планировки бани 3 на 4 с объединенными мойкой и парилкой.




Если вы используете печь-каменку, то логично разместить ее между парной и предбанником, чтобы распространить тепло по всей площади постройки. К тому же, вынос топочной части в предбанник позволяет вам увеличивать температуру пара, даже не заходя в парную и не растрачивая, тем самым, тепло, которое так или иначе, но выходит через открытую дверь.
Особое внимание следует уделить оформлению парной:
- не располагайте верхний лежак чересчур высоко — есть риск, что человек будет ударяться головой о потолок, когда будет слазить;
- при обустройстве лежаков учитывайте, сколько человек будет регулярно пользоваться баней;
- не располагайте лежаки чересчур близко от печи в своем стремлении сэкономить место — это не только не приносит удовольствие, но даже опасно для жизни
Вариант планировки 3х4 с мойкой и парилкой отдельно
Если проявить смекалку и некоторую инженерную хитрость, то можно осуществить внутреннюю планировку бани 3х4 с раздельным размещением мойки и парилки. В этом есть немало плюсов:
- принимать душ в прохладном помещении куда приятнее;
- возможность раздельного и одновременного использования моечной и парной;
- температура в парной всегда высокая, а пар — сухой и приятный.
Посмотрите на то, какие есть варианты планировки бани 3х4 именно с раздельной интеграцией двух зон.



