План бани 3х4 мойка и парилка отдельно. Планировка помещения
- План бани 3х4 мойка и парилка отдельно. Планировка помещения
- Проект бани для частного дома. ТОП-60 лучших проектов бани для дачи на 2023 год
- Баня с парилкой и помывочной. Баня с парилкой и мойкой в одном помещении: преимущества и недостатки
- Как отделить парилку от мойки. Какая польза от правильно собранной перегородки
- Проект бани с помывочной и парилкой. Размеры бани
- Баня с парилкой и комнатой отдыха. Баня с парилкой и мойкой: особенности планировки бань размером 4х6, 3х4, 5х5, 3х6, 3х5 с совмещённым или раздельным интерьером
- Планировка бани. Помещения в бане
- Баня с раздельной парилкой и моечной. Как спланировать баню с парилкой и мойкой
План бани 3х4 мойка и парилка отдельно. Планировка помещения
Поскольку 4х3 метра – это не так много, то на такой площади трудно разместить все необходимые комнаты. В первую очередь, с тоит обращать внимание на самые нужные помещения:
- Предбанник. Это помещение считается неотъемлемым атрибутом бани. Но в то же время в некоторых случаях этой комнатой жертвуют ради экономии пространства. Предназначение этого помещения состоит в том, что в нем оставляют все свои вещи, обувь и прочее. По сути, это комната, выполняющая функцию раздевалки.
- Моечная. Мойка – это комната, в которую нужно зайти перед тем, как переходить в парную. Обычно в ней располагается минимум мебели – только аккуратные скамейки. В некоторых случаях интерьер помещения дополняют еще и полки.
- Парная. Самым важным помещением в любой бане является парилка. Ведь именно тут и происходят все главные процессы. Часто внутри этой комнаты располагается печка или камин. Помимо них, в комнате должно быть еще и много других мелочей. Прежде всего, это лежаки для отдыха и полки.
На одной полке должен умещаться человек во весь рост. Это важно, иначе отдыхать будет некомфортно.
Чтобы понять, на что стоит ориентироваться при обустройстве бани, можно рассмотреть несколько интересных примеров планировки:
- Простой двухкомнатный вариант. Для экономии пространства можно остановить свой выбор на обычной бане, состоящей из двух помещений – парной и предбанника. План такой постройки очень прост. Пространство бани разделено на две основные комнаты: парилку и раздевалку. В предбаннике найдется место для хранения вещей. При необходимости там же можно расположить стол со стульями, чтобы отдыхать с компанией в холодное время года. На выходе из бани стоит обустроить террасу, куда можно будет вынести стулья летом. Что касается парилки, она для удобства разделена при помощи перегородки на парную и мойку. При таком раскладе внутри бани найдется место для всего необходимого и при этом не будет лишних деталей.
- С мансардой. Еще один вариант для небольшого участка – это постройка, дополненная мансардой. По сути, это неполноценный второй этаж. Поэтому дополнить мансардой обычную баню не настолько дорого, как кажется на первый взгляд. И в то же время обустройство мансарды очень выгодно для владельцев участка, поскольку не придется возиться с постоянным выносом мебели на террасу или во двор. Как правило, в случае, если баня дополнена мансардой, там располагается либо зона для отдыха, либо место для хранения вещей. Это очень выгодно еще и потому, что, когда место для посиделок находится отдельно, пар из основной комнаты туда не проникает и не повреждает мебель и отделочные материалы.
Проект бани для частного дома. ТОП-60 лучших проектов бани для дачи на 2023 год
Баня: планировка и разделение общей площади на зоны
Если раньше бани состояли только из одной комнаты, то современные варианты этих конструкций включают несколько. Сюда могут входить прачечная, раздевалка, зона отдыха, бассейн, бильярдная и т.д. Для того, чтобы в дальнейшем хозяину не пришлось прибегать к реконструкции и приспособлению постройки, необходимо еще на этапе проектирования сделать все важные отметки в чертежах. Особого внимания заслуживают следующие моменты:

Для удобства современные сауны включают несколько функциональных зон
- внутренняя планировка;
- система водоснабжения;
- электрические кабели;
- канализация и дренаж.
Примечание! Имея перед собой подробную схему, вы сможете значительно упростить и ускорить процесс выбора и расстановки мебели.
Разработка плана бани с учетом условий дачного участка
Чтобы создать идеальные условия для отдыха в бане, необходимо учесть некоторые нюансы, которые позволят избежать проблем при эксплуатации помещения. Желательно, чтобы зона строительства располагалась на суше с низким уровнем наличия грунтовых вод. Перед тем как приступить к разработке проекта, необходимо сразу исключить все участки, не соответствующие этому условию.

Проект сауны 5 х 7 метров с открытой террасой
Если на территории есть колодец, то расстояние между ним и баней должно быть не менее 5 м. Минимальное расстояние между парилкой и жилым домом — 8 м. Дальше от бани компостная яма и туалет расположены, тем лучше. Специалисты рекомендуют заходить с южной стороны. Зимой здесь образуется меньше сугробов, поэтому возможность перекрытия доступа к двери исключена. Лучше, если окна выходят на запад, что облегчит проникновение в комнату достаточного количества солнечного света.
Если на дачном участке есть водоем, то после постройки бани в 15-20 м от него можно использовать вместо бассейна. Кроме того, наличие реки или озера в непосредственной близости от объекта обеспечит систему водоснабжения.

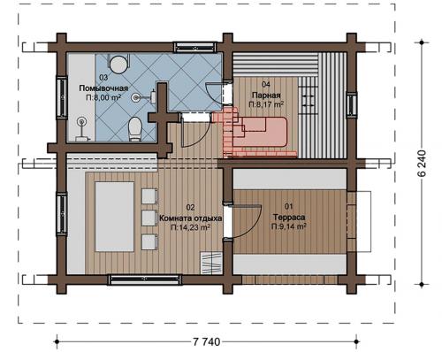
Размеры проекта сауны 7,74 х 6,24 метра
Для небольших участков (3-6 соток) подходят проекты санузлов 3 на 3, фото таких построек в изобилии на сайтах строительных компаний. Даже в таких компактных постройках парная остается основным помещением. Для организации этого помещения следует выделить максимально возможный объем пространства — примерно 8 м². Этого достаточно, чтобы установить 2-3 грядки (полочки) и поставить печь.
Остальные комнаты могут быть включены в планировку санузла 3х4м и более (по желанию). Конструкцию можно использовать по прямому назначению даже при отсутствии бильярдной или санузла. Баня не может существовать без турецкой бани. По этой причине разделение внутреннего пространства на функциональные зоны во многом зависит от масштабов проекта.

Сауны рекомендуется строить на расстоянии не менее 8 м от жилого дома
Если вам нужны дополнительные удобства, вы можете включить небольшую душевую или ванну в дизайн своей ванны размером 3 на 4 метра. После турецкой бани здесь можно смыть грязь и остыть. Типичные проекты характеризуются наличием комнаты отдыха, которая будет обслуживаться в перерывах между парными сеансами. Для его организации потребуется 4,5 м².
Пригодятся и другие помещения, например, гардеробная или тамбур. Они достаточно компактны, чтобы вместить бревенчатую сауну 5 на 5 вместе с основными помещениями.
Обратите внимание: размер купальной зоны на одного человека составляет 2 м².

Проект сауны 6х6 м со вторым мансардным этажом
Проектирование бани: основные помещения и удачные примеры планировок
Даже самый маленький проект не может состоять только из турецкой бани. Чтобы санузел нормально функционировал и условия его эксплуатации обеспечивали комфорт человеку, в планировку следует включить и другие помещения. Для этого внутреннее пространство здания разделено на небольшие комнаты, каждая из которых играет свою роль.
В конструкции бани 5 на 6 м (с учетом небольших размеров такой постройки) нет необходимости использовать несущие стены для разделения пространства на зоны. Достаточно будет легких деревянных перегородок. Они не нуждаются в закладке фундамента и не несут дополнительных нагрузок.

При разделении пространства вместо стен можно использовать стеклянные перегородки для экономии места
За счет разделения основного пространства на несколько секций можно будет эффективно и быстро отапливать парилку. В этом случае остальные помещения не будут отапливаться. Это преимущество особенно полезно для комнаты отдыха.
Гардеробная относится к категории необходимых помещений. Это помещение используется как входная дверь в ванную комнату, предотвращая попадание холодного уличного воздуха в парилку. Здесь можно хранить дрова или другое топливо. Гардеробная подходит для обустройства небольшой гардеробной (гардеробной). При правильной планировке можно легко перейти из этой комнаты в парилку, душевую и комнату отдыха.
Баня с парилкой и помывочной. Баня с парилкой и мойкой в одном помещении: преимущества и недостатки
Баня с объединенными мойкой и парилкой в настоящий момент встречается не так часто. Этот вариант выбирают преимущественно в том случае, если площадь участка не позволяет сделать два отдельных помещения.
Компактная баня с объединенными помещениями дает возможность сэкономить не только территорию, но и деньги. Стоимость подобной постройки будет значительно дешевле, чем цена аналогичной по размерам бани с отдельными парилкой и моечной.
Еще одним плюсом является то, что баню, где парная и моечная объединены, в зимнее время посещать значительно приятнее: она быстро нагревается и быстро проветривается. Летом же, наоборот, охладить моечную достаточно сложно.
Баня с объединенными мойкой и парилкой имеет существенные недостатки. Первый из них связан с тем, что при такой конструкции гораздо сложнее поддерживать в парной нужные условия. В частности, если кто-то в моечной помоется, то в помещении повысится уровень влажности, и в парной будет менее комфортно. Да и запах мыла или геля для душа также мешает созданию нужной атмосферы.
По этой причине придется сначала всем париться, а только потом мыться, в противном случае вы будете вынуждены терпеть высокую влажность.
Кроме того, мыться в нагретой парной невозможно, поэтому придется ждать, пока помещение остынет.
Очевидно, что баня с объединенными моечной и парной – это вариант для небольшой компании (до 4-х человек). Если вы собираетесь отдыхать в большем составе, то однозначно нужно разделять эти помещения.
Как уже говорилось, баня с парной и моечной в одной комнате менее комфортна, т. к. всем приходиться либо париться, либо мыться, в раздельных же помещениях нет необходимости подстраиваться под других.
Ниже представлены фото бани с парилкой и мойкой, объединенными в одном помещении:



Проект бани 3х3 с совмещенными парной и моечной
Баня 3 на 3 совсем небольшая, поэтому сделать раздельные парную и моечную здесь затруднительно.
Ниже представлен проект маленькой бани, состоящей всего из двух помещений: парной и моечной, комнаты отдыха.
Этот бюджетный вариант подойдет для небольшого участка. В такой бане поместится 2-3 человека, но не более.
Проект бани 3х4 с совмещенными парной и моечной
Данная баня чуть больше, но она также имеет всего два помещения. Вместимость бани 3 на 4 составляет 2-3 человека.
В этом проекте предусмотрены более просторные парная и моечная, предбанник же имеет небольшую площадь – всего 6 кв. м.

Как отделить парилку от мойки. Какая польза от правильно собранной перегородки
Другое дело, если банное строение построено на даче или за 20-30 м от основного жилья. В этом случае проблема оборудования перегородок в бане обстоит несколько сложнее.
Поэтому, чтобы определиться, как сделать перегородки в бане своими руками, стоит посчитать все варианты и выбрать правильный, который поможет и дрова сэкономить, и деревянное здание бани по возможности сохранить:
- Если размеры сауны и баньки небольшие, то внутри парной зачастую ставят съемную перегородку, отделяющую парилку от баков с запасом воды для мытья и шкафов с одеждой. После окончания банных процедур каркас перегородки в бане своими руками снимают, а небольшое пространство парной используют в качестве моечного отделения. Жара печки хватает, чтобы и в тепле помыться, и баню просушить основательно;
- Второй способ используется для классических деревянных бревенчатых бань размером 3х5 м и более. В данном варианте чаще всего используют каркасную или даже кирпичную перегородку с минимальным количеством теплоизоляции;
- Третий вариант предполагает глухую термоизоляцию перегородки, используется в брусовых, бревенчатых и кирпичных банях с двумя печками и бойлером для горячей воды.
Первый вариант используется довольно редко, чаще всего это бани небольших размеров, переделанные из деревянных бытовок. Чтобы поднять градус в парной и уменьшить потери тепла, перегородка в парной изготавливается своими руками в виде занавеса из полотна вспененного фольгированного полиэтилена или обычного брезента.
Последний вариант простенка с хорошими изолирующими свойствами считается наиболее надежным и простым в устройстве. Поэтому утепленная перегородка в бане из кирпича своими руками строится всегда, если по проекту парилка получается больших размеров, а полноценную печку – «ураган» поставить нет возможности. В этом случае совместную часть стены между мойкой и сауной следует строить из кирпича с обязательным утеплением поверхности со стороны сауны.
Источник: https://bani-iz-brusa.postroivsesam.info/stati/bani-s-parilkoy-i-moykoy-otdelno-plyusy-i-minusy
Проект бани с помывочной и парилкой. Размеры бани
Прежде, чем приступить к планировке бани, нужно определиться с размерами, которые зависят от площади участка. Рассмотрим самые распространённые варианты бань, разных размеров.
Баня 2 на 2 метра
Это самая маленькая баня, где пространство ограничено, и разместить тут можно самое необходимое: парилку и предбанник. Печку рекомендуется устраивать таким образом, чтобы её часть размещалась в парилке, вторая в предбаннике. Мойка в свою очередь займёт своё место в парилке. Если все правильно обустроить, то можно наслаждаться банными процедурами.
Баня 3 на 3 метра
В таком помещении, несмотря на её размеры, можно уже заняться планировкой. Если хочется простора, то моечная и парилка размещается в одном помещении, остальную площадь отводят под комнату отдыха. Если же хочется попариться или помыться с комфортом, то для парилки и моечной можно выделить по полтора метра, как в ширину, так и длину.
Баня 3 на 4 метра
Метраж помещения немного больше, чем у предыдущих и распорядиться ею нужно грамотно. В таком помещении уже легко можно обустроить моечную и парилку. Печку рекомендуется расположить таким образом, чтобы сама топка находилась в предбаннике. Тогда будет легче поддерживать температуру в парилке.
Баня 4 на 4 метра
В таком помещении моечная и парилка будут иметь большую площадь, и, соответственно, увеличится их функциональность. Размещение моечной и парной комнат уже возможно организовать раздельно.
Прежде, чем приступить к планировке бани, нужно определиться с размерами, которые зависят от площади участка.
Маленькая баня
Это самая маленькая баня, где пространство ограничено, и разместить тут можно самое необходимое: парилку и предбанник.
Печку рекомендуется устраивать таким образом, чтобы её часть размещалась в парилке, вторая в предбаннике. Мойка в свою очередь займёт своё место в парилке. Если все правильно обустроить, то можно наслаждаться банными процедурами.
Средняя баня
В таком помещении, несмотря на её размеры, можно уже заняться планировкой. Если хочется простора, то моечная и парилка размещается в одном помещении, остальную площадь отводят под комнату отдыха.
Если же хочется попариться или помыться с комфортом, то для парилки и моечной можно выделить по полтора метра, как в ширину, так и длину.
Большая баня
Метраж помещения немного больше, чем у предыдущих и распорядиться ею нужно грамотно.
В таком помещении уже легко можно обустроить моечную и парилку. Печку рекомендуется расположить таким образом, чтобы сама топка находилась в предбаннике. Тогда будет легче поддерживать температуру в парилке.
В таком помещении моечная и парилка будут иметь большую площадь, и, соответственно, увеличится их функциональность. Размещение моечной и парной комнат уже возможно организовать раздельно.
Источник: https://bani-iz-brusa.postroivsesam.info/stati/bani-s-parilkoy-i-moykoy-otdelno-plyusy-i-minusy
Баня с парилкой и комнатой отдыха. Баня с парилкой и мойкой: особенности планировки бань размером 4х6, 3х4, 5х5, 3х6, 3х5 с совмещённым или раздельным интерьером
Парилка и мойка являются основными помещениями в бане. Остальные помещения являются дополнительными, но не менее необходимыми, чем парилка и комната для охлаждающих процедур.
В большой бане легко разместить все эти помещения, а в небольшом пространстве хозяину часто приходится совмещать или делить все необходимые помещения на небольшие изолированные комнаты.

Необходимые комнаты в бане
Для полноценного и комфортного отдыха, каждая баня должна включать в себя следующие помещения:
- Парилку;
- Комнату для охлаждающих процедур;
- Туалетную комнату;
- Раздевалку;
- Комнату отдыха.

Парилка является помещением в котором обязательно должна быть печь и полки для того, чтобы можно было посидеть в парной. Комната для охлаждающих процедур должна быть оборудована душем или бочкой с холодной водой.
В этом помещении можно разместить бассейн. Туалетная комната должна быть оборудована унитазом. В этой комнате можно установить раковину. Раздевалка в бане необходима для хранения верхней одежды в то время, пока гости будут принимать банные процедуры.

Комната отдыха зачастую в небольших банях совмещается с раздевалкой и оборудуется столом и стулья или лавочками для сиденья.

Разнообразие проектов бани с парилкой
Любое строительство начинается с выбора проекта. В наши дни существует великое множество проектов бань с различными параметрами. Поэтому владельцу приусадебного участка остается только выбрать оптимальный исходя из личных предпочтений и возможностей.

Выбирая подходящий проект нужно учитывать функционал. Если банная постройка необходима только на летнее время, то можно выбрать самый простой проект бани с парной, моечной и комнатой отдыха.
- Баню для круглогодичного использования стоит оборудовать туалетной комнатой, раздевалкой — местом для верхней одежды.
- Кроме того существуют проекты бань с мансардой, где помещения для водных процедур оборудуются на первом этаже, а мансарда используется в качестве комнаты отдыха.
- А также, проекты бань с террасой, которая может быть использована как место для отдыха в теплое время года.

Терраса может быть застекленной. В этом случае, ее можно использовать для отдыха в зимнее время года. Бани с террасой способствуют экономии денежных средств на теплоизоляции и внутренней отделке.
Разграничение банного пространства на зоне зависит от целей использования бани:
- Если баня необходима для семейного пребывания, то парная и моечная должны быть просторными, а комната отдыха может быть совмещенной с раздевалкой;
- Если планируется использовать баню для отдыха в кругу друзей, то комнату отдыха следует сделать просторной, а парилку небольшой — для посещения нескольких человек одновременно. Комнату для банных процедур можно оборудовать только душем или небольшим бассейном и душем.

Важные нюансы при возведении бани
- Проектировать баню следует с учетом будущего ее использования.
- Составляя проект следует учесть климатические условия данной местности.
- Принять во внимание финансовые возможности, геологические особенности участка земли и его размер.
- Определить количество человек, которые будут посещать баню.
- В какое время года преимущественно будет использоваться банное помещение.
- Рядом с парилкой может находится душевая кабина.
- В парилке может стоять большая бочка с холодной водой для охлаждающих процедур.
- Парилка и моечная могут отделяться стеклянной перегородкой.

Учитывая все эти нюансы можно составить проект бани и рассчитать смету.

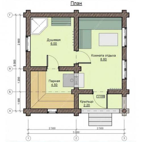
Правильная планировка бани с парилкой и мойкой
Комфортность пребывания в бане зависит от ее планировки. Например, предбанник защитит другие помещения от попадания в них холодного воздуха с улицы. Здесь можно сделать раздевалку, оборудовав ее крючками для одежды и лавочкой.

Как правило следующим помещением является комната отдыха, в которой размещается стол и стулья для того, чтобы можно было посидеть после банных процедур.

Далее располагается помещение для охлаждающих процедур и парная. По расположению этих помещений есть различные вариации.

Во-первых, мойка и парная могут быть полностью изолированы друг от друга, а могут совмещаться:

Во-вторых, комната для охлаждающих процедур может быть оборудована бассейном, душем, кадкой с холодной водой, лавочкой. В моечной можно установить унитаз для экономии пространства.

Совмещение парилки и мойки
Совмещение парной и моечной является вынужденной мерой, если для бани невозможно выделить большой участок земли. Как правило размер таких бань составляет от 9-ти до 16-ти квадратных метров.
Планировка бани. Помещения в бане
При планировке бани необходимо грамотно расположить все базовые помещения.
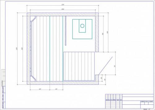
Парилка
Это сердце бани. Здесь размещается печка, а температура достигает самых высоких показателей. Задача для строителя — сконструировать ее таким образом, чтобы тепло удерживалось как можно дольше, а места хватало для основных банных процедур. Вот несколько рекомендаций по планировке парной:
- комната должна располагаться дальше всего от входной двери. Окна здесь не нужны вовсе;
- дверь лучше всего сделать узкой и невысокой, чтобы выходило как можно меньше пара;
- в парной нужны лавки и пространство, достаточное для размещения нескольких людей, чтобы исключить опасность обжечься об элементы печи или угли;
- расстояние от печки до деревянных элементов при этом должно быть не меньше 20 см;
- именно в этом помещении парятся вениками и ополаскиваются из тазов. Стоит предусмотреть место под хранение инвентаря;
- при планировании этого помещения следует заранее учесть, сколько человек в нем будет находиться одновременно. Рассчитывать нужно из соображения по 2 кв. м на человека.
Моечная
Относительно современное изобретение и совершенно необязательное, если планируется небольшая баня. Однако если есть желание, сюда можно провести водопровод и организовать полноценный душ.
Предбанник
При входе в основное помещение необходим буфер для удержания тепла. Обычно это предбанник, в котором можно оставить верхнюю одежду, обувь, инвентарь, дрова.
Зона отдыха или столовая
Это необязательное, но полезное помещение в случае, если планируется совмещать баню с чаепитием. Здесь можно разместить и большой стол, и посуду, и удобный диван. При наличии такой комнаты строение даже можно будет использовать для проживания.
Бассейн или купель
Приятно поплавать после парной или окунуться в ледяную воду. Эти элементы можно установить как в моечной или парной, так и выделить отдельную комнату под бассейн.
Таким образом, минимально в бане должны быть тамбур и парная, а по максимуму планировка ограничена только фантазией и возможностями.
Баня с раздельной парилкой и моечной. Как спланировать баню с парилкой и мойкой

В условиях ограниченной площади строительства всегда возникают несколько вопросов. Первый: целесообразно ли разделять домик 3х3 стенками или перегородками. На практике часто встречаются проекты без перегородок, когда мойка и парилка находятся в разных уголках домика. При желании можно оборудовать два отдельных помещения, разделив помывочную и парилку стеной. Оба варианта хороши и реализуемы в любых условиях, поэтому лучше рассмотреть оба:
- раздельное обустройство парилки и мойки;
- парилка и мойка вместе.
Раздельное обустройство парилки и мойки
При планировке бани 3х3 мойка и парилка могут находиться вместе. Перед строительством надо понять, как вы будете использовать тамбур или предбанник. Для обустройства в нём небольшого помещения понадобится сократить общую площадь парилки и мойки. Есть выход из положения: разделить тамбур и главное помещение бани на две равные части. Другое дело, если вы хотите использовать тамбур в качестве прихожки, где можно оставить одежду и вещи. В этом случае на него выделяют минимальное количество площади, стараясь оставить больше места на моечную и парную, совмещённые между собой.

При обустройстве маленьких парных надо обращать особое внимание на конструкцию и мощность печки. Небольшое помещение можно легко перегреть. Во избежание перегрева устанавливайте печь с регулятором мощности. При совмещении парилки с мойкой высокой влажности избежать не удастся, равно как и высоких температур (70, 90С и выше). Мыться при таких температурах будет некомфортно, но в условиях маленькой площади трудно оборудовать полноценную баню с кирпичной печью или каменным обкладом. Если есть возможность, увеличьте размеры парильни так, чтобы сделать в ней кирпичную кладку для маленькой печки. Иногда владельцы маленьких банных домиков приспосабливаются к «управлению» печкой. Им удаётся поддерживать в помещении температуру, пригодную для того, чтобы полноценно помыться после парилки.
Парилка и мойка вместе
При раздельном оформлении мойки и парилки придётся немного расширить исходный план. Его надо сделать больше всего на метр, и тогда вы сможете разделить моечную и паровую небольшой перегородкой. На пространство моечной будет выделен всего метр, без учёта толщины стен. Вы получите парилку приличной площади, если сократите комнату отдыха или уберёте её совсем, оставив маленький предбанник.
Важно!
Дверь, ведущая из парилки во двор, всегда должна открываться наружу. Это позволит легко выбить её при перегреве.