Планировка бани 3х5 м. Какой проект выбрать
- Планировка бани 3х5 м. Какой проект выбрать
- Проект бани 3х4. Ассортимент проектов
- Баня 3х5. Планировка бани 5х3
- Проект домашней бани. Разработка плана бани с учетом условий дачного участка
- Планировка бани 4 н. Основные этапы строительства бани 4 х 5
- Проект бани 3 на 5 из блоков. Особенности бани 5х3
- Проект бани 3 на 5 из шлакоблоков. МАТЕРИАЛ ШЛАКОБЛОКОВ
- Проект бани из блоков 3х4. План с верандой или террасой
Планировка бани 3х5 м. Какой проект выбрать
В эру технологий и интернета каждый человек может подобрать проект, который подойдет ему идеально. В большинстве случаев они разнятся лишь внутренней планировкой. Первым вопросом, который стоит решить при выборе плана, является совмещенное или раздельное размещение парилки и мойки. Рассмотрим оба варианта.
На рисунке выше можно увидеть планировку бани размером 3 на 5 с совместной парилкой и мойкой. Общая площадь застройки составляет 15 м/2, размер парной и предбанника составляет 9 и 6 кв. м.
В парилке присутствуют:
- душевая зона с водоотводом;
- печь с баком для горячей воды;
- двухъярусный полок.
По желанию можно добавить переносные лавки. Предбанник (он же комната отдыха) вмещает в себя комплект из стола и скамей. В него же входит топка печи.
В пользу объединения парилки и моечной говорят два факта:
- при небольшом объеме пространства температура и влажность меняются слишком резко, что негативно сказывается на самочувствии людей;
- поры на коже раскрываются под воздействием высокой температуры, в парилке и вновь закрываются от низкой температуры моечной; каждый следующий заход вынуждает вновь распаривать кожу, при объединении этих двух комнат остывания кожи не происходит.
Теперь рассмотрим вариант с отдельно расположенной мойкой и парилкой. Предбанник занимает 9 кв. м, парилка составляет 4 кв. м, а мойка занимает 2 квадратных метра. Размер у этого проекта такой же, как и у предыдущего (3×5 м), но комнат здесь уже три. По желанию оба варианта можно модифицировать, сдвинув стены в ту или иную сторону.
Проект бани 3х4. Ассортимент проектов
«Свой» проект бани 3 на 4 найти не слишком трудно, если заранее четко сформулировать все требования к будущей постройке. Все предлагающиеся схемы имеют типичные отличительные черты.
Простейший вариант из двух частей

«Фишка» этого плана — отсутствие помывочной, благодаря этому решению парная может похвастаться большой площадью, предбанник же получает место, в котором помимо раздевалки и места для отдыха вполне возможно обустроить и приемлемую душевую. Однако такая функциональная нагрузка на одну комнату радует не всех. Зато этот проект подойдет для бань меньшей площади. Использую пропорции, легко высчитать нужный коэффициент и получить схему для строения 2 на 4 метра.
Постройка, имеющая террасу
Это более удобный проект для бани, так как здесь в наличии все 3 необходимые помещения и бонус — терраса. Организация входа в парную через помывочную найдет немало ярых противников. Неудовольствие вызовет скромная площадь комнаты отдыха, так как она будет исполнять только роль места для переодевания. Однако в теплое время года необходимую комнату для релаксации полноценно заменит терраса достаточной площади.
Строение — золотой стандарт

В этом случае из комнаты отдыха можно попасть прямо по назначению — в моечную либо парную. Местом для переодевания может служить самое большое помещение, однако есть другой вариант, если «красть» метры у него не хочется. Установив в помывочной душевую кабинку, можно выделить здесь закуток для переодевания, обеспечив этим комфортное пребывание в относительно просторной комнате для «отдохновения».
Проект бани 3 на 4 — тема, сильно ограниченная метражом, однако и в этом случае найти оптимальный вариант возможно. Науйдет немного времени, а радовать даже скромный банный комплекс будет хозяев так же сильно, как и его большие «собратья».
В этом
Была ли статья полезна?
Мы хотим стать лучше. Спасибо за мнение!
Баня 3х5. Планировка бани 5х3
В банном помещении, вне зависимости от того, какого размера оно будет, должны быть определенные комнаты. Без них баня не будет полноценной.
Первое помещение, в которое заходит человек, является предбанником. Это своеобразная прихожая, где можно снять одежду. В ее интерьере обязательно должен быть удобный шкафчик для хранения вещей на то время, пока человек будет париться. Многие устанавливают здесь еще 1 ящик, в котором хранится топливо, то есть, дрова либо уголь.
Далее идет комната отдыха. Даже небольшие проекты бань должны включать в себя это помещение. Здесь, как правило, расположен столик и несколько удобных стульев для чаепития и отдыха с друзьями.
Следующей важной комнатой является мойка, или душевая. Здесь будут совершаться охлаждающие процедуры после того, как человек распарит тело
Интерьер данного помещения очень прост. Здесь должно быть несколько лавочек, душ и емкость с водой. В современных банях нередко вместо мойки просто устанавливают душевую кабину. Если речь именно о таком типе бани, то можно дополнить это помещение и стиральной машинкой, чтобы сэкономить место в доме.
Самым главным помещением в бане является парная. Именно ради ее посещения люди и строят подобные здания. Здесь, по традиции, должна быть установлена печь, оборудованы деревянные лавочки. В парилке главное – это горячий воздух. Здесь важен не столько внутренний интерьер, сколько правильная теплоизоляция. Нельзя забывать о том, что это помещение не только очень теплое, но и влажное. По этой причине количество электроприборов в данной комнате должно быть сведено к минимуму. Допускается пара лампочек в специальных плафонах, а также печка, работающая от электросети. Интерьер парной лучше сделать в простом деревенском стиле. Здесь ничего особенно придумывать не нужно, достаточно просто обработать стены деревом. Если баня была построена из деревянных бревен, их можно просто обработать специальными растворами, чтобы они лучше переносили высокие температуры и влажность.
Это основные комнаты, которые должны быть в каждой бане, даже самой компактной. Кроме того, иногда к бане пристраивают удобную террасу для чаепития на свежем воздухе. Встречаются и более продвинутые варианты с бассейнами, но такие строения далеко не каждому по карману. Если парной будет пользоваться небольшая семья, нет смысла выстраивать огромное помещение и тратить на это кучу денег. Даже в компактной бане проекта 3 на 5 из пеноблоков либо другого материала можно прекрасно отдохнуть и поправить здоровье.
Проект домашней бани. Разработка плана бани с учетом условий дачного участка
Чтобы создать идеальные условия для отдыха в бане, необходимо учесть некоторые нюансы, которые позволят избежать проблем при эксплуатации помещения. Желательно, чтобы зона строительства располагалась на суше с низким уровнем наличия грунтовых вод. Перед тем как приступить к разработке проекта, необходимо сразу исключить все участки, не соответствующие этому условию.

Проект сауны 5 х 7 метров с открытой террасой
Если на территории есть колодец, то расстояние между ним и баней должно быть не менее 5 м. Минимальное расстояние между парилкой и жилым домом — 8 м. Дальше от бани компостная яма и туалет расположены, тем лучше. Специалисты рекомендуют заходить с южной стороны. Зимой здесь образуется меньше сугробов, поэтому возможность перекрытия доступа к двери исключена. Лучше, если окна выходят на запад, что облегчит проникновение в комнату достаточного количества солнечного света.
Если на дачном участке есть водоем, то после постройки бани в 15-20 м от него можно использовать вместо бассейна. Кроме того, наличие реки или озера в непосредственной близости от объекта обеспечит систему водоснабжения.

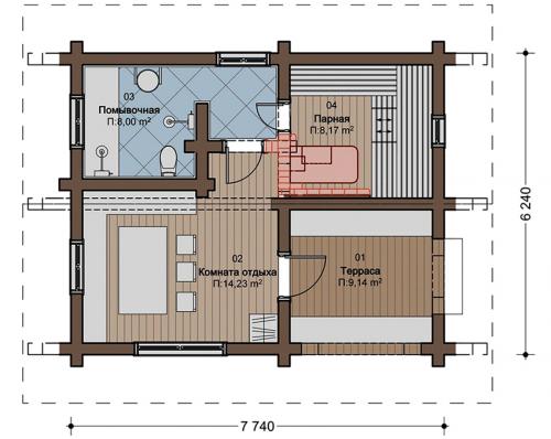
Размеры проекта сауны 7,74 х 6,24 метра
Для небольших участков (3-6 соток) подходят проекты санузлов 3 на 3, фото таких построек в изобилии на сайтах строительных компаний. Даже в таких компактных постройках парная остается основным помещением. Для организации этого помещения следует выделить максимально возможный объем пространства — примерно 8 м². Этого достаточно, чтобы установить 2-3 грядки (полочки) и поставить печь.
Остальные комнаты могут быть включены в планировку санузла 3х4м и более (по желанию). Конструкцию можно использовать по прямому назначению даже при отсутствии бильярдной или санузла. Баня не может существовать без турецкой бани. По этой причине разделение внутреннего пространства на функциональные зоны во многом зависит от масштабов проекта.

Сауны рекомендуется строить на расстоянии не менее 8 м от жилого дома
Если вам нужны дополнительные удобства, вы можете включить небольшую душевую или ванну в дизайн своей ванны размером 3 на 4 метра. После турецкой бани здесь можно смыть грязь и остыть. Типичные проекты характеризуются наличием комнаты отдыха, которая будет обслуживаться в перерывах между парными сеансами. Для его организации потребуется 4,5 м².
Пригодятся и другие помещения, например, гардеробная или тамбур. Они достаточно компактны, чтобы вместить бревенчатую сауну 5 на 5 вместе с основными помещениями.
Обратите внимание: размер купальной зоны на одного человека составляет 2 м².

Планировка бани 4 н. Основные этапы строительства бани 4 х 5
От предков к нам дошло немало советов по возведению конструкций из дерева, которые помогают сохранить материал на долгие годы. Появление новых стройматериалов внесло дополнительные коррективы и еще более упростило жизнь строителя. Поговорим о возведении бани подробнее. Если расписывать процесс пошагово, то можно без проблем самостоятельно спроектировать и построить деревянную баню:
- Выберите точное место для строительства. Желательно, чтобы оконные проемы смотрели на запад. Так в помещение будет попадать больше света, а в вечернее время мягкие солнечные лучи добавят уюта банным посиделкам.
- Все проекты бань в обязательном порядке предусматривают наличие фундамента. Он должен быть не менее полуметра в высоту и 30 см в ширину. Есть вариант поставить строение на сваи.
- Отступив около 2-х метров от фундамента, выройте сливную яму (в нее будет помещен конец канализационной трубы).
- Саму трубу укладывают в траншею под углом к яме (для обеспечения полноценного слива).
- Для сруба лучше использовать бревно диаметром 180 мм. Важно соблюдать чередование толстого и тонкого бревна при укладке. Ближе к фундаменту располагают бревна лиственных деревьев, а ближе к крыше – хвойные. Считается, что наиболее «полезная» кедровая баня.
- Для обеспечения герметичности конструкции между бревнами закладывают веревку из джута или льноволокно.
- Кровлю покрывают либо черепицей, либо шифером.
- Планировка бани имеет ряд особенностей. Наибольшую популярность получило деление помещения на тамбур и четыре комнаты. Входная дверь должна обеспечивать максимальное сохранение тепла внутри бани. Для предотвращения сквозняков многие строители выбирают установку тамбура с площадью около 0,4 кв. м. За ним идет комната отдыха приблизительно в 7,6-8,8 кв. м. Для того чтобы войти в парную, нужно пересечь душевую (4,0 кв. м). В душевой перегородками отделяют санузел. Желательно, чтобы парная (4,0 кв. м) имела 2 ряда полок и нижнюю скамью. Причем верхняя полка располагалась на расстоянии 1 метра от потолка.
- Внутреннюю обшивку банного помещения следует делать из хвойных сортов деревьев.
- Высота потолка должна быть минимум 2,3 м.
- Также необходимо обеспечить тепло- и гидроизоляцию.
- Нужно организовать систему вентиляции помещения, которая может быть выполнена в виде отдушины.
Источник: https://bani-iz-brusa.postroivsesam.info/novosti/vse-o-banyah-razmerom-5-n-osobennosti-bani-5h3
Проект бани 3 на 5 из блоков. Особенности бани 5х3
Для того, чтобы построитьбаню, необходимо для начала составить ее проект. Его необходимо разработать с учетом размера свободного пространства на участке. Нужно помнить о том, что баня не должна находиться очень близко у воды либо прилегать к соседнему участку. Кроме того, это помещение должно быть видно из окна жилого здания. Это требования пожарной безопасности, которые нужно соблюдать не только ради галочки в документах, но и для сохранения жизни тех, кто будет использовать данное помещение.
Если свободного пространства на участке вполне достаточно, можно построить просторную и удобную баню 5х3. Эти проекты пользуются большой популярностью, так как баня выходит достаточно просторной, и в ней могут одновременно париться несколько человек, но в то же время здание не особо громоздкое. Проект бани 3 на 5, фото которой можно увидеть на рис. 1, относится к средним размерам, но при этом в такой бане может поместиться абсолютно все, что необходимо для комфортного и полноценного отдыха. Немалым спросом в последнее время пользуется проект бани 3 на 5 с террасой, на которой можно отдохнуть после гигиенических процедур.
Что касается материалов, то для бани 5х3 подойдет любой, но он должен соответствовать требованиям для данных помещений. Все дело в том, что материалы для строительства бани должны обладать высоким уровнем теплоизоляции. В противном случае придется много сил и денег тратить на утепление помещения.
В прежние времена парные чаще всего строили из дерева. На современных участках нередко встречаются проекты бани 5 на 3 из бруса. Кроме того, проекты 5х3 составляются и на основе пеноблоков. Стоит заметить, что проект бани 3будет служить очень долго и хорошо выполнять свои функции, если правильно провести процедуру теплоизоляции. Пеноблоки нужно защитить от воздействия внешних факторов. В этом случае баня прослужит не одно десятилетие.
С древесиной работать несколько сложнее. Ее нужно выбирать очень тщательно, так как многие породы дерева при нагревании выделяют слишком много смолы. Таким образом, стены парной становятся опасными, так как об них можно легко обжечься. При выборе проекта бани 5многие выбирают хвойные породы, но именно они являются наиболее смолистыми, хотя париться в такой парной будет очень полезно за счет эфирных масел, выделяемых древесиной.
Проект бани 3 на 5 из шлакоблоков. МАТЕРИАЛ ШЛАКОБЛОКОВ
Составными частями шлакоблоков являются песок, цемент и наполнитель, тип которого придает материалу те или иные свойства. В наиболее прочных изделиях используется галька или щебень, но они и наиболее «холодные», так как им присуща большая теплопроводность.
Способность сохранения шлакоблоками тепла возрастает, когда добавляется керамзит или опилки, но уменьшается барьер прочности и стойкость к влаге. При самостоятельном изготовлении шлакоблоков используется сеяный шлак и они получаются где-то на 15% дешевле того же керамзитобетона , но уступают промышленным образцам.
Строительство бани из шлакоблоков своими руками является одним из недорогих и доступных способов, но предпочтение отдается все-таки образцам промышленного изготовления. По сравнению с самостоятельно изготовленными изделиями, они обладают повышенной прочностью и их понадобится не так много — для небольшого сооружения можно обойтись 500 — 1 тысяча штук.
Стандартный размер промышленных образцов 390х190 мм, высота которых 188 мм, а вес одного шлакоблока колеблется в широком диапазоне и достигает порядка 23 кг. Снижение теплопроводности блоков дополнительно достигается их пустотелостью.
Такой материал наилучшим образом пригоден для строительства стен бани, потому что он сохраняет тепло длительное время. Согласно российским стандартам блоки изготавливаются с пустотелостью 28%, 30%, 40% и полнотелые, не содержащие пустот.
При выборе шлакоблоков в первую очередь стоит проверить качество материала: падение на бетонную поверхность с метровой высоты не должно вызывать сколов и трещин, а также попытка забить длинный гвоздь не должна увенчаться успехом.
Не менее важно, чтобы блоки имели относительно гладкую кладочную и лицевую поверхность, а их размеры не отличались более, чем на 1 мм от нормы. Для создания стен бани обычно используется несколько типов блоков, начиная от монолитных, и, кончая, легкими изделиями.
К тому же, не помешает знать, что шлакоблок достигает полной прочности не ранее, чем через год после его изготовления, а нескольких месяцев недостаточно, чтобы из изделия выветрилась львиная доля нежелательных примесей.
Отсюда при покупке партии шлакоблоков надо знать дату их изготовления и неоправданно приобретать недавно выпущенные шлакоблоки, потому что они начинают крошиться даже при нагрузке первых четырех рядов.
Однако, если для создания бани на даче таковые все-таки приобретены, то их рекомендуется уложить под пленку на период подготовительных работ. Изделия пересушивать нехорошо, поэтому их надо периодически брызгать водой, но не стоит переусердствовать, так как влага достаточно медленно испаряется из пористой структуры блоков, о чем нужно всегда помнить.
Основные достоинства бани из шлакоблока:
- несложная доступность и невысокая себестоимость, если возводить баню своими руками;
- высокая скорость строительства, так как блоку присущи внушительные размеры;
- относительно легкий вес конструкции и простота обработки;
- выдержанные размеры изделий, которые можно изготовить своими руками;
- высокая безопасность от пожара по причине огнестойкости изделия;
- малая теплоотдача, так как блоки превосходят кирпич, но незначительно уступают дереву;
- высокая гигиеничность, так как не создают среду для насекомых, грызунов, плесени и грибков;
- длительный срок службы, потому что баня из шлакоблоков эксплуатируется целый век.
Основные негативные стороны:
- стены пористые и шероховатые, их следует тщательно изолировать от проникновения влаги;
- серый цвет шлакоблока требует внешней обработки, чтобы придать сооружению презентабельный вид;
- на стенах плохо держится штукатурка, поэтому понадобятся панели для отделки снаружи и внутри;
- нередко встречаются блоки с заполнителем низкого качества и содержащие токсические вещества;
- в зависимости от типа шлакоблоков для крепления не всегда применимы обычные дюбели.
Итак, минусов у подобных материалов существенно меньше, и они играют не такую важную роль, поэтому дачники часто останавливаются не только на сооружении бани из шлакоблоков, но и создают из них другие подсобные строения.
Проект бани из блоков 3х4. План с верандой или террасой
Такая планировка предлагается многими фирмами, занимающимися возведением каркасных домов и бань. По ней площадь всей застройки с пристроенной верандой или террасой составляет 17 м2. Полезной площади внутри помещения остается 11 м2.
Что собой представляют проекты бань с бассейном под одной крышей расскажет данный материал .
Она распределена между тремя комнатами:
- верандой;
- предбанником;
- парилкой.

Веранда расположена вдоль узкой стороны здания, она идет шириной в одни метр. С нее можно попасть в предбанник длиной 2,5 на 0,8 метра. В нем имеется дверь в парную, эта комната занимает около 5 м2. Возле стены, разделяющей веранду и парную, расположена печь-каменка, а в противоположной от нее стене установлены полки для парения.
Как выглядит каркасная баня на фундаменте из покрышек , поможет понять фото из статьи.
Как выглядят бани из бруса с мансардой и террасой, можно посмотреть в данной статье.
Также будет интересно узнать о том, какие варианты планировки бани 6х4 самые удачные: https://2gazon.ru/postroiki/bani/6×4-planirovka.html
Такой вариант бани 3×4 метра можно обыграть по-разному. По одной из версий использовать веранду как предбанник, установив в ней вместо больших открывающихся окон глухие и утеплив ее стены подходящим рулонным утеплителем, который можно применять для сооружений из сруба. Вместо тамбура организовать помывочную, установив рукомойник и душевую. Оригинально будет использовать бочку, которая приводится в движение закрепленной на ней веревкой или цепью.
С особенностями проектов бань из газосиликатных блоков ознакомитесь здесь .
Для тех, кто хочет, чтобы его баня была полностью самостоятельным зданием, нелишним будет продумать обустройство туалета, который можно вынести на туже веранду.

Важная часть постройки это утепление потолка бани.
