Дизайн бани с верандой. Преимущества бани с террасой, верандой
- Дизайн бани с верандой. Преимущества бани с террасой, верандой
- Проект бани с террасой и барбекю. Различные варианты планировки бани с террасой и печью
- Современная баня с террасой. Для чего нужен проект, и как его выбрать
- Проект бани с верандой террасой и барбекю из кирпича. Терраса и барбекю: планируем правильно
- Небольшая баня с террасой. Проектирование
Дизайн бани с верандой. Преимущества бани с террасой, верандой
Веранда – небольшое открытое или закрытое сооружение с крышей. Она является частью банной конструкции, располагаясь с ней на одном фундаменте. Веранда строится вместе с баней либо позднее. Для террасы обустраивается собственный фундамент, другое, приподнятое над землей основание. Такая площадка выполняется закрытой, открытой, универсальной. Последний вариант пригоден для полноценного использования как летом, так и зимой.
Банька с верандой или террасой имеет множество преимуществ:
- на площадке перед баней можно организовать жарку шашлыков, барбекю, гриль;
- дружеские посиделки, семейный обед или ужин также удобен здесь;
- огромный выбор современных строительных материалов, дизайнерских решений позволяет создать постройку в любом стиле;
- расположить пристройку можно как сбоку банного помещения, так и между домом и баней, чтобы отдыхать, не отходя далеко;
- на территории площадки красиво разместятся растения в кадках, вазонах;
- грамотно выполненная постройка позволяет максимально соблюсти выбранную концепцию оформления ландшафта, не делая архитектурный ансамбль разобщенным;
- так как не придется сооружать отдельную крышу над площадкой для отдыха и местом помывки, а также соединять их дорожками, экономия времени и стройматериалов очевидна;
- с открытой террасы, веранды можно любоваться закатом или рассветом за чашкой чая, завернувшись в мягкий пледик;
- открытый бассейн легко расположить прямо на террасе.

На стандартной площадке размещают мангал, барбекюшницу, открытый каменный или кирпичный очаг, несколько лавочек или полноценных кресел, а также столики.
Проект бани с террасой и барбекю. Различные варианты планировки бани с террасой и печью
Основные помещения комплекса для отдыха – предбанник, парная, помывочная (душевая), и просторная гостиная (зона отдыха). Планировка, размер и перечень комнат, терраса, а также форма крыши зависит от предпочтений хозяев.
Распространённый вариант – открытая терраса, вплотную примыкающая к предбаннику. В тёплое время года такие комплексы используются как летние кухни, на открытой территории размещается печь для барбекю, цветущие растения, мебель для отдыха. С наступлением зимы открытая площадка теряет свою функциональность.
Застеклённая веранда, дополняющая проект бани с беседкой, часто дополняется камином или печью. В итоге получается не просто баня вместе с дополнительным пространством - создаётся полноценная постройка для отдыха, размещения гостей для временного проживания в любой сезон.
Варианты размещения веранды
Создание бани с отдельно стоящей верандой – наиболее доступный по цене и простой в возведении вариант. При этом необходимо подготовить отдельный фундамент для постройки, а также сделать кровлю. Для удобства гостей рекомендуется обустроить дорожку от бани до веранды.
Пристройка бани с зоной барбекю под одной крышей с основным помещением – более сложный технологически, но быстрый и экономичный вариант создания комплекса для отдыха. Чаще всего терраса имеет общую стену с баней, а также фундамент и крышу, возведение обеих построек происходит одновременно.
Стропильная система для бани с беседкой под удлинённой двускатной крышей
Стропильная система представляет собой соединения деревянных балок, на которые после постройки будет крепиться кровля (черепица, ондулин, металлический профиль). Оптимальный вариант кровли для бани с беседкой – двускатная крыша, обеспечивающая естественное стекание осадков, простая и удобная в монтаже.
Стропила изготавливаются из досок шириной 50 мм и длиной до 150 мм, которые будут соединяться ригелями и затяжками, сделанными из досок 50х100 мм. Количество досок зависит от габаритов готовой постройки, стандартное расстояние между стропилами – 80 см. Нижнюю часть стропильной системы составляет мауэрлат – прочные доски, крепящиеся к верхним венцам (верхним частям стен) помещения бани.
Современная баня с террасой. Для чего нужен проект, и как его выбрать
Попариться в бане, которая является даже не местом для омовения, а местом для очищения и омоложения организма, любят не только русские. А потому их типов существует много. Есть скандинавские сауны, очень горячие, потому что в них почти нет пара; есть японские бани офуро, в которых вместо парной присутствует просторная купель с горячей водой; есть турецкие хамамы, по-максимуму насыщенные влагой, но при невысокой температуре.
- Русские бани – сырые, так как эффект тепла в них получают не за счёт экстремального прогрева, а благодаря горячему пару. Режим эксплуатации влияет и на подбор строительного материала, на внутреннюю, а также внешнюю облицовку, и на способы обогрева.
Традиционная русская баня
- Всё это и должен учитывать проект. А уж кто будет воплощать его в жизнь – наёмная бригада или вы сами, большой разницы нет. Главное — выбрать правильное место под постройку, которая должна находиться с подветренной стороны и желательно не в низине.
- Подходящее место – когда парилку можно поставить недалеко от природного водоёма, чтобы окунуться из парной да в холодную воду. Но так везёт далеко не всем, поэтому рядом с баней многие сооружают искусственный прудик — если не для купания, то для приятного созерцания (читайте на нашем сайте: как сделать красивый пруд на даче ).
- В общем, чтобы постройка была комфортной, нужно учесть немало нюансов. Один из них – выбор проекта, учитывающего количество пользующихся парилкой людей, и предусматривающего пассивный отдых. Поэтому зачастую проектируются не просто бани, а дома отдыха с сауной и другими удобствами.
Модель с мансардой и верандой, плюс бассейн для контрастного ополаскивания
Баня с верандой под одной крышей на берегу реки
Конечно, новенькая постройка с открытой террасой и комнатой отдыха – идея хорошая (о проектах и строительстве бани с террасой можете узнать по ссылке).
Проект бани с верандой террасой и барбекю из кирпича. Терраса и барбекю: планируем правильно
Планируя террасу, прежде всего необходимо учесть, какое направление ветра является основным, чтобы задание бани закрывало собой террасу. Кроме того, это позволит правильно разместить и барбекю, чтобы ветер относил дым и жар в сторону от отдыхающих. Если терраса будет служить для укрытия от солнечных лучей в жаркий летний день, то не стоит размещать её с южного направления. Или же наоборот – терраса с шезлонгом может стать отличным местом для приема солнечных ванн – здесь все зависит от пожеланий и вкусов хозяина. Кроме того, на выбор расположения террасы немало влияет и окружающий пейзаж – созерцание забора врядли добавит настроения на отдыхе, куда приятнее любоваться лесом, озером или благоустроенным ландшафтным дизайном.
Террасу можно расположить фронтально (т.е. вдоль фасада бани, рис. 1), сбоку (возле одной из стен), она может иметь угловое расположение (вдоль двух примыкающих стен) или опоясывающие (вдоль трех стан, иногда и полностью вокруг бани, если позволяет территория).

Рис. 1. Проект бани с фронтальным расположением террасы

Фронатльное расположение террасы

Проект стильной и лаконичной бани с террасой и барбекю
Если вы не планируете приглашать много людей, то с учетом установки барбекю (мангала), минимальная рекомендуемая площадь террасы – 7-8 м2. Но лучше начинать с 9-10 м2, тогда кроме столов и стульев на террасе можно будет поставить шезлонг, пару кресел, при этом человек, стоящий у барбекю, будет иметь достаточно свободного места для работы, а отдыхающим не будет докучать жар от печки и дым.
Хотя терраса в классическом понимании – это открытая площадка, для большего комфорта она имеет крышу для защиты от осадков и солнца. Это может быть продолжением крыши бани и быть выполнена из аналогичного кровельного материала, а можно накрыть террасу полупрозрачным поликарбонатом . Кроме того, непрозрачный навес будет создавать полумрак в самой бане, поэтому придется раньше включать свет.
Совет! Поликарбонатное покрытие особенно оправдано для больших по площади террас – нет необходимости сооружать массивное основание, легкая металлическая конструкция не будет загромождать пространство, оставаясь практически незаметной.
Для пола на террасе лучше всего подойдет деревянная доска или декинг. Конечно, можно положить тротуарную или керамическую плитку, но дерево будет смотреться уютнее. Природный камень используют в качестве покрытия на большой террасе

Природный камень станет эффектной отделкой для террасы
Для установки барбекю необходимо заложить фундамент отдельно, а для строительства используют специальный огнеупорный кирпич, при этом основание делают высотой порядка 70 см от уровня пола.
Совет! Для улучшения пожарной безопасности, вокруг барбекю лучше положить каменную (кафельную) плитку вместо деревянного покрытия – даже если на неё упадет искра, она не вызовет возгорание.
В передней стенке делают прямоугольную нишу, в которой можно будет хранить небольшой запас дров. Для отвода дыма для барбекю делают отдельный дымоход, который по высоте должен обеспечить эффективный отвод дыма от бани.


Небольшая баня с террасой. Проектирование
Чтобы при проектировании бани получить именно то, что вам нужно, необходимо иметь в виду следующее:
- на какое количество людей должен быть рассчитан моечный комплекс с открытой площадкой для отдыха;
- будет ли он использоваться только летом или также сможет эксплуатироваться зимой;
- какая планировка будет наиболее подходящей;
- из какого материала ее строить;
- какова допустимая цена строительства.

Если баней предстоит пользоваться только в теплое время, об утеплении предбанника можно особо не задумываться. Если баня эксплуатируется круглогодично, особенно важно становится расположение входа в нее.
Грамотная планировка позволяет сократить расходы на строительство. Так, если сделать удобную открытую площадку для барбекю, в которой легко размещается много людей, гостевая комната может и не понадобиться.

Иногда достаточно террасу пристроить к существующей бане, если она достаточно новая. Если же баня старой постройки, лучше расположить площадку для отдыха под крышей между строением для мытья и домом. Важно выбрать для нее место так, чтобы не нарушить существующую архитектурную и стилистическую идею.


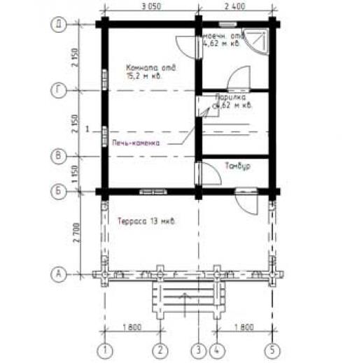
Площадь бани может быть разной – от небольших размеров до внушительных, например, 6х4, 3 на 9 метров и так далее. На большом участке найдется место для сооружения размером 6 на 9 метров. Оно подходит для большой семьи и многочисленной компании. На таком пространстве запросто разместится не только парилка, моечная, но и кухня, санузел, комната отдыха, бильярдная и так далее. Баня при этом может быть двухэтажной. На втором этаже имеет смысл сделать просторную комнату для гостей . Терраса может быть оборудована печью, которая выглядит как камин.
Такой оздоровительный комплекс можно выполнить, например, из оцилиндрованного бревна. Возможны вариации планировки. Например, если устроить гостиную на первом этаже, отделив ее от террасы стеклянной стеной, в этой комнате будет всегда много света, а сама терраса сможет выглядеть больше. При изменении погоды гостям удобно будет перемещаться с открытой площадки в гостиную и обратно.
Некоторые проекты бань с мансардами предусматривают внешнюю лестницу на второй этаж со стороны террасы. Таким образом можно выиграть дополнительную площадь в самом доме . Хотя многие могут посчитать такое проектное решение спорным.


Баню иногда проще пристроить и к существующему дому, в том числе и с гаражом. В этом случае довольно будет пристройки 5х6 метров с террасой . Функционал жилья расширится, а в жару можно будет приятно проводить время на свежем воздухе в защищенном от солнца месте.
Можно взять на вооружение проект угловой бани с террасой. При таком подходе к планировке оно сможет занимать мало места на участке, оставаясь вместительным внутри. Такой проект будет особенно интересен, когда баньку размещают очень близко к жилому дому . Также существуют проекты угловых террас, которые есть смысл применить в таком случае.
