Проект бани 6х4 с мансардой. Особенности и расположение
- Проект бани 6х4 с мансардой. Особенности и расположение
- Сколько стоит баня из бруса. Профилированный брус, как материал для строительства бань
- Проект бани 6 4 с мансардой. Особенности
- Сруб бани под усадку. Какому способу возведения отдать предпочтение
- Проект бани 6х4 из бруса. Проект
- Баня из бруса 6х6 с мансардой. Баня 6х6 метров с мансардой: современные готовые проекты и этапы строительства
- Баня 6х4. Разработка проекта
Проект бани 6х4 с мансардой. Особенности и расположение
Прежде чем приступить к строительству бани размером 6 на 4, нужно провести серьезную подготовительную работу. От ее качества зависит, как потом пойдет процесс стройки и обустройства помещения. Продумать предстоит следующие нюансы:
- место расположения на участке;
- подводка всех необходимых коммуникаций;
- выбор варианта печи;
- выбор материалов для строительства здания и отделки внутри;
- подготовка проекта, где будут обозначены все детали и размеры;
- подбор подходящего стиля и элементов дизайна;
- продумывание общего интерьера – подбор мебели, текстиля и других составляющих.
Что касается расположения, то следует его продумать так, чтобы здание стояло на достаточном расстоянии от самого дома, но в то же время не впритык к забору.
Идеальное расположение – в углу участка. При этом рядом можно благоустроить территорию. Поставить лавочки для отдыха или маленькую беседку, разбить клумбы, искусственный родничок тоже не помешает. А может быть, возле бани хватит места, чтобы оборудовать небольшой бассейн. Это будет идеальный вариант.


Оформление здания бани и самого дома должны быть выдержаны в одном стиле . Так все постройки и участок в целом будут смотреться гармонично. Заранее продуманный проект бани 6х4 позволит составить приблизительную смету, из которой будет предельно ясно, сколько средств уйдет на каждый этап строительства. И чтобы возведение бани не затянулось на долгие годы, может быть, еще на этапе составления проекта следует подумать, какие работы можно удешевить, какие объекты крайне необходимы, а без каких можно обойтись или заменить их более бюджетными вариантами.
Сколько стоит баня из бруса. Профилированный брус, как материал для строительства бань
Деревянные застройки выглядят красиво. Интерьер гармонирует. В них уютно, тепло зимой, а летом умеренно прохладно. Ценный материал для строительства — отдельные сорта дерева. Высокую популярность сохраняет профилированный брус.
Бани из бруса характеризуются такими преимуществами:
- Экономия. Пиломатериал в несколько раз дешевле аналогов. Мы готовим сырье в городе Пестово, контролируя качество на каждом этапе. Обращаясь в нашу компанию, вы многократно экономите.
- Быстрая закладка фундамента. Брус относится к легкому материалу. Для него не нужно сооружать крепкую или сложную опору.
- Естественность. Дерево относится к оптимальному материалу по красоте, прочности, надежности.
- Хорошая вентиляция помещения. Банные помещения из бруса сохраняют естественный теплообмен. Накапливаемая влажность будет уходить сквозь стены, не создавая не желаемых эффектов.
- Быстрая сборка за счет продуманной системы крепления пиломатериала. На этапе производства бруса стараются добиться универсальной технологии шип-паз. Поэтому за 3-4 недели укомплектовывают все помещения.
- Теплоотдача. Пиломатериал хорошо удерживает тепло — возникает быстрый нагрев внутри. Это экономно. Владельцу придется затратить минимум энергии и сил.
- Надежность системы крепления. Шип-паз хорошо стыкуется. Позволяет защитить баню от продувания ветром. Препятствует и попаданию влаги.
- Не требуют отделки. Стройматериал имеет оптимальные эстетические качества. Его не нужно шпаклевать, окрашивать или проводить другую отделку.
- Экологичность. Хороший плюс для стройматериала. В отличие от аналогов (клееный брус), при производстве бруса не внедряют вспомогательные составы. Пиломатериал не испаряет вредных веществ. Это на 100 % дышащий стройматериал.
Проект бани 6 4 с мансардой. Особенности
Исключительность мансардных бань подразумевает полноценную реализацию разнообразных конструктивных решений. Подбирайте вариант дома-бани с учетом характерных черт. Для любителей проектирования различных вариаций строений баня с мансардой будет отличным способом реализации собственных идей. Одной из главных надстроечных конструкций мансарды является лестница. Подъем на мансарду в бане потребует ее наличия.

Следует тщательно разобрать противовесные моменты с учетом аргументов за и против. Только после учета основных характеристик личного банного сооружения допускается рассмотрение вопросов проектирования. Еще одной конструкционной особенностью бань с мансардой является конструкция кровли. Важно учесть ограниченность мансарды. Чтобы этот этаж был полезным, чаще применяют кровлю ломаной двускатной конструкции.
Нежелательна односкатная кровля, тип традиционного двускатного варианта также нельзя назвать самым удобным. Нередко используют шатровые кровельные конструкции. С геометрическими параметрами более или менее ясно. Подберите вариант подъема на мансарду с учетом того или иного варианта кровли. Например, самыми действенными считаются варианты маршевого вида, но их сложно монтировать на малых площадях. Особенно плохо адаптируются маршевые устройства к конструкции бань 4х4 м.

Больцевые лестницы снабжены достоинствами маршевых устройств. Такие системы нельзя применять к каркасным сооружениям, так как для них требуется прочная несущая опора. К стене крепят ступени. Если баня выполнена из других материалов, устройство вполне приемлемо для использования.

Устройства винтового типа не отличаются удобством, но они эффективные в плане экономии пространства. Зачастую они становятся палочкой-выручалочкой в проекте мансардной бани 4х4 или 5х5 м.
Лучший вариант проекта с верандой, террасой и мансардой предполагает размещение комнат в следующем порядке:
- первый этаж;
- парилка;
- душевая кабина или помывочная;
- тамбур;
- маленькая веранда.

Веранду часто используют в качестве обеденной зоны, заполняя лавками, стульями, столами. Это пространство обычно открытое, поэтому создается атмосфера простой природной красоты. Однако верандой иногда жертвуют в счет увеличения внутренней площади бани. На площади мансарды допускается обустройство спального места, игровой комнаты (например, бильярдной), кладовой. Если мансарда является кладовой, место отдыха целесообразней оборудовать и внизу. Для комфорта на мансарде должна быть предусмотрена общая высота помещения от 2,5 метров.

Сруб бани под усадку. Какому способу возведения отдать предпочтение
Баня, возведенная под ключ ,и баня под усадку имеют свои сильные и слабые стороны. Отразим наиболее принципиальные и бесспорные:
- При строительстве под ключ, значительно ускоряются сроки возведения.
- Сооружение под усадку требует более тщательной защиты древесины конструкции, поскольку, она более подвержена воздействию неблагоприятных внешних факторов, особенно на протяжении первых 6- 12 месяцев.
- Возведение сруба под усадку позволяет использовать более дешевый и доступный материал.
- Постройка бани под ключ подразумевает и проведение отделочных работ, которые скроют возможное проявление усадочных явлений на начальном и последующих периодах эксплуатации.
Внимание! Усадочные явления могут проявить себя и на сопряжениях потолка и кровли, в частности, в тех местах, где проходят дымовые каналы банной печи. Необходимо предусмотреть и запроектировать такие приемы монтажа, которые исключат нарушение целостности термостойкой гильзы или набивки.
Стоит сказать, что если баня имеет несколько уровней планировки, в частности, проект предусматривает обустройство массандры, для связи между этажами необходима лестница. На неподвижный беззазорный крепеж лестничные конструкции стоит монтировать только после полного прекращения усадочных явлений, а это около 12 месяцев, а в некоторых случаях и более. Позволить себе такую роскошь, в современном динамичном мире непозволительно. Поэтому, для компенсации изменений линейных размеров, протекающих во время усадки деревянной конструкции, применяется скользящий крепеж, который без потери прочности соединения, за счет подвижной части надежно удерживает сопрягаемые поверхности.
Проект бани 6х4 из бруса. Проект
Любая баня начинается с проекта. Прежде чем начинать строить, выравнивать грунт, искать материалы, нужно определиться с тем, как строение будет выглядеть в итоге, и какие функции оно должно выполнять: будет ли это обычный одноэтажный домик 4х6 м или же мини-коттедж с бассейном в 2 этажа. И в том, и в другом случае необходимо начертить схему расположения помещений, которая станет лучшим помощником в строительстве бани, независимо от того, занимается ли этим хозяин участка самостоятельно или прибегнул к помощи архитекторов.


Обязательно нужно учесть способ водоснабжения бани. Обычно этот вопрос решают с помощью скважины.
Здесь есть свои тонкости и нюансы, с которыми предстоить столкнуться во время строительства:
- удаленность скважины от бани (от полусотни метров);
- организация слива воды;
- зимнее водоснабжение.
В этом вопросе лучше посоветоваться с профессионалами, которые подскажут лучшее решение для актуальной проблемы.


Планировка
Считается, что лучший размер для бани на даче – 4 на 6 метров. Такие параметры открывают простор для фантазии: здание можно сделать наподобие дачного домика, часть его отведя под террасу, превратив ее в зону отдыха на свежем воздухе, а можно ограничиться постройкой скромной баньки.
Баня – весьма специфичное строение с особым назначением, поэтому при планировке обязательно нужно учитывать высоту потолков и порогов. Недостаточная ширина и высота порога приведет к «выходу» тепла из парилки и сквозняку, а потолка – к появлению лишнего пара.
Идеальной считается высота потолка около двух метров.


Для проработки удачной планировки следует учитывать следующие факторы:
- число человек, одновременно находящихся в бане;
- назначение помещения: квадратные метры парилки и моечного отделения зависят от предпочтений;
- целевое разделение комнат;
- грамотное разделение пространства.


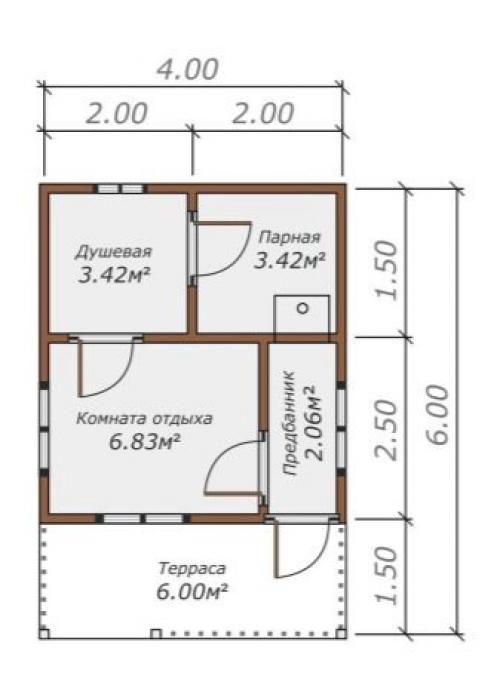
Типовой проект планировки включает следующие помещения:
- Предбанник – что-то наподобие небольшого коридора, который можно использовать как раздевалку; там же хранится банная утварь типа веников и головных уборов.
- Парилка – главное место бани. В ней будут располагаться полки и печь. Лучше ее расположить в углу здания.
- Моечная (или душевая) – комнатка, в которой находится душ, иногда и туалет.
- Комната отдыха – устраивается по желанию и по возможности. Обычно под нее отводят самую крупную комнату и обставляют всей необходимой мебелью: шкафчиками, диванчиками, лежаками, оставляют в ней вещи. Одним из важных условий этой комнаты является наличие окна.
Баня по индивидуальному проекту может включать в себя все вышеперечисленные помещения и иметь дополнительные. Например, иногда предбанник и комнату отдыха можно совместить или же вовсе отказаться от него, заменив террасой. Однако это будет более летний вариант, что подходит для сезонного времяпрепровождения. Если создается «мультисезонный» проект, то лучше сделать и внутреннюю, и уличную зоны отдыха. Но такой вариант потребует дополнительного пространства, и вместо 4-х лучше рассчитывать на 5 метров.


При наличии средств и достаточного желания можно разнообразить стандартную планировку, добавив второй этаж или веранду. Два этажа позволяют расширить функционал бани размерами 6х4 м, так как второй этаж строится в том случае, если одного уровня для организации всех помещений не хватает: например, если очень хочется устроить небольшой бассейн, а также превратить баню в домик со спальней для гостей.
Детальная схема проекта должна учитывать абсолютно все архитектурные особенности и моменты: от расположения окон и дверей до расстояний между перегородками, а ширина и расположения комнат должны быть обдуманы заранее.


Баня из бруса 6х6 с мансардой. Баня 6х6 метров с мансардой: современные готовые проекты и этапы строительства
Баня с мансардой в современном стиле
Баня издревле была в каждом русском дворе. В современном мире она стала скорее способом собраться с друзьями и родственниками и провести время с пользой для организма. Если выбрать размер 6 х 6 м, можно получить строение, где с легкостью разместятся все необходимые помещения. Встречаются различные виды таких сооружений: одноэтажные сили,.
Интересный проект с мансардой, балконом и верандой
Зачем нужна мансарда?
Такой проект позволяет разместить на компактном участке все необходимые банные помещения и комнаты для отдыха. Кроме того, мансарда позволит создать, при этом сэкономив средства. Она расширяет полезную площадь, создавая комнату, используя кровельные конструкции. Часто на втором этаже обустраивают место для отдыха, размещают бильярдный стол, а также удобную и функциональную мебель.
Кроме этого, из мансарды можно сделать:
- Гостевую комнату.
- Спальню на летний период времени.
- Кладовую или хозяйственное помещение, в котором удобно хранить вещи и инвентарь.
Лучше запланировать все заранее и спроектировать.
Постройка из светлого дерева смотрится эффектно
Проект 6 х 6 – самый востребованный
Выбор размеров основных помещений зависит от индивидуальных желаний хозяина. Можно создать, если планируется использовать баню в теплое время года. В случае пользования банькой круглый год площадь сокращается для обустройства прочих комнат.
В первой комнате – прихожей – оборудуется. Размеры других помещений могут быть разными.
Вот один из вариантов планировки банного комплекса:
Важно! Главное помещение – это парная. Она может иметь площадь 4 кв. м. В комнате размещаются двух- или трехъярусные полки и печь . Важно учесть такие нюансы: верхняя полка должна отступать не менее 1 м от потолка, ширина составляет 0,7 м, а длина – 2,5 м и более .
- Возле парной должна находиться моечная размером примерно 4 кв. м и более. В этом помещении оборудуюти купель или небольшой.
- Для предбанника или комнаты отдыха нужно оставить 7 кв. м площади, поскольку отдыхать могут одновременно много человек.
- Не забудьте о наличии, для него не нужно много места – хватит 2 кв. м. Оставшуюся часть занимает терраса.
Схема проекта бани 6 х 6 с мансардой
Для создания полноценного помещения его нужно оборудовать окнами и дверями. В парной окно не делают, в моечной достаточно небольшого окошка, а вот в комнате для отдыха ставят стандартный оконный проем.
На заметку! Двери устанавливаются небольшие – до 1,7 м высотой. Полы в бане делают деревянные с уклоном для стока воды
Материалы, которые понадобятся
Строительный рынок предлагает разнообразные материалы для строительства зданий:
- .
- Кирпич.
- Пенобетон или газобетон.
Самым популярным для бани остается натуральный материал – дерево. Многие производители предлагают готовые проекты из древесины, которые быстро монтируются и служат продолжительный срок. Для внутренней отделки подойдет липа или осина, которая распиливается на доски или.
Баня – отличное место отдыха
Для создания кровли используются такие:
- односкатная;
- двускатная;
- шатровая.
На заметку! Для размера 6 х 6 чаще всего используют двускатную конструкцию. Односкатные кровли подходят для небольших строений.
Инструкция для возведения строения
Возведение строения из любого материала не слишком отличается друг от друга. Главное – соблюдать определенную последовательность действий.
Первый этап. Подготовительный
Важно правильно выбрать место на. Хорошо, если получается возвести баньку на берегу водоема. Это позволит после парилки охладиться, окунувшись в студеную воду. Такая процедура повышает иммунитет и укрепляет организм. Если подобная возможность отсутствует, то стоит обустроить купель или бассейн.
Баня на берегу озера
Хорошим местом станет возвышение на участке. Не размещайте строение возле дороги, если хотите скрыть от любопытных глаз отдыхающих налюдей. Выбранную территорию очищают от мусора и растений, а также выравнивают.
Второй этап. Создание фундамента
Поскольку строение из дерева получается легким, то нет потребности в сложном фундаменте. Подойдет один из вариантов: ленточный или столбчатый.
- Ленточный фундамент имеет форму замкнутого по периметру сооружения круга. В траншее создается из досок опалубка. На дно настилается слой песка в 15 см толщиной. Глубина траншеи составляет полметра, а ширина должна быть шире планируемого фундамента для учета опалубки. Этот вариант более надежный и позволяет сделать подвал под зданием.
- Столбчатый вариант выполняется путем изготовления свай, которые закапываются в землю на глубину ниже, чем промерзает грунт. Установка свай происходит по углам строения и через каждые 2 м по периметру. Этот вариант дешевле.
Источник: https://gorizont-pro.ru/novosti/dom-banya-6h6-s-mansardoy-proekt-bani
Баня 6х4. Разработка проекта

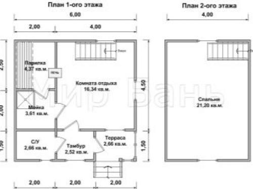
План постройки с мансардой
Профессионально разработанный проект каркасной бани 6х4 гарантирует целый ряд преимуществ, среди которых:
- Обеспечение длительного эксплуатационного ресурса благодаря профессиональному подходу к подсчету расчетных нагрузок на каркас;
- Возможность подобрать правильный тип стройматериалов в соответствии с нагрузками, оказываемыми на каркас;
- Возможность корректного составления сметы и, как следствие, предотвращение перерасхода стройматериалов;
- Отсутствие затруднений при регистрации строительного объекта в кадастровых органах;
- Более высокая цена при продаже дома вместе с баней на рынке вторичной недвижимости.

План одноэтажной бани 6*4
Из вышесказанного следует то, что проект каркасной бани 6х6 или 6 на 4 необходим. Но если строительство можно выполнить самостоятельно, то разработка и изготовление проектной документации требует профессионального и квалифицированного подхода.
Заказать проекты бань различных конфигураций можно в специализированных бюро. Также проектную документацию можно получить, приобретая готовый комплект каркасной бани. В итоге, вы по предоставленному плану, самостоятельно или с помощью приглашённых монтажников собираете сооружение.

На фото сборка щитовых панелей
В соответствии со стандартной проектной документацией, каркас под быстросборную баню строится с шагом 95-100 см. В качестве основного стройматериала применяется доска 150х50 мм или брус.
Важно: Если заготовка материалов и строительство ведется самостоятельно, необходимо убедиться в том, что приобретённая древесина в должной степени просушена. Если влажность бруса и доски составляет больше 20%, есть вероятность, что постройку в ходе эксплуатации «поведёт» и потребуется дорогостоящий ремонт.
Каркасная баня 6х6 с мансардой, равно как и постройка 6х4, строится с парным и моечным отделением на первом этаже. На этом же этаже обустраивается предбанник или раздевалка. Печь-каменка для большего комфорта и безопасности топится не из моечного отделения, а из предбанника.
Согласно проекту в мансарду можно попасть из предбанника по внутренней деревянной лестнице. Расчет помещений производится в соответствии с планируемым количеством человек, одновременно использующих баню. Ряд разработчиков, помимо комнаты отдыха, в мансарде предусматривает наличие террасы или веранды.

Стены, облицованные деревянной вагонкой
Бани, в соответствии с чертежной документацией, оборудуются внутренними перегородками между моечным отделением, парной и предбанником. Перегородки, как и несущие стены, изготовляются каркасными + с утеплителем, заложенным между слоями внешнего покрытия. Утеплитель в обязательном порядке с обеих сторон прокладывается гидро- и пароизоляционной пленкой.
Каркасные малогабаритные постройки, независимо от типа примененных отделочных материалов, характеризуется малой нагрузкой на грунт. Поэтому быстросборные бани возводятся на небольшом малозаглубленном фундаменте ленточного типа .
Применение ленточного основания гарантирует такие преимущества как экономия строительных материалов и времени.
Важно: организации, занятые проектированием и строительством быстросборных зданий, при необходимости могут внести в план объекта требуемые изменения. Разумеется, внесение изменений в проект скажется на его стоимости, но в таком случае можно будет построить нетиповую баню, которая будет максимально соответствовать вашим потребностям.