Проект бани с террасой и барбекю из кирпича. Различные варианты планировки бани с террасой и печью
- Проект бани с террасой и барбекю из кирпича. Различные варианты планировки бани с террасой и печью
- Проект угловой бани с террасой. Проект угловой бани: с террасой или беседкой, барбекю и бассейном
- Проект бани с верандой террасой и барбекю. Терраса и барбекю: планируем правильно
- Проект небольшой бани с комнатой отдыха беседкой барбекю. Лучшие проекты бань с беседками и барбекю
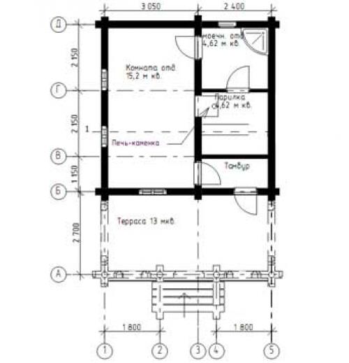
- Проект бани из кирпича 6х4. Баня 6х4 своими руками. Проекты и их реализация
- Проект бани с бассейном и барбекю. Проект бани с бассейном, беседкой и барбекю
Проект бани с террасой и барбекю из кирпича. Различные варианты планировки бани с террасой и печью
Основные помещения комплекса для отдыха – предбанник, парная, помывочная (душевая), и просторная гостиная (зона отдыха). Планировка, размер и перечень комнат, терраса, а также форма крыши зависит от предпочтений хозяев.
Распространённый вариант – открытая терраса, вплотную примыкающая к предбаннику. В тёплое время года такие комплексы используются как летние кухни, на открытой территории размещается печь для барбекю, цветущие растения, мебель для отдыха. С наступлением зимы открытая площадка теряет свою функциональность.
Застеклённая веранда, дополняющая проект бани с беседкой, часто дополняется камином или печью. В итоге получается не просто баня вместе с дополнительным пространством - создаётся полноценная постройка для отдыха, размещения гостей для временного проживания в любой сезон.
Варианты размещения веранды
Создание бани с отдельно стоящей верандой – наиболее доступный по цене и простой в возведении вариант. При этом необходимо подготовить отдельный фундамент для постройки, а также сделать кровлю. Для удобства гостей рекомендуется обустроить дорожку от бани до веранды.
Пристройка бани с зоной барбекю под одной крышей с основным помещением – более сложный технологически, но быстрый и экономичный вариант создания комплекса для отдыха. Чаще всего терраса имеет общую стену с баней, а также фундамент и крышу, возведение обеих построек происходит одновременно.
Стропильная система для бани с беседкой под удлинённой двускатной крышей
Стропильная система представляет собой соединения деревянных балок, на которые после постройки будет крепиться кровля (черепица, ондулин, металлический профиль). Оптимальный вариант кровли для бани с беседкой – двускатная крыша, обеспечивающая естественное стекание осадков, простая и удобная в монтаже.
Стропила изготавливаются из досок шириной 50 мм и длиной до 150 мм, которые будут соединяться ригелями и затяжками, сделанными из досок 50х100 мм. Количество досок зависит от габаритов готовой постройки, стандартное расстояние между стропилами – 80 см. Нижнюю часть стропильной системы составляет мауэрлат – прочные доски, крепящиеся к верхним венцам (верхним частям стен) помещения бани.
Проект угловой бани с террасой. Проект угловой бани: с террасой или беседкой, барбекю и бассейном
В этой статье мы расскажем о том, как расположить баню на участке в угловой зоне. О планировочных решениях такой постройки и возможном использовании зон внутри и снаружи.
Также поговорим о зоне бассейна в комплексе и его плюсах.
Как правило основное место на участке отдается главной постройке – дому. И очень часто возникает ситуация расположения бани в одном из свободных углов приусадебной территории. Это расположение диктует несколько объемно пространственных и планировочных вариантов.
Мы расскажем с какими сложностями можно столкнуться при такой посадке бани. Ниже поговорим об одном из них.
Все о нашем проекте угловой бани
По заданию нашего заказчика нам предстояло решить непростую задачу – удобно расположить сразу несколько разных зон бани при её угловом расположении. Перечислим их для понимания:
- Зона отдыха с большим диваном с раскрытием на телевизор и стеклянную дверцу банной печки
- Бассейн, размером зеркала воды 8х3 метра
- Близкое расположение парной, душевой и санузла к бассейну
- Выход из помещения бассейна на террасу с барбекю
- Веранда с дровяником при входе
- Отдельное расположение топочной и котельной
- Передаточное окно для дров из топочной в комнату отдыха
- Открытая веранда для загара с шезлонгами
- Витражное остекление основных зон

В итоге наши специалисты придумали очень лаконичную планировку для угловой бани. При входе расположили дровяник на веранде. Также хранение дров предусматривается в специально отведенном помещении, откуда есть окно для подачи дров в зону отдыха. Такое решение позволит сохранить чистоту. А со стороны зоны отдыха передаточное окно выполнено в виде ниши. Её можно сделать вертикально или горизонтально – это будет эффектным элементом дизайна в современном стиле.
Вариант 1 с бассейном

Вариант 2 с террасой кухней и комнатой отдыха

Вариант 3 с террасой, гостевой комнатой, дровяником и котельной

У нас новая услуга — заполните небольшое тех задание и мы разработаем планировку первого этажа Вашей бани.
Близость бассейна к сауне позволит принимать «контрастные» водные процедуры. Для особо экстремальных посетителей, можно зимой место для загара превратить в специальную зону для ныряния в снег и расположить горячую ванну на улице — Японская баня «Офуро». Длина бассейна позволит заниматься любительским плаванием для поддержания иммунитета и здоровья членов семьи нашего заказчика.
Все зоны нашей бани очень удачно сообщаются между собой. Наш заказчик оценил предложенную планировку и остался очень доволен. Удобство и функционал – главные плюсы нашего предложения.
Вариант 1

Вариант 2 с открытой большой террасой

Вариант 3 с закрытой трассой в темном дереве

Внешняя архитектура банного комплекса исполнена в современном стиле. Модные вставки дерева на фасаде в сочетании с искусственным камнем и клинкерной плиткой на фоне белой декоративной штукатурки придают зданию стильный вид. Многоуровневая кровля повторяет зонирование планировочной структуры. Большие свесы кровли защищают фасад здания и формируют восприятие бани как добротного дома. Большие витражи дают много света и гармонируют в общем стиле.
Вариант 1

Вариант 2

Вариант 3 в темном дереве с гостевой

Вид на дровяник

Как удобно разместить барбекю или беседку под одной крышей в угловой бане с верандой?
Главный архитектор проекта совместно с заказчиком утвердили очень удачное решение – совмещенная беседка-барбекю с открытой площадкой для загара. Этот прием позволит отдыхать как под крышей, так и без — в зависимости от погоды. Открытая веранда может выполнять несколько функций. Например, её можно использовать как сцену. Вдруг компания детей захочет показать взрослым свою творческую нотку, и устроить показ спектакля – это легко можно сделать на открытой веранде. Она может стать центром притяжения всего комплекса!

В свою очередь, барбекю удобно расположена с торца корпуса с бассейном, под общей крышей. В ненастный вечер гости будут надежно защищены большими свесами кровли и уютным очагом печи со звуком потрескивающих дров.
Проект угловой бани – цены
Если Вам понравился наш проект современной бани в угловом расположении, мы предлагаем приобрести готовый эскизный проект. Архитектор выполнит привязку объекта на участке и Вам останется заказать у нас проект рабочих чертежей для возведения коробки бани. Или наши специалисты готовы разработатьпо Вашим пожеланиям.
Понравился проект бани? Приобретайте эскизный проект за 20 000 рублей. Бесплатно внесем корректировки в планировку без изменений 3д вида.
Проект угловой бани фото
В этом разделе статьи мы публикуем картинки банного комплекса с разных сторон.
Проект бани с верандой террасой и барбекю. Терраса и барбекю: планируем правильно
Планируя террасу, прежде всего необходимо учесть, какое направление ветра является основным, чтобы задание бани закрывало собой террасу. Кроме того, это позволит правильно разместить и барбекю, чтобы ветер относил дым и жар в сторону от отдыхающих. Если терраса будет служить для укрытия от солнечных лучей в жаркий летний день, то не стоит размещать её с южного направления. Или же наоборот – терраса с шезлонгом может стать отличным местом для приема солнечных ванн – здесь все зависит от пожеланий и вкусов хозяина. Кроме того, на выбор расположения террасы немало влияет и окружающий пейзаж – созерцание забора врядли добавит настроения на отдыхе, куда приятнее любоваться лесом, озером или благоустроенным ландшафтным дизайном.
Террасу можно расположить фронтально (т.е. вдоль фасада бани, рис. 1), сбоку (возле одной из стен), она может иметь угловое расположение (вдоль двух примыкающих стен) или опоясывающие (вдоль трех стан, иногда и полностью вокруг бани, если позволяет территория).

Рис. 1. Проект бани с фронтальным расположением террасы

Фронатльное расположение террасы

Проект стильной и лаконичной бани с террасой и барбекю
Если вы не планируете приглашать много людей, то с учетом установки барбекю (мангала), минимальная рекомендуемая площадь террасы – 7-8 м2. Но лучше начинать с 9-10 м2, тогда кроме столов и стульев на террасе можно будет поставить шезлонг, пару кресел, при этом человек, стоящий у барбекю, будет иметь достаточно свободного места для работы, а отдыхающим не будет докучать жар от печки и дым.
Хотя терраса в классическом понимании – это открытая площадка, для большего комфорта она имеет крышу для защиты от осадков и солнца. Это может быть продолжением крыши бани и быть выполнена из аналогичного кровельного материала, а можно накрыть террасу полупрозрачным поликарбонатом . Кроме того, непрозрачный навес будет создавать полумрак в самой бане, поэтому придется раньше включать свет.
Совет! Поликарбонатное покрытие особенно оправдано для больших по площади террас – нет необходимости сооружать массивное основание, легкая металлическая конструкция не будет загромождать пространство, оставаясь практически незаметной.
Для пола на террасе лучше всего подойдет деревянная доска или декинг. Конечно, можно положить тротуарную или керамическую плитку, но дерево будет смотреться уютнее. Природный камень используют в качестве покрытия на большой террасе

Природный камень станет эффектной отделкой для террасы
Для установки барбекю необходимо заложить фундамент отдельно, а для строительства используют специальный огнеупорный кирпич, при этом основание делают высотой порядка 70 см от уровня пола.
Совет! Для улучшения пожарной безопасности, вокруг барбекю лучше положить каменную (кафельную) плитку вместо деревянного покрытия – даже если на неё упадет искра, она не вызовет возгорание.
В передней стенке делают прямоугольную нишу, в которой можно будет хранить небольшой запас дров. Для отвода дыма для барбекю делают отдельный дымоход, который по высоте должен обеспечить эффективный отвод дыма от бани.


Проект небольшой бани с комнатой отдыха беседкой барбекю. Лучшие проекты бань с беседками и барбекю
Баня с беседкой под одной крышей: варианты исполнения
По типу постройки прибанные беседки могут быть:
- Открытые.
- Закрытые.
Первые – более легкие сооружения, имеющие совмещенный с банным пол и единую кровлю. Крыша ставится на опоры, которые при желании можно объединить бордюрами или соединить перилами. Таким образом удастся обозначить границы территории. Это наиболее выгодный в финансовом аспекте проект, поскольку в нем не предусматривается возведение капитальных перегородок и стен.
Строительство единого комплекса наиболее выгодно
Не будет здесь и остеклительных работ. Открытая беседка – это просто площадка под крышей. От ветра, в такой пристройке, не спастись, зато дождь отдыху помехой не будет. Глядя на вышесказанное становится понятно, что открытые конструкции – сезонная прерогатива.
Баня с открытой беседкой
Вторые – можно с уверенностью отнести к категории капитальных строений, так как они имеют настоящие стены и большие панорамные окна. Баня, помещенная с такой беседкой под одной крышей, будет выглядеть монолитным строением.
Баня с остекленной беседкой
Если же такую пристройку еще и оборудовать камином или мангалом, то, даже не будучи особо утепленной, она получит достаточно комфортную атмосферу. В ней будет приятно находиться даже в лютые морозы, не говоря уже о весенне-зимнем периоде.
Баня с уютной беседкой и камином
Беседка закрытого типа считается полноправной комнатой в планировке банного домика. Можно составить проект застройки таким образом, что пара стен веранды окажутся съемными или раздвижными, что позволит активно ее эксплуатировать и в летний период, легким движением руки преобразовывая ее в практически открытую конструкцию. Весьма практичный и универсальный вариант, о котором стоит задуматься всерьез.
Практичный вариант – беседка с съемными стеклами
Есть еще один компромиссный способ возведения бани с беседкой под одной крышей. В нем пристройка делается по полуоткрытому типу. В этом случае конструкции добавляют лишь две капитальные стены, преимущественно с тех сторон, откуда веют господствующие в этой местности ветра. Такой подход позволит чувствовать себя в беседке более комфортно, потому что сквознякам в ней не будет места. Можно сделать оригинальный шаг и возвести одну из стен вместе с встроенным в нее камином.
Баня с беседкой полуоткрытого типа
Полы в пристроенной веранде правильно собирать на лагах и делать их из натурального дерева, чтобы на ней всегда было тепло и сухо. Укладывая доски настила, нужно оставлять между ними набольшие зазоры. Задача этих зазоров – обеспечить в беседке вентиляцию и позволить беспрепятственно стечь на землю влаге с разгоряченных тел. Естественно, используемая доска должна быть идеально обработана и не ранить ноги занозами и острыми гранями.
Поле беседке рекомендуется делать из натурального дерева
Приоритетом выбора должна стать лиственница, подойдет и сосна, однако у древесины первого вида будет очень важное преимущество. Лиственница невероятно устойчива к гниению, хотя это не означает, что ее не нужно дополнительно обрабатывать антисептической водоотталкивающей пропиткой
Древесина лиственницы устойчива к гниению
Есть у лиственницы и не менее серьезный недостаток. Дело в том, что это дерево считается «холодным». В качестве альтернативы при строительстве можно использовать в качестве напольного настила террасную доску, сделанную из древесно-полимерного композита.
Террасная доска отличная альтернатива лиственнице
Практичным решением будет использование в обустройстве беседки легких алюминиевых профилей. При желании скрыться от любопытных глаз вместо стекол в них вставляют непрозрачный, однако легко пропускающий дневной свет, цветной сотовый поликарбонат.
Сотовый поликарбонат поможет скрыться от посторонних глаз
Защиту от надоедливо жужжащей мошкары обеспечат москитные сетки. Да, все эти приемы удорожат строительство, но расширят возможности эксплуатации беседки. Наверное, не стоит на них экономить.
Проект бани из кирпича 6х4. Баня 6х4 своими руками. Проекты и их реализация
Несмотря на внешнюю простоту этого здания, к его возведению следует подойти крайне ответственно. Особенно это касается выбора строительного материала. Опытные мастера советуют выбрать один из следующих вариантов:
- древесина (брус или бревно);
- каркас;
- кирпич;
- пеноблоки.
Каждый из материалов отличается преимуществами и недостатками. Кроме того, от выбора технологии строительства зависит скорость возведения здания и конечная стоимость проекта. Выбор материала необходимо сделать еще до начала проекта, благодаря этому можно внести коррективы в чертеж бани.

Баня из бревна или бруса
В современном строительстве используется более десятка материалов для возведения зданий, однако древесина занимает лидирующие позиции, как и много столетий назад.
Бревенчатая или брусовая баня обладает несколькими особенностями:
- Экологичность. Древесина – 100% натуральный материал, поэтому вредного воздействия на здоровье человека не оказывает. Кроме того, парные из бревен всегда были востребованы в русских деревнях.
- Скорость возведения. При использовании уже обработанных бревен или бруса можно построить баню в короткие сроки.
- Экономия на отделке. Баня из древесины выглядит эстетично и не нуждается в отделке.
Стоимость такого строительного материала относительно высока, однако баня 6х4 обладает малыми габаритами и не потребует больших финансовых затрат.
Если выбор сделан в пользу натуральной древесины, то для строительства парной лучше всего подходят осина, липа, ольха. Хвойные породы при нагревании выделяют смолу и источают навязчивый запах, который понравится не всем. Дуб при своей долговечности имеет недостатки – высокую стоимость и восприимчивость к повышенным температурам. Береза относительно недорогая, однако при контакте с водой она быстро теряет свои качества.
По техническим характеристикам брус и бревно различий не имеют. При этом бревно имеет округлую форму, а брус – квадратную. Это влияет на внешний вид здания. Кроме того, при использовании бруса достигается более точная подгонка, что позволяет сократить расходы.
Баня на основе каркаса
Каркасная парная может стать более дешевой альтернативой бане из бруса или бревна. Особенность такого строения заключается в том, что на фундаменте сначала устанавливают каркас из деревянных брусков. После этого основу обшивают “пирогом”, который состоит из внутренней и внешней обшивки, утеплителя, гидроизоляционного слоя.
Преимуществ у такой технологии несколько:
- Экономия на фундаменте. Малый вес строения позволяет возводить баню на сваях.
- Эффективное сохранение тепла. Такой пункт возможен только при хорошей теплоизоляции.
- Сжатые сроки строительства. Полностью построить парную 4 на 6 вместе с фундаментом можно за 3-4 дня.
- Низкая стоимость. По сравнению с древесиной каркасная технология требует меньше затрат.
Из недостатков можно назвать усадку каркаса. В этом случае на панелях обшивки появляются трещины и деформированные участки.

Кирпичная баня
Для возведения парных кирпич пользуется меньшим спросом, чем древесина, однако его особенности тоже стоит изучить. Преимуществ использования здесь несколько:
- Пожаробезопасность. Кирпич обладает повышенной огнеупорностью в сравнении с цельной древесиной и каркасными зданиями.
- Длительность эксплуатации. Кирпичные строения не требуют ремонта до 50 лет.
- Экологичность. В составе присутствуют безопасные для здоровья человека компоненты.
- Богатый выбор архитектурных решений. Бани 4х6 могут быть не только 4-угольными коробками, но и иметь сложную форму.
В качестве недостатков кирпичной кладки можно назвать следующие особенности:
- Повышенная теплоемкость. На обогрев такого помещения потребуется больше времени и ресурсов, чем на отапливание бревенчатого или каркасного строения.
- Поглощение влаги. Кирпичи являются гигроскопичным материалом, поэтому они нуждаются в повышенной изоляции.
- Необходимость укладки ленточного фундамента. Это повышает стоимость строительства.
- Высокая цена на кирпич.
Баня из блоков
Парная из пеноблоков хорошо подходит для строительства своими руками. Объяснить это можно сразу несколькими преимуществами этого строительного материала:
- Скорость возведения. 1 пеноблок по размерам равен 13 кирпичам, поэтому процесс кладки занимает меньше времени. При оптимальных размерах бани завершить строительство можно за 1-1,5 недели.
- Возможность пользоваться сразу после строительства. Блоки не дают усадку.
- Отсутствие вредных химикатов в составе.
- Энергоемкость. Помещения такого типа долгое время сохраняют тепло.
- Повышенная пожаробезопасность.
- Стойкость к появлению плесени и паразитов (в отличие от древесины).
Недостатком такого материала при строительстве бани является гигроскопичность. Для предотвращения впитывания влаги стены необходимо обрабатывать гидроизолятором.
Проект бани с бассейном и барбекю. Проект бани с бассейном, беседкой и барбекю

Проект:
Банный комплекс с бассейном, беседкой и барбекю
ТЭП:
Размеры комплекса в плане: 16,8 х 5,4 м; общая площадь: 70 м²; площадь бани: 22,29 м²
Цена:
15 000 руб.
Заказать проект:
tel: +7-953-763-3917 / e-mail: totalarch@mail.ru
| Размеры комплекса в плане | 16,8 х 5,4 м | |
| Площадь застройки | 90,70 м² | |
| Общая площадь комплекса (в осях) | 70 м² | |
| в том числе | ||
| Баня | общая площадь бани | 22,29 м² |
| комната отдыха | 12,82 м² | |
| парная | 4,10 м² | |
| моечная | 4,10 м² | |
| санузел | 1,27 м² | |
| Открытая терраса с бассейном | 24,00 м² | |
| Зона отдыха с камином-барбекю | 16,87 м² | |
| Высота комплекса (конёк) | 4.410 м | |
| Объём пиломатериалов | общий | 23.96 м³ |
| бревно оцилиндрованное | 20,2 м³ | |
| кровельные конструкции | 3,76 м³ |
Конструктивное решение: Банный комплекс представляет собой строение из оцилиндрованных брёвен диаметром 200 мм, перекрытое двускатной комбинированной кровлей. Баня и беседка имеют стропильную кровлю покрытую металлочерепицей (может быть использована и гибкая битумная черепица типа Tegola). Потолок помещения парной и моечной — наборный из пазированной рейки по направляющим, сверху проложен пароизоляцией и утеплителем. Полы бетонные с уклоном для слива и сливным отверстием, на пол уложена плитка на клею. При эксплуатации используются съёмные решетчатые настилы. Потолок комнаты отдыха утеплен минераловатным утеплителем, пол — половая рейка по лагам, утеплен минераловатным утеплителем.
Фундаменты — ленточные из монолитного железобетона. Цоколь поднят относительно отметки земли на 300 мм. Цоколь и пол открытой террасы и зоны отдыха облицовываются плитками керамогранита. Окна — с деревянными переплетами и заполнением двухкамерным стеклопакетом, декоративные решётки — из профилированного деревянного бруска. Часть кровли над открытой террасой с бассейном — акриловое или усиленное полированное витринное стекло с тонированной поверхностью (также может быть использован поликарбонат). Схема и узлы крепления стеклянной кровли разрабатываются отдельным проектом специализированной компанией-поставщиком в зависимости от выбранного типа остекления.
Инженерное обеспечение: Баня отапливается печью-каменкой, конструкция печи разрабатывается отдельным проектом, либо устанавливается печь промышленного изготовления. Рекомендуется устройство теплого пола. Водоснабжение — от существующих сетей. Канализация — выгребная яма. Электроснабжение предусматривается от существующих сетей.
Конструкция бассейна и печи-барбекю разрабатывается отдельным проектом специализированной организацией (в том случае, если не используются готовые промышленные решения). Под печь-барбекю предусмотрено бетонное основание. По причине климатических условий бассейн может быть заменён более функциональным и экономичным SPA-бассейном, под который проектом предусмотрено бетонное основание (также может быть использована акриловая ёмкость или надувной бассейн).
Проект реализован в 2010-15 гг. в Новосибирске, Москве, Торонто, Нижневартовске, Выборге.
Источник: https://postroivsesam.info/stati/proekt-bannogo-kompleksa-s-basseynom-proekt-bannogo-kompleksa