Бани с комнатой отдыха и спальней. Тонкости проектирования
- Бани с комнатой отдыха и спальней. Тонкости проектирования
- Одноэтажная баня с комнатой отдыха и спальней. Проекты одноэтажных бань из оцилиндрованного бревна или блоков (140 фото). Идеи для строительства с террасой и комнатой отдыха
- Проект бани с комнатой отдыха и террасой. Нюансы и особенности бани с террасой
- Баня с жилой комнатой и кухней. Жилая баня: проекты с фото
Бани с комнатой отдыха и спальней. Тонкости проектирования
Проектировать баню самостоятельно – увлекательное занятие. Для этого надо запастись бумагой, карандашом и линейкой.
Для семьи из 4-5 человек и нескольких гостей оптимальным размером считается баня 6х6 метров с мансардой . На первом этаже размещается прихожая, парная, душевая с туалетом, комната отдыха или гостиная. Комнату для отдыха можно дополнить кухней, а второй этаж отводят под досуг и дополнительные места для размещения гостей или членов семьи. Входная зона второго этажа площадью 18 метров млжет быть занята под студию или бильярдную. За ней размещаются две симметричные спальни или комнаты для детей по 9 кв. метров.
Функционал бани значительно расширяется, и для этого не надо строить большой дом. Компактная планировка с санузлом удовлетворяет потребности среднестатистической семьи в загородном отдыхе.

С террасой
Баня с террасой – прекрасный вариант для летних трапез на свежем воздухе после банных процедур. Мангал для шашлыка можно разместить на площадке перед баней или ввести гриль-зону в пространство веранды. Для этого размер террасы должен быть увеличен так, чтобы обеспечить свободный доступ к жаровне и избежать задымленности обеденного стола и окон.
Минимальное расстояние между печкой и столом должно быть не меньше 2 метров. Жаровню ставят готовую металлическую или строят каменный мангал из кирпича с дымоходом. Для такого мангала возводят отдельный фундамент, который учитывают на стадии проектирования.

Пол террасы лучше сделать из тротуарной плитки или песчаника, если терраса открытая. Для застекленной террасы применяют и деревянный пол . Остекление выполняют из раздвижных алюминиевых или пластиковых рам. Пластиковые рамы используют для теплого остекления. Легкие алюминиевые конструкции защищают от непогоды, но температура внутри закрытого пространства будет только на пару градусов выше, чем снаружи.
Баня с мангалом и панорамным остеклением на веранде станет местом притяжения домочадцев после трудовой недели.
С бассейном
Польза банных процедур многократно увеличится при обустройстве бассейна или купели в комнате отдыха. Бассейн располагают недалеко от душевой.
Чаша бассейна выполняется из бетона и отделывается плиткой.
Плитка подбирается в тон общей отделке комнаты отдыха. Восточный колорит придаст цветочный орнамент и мозаика. Для бани в русском стиле подойдут камень, кирпич и деревянные бортики.
В одноэтажных банях часто проектируют комплекс из террасы с купелью под навесом. Купель изготавливают из дерева и располагают на деревянном помосте на свежем воздухе .
Одноэтажная баня с комнатой отдыха и спальней. Проекты одноэтажных бань из оцилиндрованного бревна или блоков (140 фото). Идеи для строительства с террасой и комнатой отдыха
Чего не хватает на даче, если дом с гаражом стоит, сарай, кладовая и другие мелкие строения построены? Бани нет! Как без неё, где здоровья набираться после трудовой недели для работы в огороде либо саду? Но как её сделать: из бруса, бетона и кирпичей чтобы детям внуков послужила. Далее разберёмся.
Главное создать соответствующий проект одноэтажной или многоэтажной бани. Потом получить разрешение у соседей и местных властей, чтобы строение никому не мешало и всё было по закону.

В противном случае можно получить крупный штраф и испортить отношения с другими дачниками. Сразу видно дело не простое придётся постараться и напрячься чтобы его завершить и спокойно пить чай в комнате отдыха после парной в субботний вечер. Мы будем опираться на бюджетный вариант из дерева, поскольку большую часть работы можно выполнить самостоятельно и это не сильно скажется на семейном бюджете.
Один или несколько этажей
Это зависит от количества пользователей. Для маленькой семьи достаточно одноэтажной бани.

Если много пользователей: родители с обеих сторон, братья, сёстры другие родственники, тогда стоит подумать о проекте на 2 — 3 этажа. Но такое бывает редко.
Преимущества проекта одноэтажной бани:
- Умеренная стоимость в сравнении с многоэтажными проектами;
- Если используются свои руки с минимальной помощью со стороны, значительно быстрее строится в свободное время;
- Строение проще обслуживать и ремонтировать. Как это и почему? Например, древесина! Она не долговечна, требуется покрытие специальным составом. Через время, необходимо обновление слоя в противном случае перестанет защищать основной материал. Проблема в том, что работа со 2 этажом потребует развитые строительные навыки и специальные приспособления. И ещё это увеличит расходы на специальное средство;
- Внутренняя лестница для посещения 2 этажа занимает много свободного пространства. Слишком крутой вариант лестничной конструкции марша не особо комфортный вариант;
- Отопление 2 — 3 этажа потребует дополнительные затраты;
- Одноэтажное строение проще вписать в стиль дачного участка.

Что нужно для комфортности бани
В проекте нужно учитывать реперные точки, так называются ключевые моменты. Именно они влияют на комфортность строения.
Важные детали проекта:
- Цоколь высотой не менее 400 мм от земли. Необходимо для оптимальной гидроизоляции;
- Двухскатная крыша проще монтируется и обеспечивает высокий уровень сохранения тепла для внутреннего пространства. Гибкая битумная черепица считается оптимальным материалом на основе натуральной минеральной присыпки;
- Для увеличения защиты дерева от сточных вод изготавливаются свесы кровли с выступом за наружную стену на не менее 600 мм;
- Вместо предбанника и комнаты отдыха стоит соорудить веранду, поскольку благоустройство потребует меньше времени и средств;
- Лестница на крыльце бани создаётся на основе широкого пролёта и минимального угла, поскольку гарантируется комфорт для людей с любыми физическими недостатками: сколиоз, травмы ног, общая слабость от старости;
- Промежуточный тамбур сохраняет тепло. Здесь хранятся: дрова, веники, инвентарь для бани;
- Парилка требует 1 квадратного метра на человека. Выгоднее уменьшенное пространство, поскольку проще поддерживать требуемый уровень температуры и влажности. Как правило, расчёт идёт на не более 8 человек одновременно находящихся в бане;
- Соединение комнаты отдыха с минимальной кухней считается оптимальным подходом к эргономике. Можно интегрировать барную стойку либо зону барбекю с полноценным дымоходом;
- Стены изготавливаются из брёвен собственного изготовления с добавлением цилиндрового и классического бруса. Вспомогательные материалы, необходимы для доводочной работы связанной с монтажом узлов и различных элементов;
- Требуется чёткое распределение на зоны. Выделяется: отдел парилки, мойки, санузла, комнаты отдыха в союзе с минимальной кухней и хозяйственное помещение. Это необходимо для рационального использования отопления и обеспечения разных условий для комфортности;
- Оконные проёмы выгодны на высоте в 900 мм. Направлены на юг либо запад для обеспечения максимума естественного освещения.
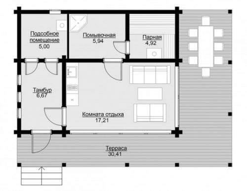
Проект бани с комнатой отдыха и террасой. Нюансы и особенности бани с террасой
Сегодня такие проекты, где вместе с баней идет терраса и зона для барбекю, довольно-таки востребованы. Классический банный проект должен включать в себя парилку, душевую и предбанник. Более того, там можно оборудовать раздевалку, террасу или беседку.
Согласно положению строительных норм и правил нужно придерживаться нескольких правил:
- Баня должна располагаться на расстоянии более трех метров от забора или любого ограждения.
- Если на участке находится колодец, баня должна располагаться на расстоянии не меньше восьми метров. Это делается для того, чтобы грунтовые воды ненароком не загрязнились.
- Из соображений о пожарной безопасности парилку нужно строить в отдалении от жилых помещений. Минимальное расстояние — 8 м.

Теперь обратите внимание на следующие нюансы:
- Продумать проект нужно задолго до начала строительства и закупки необходимых материалов. Определитесь с минимальным и максимальным количеством человек, которых должна будет вместить ваша постройка. Исходя из этого, можно начинать расчет габаритов будущего здания.
- Обязательно соблюдайте пропорции, отталкиваясь от размеров вашего участка.
- Пересмотрите функционал помещения. Когда вы собираетесь принимать там оздоровительные процедуры? Исключительно в теплое время года или круглогодично? От этого будет зависеть тип системы водоснабжения, а также количество комнат в самой постройке.
- Продумайте заранее — хотите ли вы, чтобы под одной крышей с баней размещался бассейн, комната отдыха или любое другое дополнительное помещение? Это существенно повлияет на будущий проект.
И самое главное — стиль и материалы. Исходя из первого, вы будете выбирать, из чего строить баню.
Баня с жилой комнатой и кухней. Жилая баня: проекты с фото
Жилая баня должна обеспечивать возможность комфортного пребывания в ней на постоянной основе как минимум для двух-трёх человек. Это может быть как круглогодичное проживание, так и сезонное. В первом случае прийдётся позаботиться эффективной системой отопления и обустроить качественную теплоизоляцию всех помещений. Если же постройка рассчитывается на пребывание в ней только в период тёплого времени года, теплозащита и отопление не потребуют значительного вложения сил и средств.
Данная баня имеет два этажа, первый из которых включает все требуемые для удобного проживания функциональные помещения, а также парное отделение. На втором мансардном уровне располагается просторная спальня, позволяющая разместить большую двухспальную кровать и ещё небольшой диван. Вместе со спальным местом внизу, на первом этаже, постройка вполне подходит для небольшой семьи из трех человек. А при необходимости может вместить ещё и одного гостя.
Постройка в своей основе имеет мелкозаглубленный ленточный фундамент с буронабивными сваями. Коробка стен изготовлена из деревянного каркаса, обшитого ОСП (OSB) плитами. Утепление по стенам выполнено из базальтовой ваты толщиной 150 мм, потолок первого этажа имеет теплозащитный слой 200 мм. Мансарда также утеплена для зимнего проживания.
Вот так выглядят все помещения внутри конструкции. Как видно, несмотря на компактные габариты, жилого пространства в бане достаточно много. Кухня снабжена барной стойкой, которая отгораживает пространство для приготовления пищи от удобного дивана.
На фото мансарды можно видеть вариант для проживания семьи с маленьким ребёнком.
Парная отделана вагонкой в классическом стиле и снабжена деревянной дверью со стеклянной вставкой. Разогревает небольшое помещение печь от завода Теплодар под названием Сибирь 20 ЛК. Выходя из парилки можно сразу пройти в санузел, где есть возможность зайти в душевую кабинку и охладиться после банных процедур.
Постройка используется в течение всего года и имеет подвод воды от централизованной системы, питающейся из одной скважины, установленной на весь посёлок. Баню таких габаритов с успехом отапливает котёл мощностью 3 кВт, а нагрев воды для бытовых нужд осуществляется электрическим водонагревателем.
Каркасная жилая баня 6,5х6,5 м для большой семьи
Такой проект будет отличным выбором для семьи из нескольких человек, которая собирается проживать в бане с возможностью иметь максимально комфортные жилищные условия. Три спальни на мансардном уровне, плюс жилые комнаты нижнего яруса легко вместят семью из четырех человек. А при необходимости без проблем обеспечат дополнительное пространство, которого хватит на размещение друзей или близких, прибывших ненадолго погостить.
Размеры свободной площади первого этажа позволяют в столовой размерами 4х2,7 м установить кухонную мебель с габаритами, недоступными в большинстве современных квартир. Удобство готовки для хозяйки дома гарантировано, а размеры столешниц способны вместить любое количество современной бытовой техники. К кухне примыкает большая комната (зал) 4х5 метров.
Парилка 2.х2.7 метра выходит в небольшую помывочную 2,7х1,6 м, где установлена удобная душевая кабина.