Парная совмещенная с моечной. Плюсы и минусы совмещения
- Парная совмещенная с моечной. Плюсы и минусы совмещения
- Баня с моечной. Нужно ли объединять парную и помывочную в бане
- Баня с парилкой и помывочной. Варианты планировок
- Как сделать баню с отдельной парилкой. Проекты бань с парилкой и мойкой
- Проект бани с моечной. Баня с парилкой и мойкой: особенности планировки бань размером 4х6, 3х4, 5х5, 3х6, 3х5 с совмещённым или раздельным интерьером
- Окно для парилки. Окно в парилке
Парная совмещенная с моечной. Плюсы и минусы совмещения
Правильной будет та планировка помывочной, которая учитывает необходимые нормы и при этом, наиболее удобна для владельцев бани. Помывочная может быть сделана как отдельным помещением, так совмещенная с парилкой.
Фото планировки и оформления парилки совмещенной с помывочной
Владельцы выбирают совмещенный вариант:
- экономя площадь помещения;
- экономя затраты на постройку;
- решая вопрос одновременного обогрева помещений разного назначения.
Специалисты рекомендуют даже небольшие помещения разделять перегородками.
- Отделение помывочной позволит создать идеальные условия для каждого из помещений. В парной будет устойчивая температура, а в помывочной не будет слишком горячо. Кроме того, если мойка совмещена с парной – это может быть небезопасно для здоровья. Процесс мытья в горячей парилке может привести к проблемам с давлением и сердцем. А повышенная влажность в процессе посещения парной может негативно влиять на состояние легких.
Вариант планировки бани и душевой
- Парную лучше защитить от излишней влажности, которая неизменно сопровождает процесс мытья. Особенно это правило необходимо банным комплексам финского типа, в которых конструкция печи электрическая. Для парилки не сухого типа влажность является регулятором температуры.
- Несмотря на то, что баня – место отдыха и расслабления, стоит помнить, что это помещение повышенной опасности. Именно объединение парилки и помывочной часто становиться причиной бытовых травм. В отличие от статичного парения, мытье представляет собой динамический процесс и требует достаточной площади. Печь, расположенная в душевом или моечном отделении должна быть безопасной. Это касается и тех планировок, при которых парилка находится в отдельной комнате, но печь топится из душевой. Если это металлическая конструкция, следует уберечь пользователей от случайного касания и ожогов. Для этого все горячие элементы следует обложить кирпичом.
Баня с моечной. Нужно ли объединять парную и помывочную в бане
Вполне возможны варианты как объединения этих помещений, так и их обустройство по отдельности.
Владельцы бани предпочитают совмещенный вариант для:
- оптимального использования площади;
- снижения расходов на строительство;
- объединения разноплановых по функционалу помещений с целью одновременного обогрева.
Тем не менее, многие эксперты советуют использовать перегородки для разделения даже маленьких по площади помещений.

Устройство помывочной в бане в виде самостоятельного отделения весьма выгодно. В парилке будет легче поддерживать стабильную температуру, а в комнате для мытья не будет чрезмерно жарко. Кроме того, совмещенный вариант несет определённую угрозу здоровью. Слишком высокая температура создает проблемы сердечно-сосудистой системе, а повышение влажности в парной вредно для лёгких.
Парилка должна быть защищена от излишней влаги. Особенно это актуально для саун с электрической печью. В парной бане влажность регулирует температуру.
Хотя сауна и считается местом для отдыха и релаксации, необходимо четко представлять, что это помещение относится к категории повышенной опасности. И чаще всего именно в банях с объединенной помывочной и парилкой происходит большинство травм. Мытье является динамичным процессом, и для его реализации необходимо достаточное пространство. Конструкция печи бани должна исключать риск получения повреждений.
Это правило распространяется и на те планировки, в которых парилки расположены в отдельном помещении, но топка осуществляется из душевой комнаты. Металлические печи должны иметь защиту от нанесения ожогов. Чаще всего для этих целей используют кирпичную кладку.
Если по каким-то причинам разместить в бане помывочную и парилку в разных помещениях нельзя, то можно поступить следующим образом:
- предусмотреть расположение зоны парной над помывочной, которая будет на нижнем уровне;
- разделить единое пространство легкой перегородкой, оставив широкий проём;
- оборудовать помывочную в отдельном небольшом отделении;
- воспользоваться готовыми душевыми кабинками промышленного производства.
В связи с неоспоримыми преимуществами раздельного размещения следует все же еще на стадии проектирования или капитальной реконструкции предусмотреть такую возможность.
Баня с парилкой и помывочной. Варианты планировок
Организация пространства в банном комплексе зависит от площади постройки и ваших пожеланий к функционалу. Рассмотрим фото планировок бани внутри.
Баня с парилкой и помывочной. Варианты планировок
Организация пространства в банном комплексе зависит от площади постройки и ваших пожеланий к функционалу. Рассмотрим фото планировок бани внутри.
Планировка 1: классическая
В этом варианте парилка и помывочная отделены друг от друга, что создает комфортное пространство для отдыха и гигиеничности.
Планировка 2: открытый план
В этом варианте парилка и помывочная соединены, что создает ощущение простора и свободы. Это идеальный выбор для тех, кто ценит функциональность и эстетику.
Планировка 3: линейная
В этом варианте парилка и помывочная расположены вдоль стены, что создает удобное и функциональное пространство для использования.
Планировка 4: угловая
В этом варианте парилка и помывочная расположены в углу, что создает уютное и комфортное пространство для отдыха.
Выберите планировку, которая лучше всего соответствует вашим потребностям и пожеланиям!
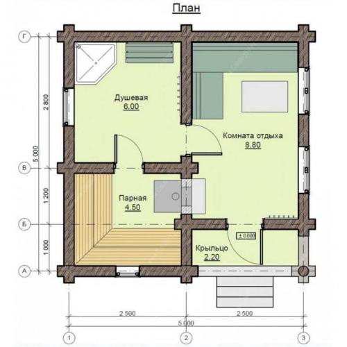
- Вариант №1 — план небольшого домика 4х5 м. 20 квадратов вполне достаточно, чтобы разместить самые необходимые зоны: предбанник, комнату отдыха, мойку и парилку. Последние две логично располагать рядом, а гостиную — ближе ко входу.
- Вариант №2 — домик площадью 35 квадратных метров. Здесь к стандартному набору зон добавилась мастерская. Для нее предусмотрели отдельный вход, чтобы минимизировать количество мусора. В остальной части разместились тамбур и раздевалка, санузел, комната, парная и помывочная.
- Вариант №3 — постройка с фундаментом 6х6 м. Квадратная форма определила спиральное расположение функциональных зон: тамбур, за ним — душевая с санузлом и парилка, а оставшееся пространство занимает мини-гостиная с кухней.
- Вариант №1 — банный домик площадью 43 кв. м. Этого метража вполне достаточно, чтобы выделить все необходимые для полноценного отдыха помещения: просторную гостиную-столовую и мини-кухню, сауну, помывочную с купелью, санузел и даже отдельный. Перед входом есть, на которой отведено место под дрова.
- Вариант №2 — баня площадью 53 кв м. Здесь выделены все те же стандартные зоны, но, помимо них, организовали небольшой закрытый бассейн. Он расположен так, что в него удобно попасть и из парной, и из душевой, и из комнаты отдыха. При входе организована компактная прихожая-предбанник с вешалками для одежды и банкеткой.
- Вариант №3 — план банного домика 8,7х7,5 м. Треть всей площади здесь занимает комната отдыха. В противоположной части постройки разместили парную с душевой, а соединяет две эти зоны большой холл. При входе организована мини-терраса.
Как сделать баню с отдельной парилкой. Проекты бань с парилкой и мойкой
Банный проект, это то, с чего всё начинается: вначале проект, затем выбор материалов, после этого — строительство. В проекте учитываются следующие нюансы:
- будущий метраж конструкции;
- совмещённое или раздельное положение мойки и парной;
- будут ли присутствовать предбанник и комната отдыха;
- предполагается ли наличие санузла и душевой кабины;
- количество человек, которые будут пользоваться конструкцией.
Для точного проекта необходимо сделать разметку участка и проверить расстояние по диагонали между углами — равные размеры дают прямые углы.

Правильная планировка маленькой бани с парилкой и мойкой сделает её не менее комфортабельной, чем могла бы быть большая. Конечно, пользоваться одновременно такой крошкой сможет не более 2 – 3 человек, но для небольшой семьи этого хватит. При желании в небольшой баньке сможет помыться намного больше людей. Придётся делать это по очереди, но ничего страшного — в старину большие семьи так и поступали.

Минимальные размеры предполагают совмещение парной с помывочной, однако встречаются проекты бань 3х3 , где парная и душевая разделены перегородкой. При этом можно сократить размер предбанника, где поставить небольшой стол и лавку. И всё же оптимальным решением будет совмещение внутреннего пространства для мытья.
При планировке пространства внутри необходимо помнить о правильном режиме для русской бани и для сауны. От этого тоже зависит принцип проектирования.
Если сократить размеры предбанника до минимума, то расположение парной и мойки в одном помещении становится не только оправданным, но и довольно удобным.
Проект бани с моечной. Баня с парилкой и мойкой: особенности планировки бань размером 4х6, 3х4, 5х5, 3х6, 3х5 с совмещённым или раздельным интерьером
Парилка и мойка являются основными помещениями в бане. Остальные помещения являются дополнительными, но не менее необходимыми, чем парилка и комната для охлаждающих процедур.
В большой бане легко разместить все эти помещения, а в небольшом пространстве хозяину часто приходится совмещать или делить все необходимые помещения на небольшие изолированные комнаты.

Необходимые комнаты в бане
Для полноценного и комфортного отдыха, каждая баня должна включать в себя следующие помещения:
- Парилку;
- Комнату для охлаждающих процедур;
- Туалетную комнату;
- Раздевалку;
- Комнату отдыха.

Парилка является помещением в котором обязательно должна быть печь и полки для того, чтобы можно было посидеть в парной. Комната для охлаждающих процедур должна быть оборудована душем или бочкой с холодной водой.
В этом помещении можно разместить бассейн. Туалетная комната должна быть оборудована унитазом. В этой комнате можно установить раковину. Раздевалка в бане необходима для хранения верхней одежды в то время, пока гости будут принимать банные процедуры.

Комната отдыха зачастую в небольших банях совмещается с раздевалкой и оборудуется столом и стулья или лавочками для сиденья.

Разнообразие проектов бани с парилкой
Любое строительство начинается с выбора проекта. В наши дни существует великое множество проектов бань с различными параметрами. Поэтому владельцу приусадебного участка остается только выбрать оптимальный исходя из личных предпочтений и возможностей.

Выбирая подходящий проект нужно учитывать функционал. Если банная постройка необходима только на летнее время, то можно выбрать самый простой проект бани с парной, моечной и комнатой отдыха.
- Баню для круглогодичного использования стоит оборудовать туалетной комнатой, раздевалкой — местом для верхней одежды.
- Кроме того существуют проекты бань с мансардой, где помещения для водных процедур оборудуются на первом этаже, а мансарда используется в качестве комнаты отдыха.
- А также, проекты бань с террасой, которая может быть использована как место для отдыха в теплое время года.

Терраса может быть застекленной. В этом случае, ее можно использовать для отдыха в зимнее время года. Бани с террасой способствуют экономии денежных средств на теплоизоляции и внутренней отделке.
Разграничение банного пространства на зоне зависит от целей использования бани:
- Если баня необходима для семейного пребывания, то парная и моечная должны быть просторными, а комната отдыха может быть совмещенной с раздевалкой;
- Если планируется использовать баню для отдыха в кругу друзей, то комнату отдыха следует сделать просторной, а парилку небольшой — для посещения нескольких человек одновременно. Комнату для банных процедур можно оборудовать только душем или небольшим бассейном и душем.

Важные нюансы при возведении бани
- Проектировать баню следует с учетом будущего ее использования.
- Составляя проект следует учесть климатические условия данной местности.
- Принять во внимание финансовые возможности, геологические особенности участка земли и его размер.
- Определить количество человек, которые будут посещать баню.
- В какое время года преимущественно будет использоваться банное помещение.
- Рядом с парилкой может находится душевая кабина.
- В парилке может стоять большая бочка с холодной водой для охлаждающих процедур.
- Парилка и моечная могут отделяться стеклянной перегородкой.

Учитывая все эти нюансы можно составить проект бани и рассчитать смету.

Правильная планировка бани с парилкой и мойкой
Комфортность пребывания в бане зависит от ее планировки. Например, предбанник защитит другие помещения от попадания в них холодного воздуха с улицы. Здесь можно сделать раздевалку, оборудовав ее крючками для одежды и лавочкой.

Как правило следующим помещением является комната отдыха, в которой размещается стол и стулья для того, чтобы можно было посидеть после банных процедур.

Далее располагается помещение для охлаждающих процедур и парная. По расположению этих помещений есть различные вариации.

Во-первых, мойка и парная могут быть полностью изолированы друг от друга, а могут совмещаться:

Во-вторых, комната для охлаждающих процедур может быть оборудована бассейном, душем, кадкой с холодной водой, лавочкой. В моечной можно установить унитаз для экономии пространства.

Совмещение парилки и мойки
Совмещение парной и моечной является вынужденной мерой, если для бани невозможно выделить большой участок земли. Как правило размер таких бань составляет от 9-ти до 16-ти квадратных метров.
Окно для парилки. Окно в парилке
Это главное окно в бане работает в жесточайших условиях и требует подробного разбора. Температура в парилке стартует от 50-60°, а некоторые банные экстремалы разогревают ее до 120°С при влажности 70-90%.
Чтобы не думать над тем, какое окно сделать в парной бани, его можно не делать вообще.
Но, тогда придется хорошенько подумать над организацией вентиляции и проветривания парной после банных процедур.
Фото: окно в парной бани должно быть термо- и влагоустойчивым, © depositphotos Какой профиль для окон в баню выбираем?
Пластиковые окна в парилке не лучший выбор. Высокая температура внутри парной может привести как минимум к сильной деформации профиля, максимум – к размягчению пластика, которое невозможно будет устранить. Поэтому, не рискуем и пластик оставляем для душевой и предбанника. Кстати, разговоры про выделение пластиком вредных веществ при нагревании в бане – правда. Но при нагревании больше 170°С. А такую температуру в бане не выдержат даже сталевары.
Алюминий вполне способен выдержать температурную нагрузку, но это металл и он сам сильно нагревается. Поэтому можно обжечься, случайно дотронувшись до окна. Можно установить алюминиевые окна в других помещениях бани, но это дороже пластика в 2-3 раза.
Идеальный выбор в парилку – деревянное окно. Не потому, что оно «дышит» и «ароматизирует» воздух. Ароматов дерева в бане из дерева более чем достаточно, а слухи про «дыхание» деревянных окон сильно преувеличены.
Просто дерево в бане не нагревается, как алюминий и не плавится, как пластик. Да и в общий стиль бани вписывается лучше всего.
Есть одно «Но» – чтобы деревянное окно в парной не перекосилось и не разбухло, оно должно быть из клееного бруса (его еще называют евробрусом). Окна из цельного бруса, которые продают на рынках, не смогут сохранить форму, поэтому этот вариант не рассматриваем совсем.
Какую древесину выбрать для окна в парилку?
Предпочтительнее всего ольха и липа. Но из этих пород не делают современные окна из евробруса.
Моя рекомендация – дуб или лиственница, они хорошо выдерживают высокую влажность. Сосна при высокой температуре может выделять смолу, поэтому ее оставляю на самый крайний случай.
Для защиты деревянного окна в парной лучше отказаться от окрашивания укрывными красками. При повышенной влажности краска долго не протянет. Оптимальное решение – восковые защитные покрытия от известных брендов. Они прекрасно защищают дерево и не скрывают его естественную красоту.
Еще один важный элемент, на который стоит обратить внимание при выборе окна в баню – уплотнитель. Он отвечает за герметичность окна. Для окна в парилке подойдут силиконовые уплотнители, только они способны выдержать температуру около 100°С. Все остальные быстро выйдут из строя.
Какой стеклопакет выбрать для окон в баню?
Окно в парилке чаще всего располагается высоко, в зоне самой высокой температуры. В этих условиях стекло постоянно находится в зоне риска – большая разница температур внутри и снаружи может привести к термошоку и разрушению стекла.
Отсюда правило – все стекла в стеклопакете для бани должны быть закаленными. После термической обработки стекло выдерживает температуру до 800° C и приобретает повышенную прочность, в 5-6 раз выше, чем у обычного.
Отсюда правило – все стекла в стеклопакете должны быть закаленными. После термической обработки стекло выдерживает температуру до 800° C и приобретает повышенную прочность, в 5-6 раз выше, чем у обычного. |
Фото: если закаленное стекло разобьется в бане, то рассыплется на мелкие частицы без острых краев, об которые невозможно порезаться, © depositphotos Особого внимания требуют панорамные стеклопакеты, от пола до потолка, в парной. Да, сейчас панорамные окна часто встречаются не только в доме. Их особенность в том, что на одном стекле будет ярко выражен температурный перепад – в парилке разница температур на уровне пола и под потолком может достигать 20°C.
Толщина такого стекла должна быть не меньше 6мм. Закалка обязательна.
И снова большое «Но» – высокая влажность в бане неминуемо приведет к образованию конденсата на стекле. И если для небольшого окна для проветривания это не критично, то смысл панорамного стекла в парилке теряется напрочь – потоки воды на стекле не оставят возможности любоваться пейзажем за окном, греясь на полке.
Выход – стеклопакет с подогревом. Это сложный в реализации вариант, но он стоит потраченных средств и времени.
Фурнитура для окон в бане
Оконная фурнитура во влажной среде с большими перепадами температуры быстро подвергается коррозии. Особенно это заметно в местах соединения и трения элементов.
Производители фурнитуры разрабатывают специальные решения для жестких условий эксплуатации. Например, новая фурнитура Roto NX*, защищена инновационным покрытием RotoSil Level 6, не имеющим аналогов по устойчивости к негативным воздействиям. Производитель гарантирует, что устойчивость покрытия выше 5-го класса антикоррозионной стойкости, а фурнитура не заржавеет в течении 10 лет.
Для окон в бане я очень рекомендую скрытые петли.