План бани 4х4 мойка и парилка отдельно. Баня 4 на 4 планировка внутри
- План бани 4х4 мойка и парилка отдельно. Баня 4 на 4 планировка внутри
- Баня с парилкой и помывочной. Проекты
- Как сделать баню с отдельной парилкой. Баня с парилкой и мойкой: особенности планировки бань размером 4х6, 3х4, 5х5, 3х6, 3х5 с совмещённым или раздельным интерьером
- Проект бани 3 н. Какой проект выбрать
- Планировка парилки 2х3. Какую баню разместить на своем участке
- Баня с отдельной парилкой и мойкой. Баня с парилкой и мойкой в одном помещении: преимущества и недостатки
- Проект бан. 5 н. Баня 3,5 х 5
- Планировка парилки в бане. Помещения в бане
План бани 4х4 мойка и парилка отдельно. Баня 4 на 4 планировка внутри
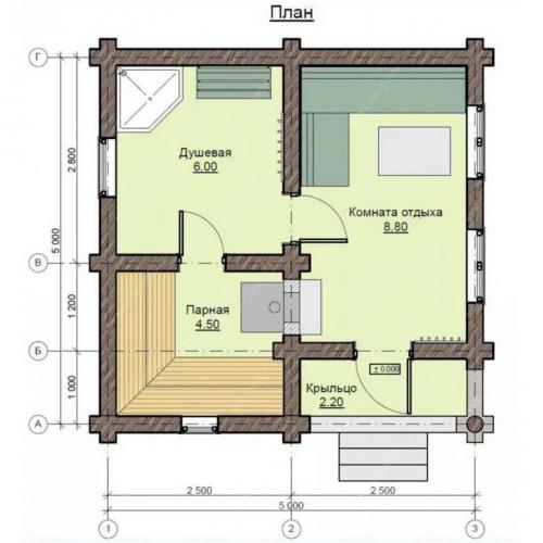
Компактная баня 4х4 м – прекрасное решение для небольшого участка. Даже в условиях столь скромной по своим габаритам конструкции, можно вполне удачно расположить все необходимые помещения, получив в результате полноценную, функциональную и удобную баню.

Баня внутри
Ознакомившись с нижеизложенной информацией, вы узнаете о наиболее оптимальных вариантах расположения внутренних помещений бани 4х4 м, выборе рациональных габаритов каждого из них, особенностях внутренней отделки, а также дополнительных сопутствующих нюансах.

Баня 4х4
Общие рекомендации по планированию бани
Составление проекта любой бани, и строение размерами 4х4 м не является исключением, начинается с обозначения расположения наиболее главных помещений рассматриваемого строения, т.е. парилки, помывочной комнаты и предбанника.
Планировка бани
Планировка баниВажно! Если баня 4 на 4 будет строиться из бревен (а именно этот материал наиболее часто используется при возведении конструкций столь скромных размеров), учитывайте, что внутреннее пространство в результате будет несколько меньше по сравнению с наружным. В процессе выполнения расчетов, отнимите от внутренней стороны используемых бревен толщину бревна (в случае срубки «в лапу»), либо же добавьте к этой толщине дополнительные 250 мм (в случае срубки «в чашу»). Это позволит вам максимально правильно выполнить требуемые расчеты.
К примеру, если баня строится из бревен длиной 400 см и диаметром 24 см, срубленных «в чашу», внутренние размеры подобного строения не будут превышать 3х3 м. Учитывайте эти моменты заранее, грамотно подбирая размеры бревен и метод врубки, ориентируясь на желаемые внутренние габариты бани.

Рубка бревен

Метод рубки «в чашу» или как ее еще называют рубка «в обло»
Составляя проект, помните о нижеперечисленных важных нюансах:
- планирование маленькой бани целесообразнее всего выполнять так: внутреннее пространство строения делится на 2 одинаковые части. В первой обустраивается комната отдыха. Вторая часть снова делится надвое – под парилку и санузел/помывочную. Как правило, парилку делают большего размера, чем моечную комнату, но можно выдерживать и одинаковые габариты – как удобнее владельцу;
- для экономии пространства в парилке широко практикуется обустройство печи около стены в комнате отдыха. В целом же отопительный агрегат можно установить в любом помещении. Главное, чтобы были выдержаны требования противопожарной безопасности, обеспечена необходимая эффективность обогрева и, разумеется, учтены личные пожелания хозяина;Пример установки металлической печи
Пример установки металлической печи в бане
Как установить печь
Установка печи с выводом топочной дверцы в предбанник - в планировку бани настоятельно рекомендуется включить тамбур – это позволит комфортно пользоваться парилкой в холодное время года. В тамбуре же можно будет установить печь, чтобы сэкономить пространство других помещений.
Баня с парилкой и помывочной. Проекты
Традиционно, в бане должно быть две комнаты: предбанник и непосредственно парилка. Они могут быть объединены или быть двумя разными комнатами. Однако на этом варианты не заканчиваются. Как и при строительстве дома, существует огромное количество проектов, которые могут вдохновить вас.
Баня может быть пристроена к частному дому в городе или расположена на дачном участке. Может являться отдельным зданием или быть частью дома, его отдельной комнатой или, например, небольшим угловым помещением (наравне с ванной и санузлом).
Итак, с традиционной двухкомнатной баней разобрались. Дальше – интереснее.
Баня с бассейном считается целым банным комплексом. Построить его не так сложно, как кажется на первый взгляд. В продаже имеется огромное количество чаш под бассейны самых разных форм и размеров. Расположить бассейн можно в парной, обязательно отгородив его стеной от парилки, или присоединить к основному помещению бани в качестве ещё одной комнаты, оформить его стеклянными стенами или навесить сверху солидную крышу, или поликарбонатный козырёк. Главное – помните, что парилку и бассейн обязательно должна разделять стена, чтобы влажный теплый воздух и воздух комнатной температуры не конфликтовали.
В оформлении бассейна также нет каких-либо сильных ограничений. Вы можете оформить дно мозаичной плиткой, внутренней подсветкой или даже разместить там какие-нибудь водоросли.
Если вы относите себя к любителям всего нового и оригинального, советуем присмотреться к новинке – каскадному бассейну, который многие называют просто водопадом. Выглядит это так: благодаря замкнутой системе циркуляции, вода подаётся сверху вниз, затем по трубам снова поднимается вверх и так, водопадом, бесконечно падает вниз. Размеры этого бассейна будут не такими уж огромными, но выглядеть он будет эффектно, особенно если в качестве декора присмотреть камни или 3D-изображения с фотографиями морских пейзажей.
Пристроить каскадный бассейн к уже готовой бане не представляется возможным. Его следует планировать ещё на этапе проектирования, ведь он оказывает серьёзное влияние на водоснабжение, систему вентиляции, а также нагрузку на электросеть.
А вот если душа требует размаха, то двухэтажная баня будет лучшим вариантом. Зонирование в таком случае происходит следующим образом: на первом этаже парилка, моечная, котельная, при желании бассейн и хозяйственные помещения. На втором – жилые комнаты, комната отдыха, душевая, столовая, библиотека, бильярдная или бар.
Второй этаж можно смело назвать развлекательным, что особенно актуально, если вы привыкли звать гостей в баню и собираться здесь большими компаниями. Более того, зачастую из таких бань делают настоящие жилые дома или проводят здесь весь дачный период.
Определённую сложность в случае с двухэтажной баней может представить лестница. На самом деле, правильно её будет ставить в комнате отдыха или в раздевалке, дабы влага не попала в верхние помещения. Ни в коем случае не располагайте лестницу на террасе или улице. Не нужно также, чтобы она шла через балкон, ведь зимой подниматься по холоду будет не очень-то приятно.
Бани могут разительно отличаться по размеру: 5х5, 5х6, 4х7, 2х2, 6х5, 8х9, 2х2, 6х8, 8х8, 6х10 и так далее. В общем и целом, размер бани влияет только на то, какое количество человек там должно находиться одновременно, и сколько комнат вы хотите там иметь. Вы не обязаны строить свою баню по примеру общественной – небольшой, маленькой и узкой. Баня – это место отдыха, расслабления, и она должна быть комфортна именно для вас.
Как сделать баню с отдельной парилкой. Баня с парилкой и мойкой: особенности планировки бань размером 4х6, 3х4, 5х5, 3х6, 3х5 с совмещённым или раздельным интерьером
Парилка и мойка являются основными помещениями в бане. Остальные помещения являются дополнительными, но не менее необходимыми, чем парилка и комната для охлаждающих процедур.
В большой бане легко разместить все эти помещения, а в небольшом пространстве хозяину часто приходится совмещать или делить все необходимые помещения на небольшие изолированные комнаты.

Необходимые комнаты в бане
Для полноценного и комфортного отдыха, каждая баня должна включать в себя следующие помещения:
- Парилку;
- Комнату для охлаждающих процедур;
- Туалетную комнату;
- Раздевалку;
- Комнату отдыха.

Парилка является помещением в котором обязательно должна быть печь и полки для того, чтобы можно было посидеть в парной. Комната для охлаждающих процедур должна быть оборудована душем или бочкой с холодной водой.
В этом помещении можно разместить бассейн. Туалетная комната должна быть оборудована унитазом. В этой комнате можно установить раковину. Раздевалка в бане необходима для хранения верхней одежды в то время, пока гости будут принимать банные процедуры.

Комната отдыха зачастую в небольших банях совмещается с раздевалкой и оборудуется столом и стулья или лавочками для сиденья.

Разнообразие проектов бани с парилкой
Любое строительство начинается с выбора проекта. В наши дни существует великое множество проектов бань с различными параметрами. Поэтому владельцу приусадебного участка остается только выбрать оптимальный исходя из личных предпочтений и возможностей.

Выбирая подходящий проект нужно учитывать функционал. Если банная постройка необходима только на летнее время, то можно выбрать самый простой проект бани с парной, моечной и комнатой отдыха.
- Баню для круглогодичного использования стоит оборудовать туалетной комнатой, раздевалкой — местом для верхней одежды.
- Кроме того существуют проекты бань с мансардой, где помещения для водных процедур оборудуются на первом этаже, а мансарда используется в качестве комнаты отдыха.
- А также, проекты бань с террасой, которая может быть использована как место для отдыха в теплое время года.

Терраса может быть застекленной. В этом случае, ее можно использовать для отдыха в зимнее время года. Бани с террасой способствуют экономии денежных средств на теплоизоляции и внутренней отделке.
Разграничение банного пространства на зоне зависит от целей использования бани:
- Если баня необходима для семейного пребывания, то парная и моечная должны быть просторными, а комната отдыха может быть совмещенной с раздевалкой;
- Если планируется использовать баню для отдыха в кругу друзей, то комнату отдыха следует сделать просторной, а парилку небольшой — для посещения нескольких человек одновременно. Комнату для банных процедур можно оборудовать только душем или небольшим бассейном и душем.

Важные нюансы при возведении бани
- Проектировать баню следует с учетом будущего ее использования.
- Составляя проект следует учесть климатические условия данной местности.
- Принять во внимание финансовые возможности, геологические особенности участка земли и его размер.
- Определить количество человек, которые будут посещать баню.
- В какое время года преимущественно будет использоваться банное помещение.
- Рядом с парилкой может находится душевая кабина.
- В парилке может стоять большая бочка с холодной водой для охлаждающих процедур.
- Парилка и моечная могут отделяться стеклянной перегородкой.

Учитывая все эти нюансы можно составить проект бани и рассчитать смету.

Правильная планировка бани с парилкой и мойкой
Комфортность пребывания в бане зависит от ее планировки. Например, предбанник защитит другие помещения от попадания в них холодного воздуха с улицы. Здесь можно сделать раздевалку, оборудовав ее крючками для одежды и лавочкой.

Как правило следующим помещением является комната отдыха, в которой размещается стол и стулья для того, чтобы можно было посидеть после банных процедур.

Далее располагается помещение для охлаждающих процедур и парная. По расположению этих помещений есть различные вариации.

Во-первых, мойка и парная могут быть полностью изолированы друг от друга, а могут совмещаться:

Во-вторых, комната для охлаждающих процедур может быть оборудована бассейном, душем, кадкой с холодной водой, лавочкой. В моечной можно установить унитаз для экономии пространства.

Совмещение парилки и мойки
Совмещение парной и моечной является вынужденной мерой, если для бани невозможно выделить большой участок земли. Как правило размер таких бань составляет от 9-ти до 16-ти квадратных метров.
Проект бани 3 н. Какой проект выбрать
В эру технологий и интернета каждый человек может подобрать проект, который подойдет ему идеально. В большинстве случаев они разнятся лишь внутренней планировкой. Первым вопросом, который стоит решить при выборе плана, является совмещенное или раздельное размещение парилки и мойки. Рассмотрим оба варианта.
На рисунке выше можно увидеть планировку бани размером 3 на 5 с совместной парилкой и мойкой. Общая площадь застройки составляет 15 м/2, размер парной и предбанника составляет 9 и 6 кв. м.
В парилке присутствуют:
- душевая зона с водоотводом;
- печь с баком для горячей воды;
- двухъярусный полок.
По желанию можно добавить переносные лавки. Предбанник (он же комната отдыха) вмещает в себя комплект из стола и скамей. В него же входит топка печи.
В пользу объединения парилки и моечной говорят два факта:
- при небольшом объеме пространства температура и влажность меняются слишком резко, что негативно сказывается на самочувствии людей;
- поры на коже раскрываются под воздействием высокой температуры, в парилке и вновь закрываются от низкой температуры моечной; каждый следующий заход вынуждает вновь распаривать кожу, при объединении этих двух комнат остывания кожи не происходит.
Теперь рассмотрим вариант с отдельно расположенной мойкой и парилкой. Предбанник занимает 9 кв. м, парилка составляет 4 кв. м, а мойка занимает 2 квадратных метра. Размер у этого проекта такой же, как и у предыдущего (3×5 м), но комнат здесь уже три. По желанию оба варианта можно модифицировать, сдвинув стены в ту или иную сторону.
Планировка парилки 2х3. Какую баню разместить на своем участке
Размер будущего строения зависит от многих факторов и одним из основных является размер участка и бюджет хозяев. Минимальный размер любого банного комплекса должен составлять не менее 2 на 3 метра, хотя некоторые умельцы творят чудеса и даже проекты бань 2 на 2 смело пристраивают к своим домам и даже ставят как отдельное строение.
Это все возможно, но тут потребуется сноровка, так как при минимальных размерах бани 2х2 метра места для предбанника не остается и его вполне можно заменить летней верандой или пристройкой к дому.
На примере: к любому дому можно пристроить баню в виде парилки, которая так же выполняет функцию помывочной и топку, при этом расходы на строительство будут минимальными и одна стена в доме и бане будет единая.
Баня с парной и предбанником
Схематическое изображение планировки
Банька небольших размеров 2 на 3 метра вполне может быть альтернативой любой другой, так как вмещает в себя:
- Предбанник 2х1;
- Парилку и помывочную вместе 2х2м.
В парилке следует разместить:
- Полок 2 х 0.5м;
- Печь со встроенным бачком 0.5 х 1м;
- Дополнительные крючки для полотенец и мочалок;
- А так же небольшое место для тазика или ванной можно оборудовать под полком, что сэкономит и так небольшое пространство.
Предбанник хоть и небольшой, но для 1 – 2 человек места вполне достаточно.
В нем достаточно:
- Поставить лавку;
- Вешалки и крючки для одежды;
- Небольшую полочку на боковой стене для графина с соком или водой.
Вариант бани как пристройки
Баня, пристроенная к дому
Если бюджет семьи не позволяет построить полноценный банный комплекс с парной, помывочной, душевой и предбанником на 3 – 4 человека, то в данной ситуации можно все распланировать несколько иначе. Возьмем в качестве примера любой загородный домик и сделаем пристройку к его веранде.
При этом что мы получим в результате пристройки 2 на 3 метра:
- Предбанник и веранда – это одно целое и можно дополнить интерьер помещения на сове усмотрение;
- Помывочная комната 2 на 2 метра вполне вместит в себя полноценную лавку, печь с топкой и место для душа;
- Парная 1м на 2 м – хоть и небольшая, но для одного взрослого человека вполне достаточно.
Вот и выход из ситуации – баня с домом под разными крышами, но с одним общим входом.
Совет: если вы решились пристроить баню к дому, то не забудьте учесть материал строения. Это обязательное условие, так как многие строительные материалы по-разному воспринимают повышенную влажность и могут просто быть не пригодными для высоких температур.
Баня с отдельной парилкой и мойкой. Баня с парилкой и мойкой в одном помещении: преимущества и недостатки
Баня с объединенными мойкой и парилкой в настоящий момент встречается не так часто. Этот вариант выбирают преимущественно в том случае, если площадь участка не позволяет сделать два отдельных помещения.
Компактная баня с объединенными помещениями дает возможность сэкономить не только территорию, но и деньги. Стоимость подобной постройки будет значительно дешевле, чем цена аналогичной по размерам бани с отдельными парилкой и моечной.
Еще одним плюсом является то, что баню, где парная и моечная объединены, в зимнее время посещать значительно приятнее: она быстро нагревается и быстро проветривается. Летом же, наоборот, охладить моечную достаточно сложно.
Баня с объединенными мойкой и парилкой имеет существенные недостатки. Первый из них связан с тем, что при такой конструкции гораздо сложнее поддерживать в парной нужные условия. В частности, если кто-то в моечной помоется, то в помещении повысится уровень влажности, и в парной будет менее комфортно. Да и запах мыла или геля для душа также мешает созданию нужной атмосферы.
По этой причине придется сначала всем париться, а только потом мыться, в противном случае вы будете вынуждены терпеть высокую влажность.
Кроме того, мыться в нагретой парной невозможно, поэтому придется ждать, пока помещение остынет.
Очевидно, что баня с объединенными моечной и парной – это вариант для небольшой компании (до 4-х человек). Если вы собираетесь отдыхать в большем составе, то однозначно нужно разделять эти помещения.
Как уже говорилось, баня с парной и моечной в одной комнате менее комфортна, т. к. всем приходиться либо париться, либо мыться, в раздельных же помещениях нет необходимости подстраиваться под других.
Ниже представлены фото бани с парилкой и мойкой, объединенными в одном помещении:



Проект бани 3х3 с совмещенными парной и моечной
Баня 3 на 3 совсем небольшая, поэтому сделать раздельные парную и моечную здесь затруднительно.
Ниже представлен проект маленькой бани, состоящей всего из двух помещений: парной и моечной, комнаты отдыха.
Этот бюджетный вариант подойдет для небольшого участка. В такой бане поместится 2-3 человека, но не более.
Проект бани 3х4 с совмещенными парной и моечной
Данная баня чуть больше, но она также имеет всего два помещения. Вместимость бани 3 на 4 составляет 2-3 человека.
В этом проекте предусмотрены более просторные парная и моечная, предбанник же имеет небольшую площадь – всего 6 кв. м.

Проект бан. 5 н. Баня 3,5 х 5
Данный проект в оптимальном по набору работ и материалов комплекте (на сайте он называется "на пустой участок") включает в себя:
- Сруб пятистенок из обработанных под скобель сосновых бревен среднего диаметра от 24 см
- Внутренние стены сруба протесаны под "полулафет"
- Рубка углов «в лапу»
- Чистовая высота сруба (от половой лаги до потолочной балки): 2,1–2,2 метра
- Пятая стена - по длине равная меньшей стороне сруба, изготавливается из бревна диаметром 14-18 см, протесанного с двух сторон "под лафет" до ширины 10-12 см. Установка стены производится на усмотрение Заказчика в любом месте сруба при его сборке.
- Стропила из бревна 15 см, протесанного под лафет, под двухскатную крышу, высота конька — (1,5-2,2) метра
- Фронтоны выходят на стороны 3,5 метра сруба, конёк проходит параллельно стороне 5 метров сруба
- Половые лаги и потолочные балки из бревна 14-18 см протесанного "под лафет" с шагом 0,8 метра
- Обрешетка крыши – доска обрезная 25х150 мм
- Межвенцовый утеплитель - мох или пакля (на выбор Заказчика)
- Доставка сруба до места строительства в соответствии с условиями доставки
- Ручная выгрузка и ручной поднос материалов на расстояние до 15 метров от места выгрузки до мета монтажа сруба (далее - доплата 200 руб/пог.м)
- Необходимые для сборки - гвозди, скобы и метизы
- Сборка сруба на участке
- Кровля – рубероид (временная)
- Столбчатый фундамент из бетонных блоков 200*200*400 мм. на песчаной подушке (песок 1,0-1,5 м3 предоставляет Заказчик)
- Фронтоны зашиты вагонкой 22 мм.
- Каркас фронтонов - брусок 50х50 мм.
Дополнительный материал (стоимость рассчитывается отдельно). Цена комплекта зависит от объема данного материала:
- Половая доска — шпунтованная толщиной 36 мм, естественной влажности (800 руб./ кв.м по площади пола).
- Половая доска — шпунтованная толщиной 46 мм, естественной влажности (900 руб./ кв.м по площади пола).
- Половая доска — шпунтованная толщиной 46 мм, камерной сушки (1100 руб./ кв.м по площади пола).
- Потолочная вагонка — толщиной 22 мм, естественной влажности (400 руб./ кв.м по площади потолка).
- Потолочная вагонка — толщиной 22 мм, камерной сушки (450 руб./ кв.м по площади потолка).
- Окно двойное без стекла 50×50 см — 2 000 руб. шт. (камерной сушки, без установки).
- Дверь с коробкой 170×75 см без фурнитуры — 4 000 руб./ шт. (камерной сушки, без установки).
- Доска на черновой пол — обрезная толщиной 25 мм, 2 сорт, естественной влажности (250 руб./ кв.м по полу). Работа по укладке – 200 руб/м2.
К данному проекту дополнительно можно применить следующие услуги:
- Сруб из осины (доплата) — 17 500 руб.
- Дополнительный венец (вырубка + 20 см) — 17 500 руб.
- Веранда 2 м — 30 000 руб.
- Свайно-винтовой фундамент (9 свай 2,5 метра, D - 108мм. + обвязка из бруса 150*250*6000 мм. (5 шт в комплекте)) — 60 000 руб.
- Двухскатная мансардная с коньком (3,5-4,0) м — 40 000 руб.
- Ломаная мансардная крыша с коньком (3,5-4,0) м, помещение на мансардном этаже с высотой 2,2-2,5 м— 50 000 руб.
Также возможно внесение и других изменений по согласованию с менеджером.
Планировка парилки в бане. Помещения в бане
При планировке бани необходимо грамотно расположить все базовые помещения.
Парилка
Это сердце бани. Здесь размещается печка, а температура достигает самых высоких показателей. Задача для строителя — сконструировать ее таким образом, чтобы тепло удерживалось как можно дольше, а места хватало для основных банных процедур. Вот несколько рекомендаций по планировке парной:
- комната должна располагаться дальше всего от входной двери. Окна здесь не нужны вовсе;
- дверь лучше всего сделать узкой и невысокой, чтобы выходило как можно меньше пара;
- в парной нужны лавки и пространство, достаточное для размещения нескольких людей, чтобы исключить опасность обжечься об элементы печи или угли;
- расстояние от печки до деревянных элементов при этом должно быть не меньше 20 см;
- именно в этом помещении парятся вениками и ополаскиваются из тазов. Стоит предусмотреть место под хранение инвентаря;
- при планировании этого помещения следует заранее учесть, сколько человек в нем будет находиться одновременно. Рассчитывать нужно из соображения по 2 кв. м на человека.
Моечная
Относительно современное изобретение и совершенно необязательное, если планируется небольшая баня. Однако если есть желание, сюда можно провести водопровод и организовать полноценный душ.
Предбанник
При входе в основное помещение необходим буфер для удержания тепла. Обычно это предбанник, в котором можно оставить верхнюю одежду, обувь, инвентарь, дрова.
Зона отдыха или столовая
Это необязательное, но полезное помещение в случае, если планируется совмещать баню с чаепитием. Здесь можно разместить и большой стол, и посуду, и удобный диван. При наличии такой комнаты строение даже можно будет использовать для проживания.
Бассейн или купель
Приятно поплавать после парной или окунуться в ледяную воду. Эти элементы можно установить как в моечной или парной, так и выделить отдельную комнату под бассейн.
Таким образом, минимально в бане должны быть тамбур и парная, а по максимуму планировка ограничена только фантазией и возможностями.
Пример установки металлической печи в бане
Как установить печь
Установка печи с выводом топочной дверцы в предбанник