Планировка бани 4х5 мойка и парилка отдельно. Баня 5 на 4: проекты, фото
- Планировка бани 4х5 мойка и парилка отдельно. Баня 5 на 4: проекты, фото
- Как разделить баню на парилку и мойку. Из чего сделать перегородки в бане
- Как отделить парилку от мойки. Баня с парилкой и мойкой в одном помещении: преимущества и недостатки
- Проект бани для частного дома. Проекты бань
- План постройки бани. Важность грамотного планирования
- План бани 6 н. Планировка бани 6x4 метра
- Планировка парилки 2х3. Какую баню разместить на своем участке
- Проекты небольших бань: преимущества, популярные планировки, примеры и фото
- Баня 4 5 планировка. Планировка помещений
Планировка бани 4х5 мойка и парилка отдельно. Баня 5 на 4: проекты, фото
Приобретение готового проекта – это простой и удобный способ, но он платный. Если вы хотите сэкономить, то можно найти готовый проект в интернете или разработать свой. Баня 5х4 имеет небольшие размеры, поэтому составление чертежа своими силами должно пройти без
Несмотря на небольшие габариты бани, проекты могут быть разными. При составлении чертежа необходимо указать размеры всех помещений, определиться с расположением печи и полок, продумать, где будут находиться окна и двери, а также вентиляционные продухи, дымоотвод, трубы и электрические провода.
Стандартно планировка бани 4х5 предусматривает парную, моечную и комнату отдыха. В некоторых случаях, к примеру, в небольших банях парную и моечную объединяют. Но баня 4 на 5 вполне просторная, поэтому планировка бани 4х5 мойка и парилка отдельно легко реализуется, и не имеет смысла лишать себя удобств, объединяя эти помещения без необходимости.
Рекомендуем прочитать:Бани в Калининграде

Размеры парной зависят от того, сколько человек будут одновременно в ней париться. Для рационального использования площади лучше делать двухъярусные полоки. Минимальный размер парилки – 2х2 м.

Моечная может иметь разные размеры. Многие делают ее величиной с парную, а кто-то наоборот уменьшает до таких размеров, чтобы в ней поместилась лишь душевая кабина.

Если вам нужно увеличить вместимость бани, то лучше это делать как раз за счет моечной, поскольку это то помещение, в которое заходят по одному, в то время как в парной и комнате отдыха сидят целой компанией.
Комната отдыха должна быть такой, чтобы в ней поместились стол и стулья. Обычно именно это помещение самое большое, поскольку в парную чаще ходят по несколько человек, здесь же сидят все остальные. Если комната отдыха выполняет функции предбанника, то нужно также предусмотреть место, где можно оставить обувь и верхнюю одежду.

Если вы хотите ходить в баню, когда на улице холодно, то разумным вариантом будет сделать небольшой тамбур. Достаточно будет 1 м в ширину и 3-3,5 м в длину. Вход лучше размещать с одного края, в таком случае у вас останется место для хранения дров и других нужных вещей.
Несмотря на небольшие размеры бани 4х5, фото планировки внутри доказывают, что в ней можно сделать разные дополнительные помещения для большего удобства. К примеру, если поставить туалет, то посещение бани в холодное время года будет значительно удобнее.

Наличие собственной террасы даст возможность отдыхать на природе, дыша свежим воздухом и любуясь окружающим пейзажем.

Лучше всего будет постройка бани рядом с водоемом, но далеко не все участки имеют доступ к пруду или речке, в таком случае хорошим вариантом будет проект бани с бассейном. После разогрева в парной полезно окунуться в прохладную воду, такая процедура укрепляет организм и повышает его защитные функции.
Рекомендуем прочитать:Бани в Калининграде
Простой проект бани 5 на 4 м
Данный проект предусматривает три помещения: парную, душевую и комнату отдыха, которая также выполняет функции предбанника. В этом проекте нет ничего лишнего, баня получается простой, а ее помещения достаточно просторными.
Душевая имеет достаточную площадь, поэтому в ней можно установить не только душевую кабину, но и дополнительно поставить купель.
Отсутствие предбанника имеет недостаток: холод с улицы будет попадать прямо в комнату отдыха, поэтому этот проект стоит выбирать тем, кто планирует ходить в баню только в теплое время года.

Проект бани 4х5 м с крыльцом
В такой бане так же, как и в предыдущей, всего три помещения. Но здесь просторная парная, в то время как душевая небольшая. Благодаря просторной парной вместимость в этой бане больше, поэтому если вы ходите париться большой компанией, лучше выбрать этот вариант.
Недостатком проекта является отсутствие полноценного тамбура, он объединен с комнатой отдыха.

Как разделить баню на парилку и мойку. Из чего сделать перегородки в бане
Значение простого, на первый взгляд, элемента настолько велико, что нередко хозяева решаются на серьезное перестраивание помещения с переносом простенков. Причиной такого решения может быть неудачная конструкция или неправильное первоначальное ее месторасположение. Понятно, что капитальную перегородку в бане никто сносить не будет, поэтому часто простенки между мойкой и парилкой ставят по временной схеме.
Внутренние перегородки в бане традиционно делают по нескольким схемам:
- Каркасные облегченные простенки. Наиболее удобный тип перегородок для парилок любой планировки. Возможность подобрать толщину теплоизоляции решает проблему точного дозирования количества тепла, перетекающего из парилки через стену в моечное отделение;
- Рубленые или сборные перегородки из бруса. Такие конструкции могут выполняться по разборной схеме, но лишь при условии, что при строительстве бани на стенах был установлен соответствующий крепеж;
- Простенки из кирпича или газобетонных блоков, применяются лишь при условии наличия внутри бани фундамента по линии разделения парилки и мойки;
- Стеклянные конструкции простенков удобны тем, что не требуют специальной гидроизоляции. Кроме того, часть излучаемого печкой тепла может беспрепятственно проникать через стекло внутрь мойки.
Кроме того, существуют конструкции временных раскладных перегородок, выполняемых по схеме жалюзи или ширмы. Используются для большого помещения бани в зимнее время, когда требуется уменьшить размеры парилки и тем самым поднять температуру внутри парного отделения. Такую же схему можно встретить в небольших баньках, протапливаемых по-черному.
Важно! Лучшим решением все же будет кирпичная перегородка в бане, стена между парилкой и мойкой служит одновременно тепловым аккумулятором.
Вся энергия, накопленная в кирпичном простенке от печки в парилке, будет использована для просушки и вентиляции помещения бани. Именно этим отличается перегородка из кирпича в бане от каркасных, блочных и брусовых простенков, они лишь изолируют помещение мойки, но никак не способствуют ее сохранению и проветриванию.
Как отделить парилку от мойки. Баня с парилкой и мойкой в одном помещении: преимущества и недостатки
Баня с объединенными мойкой и парилкой в настоящий момент встречается не так часто. Этот вариант выбирают преимущественно в том случае, если площадь участка не позволяет сделать два отдельных помещения.
Компактная баня с объединенными помещениями дает возможность сэкономить не только территорию, но и деньги. Стоимость подобной постройки будет значительно дешевле, чем цена аналогичной по размерам бани с отдельными парилкой и моечной.
Еще одним плюсом является то, что баню, где парная и моечная объединены, в зимнее время посещать значительно приятнее: она быстро нагревается и быстро проветривается. Летом же, наоборот, охладить моечную достаточно сложно.
Баня с объединенными мойкой и парилкой имеет существенные недостатки. Первый из них связан с тем, что при такой конструкции гораздо сложнее поддерживать в парной нужные условия. В частности, если кто-то в моечной помоется, то в помещении повысится уровень влажности, и в парной будет менее комфортно. Да и запах мыла или геля для душа также мешает созданию нужной атмосферы.
По этой причине придется сначала всем париться, а только потом мыться, в противном случае вы будете вынуждены терпеть высокую влажность.
Кроме того, мыться в нагретой парной невозможно, поэтому придется ждать, пока помещение остынет.
Очевидно, что баня с объединенными моечной и парной – это вариант для небольшой компании (до 4-х человек). Если вы собираетесь отдыхать в большем составе, то однозначно нужно разделять эти помещения.
Как уже говорилось, баня с парной и моечной в одной комнате менее комфортна, т. к. всем приходиться либо париться, либо мыться, в раздельных же помещениях нет необходимости подстраиваться под других.
Ниже представлены фото бани с парилкой и мойкой, объединенными в одном помещении:



Проект бани 3х3 с совмещенными парной и моечной
Баня 3 на 3 совсем небольшая, поэтому сделать раздельные парную и моечную здесь затруднительно.
Ниже представлен проект маленькой бани, состоящей всего из двух помещений: парной и моечной, комнаты отдыха.
Этот бюджетный вариант подойдет для небольшого участка. В такой бане поместится 2-3 человека, но не более.
Проект бани 3х4 с совмещенными парной и моечной
Данная баня чуть больше, но она также имеет всего два помещения. Вместимость бани 3 на 4 составляет 2-3 человека.
В этом проекте предусмотрены более просторные парная и моечная, предбанник же имеет небольшую площадь – всего 6 кв. м.

Проект бани для частного дома. Проекты бань
Предисловие
Если вы до сих пор представляете себе баню в виде небольшого одноэтажного домика с небольшой парилкой и комнаткой для отдыха внутри, настало время расширить горизонт познаний и ознакомиться с более чем пятидесятью проектами лучших русских бань.
Мы собрали коллекцию интереснейших вариантов, не только подробно рассмотрев правила планировки, рассчитав высоту потолка в каждом из помещений, предложив читателям материал по основам проектирования, но и предоставив пошаговые инструкции строительства каждой рассмотренной бани. Полученные из статей знания помогут вам сконструировать уникальную и неповторимую баню вашей мечты, полностью отвечающую всем требованиям ГОСТ, СНиП и, конечно же, соответствующую вашим ожиданиям.
В рубрике « Проекты бань » мы собрали чертежи и план-схемы построек как самых скромных размеров, например, всего 3х3 и 4х4 метра, так и габаритных сооружений до 10х12 м и более. При этом баня может строиться отдельно стоящим зданием, быть соединенной с жилым домом крытой галереей либо возводиться в качестве пристройки и иметь с коттеджем общую крышу.
В коллекции проектов бани одно- и двухэтажные, с террасами, верандами, беседками и бассейнами. Подробно изложены варианты внутреннего расположения помещений, в том числе обустройства мансард различного типа. Вы узнаете, как строятся бани из кирпича, стеновых блоков, бревна и бруса, сип-панелей и иных материалов.
Возможно, изначально пожелав строить скромную баньку, вы передумаете, отдав предпочтение собственному шикарному банному комплексу. Но может выйти и с точностью до наоборот, если вы подберете подходящий для себя проект, который будет экономически выгоден, удобен и достаточно комфортен для всех посетителей. Взвешивайте все за и против, изучая преимущества и недостатки различных бань, чтобы в дальнейшем результат вашего труда приносил только положительные эмоции.
Особенности, планировки и выбор строительных материалов для бани 6х3
Баня 6 х 3 метра — общее название конструкции, возведенной по разным…
Готовые бани под ключ
Готовые бани под ключ – это предложение компаний, которые занимаются проектированием, производством…
На каком расстоянии от соседского забора можно строить баню? Нормы и требования по СНиП
В СНиП или его актуализированной редакции (обычно это СП, в которых уже…
Баня по-черному: отличие от русской традиционной, плюсы и минусы Особенности строительства бани по-черному
Баня издавна считалась помещением для осуществления гигиенических процедур, местом для лечения болезней…
Строительство бани из ЛСТК – новая технология строительства
Издавна бани строили из дерева как самого доступного материала. Деревянной чаще всего…
Как построить баню из керамзитных блоков
Баню можно построить не только из дерева или кирпича, керамзитобетонные блоки –…
Технология двойного бруса
Строительство бань из бруса считается оптимальным вариантом ввиду экологичности материала стен, их…
Оптимальные размеры бани
Первый этап подготовки к строительству бани или сауны – создание проекта, который…
Баня с беседкой под одной крышей – проекты + строительство своими руками
Мы советуем планировать строительство на несколько шагов вперед – решили ставить баню,…
Баня 6х4 с террасой
Довольно распространенный проект среди застройщиков, строительство можно закончить за один сезон. Использование…
Баня под усадку 6 на 4
Баня под усадку строится в двух случаях: из-за нехватки материальных средств или…
Баня из керамзитобетонных блоков
Керамзитобетонные блоки стремительно набирают популярность среди частных застройщиков. Материал отлично подходит для…
Проекты одноэтажных бань
Бани из бруса не теряют свою актуальность. Эти одноэтажные конструкции известны своей компактностью…
Проект бани 4 на 4 с верандой
Исходные данные: фундамент ленточный армированный, фасадные стены из обыкновенных кирпичей и кирпичей…
Проекты бань из кирпича
Собственная баня – незаменимое средство для встреч с друзьями и релаксации после…
Строительство бани-бочки своими руками: пошаговая инструкция
Немало владельцев загородных домов грезит об уютной и компактной бане, которая не…
Баня из профилированного бруса 6х6
Для строительства бани мы выбрали профилированный брус – современный материал, имеет отличные…
Строительство бани из профилированного бруса 4х4 м
Традиционную баню можно назвать древней славянской «ванной», издревле именно она была свидетелем…
Проекты деревянных бань с мансардой
Баня с мансардой – мечта многих собственников загородных участков и частных домов….
План постройки бани. Важность грамотного планирования
Стоит отметить, что правильная планировка бани – это уже половина успеха. Перенесенный план постройки на бумагу способен сократить расходы и значительно облегчить работу. И для этого важно не просто выбрать подходящий проект и купить строительные материалы, необходимо также соблюдать все правила, чтобы через несколько лет не пришлось переделывать все работы заново. Поэтому важно учитывать множество нюансов, в том числе особенности участка.
Очень важно определиться с местом на участке для будущей бани, поскольку использованная вода из бани не должна проникать в грунтовые воды или колодец.
Минимальное расстояние от постройки до чистой грунтовой воды должно быть минимум 5 метров.
А до туалета или компостной ямы должна быть длина в 8 метров. С точки зрения пожарной безопасности баня должна находиться возле забора не ближе чем на 1 метр.
Окна следует вывести на западную сторону , в таком случае в помещение будет проникать максимум солнечного света в вечернее время круглый год.
Если вы планируете использовать баню не только в летний период, но и зимой, то вход следует обустроить с южной стороны , тогда вам не придется слишком часто расчищать двери от снежных сугробов, и сами они будут таять гораздо быстрее.
Если участок находится на берегу чистого водоема, то стоит рассмотреть вариант строительства бани на расстоянии 15-20 метров до воды. Окунуться в прохладную воду после жаркой парилки захочет каждый любитель контрастных процедур.
Всего пару десятилетий назад планировка классической бани включала в себя всего два помещения – парилку и предбанник. Но сегодня современные проекты могут включать отдельно моечное отделение, зону отдыха, бассейн или купель, бильярдную.
Основные правила, которые необходимо учитывать при строительстве бани:
- Внутренняя планировка бани должна быть продумана до мелочей и включать в себя не только разметку отдельных зон, но и схему электропроводки и водоснабжения.
- Такая небольшая проблема, как сквозняк, может испортить все впечатление о бане. Позаботьтесь о том, чтобы в помещениях всегда было тепло. И обязательно располагайте двери перпендикулярно.
- Чтобы в парилке надолго удерживался жар, необходимо выбрать правильную конструкцию двери – она должна быть небольшой и узкой. И самое главное – дверь должна открываться не в парилку, а из нее.
- Оконные проемы в комнате отдыха могут быть большими, чтобы поступало максимум естественного света. Но в других помещениях лучше установить окна размером 40х60 или 70х80 см. В данном случае стоит выбирать матовые непрозрачные стекла.
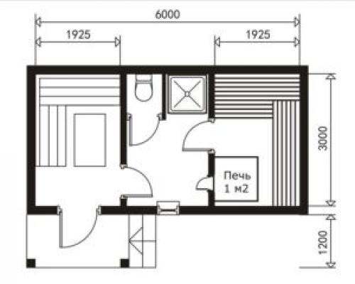
План бани 6 н. Планировка бани 6x4 метра
Наиболее популярной планировкой считается баня 6х4. Она не занимает большой участок и в ней можно уместиться большой семьей или с друзьями. Но перед составлением проекта нужно учесть нюансы участка, расположение и пожелания, потому что построенная баня и то, что нарисовано на чертеже может отличаться.

Если имеются знания в построении чертежей, планировку можно составить самому или скачать план из интернета, но если есть сомнения, то лучше обратиться к проектировщикам.
Баня 6 на 4 не имеет стандартной планировки, можно больше места отвести на комнату отдыха, моечную или парилку. Кому-то больше нравится посидеть за столом в компании и беседовать, а кто-то предпочитает принимать банные процедуры, но в любом случае размер бани позволяет угодить каждому.
Возле бани можно сделать беседку с мангалом и отдыхать летними вечерами, если площадь на участке позволяет.
Примерные чертежи можно посмотреть в интернете и рассчитать, подойдет ли планировка для участка. Если нужен индивидуальный проект, то он рассчитывается компаниями проектировщиками.

Можно сэкономить и построить баню “собственными силами”, главное, чтоб было время, желание и необходимый материал.
Планировка бани 6х4 может быть свободной, но, как правило, существуют стандартные помещения, без которых не обойтись:
- предбанника (раздевалки);
- моечной;
- парной;
- комнаты отдыха.
Наличие предбанника не всегда бывает в планировке 6 на 4, это небольшая часть при входе в баню, здесь разуваются и оставляют одежду, можно хранить дрова зимой, чтоб они не промокали. Часто предбанник соединяют вместе с комнатой отдыха, но для удобства лучше, чтоб для этого было отдельное помещение.
Моечную можно сделать просторную или небольшую, все зависит от того, какое количество в семье предпочитает париться. Иногда больше места отводится под парную или две комнаты делаются одинаковыми. Или в моечной умещается только лавка и полки под шайки, ковшики и тазики. Удобно сделать три комнаты одинакового размера и маленький предбанник, но расположение меняется в зависимости от личных пожеланий.

Понятие “бани” место, где можно париться, поэтому этому помещению уделяется больше внимания. В ней должна размещаться печь, стол и лавки, но нужно учитывать, что чем больше парилка, тем дольше она будет топиться и уходить ресурс на растопку. Если не предполагается, что в парную будет одновременно приходить много человек, не нужно делать большую.
В комнате отдыха будет собираться все количество людей, которое в этот момент находится в бане. Это в моечную и парилку можно ходить по очереди, а в комнате отдыха нужно уместиться всем.

Комната отдыха не только для охлаждения, но и для проведения времени за разговорами. Чтоб не толпиться и не мешать друг другу, должно быть достаточно места для размещения стола лавок или стульев. Иногда предусматривается место под установку телевизора и дивана, а также кушеток для отдыха.

Планировка парилки 2х3. Какую баню разместить на своем участке
Размер будущего строения зависит от многих факторов и одним из основных является размер участка и бюджет хозяев. Минимальный размер любого банного комплекса должен составлять не менее 2 на 3 метра, хотя некоторые умельцы творят чудеса и даже проекты бань 2 на 2 смело пристраивают к своим домам и даже ставят как отдельное строение.
Это все возможно, но тут потребуется сноровка, так как при минимальных размерах бани 2х2 метра места для предбанника не остается и его вполне можно заменить летней верандой или пристройкой к дому.
На примере: к любому дому можно пристроить баню в виде парилки, которая так же выполняет функцию помывочной и топку, при этом расходы на строительство будут минимальными и одна стена в доме и бане будет единая.
Баня с парной и предбанником
Схематическое изображение планировки
Банька небольших размеров 2 на 3 метра вполне может быть альтернативой любой другой, так как вмещает в себя:
- Предбанник 2х1;
- Парилку и помывочную вместе 2х2м.
В парилке следует разместить:
- Полок 2 х 0.5м;
- Печь со встроенным бачком 0.5 х 1м;
- Дополнительные крючки для полотенец и мочалок;
- А так же небольшое место для тазика или ванной можно оборудовать под полком, что сэкономит и так небольшое пространство.
Предбанник хоть и небольшой, но для 1 – 2 человек места вполне достаточно.
В нем достаточно:
- Поставить лавку;
- Вешалки и крючки для одежды;
- Небольшую полочку на боковой стене для графина с соком или водой.
Вариант бани как пристройки
Баня, пристроенная к дому
Если бюджет семьи не позволяет построить полноценный банный комплекс с парной, помывочной, душевой и предбанником на 3 – 4 человека, то в данной ситуации можно все распланировать несколько иначе. Возьмем в качестве примера любой загородный домик и сделаем пристройку к его веранде.
При этом что мы получим в результате пристройки 2 на 3 метра:
- Предбанник и веранда – это одно целое и можно дополнить интерьер помещения на сове усмотрение;
- Помывочная комната 2 на 2 метра вполне вместит в себя полноценную лавку, печь с топкой и место для душа;
- Парная 1м на 2 м – хоть и небольшая, но для одного взрослого человека вполне достаточно.
Вот и выход из ситуации – баня с домом под разными крышами, но с одним общим входом.
Совет: если вы решились пристроить баню к дому, то не забудьте учесть материал строения. Это обязательное условие, так как многие строительные материалы по-разному воспринимают повышенную влажность и могут просто быть не пригодными для высоких температур.
Проекты небольших бань: преимущества, популярные планировки, примеры и фото

Конечно, хорошо иметь просторную и большую баню, в которой легко поместиться компанией друзей или всей семьей. Но далеко не все могут похвастаться большим по площади участком, особенно если речь идет о бане. Даже если территория совсем небольшая, это не повод отказывать себе в удовольствии посещения русской бани – обратите внимание на небольшие бани.
Проекты небольших бань: преимущества и недостатки
Подобные проекты имеют следующие преимущества:
- компактность. Маленькие бани легко поместятся даже на небольшом участке;
- быстрая растопка. Благодаря небольшим размерам парная быстро нагревается, поэтому дров или другого топлива понадобится меньше;
- простота постройки. Возвести небольшую баню своими руками проще, кроме того, постройка займет меньше времени;
- возможность строительства бани на облегченном фундаменте;
- экономия. Для строительства и отделки понадобится меньшее количество материала.
К недостатку можно отнести небольшую вместимость бани. Большие компании могут не уместиться, поэтому придется посещать парную по очереди.
Но не стоит думать, что проекты небольших бань для дачи – это исключительно бюджетные варианты. Можно сделать и роскошную баню с бассейном , пусть и по размерам она будет маленькой.

Проект маленькой бани: фото, особенности планировки
Составить проект и провести все необходимые расчеты можно самостоятельно или обратиться к профессионалам. В первом случае вы сможете подготовить чертежи бесплатно, но самому делать проект можно только в том случае, если вы уверены в своих возможностях. Проекты небольших бань, фото того, как они выглядят после реализации, можно найти в интернете. В таком случае вы сможете оценить разные варианты и подобрать оптимальный для себя.
Проект бани должен предусматривать следующие помещения:
- прихожую. Обычно она также выполняет роль раздевалки;
- парная – основное помещение, без которого существование бани невозможно;
- мойка. Здесь устанавливают душ, ставят емкость с водой;
- комната отдыха. Иногда ее делают непосредственно на террасе или веранде.
Для экономии пространства можно объединить прихожую и комнату отдыха, но в таком случае помещение должно быть просторным, иначе в нем будет неудобно находиться.
Проект небольшой бани для дачи обычно рассчитан на несколько человек. Но чересчур маленькое сооружение делать нельзя. В парной как минимум должно умещаться два человека, которые могут свободно перемещаться: на каждого человека нужно около 1,5-2 квадратных метров. Лучше установить печь для бани топкой в предбаннике, в таком случае будет удобнее ее топить, а в парной появится свободное пространство.

При расчете размера комнаты отдыха нужно учитывать, что одному человеку понадобится около 3 квадратных метров.
Размеры моечной могут быть разными: от нескольких квадратных метров до площади, превышающей размеры парной.
Маленькая баня на даче своими руками: проекты
Конечно, в интернете представлено множество проектов и чертежей. Рассмотрим наиболее популярные планировки маленьких бань для дачи.
Маленькая баня 3×4
Компактный и бюджетный вариант, который отлично подходит для небольшого приусадебного участка. Несмотря на свои размеры в такой бане можно разместить все необходимые для отдыха помещения. Возведение такой постройки займет мало времени – всего 3-4 дня.

Баня маленькая 3×6
Представляет собой три помещения, которые примерно одинаковы по размеру и идут друг за другом: комната отдыха, мойка, парная. Она также удобна и имеет достаточную вместимость. Строительство бани занимает в среднем около 10 дней.

Маленькая банька 4×4
Более просторный вариант, в котором представлено три основных помещения. Обычно самым просторным помещением делают комнату отдыха, которая также выполняет функции предбанника и раздевалки.
Такой проект маленькой бани для дачи является самым практичным. Его реализация займет всего около недели.
Баня 4 5 планировка. Планировка помещений
Чтобы в бане комфортно размещалась большая семья, планировку можно сделать, немного скорректировав внутреннее пространство. В этом случае допустимо немного увеличить площадь парилки, тем самым создав возможность парится в ней большему количеству людей. Не стоит сильно занижать габариты комнаты отдыха. Пожертвуйте парой квадратов моечного отделения. Тогда можно будет отдыхать большой компанией, париться, а принимать водные процедуры по очереди.
Как обустроить предбанник?
Это своеобразная воздушная подушка, между холодом на улице и теплом в моечном отделении. Поэтому отдельного внимания требует процедура утепления стен.Нельзя недооценивать его функциональность. Предбанник защищает помещения от холодов и позволяет отдохнуть после парной. Идеальный размер в бане с габаритами 4х5 – это метр в ширину и 3–3,5 в длину. При этом вход в баню можно сделать с одного края, отгородив само помещение еще одной дверью. Таким образом, холодный воздух не будет попадать в комнату отдыха.
Создать дополнительный уют, позволит печь растапливаемая из предбанника. В таком случае вход в моечное отделение должен быть посередине. Парная и помещение с душем располагаться по разным сторонам, при этом парилка должна одной стеной контактировать с комнатой отдыха. В этой стороне и устанавливают печное отопление, чтобы оно работало на обогрев двух помещений. Кроме правильного расположения предбанника и его взаимодействия с другими помещениями необходимо придерживаться следующих рекомендаций:
- утепление стен обязательно двойное, чтобы минимизировались любые тепловые потери;
- необходимо качественное освещение не только искусственным способом, дополнительно необходимо установить окно;
- расположение скамеек для отдыха и вешалок для одежды прорабатывается отдельно.
Делаем моечное отделение
Планировка позволяет сделать отделение помывки относительно большим. Допускается расположение нескольких леек при условии использования прямого доступа воды. Особые требования есть и в сооружении этого отделения. Например, площадь рассчитывается исходя из 1 м/кв на человека. Допускается небольшое снижение габаритов, если необходимо перепланировать помещения. Оптимальным размером для бани в 4х5 метра, будет моечное помещение габаритами от 1,8 до 2 метров. На такой площади можно расположить все удобства, включая скамейки для установки банных принадлежностей.
В моечном отделении, просто необходима вентиляция. Для больших помещений можно сделать два продуха в верхней части стен или одно полноценное окно. В некоторых вариантах вентиляционные отверстия располагают внизу и вверху, чтобы обеспечить постоянный приток воздуха по всему помещению. Это больше необходимо для проветривания деревянного пола. Если отделка поверхности произведена керамикой, то достаточно естественной вентиляции, без создания дополнительного притока.
Правильная конструкция парной
Самое важно функциональное отделение в бане. К обустройству парной предъявляются повышенные требования. Учитывая, что в бане 4х5 метров парилке отводится довольно просторное помещение, необходимо позаботиться о высокой температуре, достаточной для проведения соответствующих процедур. Поэтому рекомендуется делать печь-каменку, предварительно соорудив в предполагаемом месте кладки фундамент.
Использование устройств работающих от электрических тэнов не всегда оправданно в экономическом плане, что сказывается на высоких показателях расхода энергии. Снизить зависимость потребления можно двойной теплоизоляцией парного отделения или дополнительной установкой парогенераторов.
К правильной конструкции парного отделения относится и уровень комфортного передвижения. Общие габариты бани позволяют не экономить на пространстве и в некоторых случаях можно пожертвовать местом в моечной и комнате отдыха для создания пространства в парилке. В этом плане выгоднее будут электрические печи. Но для них придется отдельно прокладывать электропроводку.Каменка выгоднее, но она занимает больше места. Необходимо найти оптимальный вариант. Потому как помещение рассчитано на несколько человек, не должно быть дискомфорта, обоснованного нехваткой места.
Форма парной – правильный квадрат или прямоугольник в зависимости от расположения. В любом случае, необходимо прорабатывать установку печи таким образом, чтобы она находилась в противоположной стороне от полок. Если топится печь будет из предбанника, то согласно расположению парные места конструируются в другой плоскости.