Планировка бань с отдельным расположением мойки и парилки. Какая планировка может быть в помещении бани
- Планировка бань с отдельным расположением мойки и парилки. Какая планировка может быть в помещении бани
- Проекты небольших бань. Проект маленькой бани из двух помещений
- Планировка бани. Помещения в бане
- Баня с парилкой и помывочной. Баня с парилкой и мойкой в одном помещении: преимущества и недостатки
- Планировка маленькой бани. Разрабатываем планировку
- Баня с парилкой и комнатой отдыха. Баня с парилкой и мойкой: особенности планировки бань размером 4х6, 3х4, 5х5, 3х6, 3х5 с совмещённым или раздельным интерьером
- Планировка помывочной в бане. Нужно ли объединять парную и помывочную в бане
Планировка бань с отдельным расположением мойки и парилки. Какая планировка может быть в помещении бани
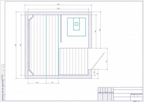
Пространство 3 на 4 не обладает хорошей вместимостью, поэтому обычно в плане присутствует парилка с мойкой и предбанником. При постройке чертежей следует обратить внимание на:
- план строят исходя из имеющихся параметров пустого участка;
- для максимальной вместимости нужных помещений с необходимым пространством учитывают замер отделки стен;
- делают пересчет строительных материалов, докупают запасные элементы;
- на планировку тратят большую часть времени, потому как при правильном обозначении комнат человек достигает высшего наслаждения в сбалансированном помещении;
- мелочи заслуживают внимания, от подобного вопроса зависит безопасность членов семьи;
- внутреннюю отделку стен проектирую одновременно с чертежом для бани.
В современных вариациях из-за предпочтений владельца, делают необычное сочетание комнат: парную соединяют с помывочной или бассейн совмещают с комнатой отдыха по соседству с парилкой. Фото для планировки бани 3х4, где мойка и парилка отдельно предоставлены в разнообразных вариациях.
Парная
Важное помещение, которому отводят треть пространства от всего плана. Считается, что малые габариты быстро и лучше прогреваются, поэтому комнату оборудуют только пологом, веником и открытым камином с накаленными камнями. При планировке парной одну стенку оставляют для полки, на которой сможет поместиться человек в лежачем положении. Отсутствие полога заменяют скамьей. Парную соединяют с помывочной, бассейном или комнатой отдыха.
Комната отдыха или предбанник
Это не совсем предбанник, в котором для комфорта устанавливают диван или кресла. При параметрах 3 на 4 комната отдыха и предбанник не имеют различий. Объединенные комнаты могут граничить с помывочной или парилкой. На чертежах предбанник – самая большая комната. Просторным вариантом планировки будет разграничение бани на 2 помещения – комната отдыха, парная или помывочная.
Бассейн
Не обязательное помещение для классической бани, но любителям комфорта понравится идея размещения водоема в комнате отдыха. Это экономит место, хотя бассейн можно заменить душевой кабиной, которую устанавливают в помывочной или парилке.
Проекты небольших бань. Проект маленькой бани из двух помещений

Небольшая каркасная баня из бруса
Если нет желания ютиться в крошечных комнатках, то объединив парную и моечную, можно получить хороший результат. Внешний размер бани может составлять 3,6*2 метра – этого вполне достаточно.
Как построить небольшую баню своими руками на земельном участке, это возможно только при наличии тщательно продуманного проекта:
- Предбанник с общей площадью 2,4 кв. метра – тут уже можно развернуться. Габариты позволяют поставить крошечный столик, за которым приятно попить чай. Роль раздевалки остается;
- Парная и моечная объединяются, и получается помещение 3 кв. метра. Душевой придется пожертвовать, но вот теперь будет стоять полноценный лежак и скамья для мытья. На нее ставятся тазы с водой. Лишняя влага от душа не нужна, она утяжелит воздух и затруднит дыхание.
Чтобы не снижалась польза от банных процедур в данном проекте, должна соблюдаться следующая инструкция:
- Поставить более мощную печь, способную обогреть два помещения сразу;
- Не разбрызгивать воду по парной – это повысить влажность;
- Банные процедуры начинать с парной, и только потом приступать к мытью.

Фото маленькой баньки на берегу озера
В обоих вариантах планировки дверь должны открываться наружу, а сама постройка устанавливается не меньше чем в 5-10 метрах от капитального дома. Это обязательные требования пожарной безопасности. Потолки в бане не следует делать больше 2,2 метра, а дверную коробку больше 1,5 метра. Иначе в ней не сохранится тепло.
Печка может быть любая – электрическая, дровяная или газовая. Но последняя не очень желательна. Электрическая проста в установке, с ней проще контролировать уровень температуры .
Но лучше всех – дровяная. Она создает неповторимый дух и аромат бани.

Планировка бани. Помещения в бане
При планировке бани необходимо грамотно расположить все базовые помещения.
Парилка
Это сердце бани. Здесь размещается печка, а температура достигает самых высоких показателей. Задача для строителя — сконструировать ее таким образом, чтобы тепло удерживалось как можно дольше, а места хватало для основных банных процедур. Вот несколько рекомендаций по планировке парной:
- комната должна располагаться дальше всего от входной двери. Окна здесь не нужны вовсе;
- дверь лучше всего сделать узкой и невысокой, чтобы выходило как можно меньше пара;
- в парной нужны лавки и пространство, достаточное для размещения нескольких людей, чтобы исключить опасность обжечься об элементы печи или угли;
- расстояние от печки до деревянных элементов при этом должно быть не меньше 20 см;
- именно в этом помещении парятся вениками и ополаскиваются из тазов. Стоит предусмотреть место под хранение инвентаря;
- при планировании этого помещения следует заранее учесть, сколько человек в нем будет находиться одновременно. Рассчитывать нужно из соображения по 2 кв. м на человека.
Моечная
Относительно современное изобретение и совершенно необязательное, если планируется небольшая баня. Однако если есть желание, сюда можно провести водопровод и организовать полноценный душ.
Предбанник
При входе в основное помещение необходим буфер для удержания тепла. Обычно это предбанник, в котором можно оставить верхнюю одежду, обувь, инвентарь, дрова.
Зона отдыха или столовая
Это необязательное, но полезное помещение в случае, если планируется совмещать баню с чаепитием. Здесь можно разместить и большой стол, и посуду, и удобный диван. При наличии такой комнаты строение даже можно будет использовать для проживания.
Бассейн или купель
Приятно поплавать после парной или окунуться в ледяную воду. Эти элементы можно установить как в моечной или парной, так и выделить отдельную комнату под бассейн.
Таким образом, минимально в бане должны быть тамбур и парная, а по максимуму планировка ограничена только фантазией и возможностями.
Баня с парилкой и помывочной. Баня с парилкой и мойкой в одном помещении: преимущества и недостатки
Баня с объединенными мойкой и парилкой в настоящий момент встречается не так часто. Этот вариант выбирают преимущественно в том случае, если площадь участка не позволяет сделать два отдельных помещения.
Компактная баня с объединенными помещениями дает возможность сэкономить не только территорию, но и деньги. Стоимость подобной постройки будет значительно дешевле, чем цена аналогичной по размерам бани с отдельными парилкой и моечной.
Еще одним плюсом является то, что баню, где парная и моечная объединены, в зимнее время посещать значительно приятнее: она быстро нагревается и быстро проветривается. Летом же, наоборот, охладить моечную достаточно сложно.
Баня с объединенными мойкой и парилкой имеет существенные недостатки. Первый из них связан с тем, что при такой конструкции гораздо сложнее поддерживать в парной нужные условия. В частности, если кто-то в моечной помоется, то в помещении повысится уровень влажности, и в парной будет менее комфортно. Да и запах мыла или геля для душа также мешает созданию нужной атмосферы.
По этой причине придется сначала всем париться, а только потом мыться, в противном случае вы будете вынуждены терпеть высокую влажность.
Кроме того, мыться в нагретой парной невозможно, поэтому придется ждать, пока помещение остынет.
Очевидно, что баня с объединенными моечной и парной – это вариант для небольшой компании (до 4-х человек). Если вы собираетесь отдыхать в большем составе, то однозначно нужно разделять эти помещения.
Как уже говорилось, баня с парной и моечной в одной комнате менее комфортна, т. к. всем приходиться либо париться, либо мыться, в раздельных же помещениях нет необходимости подстраиваться под других.
Ниже представлены фото бани с парилкой и мойкой, объединенными в одном помещении:



Проект бани 3х3 с совмещенными парной и моечной
Баня 3 на 3 совсем небольшая, поэтому сделать раздельные парную и моечную здесь затруднительно.
Ниже представлен проект маленькой бани, состоящей всего из двух помещений: парной и моечной, комнаты отдыха.
Этот бюджетный вариант подойдет для небольшого участка. В такой бане поместится 2-3 человека, но не более.
Проект бани 3х4 с совмещенными парной и моечной
Данная баня чуть больше, но она также имеет всего два помещения. Вместимость бани 3 на 4 составляет 2-3 человека.
В этом проекте предусмотрены более просторные парная и моечная, предбанник же имеет небольшую площадь – всего 6 кв. м.

Планировка маленькой бани. Разрабатываем планировку
Считается, что на площади менее 9 квадратных метров баню планировать не стоит. Для комфортного парения 2 человек нужно от 4 квадратных метров при высоте потолков от 2,2 м. Это обязательный минимум, который позволит разместить печку в соответствии с правилами пожарной безопасности, поставить удобные для сидения лавки. А ведь планировка не ограничивается парной. Обычно ее дополняют следующими помещениями.
- Тамбур. Не дает воздуху с улицы проникать в жарко натопленное помещение.
Баня с парилкой и комнатой отдыха. Баня с парилкой и мойкой: особенности планировки бань размером 4х6, 3х4, 5х5, 3х6, 3х5 с совмещённым или раздельным интерьером
Парилка и мойка являются основными помещениями в бане. Остальные помещения являются дополнительными, но не менее необходимыми, чем парилка и комната для охлаждающих процедур.
В большой бане легко разместить все эти помещения, а в небольшом пространстве хозяину часто приходится совмещать или делить все необходимые помещения на небольшие изолированные комнаты.

Необходимые комнаты в бане
Для полноценного и комфортного отдыха, каждая баня должна включать в себя следующие помещения:
- Парилку;
- Комнату для охлаждающих процедур;
- Туалетную комнату;
- Раздевалку;
- Комнату отдыха.

Парилка является помещением в котором обязательно должна быть печь и полки для того, чтобы можно было посидеть в парной. Комната для охлаждающих процедур должна быть оборудована душем или бочкой с холодной водой.
В этом помещении можно разместить бассейн. Туалетная комната должна быть оборудована унитазом. В этой комнате можно установить раковину. Раздевалка в бане необходима для хранения верхней одежды в то время, пока гости будут принимать банные процедуры.

Комната отдыха зачастую в небольших банях совмещается с раздевалкой и оборудуется столом и стулья или лавочками для сиденья.

Разнообразие проектов бани с парилкой
Любое строительство начинается с выбора проекта. В наши дни существует великое множество проектов бань с различными параметрами. Поэтому владельцу приусадебного участка остается только выбрать оптимальный исходя из личных предпочтений и возможностей.

Выбирая подходящий проект нужно учитывать функционал. Если банная постройка необходима только на летнее время, то можно выбрать самый простой проект бани с парной, моечной и комнатой отдыха.
- Баню для круглогодичного использования стоит оборудовать туалетной комнатой, раздевалкой — местом для верхней одежды.
- Кроме того существуют проекты бань с мансардой, где помещения для водных процедур оборудуются на первом этаже, а мансарда используется в качестве комнаты отдыха.
- А также, проекты бань с террасой, которая может быть использована как место для отдыха в теплое время года.

Терраса может быть застекленной. В этом случае, ее можно использовать для отдыха в зимнее время года. Бани с террасой способствуют экономии денежных средств на теплоизоляции и внутренней отделке.
Разграничение банного пространства на зоне зависит от целей использования бани:
- Если баня необходима для семейного пребывания, то парная и моечная должны быть просторными, а комната отдыха может быть совмещенной с раздевалкой;
- Если планируется использовать баню для отдыха в кругу друзей, то комнату отдыха следует сделать просторной, а парилку небольшой — для посещения нескольких человек одновременно. Комнату для банных процедур можно оборудовать только душем или небольшим бассейном и душем.

Важные нюансы при возведении бани
- Проектировать баню следует с учетом будущего ее использования.
- Составляя проект следует учесть климатические условия данной местности.
- Принять во внимание финансовые возможности, геологические особенности участка земли и его размер.
- Определить количество человек, которые будут посещать баню.
- В какое время года преимущественно будет использоваться банное помещение.
- Рядом с парилкой может находится душевая кабина.
- В парилке может стоять большая бочка с холодной водой для охлаждающих процедур.
- Парилка и моечная могут отделяться стеклянной перегородкой.

Учитывая все эти нюансы можно составить проект бани и рассчитать смету.

Правильная планировка бани с парилкой и мойкой
Комфортность пребывания в бане зависит от ее планировки. Например, предбанник защитит другие помещения от попадания в них холодного воздуха с улицы. Здесь можно сделать раздевалку, оборудовав ее крючками для одежды и лавочкой.

Как правило следующим помещением является комната отдыха, в которой размещается стол и стулья для того, чтобы можно было посидеть после банных процедур.

Далее располагается помещение для охлаждающих процедур и парная. По расположению этих помещений есть различные вариации.

Во-первых, мойка и парная могут быть полностью изолированы друг от друга, а могут совмещаться:

Во-вторых, комната для охлаждающих процедур может быть оборудована бассейном, душем, кадкой с холодной водой, лавочкой. В моечной можно установить унитаз для экономии пространства.

Совмещение парилки и мойки
Совмещение парной и моечной является вынужденной мерой, если для бани невозможно выделить большой участок земли. Как правило размер таких бань составляет от 9-ти до 16-ти квадратных метров.
Планировка помывочной в бане. Нужно ли объединять парную и помывочную в бане
Вполне возможны варианты как объединения этих помещений, так и их обустройство по отдельности.
Владельцы бани предпочитают совмещенный вариант для:
- оптимального использования площади;
- снижения расходов на строительство;
- объединения разноплановых по функционалу помещений с целью одновременного обогрева.
Тем не менее, многие эксперты советуют использовать перегородки для разделения даже маленьких по площади помещений.

Устройство помывочной в бане в виде самостоятельного отделения весьма выгодно. В парилке будет легче поддерживать стабильную температуру, а в комнате для мытья не будет чрезмерно жарко. Кроме того, совмещенный вариант несет определённую угрозу здоровью. Слишком высокая температура создает проблемы сердечно-сосудистой системе, а повышение влажности в парной вредно для лёгких.
Парилка должна быть защищена от излишней влаги. Особенно это актуально для саун с электрической печью. В парной бане влажность регулирует температуру.
Хотя сауна и считается местом для отдыха и релаксации, необходимо четко представлять, что это помещение относится к категории повышенной опасности. И чаще всего именно в банях с объединенной помывочной и парилкой происходит большинство травм. Мытье является динамичным процессом, и для его реализации необходимо достаточное пространство. Конструкция печи бани должна исключать риск получения повреждений.
Это правило распространяется и на те планировки, в которых парилки расположены в отдельном помещении, но топка осуществляется из душевой комнаты. Металлические печи должны иметь защиту от нанесения ожогов. Чаще всего для этих целей используют кирпичную кладку.
Если по каким-то причинам разместить в бане помывочную и парилку в разных помещениях нельзя, то можно поступить следующим образом:
- предусмотреть расположение зоны парной над помывочной, которая будет на нижнем уровне;
- разделить единое пространство легкой перегородкой, оставив широкий проём;
- оборудовать помывочную в отдельном небольшом отделении;
- воспользоваться готовыми душевыми кабинками промышленного производства.
В связи с неоспоримыми преимуществами раздельного размещения следует все же еще на стадии проектирования или капитальной реконструкции предусмотреть такую возможность.
Планировка помывочной в бане: объединять или не объединять?
В вопросе о том, объединять ли парную и помывочную в бане, есть два основных подхода: совмещать эти помещения или обустраивать их по отдельности. Владельцы бани предпочитают совмещенный вариант, но эксперты советуют использовать перегородки для разделения даже маленьких по площади помещений.
Устройство помывочной в бане в виде самостоятельного отделения имеет свои преимущества. В парилке будет легче поддерживать стабильную температуру, а в комнате для мытья не будет чрезмерно жарко. Кроме того, совмещенный вариант несет определённую угрозу для здоровья. Слишком высокая температура создает проблемы для сердечно-сосудистой системы, а повышение влажности в парной вредно для лёгких.
Парилка должна быть защищена от излишней влаги, особенно это актуально для саун с электрической печью. В парной бане влажность регулирует температуру.
Хотя сауна и считается местом для отдыха и релаксации, необходимо четко представлять, что это помещение относится к категории повышенной опасности. И чаще всего именно в банях с объединенной помывочной и парилкой происходит большинство травм. Мытье является динамичным процессом, и для его реализации необходимо достаточное пространство.
Конструкция печи бани должна исключать риск получения повреждений. Это правило распространяется и на те планировки, в которых парилки расположены в отдельном помещении, но топка осуществляется из душевой комнаты. Металлические печи должны иметь защиту от нанесения ожогов. Чаще всего для этих целей используют кирпичную кладку.
Вывод: При планировке помывочной в бане необходимо учитывать как преимущества совмещения, так и риски, связанные с объединением этих помещений. Важно обеспечить безопасность и комфорт для пользователей.