Проект бани с беседкой под одной крышей. Особенности
- Проект бани с беседкой под одной крышей. Особенности
- Баня с беседкой из блоков. Размеры, планировка и эскизы
- Баня со стеклянной беседкой. Баня совмещенная с беседкой: варианты проектов, материалы, размеры, оформление
- Проект бани с беседкой из блоков. Проекты бань из газобетона — бесплатные схемы с мансардой, комнатой отдыха и террасой, одноэтажная и двухэтажная баня
- Проекты баня с беседкой и летней кухней. Варианты проектов
- Готовая баня с беседкой. Баня с беседкой — проекты совмещения под одной крышей двух разных помещений (85 фото)
- Дом баня беседка под одной крышей. Бани-дома-беседки — совмещать ли все вместе?
Проект бани с беседкой под одной крышей. Особенности
Защититься от погодных сюрпризов поможет объединение бани с беседкой для шашлыка под одной крышей. Подбирая проект бани, надо учитывать наличие нескольких конструктивных вариантов.
Пример проекта 1
Баня и беседка в виде большой террасы располагаются на одном фундаменте под общей кровлей , такое конструктивное решение предполагает равномерное распределение несущей нагрузки на все сооружение. Фундамент делается ленточный или свайный на одинаковую глубину по всему периметру сооружения.

Пример проекта 2
Вторая конструктивная схема – баня на ленточном фундаменте с пристроенной беседкой под навесом. Балки навеса имеют опору на одну из стен бани. Кровля навеса опирается на стойки со свайным фундаментом. Две части сооружения имеют разную несущую нагрузку и работают по отдельности.

Пример проекта 3
Комплекс сооружений из двух отдельных сооружений: бани и беседки-барбекю. В этом варианте возводится два отдельных фундамента и две отдельные крыши, соединенные крытым переходом. Например, на участке уже имеется баня, но вам нужно сделать крытую беседку для шашлыка. Тогда выбираем второй вариант, и достраиваем навес. Проще всего сделать его односкатным, такую пристройку можно выстроить самостоятельно, имея начальные строительные навыки. Третий вариант потребует выделения дополнительного места для строительства и будет иметь более высокую сметную стоимость по сравнению с пристройкой навеса.

Объединяя эти два объекта – зону отдыха с мангалом и баню, решают сразу несколько задач.
- Практическая польза – коммуникации прокладывают к одному участку землевладения – дорожки, водопровод, электричество будут обслуживать два объекта. Это сокращает затраты на материал и земельные работы.
- Комфортность обслуживания и использования – наличие капитального строения бани позволит использовать ее в холодное время года, когда время пребывания на свежем воздухе сокращается.
- Декоративный эффект – оформленный в одном стиле комплекс сооружений для отдыха и банных процедур станет красивым акцентом участка.
При объединении зоны барбекю с баней надо следовать инструкциям по соблюдению правил пожарной безопасности.
- Уличная печка или жаровня снабжается дымоходом, и строится защитная стенка от ветра, которая будет обеспечивать ровное горение.
- Размер беседки или навеса нежелательно делать меньше 4,5 метра в ширину, это нужно для обеспечения свободного подхода к жаровне и отсутствия задымленности в зоне стола и мест для сидения.
- Важным требованием является устройство мангала в дальней от двери в баню части террасы, чтобы вход в предбанник не имел препятствий.
Большое значение имеет ландшафтный обзор с открытой беседки. Для выбора наиболее выигрышной видовой точки обходят всю территорию и рассматривают окружающий пейзаж. Сидя на кресле после банных процедур, приятно видеть не стену соседского сарая или забор, а красивую клумбу, водоем или плодовый сад. Поэтому баню и беседку барбекю ландшафтные дизайнеры советуют располагать на возвышенных или равнинных местах, откуда открываются приятные пейзажи. Низина или впадина на участке – не самый лучший выбор для комплекса отдыха.
Подбирая проект бани, надо провести исследование состава грунта, узнать глубину промерзания в данной местности, насколько почва подвержена вспучиванию. Обычно все эти данные можно получить в районном отделе архитектуры.
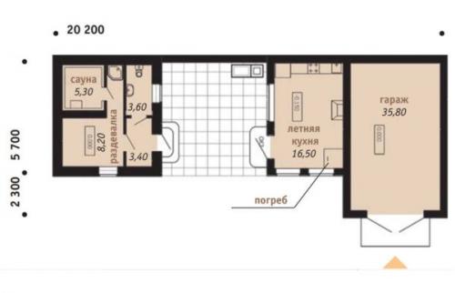
Баня с беседкой из блоков. Размеры, планировка и эскизы
Чаще всего баня – не отапливаемое помещение, используемое по прямому назначению один – два раза в неделю и рассчитанное на одну семью. Отсюда вытекают особенности проектирования, и нюансы утепления.

Большими такие бани бывают редко, иначе их подготовка к разовой процедуре нивелирует все удовольствие от самого процесса. Баньку надо быстро протопить, затратив на это минимум сил и средств.
Рассмотрим некоторые проекты бань с беседкой, рассчитанных на семью из 3 человек.


В них показаны оптимальные размеры парилок, которые быстро выводятся в рабочий режим. Остальные помещения подобраны чисто по вкусу застройщиков и функциональному наполнению. Очевидно, если мойка – обязательный атрибут даже самой маленькой бани – служит только по прямому назначению, то площадь в 2 кв.м. вполне приемлема, но если в ней планируется установка дополнительного оборудования, то ее надо увеличивать. Терраса же глубиной 1,5 м не позволит комфортно разместить стандартный кухонный стол со стульями вокруг него, нужно минимум 1,8 м. А вот размеры комнаты отдыха в 11 кв.м. для бани с парной 4 квадрата на наш взгляд великоваты. Поэтому данные проекты нам кажутся не совсем продуманными. Еще одна их особенность – отсутствие санузлов, что вполне допустимо, но вряд ли целесообразно, учитывая специфику помещений и то, что канализация в них, все же, предусмотрена.
Для просмотра проектов нажмите на них.
При устройстве второго или мансардного этажа следует также предусмотреть дополнительную площадь для размещения лестницы. Представленные в данной группе проектов бани, рассчитаны на большее количество людей, но чисто с технической точки зрения выглядят более продуманными. Хотя нахождение санузла в предлагаемом месте на последнем из них, не кажется оправданным, ведь устройство его у стены моечной ничуть не хуже, но позволит сократить водяную и канализационную магистрали.
Также, при возведении бани из блоков желательно скорректировать габариты вашей бани под их конкретные размеры.
А вот проект бани с беседкой под одной крышей для одновременного посещения 8 – 10 человек, с технической точки зрения продуман хорошо.

Здесь, и возможность устройства короткой прямой ветки канализации, и отдельный вход через беседку для подноски дров в топочную, и зонирование достаточно обширной комнаты отдыха.
А вот варианты размещения беседки совместно с баней, или ее подобия – террасы (иногда совмещения обоих) – будут рациональными с устройством таких крыш:



Часто атрибутом такой площадки для отдыха становится камин, барбекю или другой подобный прибор.


А вот его обслуживание вне помещения значительно упрощается.
Баня со стеклянной беседкой. Баня совмещенная с беседкой: варианты проектов, материалы, размеры, оформление
Хозяева, которые купили дачный участок для отдыха вдали от городской суеты на свежем воздухе, обязательно захотят дополнить его такой постройкой, как баня с беседкой. Это отличный вариант для отдыха семьей или с шумной компанией друзей. Уместна будет установка барбекю, мангала. В зависимости от площади сооружение дополняют комнатой отдыха, бассейном, достраивают второй этаж.

Спроектировать, возвести и оформить конструкцию владельцы могут сами или пригласить для этого мастеров.
Рекомендуем ознакомиться с другими статьями:
- Штукатурка для печей
Разнообразие проектов бани с беседкой
Для экономии времени на разработку, можно воспользоваться уже готовыми стандартными чертежами, схемами. Но при этом стоит учесть климатические особенности региона, тип почвы, глубину ее промерзания и правильно выбрать место.
Выбор в пользу беседки, пристроенной к бане, дает хозяевам такие преимущества:
- Появляется дополнительная площадка для летнего отдыха, а если остеклить и утеплить, то и для зимнего.
- Совместный проект пристроя с баней позволяет экономично расходовать стройматериалы, сокращая затраты на них до 15%.
- Повышенный уровень комфортности отдыха. После пребывания в парной гости смогут переместиться на свежий воздух, где их ждет еда, приготовленная на огне.
- Пристраивать беседку не только дешевле, но и быстрее, чем возводить две отдельно стоящих конструкции с фундаментом.
- Можно оформить интерьер в разных стилях или в одном.
Разберем самые часто встречающиеся проекты.
Под одной крышей

Проект бани с террасой
Подразумевает строительство беседки одновременно с баней. Фундамент выбирается ленточный, на подвижных грунтах – свайный, крыша – односкатная. Такое размещение позволяет равномерно распределить несущую нагрузку. Пристройка зачастую представляет навес, огороженный со всех сторон перилами.

Деревянная баня с верандой под двускатной крышей
Проект под общей кровлей обойдется недорого. Его не так сложно построить своими силами. Еще один плюс в том, что упрощается чистка зимой от снега.
В беседке размерами 2,6*2 м помимо обеденной зоны (стола со стульями) компактно разместится и барбекю.

Встречаются проекты с более сложными конструкциями крыш – вальмовой, двухскатной. При выборе направления для покатой крыши во внимание берется роза ветров.
Чаще всего делают баню с беседкой под общей крышей размером 6*4 м.
Пользователи часто ищут:
- Какие камни для бани лучше выбрать
С барбекю или мангалом
Соединить баню с беседкой и барбекю – это значит, получить сразу две зоны отдыха.

Среди других преимуществ такого решения:
- Сокращение затрат на прокладку коммуникаций (водоснабжения, канализации, электричества). Уменьшение объема земляных работ.
- Обустройство беседки в виде закрытого домика позволит эксплуатировать банный комплекс круглый год, дополнив барбекю печью или камином для обогрева.
- Оформление конструкции в одном дизайне сделает ее красивым дополнением двора.

Установка барбекю требует четкого соблюдения норм пожарной безопасности. Уличные приспособления снабжают трубой для отвода дыма, строят стену из кирпича, которая будет защищать мангальную установку от сильного ветра.
Барбекю ставят вдали от входа в беседку или баню, чтобы дым не мешал отдыхающим. По этой же причине при крепеже дымоходной трубы учитывается направление ветра, чтобы посиделки у костра не вызвали недовольство соседей.

Не рекомендуется ставить постройку на низменных местах, в впадинах. Лучший выбор – равнина или возвышенная точка на усадьбе. Так перед глазами будет открываться красивый вид.

Разрабатывая план конструкции, обязательно согласовывайте его с местными архитекторами, проверяйте на соответствие действующим нормам СНиП.
Проект бани с беседкой из блоков. Проекты бань из газобетона — бесплатные схемы с мансардой, комнатой отдыха и террасой, одноэтажная и двухэтажная баня
При решении о строительстве бани на своем участке многие сразу представляют себе деревянный домик, сделанный из сруба. Да, раньше этот вариант был наиболее часто используемым, так как альтернатив древесным конструкциям не было. Однако, в современности этот вопрос имеет куда более широкое решение.

Мода на бревенчатые бани постепенно проходит, но это легко объяснить резким подорожанием этого материала. Да и практичность древесины в этом вопросе не так уж высока. Гораздо более популярен в последнее время в качестве строительного материала газобетонный блок.

Подходит ли газобетон для бань
Многих волнует вопрос возможности использования газобетонных блоков для строительства бань. Принято думать, что только естественная древесина дает легкость дыхания в бане. Однако, газобетон имеет такие же свойства в этом плане, как и хвоя или лиственница.

Несмотря на то, что материал не естественный, он не выделяет при парообразовании никаких вредных элементов. Теплообменные качества очень высоки и, благодаря этому, бани из таких блоков будут хорошо держать горячий пар внутри. При этом стоит отметить, что сами стены нагреваться не будут.

Есть у материала и существенные преимущества перед древесиной, главное из которых — простота строительства. К преимуществам в сравнении с деревом можно отнести и негорючесть материала, которая особенно важна для строений с печами. И грибковые поражения при постоянной влажности такому материалу не страшны, в отличие от древесины.
Достоинства и недостатки материала
У газобетонных блоков в части строительства бань можно отметить огромное количество достоинств:
- Плотность материала именно такая, как необходимо для строительства бани.
- Материал прочный и устойчив к перепадам температур, так что баня выстоит в любые морозы и при воздействии разных неблагоприятных факторов.
- Не смотря на крупный размер блоков, по весу они очень легкие, возведение стен будет быстрым и без применения спецтехники.
- Кладка блоков из газобетона не требует высоких профессиональных навыков. Достаточно ознакомиться с подробной инструкцией и следовать ей в процессе возведения.
- По цене материал гораздо дешевле, чем древесный сруб и вся постройка будет не дорогой.
- Работа с материалом производится подручными инструментами. В уже готовых стенах легко вырезать отверстия под коммуникации.
- Так как при изготовлении используется только природное сырье, газобетон можно отнести к экологичным видам строительных блоков.
- Этот вариант строительного материала практически не имеет усадки и не поддается появлению микротрещин.
- Материал не горюч, что особенно важно при наличии печи. Кроме того, при любом нагреве он не будет выделять в воздух отравляющих веществ.
- Можно оформить баню из газобетона разными вариантами отделки внешней и внутренней в отличие от дерева.
- Насекомые и грызуны не любят газобетон, они не смогут проникнуть внутрь и испортить кладку.
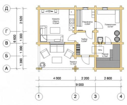
Проекты баня с беседкой и летней кухней. Варианты проектов
План объединенной постройки, в основном, исходит из площади территории. Ее размеры могут доходить до десяти метров по одной стене.

Баня с кухней из дерева
Виды проектов:
- Кухня в бане. Даже в самое небольшое помещение можно уместить парную, душевую, комнату для отдыха, уборную. Подобная планировка предусмотрена для небольшой семьи. Чтобы сэкономить место, устанавливают раскладные диван и кресла, что позволяет оставаться здесь на ночь;

- Баня с летней кухней и террасой. Здесь предусматривается кухня закрытого типа, размещенная в обособленной комнате. Подобное решение уместно для тех, кто желает иметь на придомовой территории помимо бани, домик для гостей. Если есть тамбур, то баню можно посещать и в холодный период времени. Здесь можно разместить компактную парную, просторную помывочную, санузел. Если позволяет место обустраивают купель или маленький бассейн. На террасе часто устанавливают гриль или барбекю;
Заметка для читателя! Возможно вам также будет интересно посмотреть проекты летних кухонь с барбекю и печью .

- Гараж с баней и летней кухней. Такой проект уместен при наличии отдельного дома, но при отсутствии гаража и бани. Группировка этих построек сохраняет полезное пространство. Гараж с баней лучше разделять летней кухней, чтобы избавиться от возведения усиленной гидроизоляции, а также спасти гараж от повышенной влажности, присущей банной зоне;


- Двухэтажная угловая баня с кухней. На нижнем этаже расположены основные комнаты – кухня, гостиная, уборная, тамбур, котельная и парная. На втором этаже размещена спальня с отдельным санузлом. Важную роль здесь играет расположение лестницы – ее делают удобной, не сильно крутой и не занимающей много полезного пространства. Таким образом, подобное сооружение не только выполняет свои основные функции, но и выступает отличным местом для проживания небольшой семьи;

- Баня с летней кухней, верандой и санузлом под одной крышей. Это решение также является аналогом полноценного загородного коттеджа. В нем найдется все для проживания — кухня, комната отдыха, санузел и для отличного отдыха – парная, помывочная, раздевалка, тамбур, терраса с летней кухней. Подобное строение подходит для всесезонного использования. Летом организуют пикник на летней кухне, даже в ненастную погоду, так как у террасы имеется крыша. А зимой проживают в доме, где тоже есть своя кухня;


- Зимний вариант. Если по периметру строения провести отопительные трубы от водонагревателя, то им можно пользоваться круглый год. Теплоэнергия от топки обогревает все пространство. Здесь предусматривается баня с сухим паром для уменьшения влажности, а для сушки делают качественную вентиляцию. Есть небольшая раздевался, кухня-гостиная с обеденной зоной и просторная веранда;

- Двухэтажное строение с мансардным этажом. У такой постройки компактные размеры и большая полезная площадь. На первом этаже расположена кухня, гостиная, тамбур, санузел, парная и помывочная. На мансардном этаже сделана спальня. Труба от печки поддерживает комфортную температуру на мансарде.


Готовая баня с беседкой. Баня с беседкой — проекты совмещения под одной крышей двух разных помещений (85 фото)
Баня сама по себе обладает рядом преимуществ. Баня с беседкой – отличное место для отдыха, которое позволит расслабиться, побыть на свежем воздухе с защитой от непогоды в виде навеса. Плюсами будут также удобство, комфорт и компактное расположение, к тому же экономия.

Возможно большое количество вариаций форм и размеров бани с беседкой, благодаря чему можно проявить креативность и выбрать подходящий дизайн.

Плюсы бани с беседкой
Рассмотрим достоинства объединения бани и беседки в одно целое:
- несомненным плюсом будет значительное расширение функциональной составляющей – можно использовать в качестве летней кухни, также можно оборудовать беседку мангалом;
- баня и беседка, объединённые воедино, позволят освободить дополнительную свободную площадь, в том числе за счет того, что нет необходимости соединять специальными дорожками отдельные постройки;
- экономия средств – потребуется меньше стройматериалов, так как крыша, фундамент, коммуникации, инженерные системы, освещение у строений будут общими;
- укрепление прочности строения за счет конструкции с дополнительными несущими;
- общий стиль – так как строения будут единым целым, вопрос их сочетания решается сам собой;
- лечебный эффект – сразу после парения можно посидеть на свежем воздухе, а это несомненный плюс здоровью;
- сокращается время, которое нужно для постройки – можно уложиться в один сезон

Типы бань с беседками
Баня с беседкой может быть построена в разных вариантах. В качестве основных выделяют:
Открытого типа. Беседка исполняется так, что у нее и бани один пол и кровля, при этом для беседки сооружаются несущие конструкции, могут устанавливаться перила и бордюры.

С точки зрения затрат, беседки открытого типа – самые дешевые, не требуют сырья на стены и отделку. Сама конструкция является довольно легкой. Недостаток такой вариации – не обеспечивает защиту от порывов ветра или от косого дождя.

Закрытого – единое здание, несущие стены строятся и для беседки, важным элементом будет остекленение. Рассматриваемый тип станет комфортным местом для расслабления и в холодные времена года. Баня с беседкой закрытого типа имеет монолитный вид.
Полуоткрытого или комбинированного типа. Вариация представляет собой компромисс предыдущих двух. Строят одну или несколько несущих стен, например, для защиты от ветра. В стену может быть встроен камин.
Данный тип может быть реализован и таким способом: строится закрытая беседка совместно с баней, при этом конструкция стен беседки позволяет при необходимости их убрать – задвинуть или отсоединить, превратив закрытую беседку в открытую. Удобно сделать этот вариант в виде бани с беседкой и барбекю.
Также беседки можно расположить в нескольких модификациях по отношению к самой бане.
Так, например, баня с беседкой под одной крышей имеет:
- одноуровневые крыша и пол;
- общую стену с крышей и полами на разных уровнях;
- два отдельных строения рядом, объединённые общим переходом.
Последний вариант представляется довольно оригинальным и функциональным решением, исключающим пагубное воздействие влаги на строй материалы.
Интересным вариантом будет пристройка к основному зданию бани беседки в форме шестигранника. В такой конструкции можно удобно разместить санузел, печь для готовки и т.д.
С формой строения можно поэкспериментировать, например, на просторах Интернета есть фото бани с беседкой в виде бочки.
Возможен и такой проект бани с беседкой, как двухэтажный вариант – надстройка второго этажа бани. Можно сделать помещение для дров и для барбекю. Эта вариация может использоваться и в качестве дачного домика или полноценного жилого помещения.
Можно также использовать такое строение в качестве дополнительной комнаты для гостей. При этом не нужно забывать, в чем основное предназначение бани. Поэтому основной комнатой должна оставаться парная. Остальные – приложением к ней.
Выбор строительного материала
Обычно в качестве материала для постройки пользуются пенобетоном, так как работать с ним легко благодаря маленькому весу, небольшой стоимости и возможности корректировать размер блока при помощи обычной ножовки.
Исторически сложившейся традицией считается баня из бруса. Такой стройматериал является экологически безопасным, к тому же плохо проводит тепло, что позволяет сохранять его продолжительное время. Бонусом будет приятный и целебный запах.
Распространенный стройматериал – кирпич. Преимущества – жаро- и морозостойкость, большой срок службы.
Источник: https://bani-iz-brusa.postroivsesam.info/novosti/banya-s-besedkoy-i-barbekyu-osobennosti
Дом баня беседка под одной крышей. Бани-дома-беседки — совмещать ли все вместе?
Сегодня архитекторы все чаще предлагают своим заказчикам интересный проект – баня, совмещенная беседкой с домом. И это вместо трех разных объектов на участке, которые далеко не всегда гармонично смотрятся друг с другом. А вот вместе они образуют достаточно красивое и функциональное сооружение, на которое уходит средств намного меньше, чем если бы строить все это по отдельности.
Вот, к примеру, как можно воедино соединить баню, беседку и жилой дом:
В чем плюсы такого проекта? В том, что у всех трех строений:
- Один монолитный фундамент – на одной высоте, одного качества.
- Одна система отопления, а, значит, одна котельная.
- Один прекрасно выдержанный стиль, вплоть до мелочей.
- Рациональное использование площади участка, т.е. значительная ее экономия.
- Современный уютный и эстетичный вид всего строения.
Когда баня, беседка и дом расположены именно таким образом, куда проще и рациональнее планируется ландшафтный дизайн участка. Ведь на самом деле все архитектурные объекты по типу гаража, парной или сарая – это не элементы экстерьера дома, а самые настоящие его стоп-акценты. И сад, под который отдано немало свободной земли, без каких-либо лишних построек, только выигрывает. С другой стороны, с задней стены дома даже забор особо не нужен – такая линия объектов прекрасно закрывает участок от любопытных соседских глаз.
Сама беседка в этом плане будет куда устойчивее и долговечнее, чем ее просто пристраивать к бане – ведь теперь она, как промежуточный элемент, еще и статична. Как раз ей не страшны ни движения почвы, ни ее вспучивание. И даже крыши всех трех зданий можно соединять воедино – как известно из законов физики, все, что монолитно — всегда крепче и надежнее, чем собранное из отдельных элементов. А оборудовать в ней самой можно что угодно: и пати с искусственным прудом, и бассейн, и зимний сад, и барбекю – все, что душе угодно.
Баня-беседка-дом который построил один из наших читателей
И, наконец, такая беседка может быть полностью открытого типа, т.е. летней, или же иметь стеклянные стены и раздвижные алюминиевые профили. В первом случае тогда необходимо заранее хорошо продумать, как защитить все материалы от агрессивного воздействия окружающей среды и природы – от мусора, пыли, дождя, града, ветра и снега. К примеру, даже пол должен быть крепким и износоустойчивым – сегодня для этого россияне чаще всего приобретают специальную террасную доску, которая когда-то впервые появилась в Америке, но лопалась от мороза, зато теперь славится особой прочностью. Также и сам камин, и столешницы у барбекю должны быть из такого материала, которому не страшны ни перепады температур, ни воздействие атмосферных осадков – да, их все равно загонит ветер, даже под крышу.
Вот так выглядит вечерняя беседка в этом проекте
А вот куда рациональнее и проще, если беседка сможет закрываться, хотя бы прозрачными стеклянными стенами и дверями-купе – по такой можно не одеваясь пройти из дома в баню, зимой наделать шашлыков и попариться в любимой баньке с друзьями, тем более, что одного только камина будет вполне достаточно для обогрева этой небольшой, но уютной территории.