3 этапа планировки бани 4х5. Требуемые материалы
3 этапа планировки бани 4х5. Требуемые материалы
При постройке бани важно выбрать такие материалы, которые будут выглядеть красиво и станут практичным вариантом. Ведь у бани есть множество функций: нагрев, сохранение тепла, способность выдерживания температуры.
Не следует забывать про внешний вид здания.
- Классическое дерево. Наиболее популярный вариант для создания бани. Деревянное сырье позволит сохранить тепло в помещении, а также подарит приятный запах древесины. Хорошая функциональность дополняется красивым внешним оформлением. Поэтому дерево – самый подходящий вариант для создания бани.
- Древесные бревна. Также является хорошим вариантом. Однако, перед использованием этого сырья нужно подождать некоторое время – чтобы завершился процесс усадки. В процессе постройки важно учесть некоторые моменты. Например, распланировать размещение труб и других деталей бани. После завершения основного этапа важно облицовывать баню кирпичом, а также обработать поверхности от вредных насекомых. Это позволит помещению служить более долгий срок.
- Кирпич. Наиболее выгодный материал. Не требует дополнительной обработке, не подвергается пожару и огню, обладает привлекательным и статным внешним видом. Однако, главной особенностью является необходимость дополнительной вентиляции. Это обуславливается тем, что закрытое помещение из кирпича может отсыреть. Также, желательно проводить регулярный прогрев бани.
- Так как баня площадью 4 на 5 является компактным вариантом, то зачастую такое помещение возводится на водоемах. В этом случае применяется пластик или пеноблок. В результате баня будет легкой, компактной и обладающей всеми нужными функциями.
Проект бани 4 на 5 с мансардой. Баня 4х5 с мансардой по эскизу заказчика
Все фотографии принадлежат компании "Русские плотники".
В сентябре 2016 года нами построена баня в Сергиево-Посадском районе. Эскиз был разработан заказчиком самостоятельно, исходя из особенностей участка и пожеланий семейства. По-моему вышла компактная и функциональная постройка, сочетающая в себе собственно баню, которая заняла первый этаж, и приличное спальное место на мансарде.

Свайно-винтовой фундамент, предоставленный заказчиком, усилен (обвязан) по периметру стальным профилем. Это было сделано по той причине, что сваи возвышаются над землёй на разной высоте из-за особенностей ландшафта.
Основание бани (обвязка), лаги пола, черновой пол и все элементы силовой конструкции изготовлены из пиломатериалов камерной сушки (наша опция – «сухой комплект»). На стены и перегородки заложен профилированный брус камерной сушки, сечением 145*95 мм, профиля «блок-хаус». Сруб собирали на деревянные нагеля с применением пружинного узла СИЛА.
Фронтоны кровли отделаны снаружи блок-хаусом 28*140 мм. В «карманах» кровли установлены вентиляционные лючки На крышу постелили профнастил с полимерным покрытием цвета «зелёный мох» (RAL6005). Устроили систему водостока фирмы ДЁКЕ, смонтировали снегозадержатели.
В моечной устроен «протекающий пол», с выводом стока за периметр бани. Стены и потолок моечной отделаны вагонкой из лиственницы «А». Стены и потолок парилки – вагонкой из осины «А». Брусовая основа стен этих помещений была обработана защитным составом НЕОМИД, затем устроена пароизоляция, контробрешётка и только потом стены обшиты вагонкой, с учётом необходимого зазора на усадку.
Печь было решено оставить базовую – ЕРМАК 12 с навесным баком из нержавейки, ёмкостью 35 л. Вертикальный дымоход, проходящий через мансарду, выполнен из стальных нержавеющих сэндвич-труб 115*200 мм. Разделка топочного портала кирпичом заложена в базовой комплектации.
В качестве бонуса, вся постройка была обработана снаружи и изнутри огнебиозащитным составом НЕОМИД.
Фото строительства бани 4х5 из бруса







Бригада из двух человек собрала баню за 12 дней. Стоимость бани в приведённой комплектации: 577000 рублей .
Благодарим заказчика Владимира Игоревича и его семейство, за оказанное нам доверие и возможность заработать. Спасибо от всего коллектива «РУССКИХ ПЛОТНИКОВ», лёгкого пара и доброго здоровья!

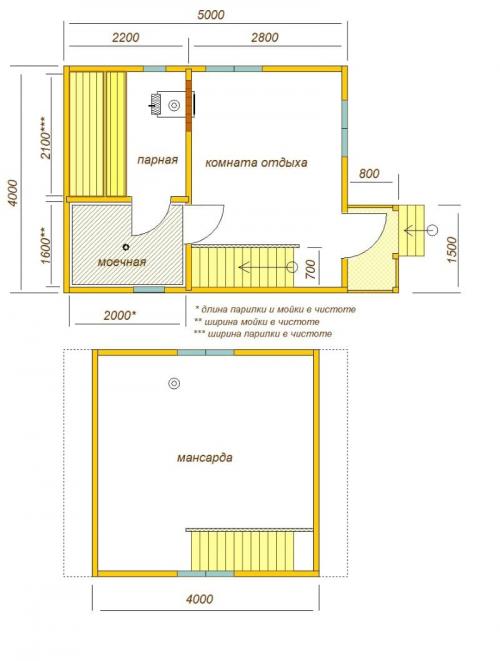
Баня 5 на 4 планировка. Планировка помещений
Чтобы в бане комфортно размещалась большая семья, планировку можно сделать, немного скорректировав внутреннее пространство. В этом случае допустимо немного увеличить площадь парилки, тем самым создав возможность парится в ней большему количеству людей. Не стоит сильно занижать габариты комнаты отдыха. Пожертвуйте парой квадратов моечного отделения. Тогда можно будет отдыхать большой компанией, париться, а принимать водные процедуры по очереди.
Как обустроить предбанник?
Это своеобразная воздушная подушка, между холодом на улице и теплом в моечном отделении. Поэтому отдельного внимания требует процедура утепления стен.Нельзя недооценивать его функциональность. Предбанник защищает помещения от холодов и позволяет отдохнуть после парной. Идеальный размер в бане с габаритами 4х5 – это метр в ширину и 3–3,5 в длину. При этом вход в баню можно сделать с одного края, отгородив само помещение еще одной дверью. Таким образом, холодный воздух не будет попадать в комнату отдыха.
Создать дополнительный уют, позволит печь растапливаемая из предбанника. В таком случае вход в моечное отделение должен быть посередине. Парная и помещение с душем располагаться по разным сторонам, при этом парилка должна одной стеной контактировать с комнатой отдыха. В этой стороне и устанавливают печное отопление, чтобы оно работало на обогрев двух помещений. Кроме правильного расположения предбанника и его взаимодействия с другими помещениями необходимо придерживаться следующих рекомендаций:
- утепление стен обязательно двойное, чтобы минимизировались любые тепловые потери;
- необходимо качественное освещение не только искусственным способом, дополнительно необходимо установить окно;
- расположение скамеек для отдыха и вешалок для одежды прорабатывается отдельно.
Делаем моечное отделение
Планировка позволяет сделать отделение помывки относительно большим. Допускается расположение нескольких леек при условии использования прямого доступа воды. Особые требования есть и в сооружении этого отделения. Например, площадь рассчитывается исходя из 1 м/кв на человека. Допускается небольшое снижение габаритов, если необходимо перепланировать помещения. Оптимальным размером для бани в 4х5 метра, будет моечное помещение габаритами от 1,8 до 2 метров. На такой площади можно расположить все удобства, включая скамейки для установки банных принадлежностей.
В моечном отделении, просто необходима вентиляция. Для больших помещений можно сделать два продуха в верхней части стен или одно полноценное окно. В некоторых вариантах вентиляционные отверстия располагают внизу и вверху, чтобы обеспечить постоянный приток воздуха по всему помещению. Это больше необходимо для проветривания деревянного пола. Если отделка поверхности произведена керамикой, то достаточно естественной вентиляции, без создания дополнительного притока.
Правильная конструкция парной
Самое важно функциональное отделение в бане. К обустройству парной предъявляются повышенные требования. Учитывая, что в бане 4х5 метров парилке отводится довольно просторное помещение, необходимо позаботиться о высокой температуре, достаточной для проведения соответствующих процедур. Поэтому рекомендуется делать печь-каменку, предварительно соорудив в предполагаемом месте кладки фундамент.
Использование устройств работающих от электрических тэнов не всегда оправданно в экономическом плане, что сказывается на высоких показателях расхода энергии. Снизить зависимость потребления можно двойной теплоизоляцией парного отделения или дополнительной установкой парогенераторов.
К правильной конструкции парного отделения относится и уровень комфортного передвижения. Общие габариты бани позволяют не экономить на пространстве и в некоторых случаях можно пожертвовать местом в моечной и комнате отдыха для создания пространства в парилке. В этом плане выгоднее будут электрические печи. Но для них придется отдельно прокладывать электропроводку.Каменка выгоднее, но она занимает больше места. Необходимо найти оптимальный вариант. Потому как помещение рассчитано на несколько человек, не должно быть дискомфорта, обоснованного нехваткой места.
Форма парной – правильный квадрат или прямоугольник в зависимости от расположения. В любом случае, необходимо прорабатывать установку печи таким образом, чтобы она находилась в противоположной стороне от полок. Если топится печь будет из предбанника, то согласно расположению парные места конструируются в другой плоскости.
Проект бани 4 н. Проекты
Проект – это, наверное, самый важный этап. При составлении плана стоит заранее учесть расположение комнат, продумать размещение коммуникаций (электрика, вытяжка, вода), расположение дверей и окон. Готовые проекты, схемы и чертежи можно найти в интернете, разработать самостоятельно или обратиться в специализированные компании. Последний вариант хорош тем, что при разработке проекта будут дополнительно учитываться особенности участка.
Что касается планировки бани 4 на 4, то нужно предусмотреть наличие парной, мойки и комнаты отдыха (для экономии места часто совмещают с предбанником). При этом парная должна быть больше по площади, поскольку в ней одновременно находятся несколько человек.


Если средства позволяют, лучше выбирать проект с 2 этажами. В этом случае на первом этаже отдельно размещается баня, на втором – гостевая или комната отдыха. При этом строение остается компактным, что актуально для небольших по размеру участков.
Еще один вариант увеличить площадь – мансарда . Затрат на строительство меньше, но в итоге получается небольшое помещение, которое можно использовать, как гостевую комнату. Плюс – возможность организовать на втором этаже полноценный балкон или комнату с террасой (опорные столбы также послужат основанием для небольшой веранды).
Также стоит продумать расположение полок, необходимой мебели, предусмотреть места для хранения инвентаря, мыла, шампуня, масел. Пары навесных полок будет достаточно.
Количество полок зависит от высоты бани (одноэтажная или двухэтажная). Лучше предусмотреть 2 или 3 яруса.
- такое решение позволит с комфортом разместиться в парной компании из нескольких человек.
- выбрать комфортную температуру.

Печь лучше установить у стены между предбанником и парной – это удобнее и безопаснее, особенно, если любите поддавать воды на каменку.
В моечной обычно устанавливают лавки , предусматривают места для хранения ковшиков, тазов. При желании можно установить душевую кабину .
Комната отдыха обставляется по желанию хозяев. Минимальный набор мебели – стол и пара стульев.

На стенах предбанника, который одновременно служит раздевалкой, закрепляют крючки для одежды. Если площадь позволяет, можно выделить место для хранения дров.
Несмотря на компактность, в помещении размером 4х4 можно разместить все необходимое. Оптимальный вариант – доверить проектные работы специалисту. Впоследствии не возникнет проблем с подводкой водопроводных труб или с обустройством канализации.
Важно: при планировке учитывайте, что все двери должны свободно открываться наружу, не препятствуя выходу из помещения.

При выборе проекта стоит учитывать:
- количество членов семьи, например, если есть маленький ребенок, то стоит выделить место для теплого предбанника;
- назначение – любителям попариться стоит рассмотреть варианты с большой парной.
При выборе проекта стоит заранее рассчитать стоимость необходимых материалов для строительства и последующей декоративной отделки.

Баня 4 на 5 своими руками. Выбор проекта
На маленьком земельном участке целесообразно поставить баню с мансардой размером 4 на 5 метров. Несмотря на то, что она имеет площадь всего 20 кв. м., в ней легко разместится парная, помывочная и комната отдыха. А на втором этаже получится полноценное свободное помещение. Однако размер помещений существенно сократится из-за необходимости обустройства лестницы.
Перед началом строительства следует выбрать проект. Для бани площадью 20 кв.м. их количество немногочисленно.
Проект бани
Это один из наиболее простых проектов. В просторной помывочной можно легко разместить и ванну, и душевую кабинку. Подобная планировка лучше всего подойдет тем, кто любит принимать водные процедуры. Лестница на второй этаж получится достаточно крутая. Но это позволит сэкономить пространство в комнате отдыха.
Еще два варианта расположения помещений в бане выглядят так.
Вариант планировки помещений в бане
Здесь получается обустроить более свободную комнату отдыха, но помывочная и парная получаются намного меньше. Данный вариант понравится тем, кто предпочитает комфортно отдыхать после принятия банных процедур. На первом эскизе лестница идет вдоль 4-х метровой стены. Это позволяет сместить входную дверь от печки. На втором эскизе лестница располагается вдоль 5-ти метровой стены. Но вход находится рядом с топкой. Такое расположение может сделать эксплуатацию данного помещения неудобным.
Проект бани 5 на 4 из блоков. Выбор материалов
Сделайте выбор в пользу практичности, ведь стены бани должны быть теплопроводными, чтобы она быстро нагревалась и сохраняла тепло, прочными, чтобы «пережить» и дожди, и снежные заносы, а также «дышащими», чтобы выдерживать высокие температуры. Ну а эстетичный вид будущей бани сформирует фактура материала.
- Дерево издавна считается лучшим материалом для строительства бани. Натуральный материал, удерживающий в помещении тепло и уют даже в зимнюю стужу, минимизирует затраты на отопление. Снаружи на баню приятно посмотреть, а внутри стоит приятный запах древесины.
- Бани из бревен подвержены усадке, поэтому приступать к отделочным работам можно примерно через полгода после окончания стройки. В целях пожарной безопасности продумайте расположение печных труб. Щели между бревнами конопатят натуральным мхом или синтетическим герметиком.
Для долговечности баню нужно облицевать кирпичом или сайдингом, а также обработать средством от вредителей.
- Деревянный брус, спиленный с двух или четырех сторон легко укладывать, что значительно ускоряет сроки строительства. Небольшая усадка позволяет сразу приступать к отделочным работам, постройка выглядит аккуратной. К серьезным недостаткам бруса можно отнести горючесть и склонность к образованию грибка, такая баня нуждается в проветривании и качественной дренажной системе.
- Баня из кирпича долговечна и пожаробезопасна, она не нуждается во внешней отделке и органично смотрится с другими дачными строениями. Однако стены кирпичной бани нуждаются в более длительном прогревании, при отсутствии качественной вентиляции они становятся сырыми.
- Пеноблоки с пористой структурой, высокопрочные керамзитобетонные блоки или шлакоблоки с высокой теплоизоляцией применяют для строительства бань из блоков. Их неоспоримым преимуществом является быстрота работы и минимальная усадка. Они обладают морозо- и огнестойкостью, прочностью и долговечностью. Наружная и внутренняя гидроизоляция защитит блочные бани от воды, а специальные опоры укрепят кровлю.
- Бани на плоту строят на реках или искусственных водоемах. На пластиковом или деревянном понтоне устанавливают деревянный каркас бани: ведь плавучая постройка не должна быть тяжелой. Внутри бани размещают предбанник, парилку, душевую и туалет. Нахождение людей в одном банном помещении неприемлемо, а их количество строго регламентируется в зависимости от веса.
- Плавучая баня — дорогое удовольствие, для постройки требуется вывод грязной воды за пределы водоохранной зоны или многоступенчатая система очистки. Иначе никто не даст разрешения на строительство.
- Владельцы своего пруда в специальном разрешении не нуждаются, но вывод грязной воды нужно спроектировать задолго до начала строительства. Да и в регионах с суровыми зимами такая постройка неудобна: до начала холодов баню нужно вынести на берег, разобрать и убрать в тепло до весны.