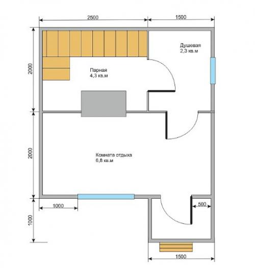
Каркасная баня 3х4 своими руками. Проект каркасной бани 3х4 м
- Каркасная баня 3х4 своими руками. Проект каркасной бани 3х4 м
- Рабочие чертежи каркасной бани. Каркас стен дома
- Проект каркасной бани 6х4. Разработка проекта
- Каркасная баня своими руками. Как построить каркасную баню самому: преимущества и особенности самостоятельного строительства
- Каркасная баня 3 на 5 своими руками. Тонкости проектирования
- Баня 3 на 4 своими руками. Преимущества бани 3 на 4 из сруба
Каркасная баня 3х4 своими руками. Проект каркасной бани 3х4 м
Под такую постройку достаточно ленточного или столбчатого фундамента. Сооружение практически не дает усадки ввиду своей легкости, поэтому для основы маленькой каркасной бани необходимо приобрести лишь хорошо просушенный брус размерами 20х20 см для стоек и доску. Чертежи наиболее простых и малозатратных бань можно увидеть ниже.


К преимуществам каркасных бань также можно отнести отсутствие деформации, возможность сделать инженерные коммуникации скрытыми, разнообразие отделочных материалов. Строение с квадратурой 12 м2также прекрасно удерживает тепло, как и сруб.
Чтобы ваша баня прослужила долго и не требовала ремонта, необходимо обратить внимание на следующие моменты:
- каркас должен рассполагаться на ровной поверхности;
- не стоит выбирать самую дешевую термоизоляцию;
- древесина должна быть качественной, не тонкой и тщательно обработанной антисептиками;
- если каркас вызывает сомнения относительно шаткости, его обязательно усиливают подкосами.
Каркасные бани не бояться усадки, так как материал достаточно упруг и не боится усадок. Верхние срезы цоколя ложатся на опорные, хорошо гидроизолированные брусья. Лучше если они будут из дуба, лиственницы или граба. Для связки деревянного пояса и фундамента использую анкера из арматуры (1,4-1,6 см) с крючками, заглубленными в бетон до 20 см. С другой стороны должна присутствовать резьбы под гайку.

Угловые стыки, как правило, делают «под лапу» и закрепляют анкерами. Дальше – выставляются крайние стойки (10х15 см) вертикально и закрепляются при помощи укосин. Толщина стоек должна соответствовать толщине утеплителя.

Для строений 3х4 м допустима установка подкосов на угловых стойках.

Если баня будет двухэтажная, лучше ставить подкосы в каждом пролете. Шаг стоек каркаса 0,6-0,8 м. Они крепятся к опорному брусу при помощи стальных скоб. Брусья должны быть сечением не менее 5х15 см.
Рабочие чертежи каркасной бани. Каркас стен дома
Простая каркасная баня своими руками возводится на основе каркаса. Он выполняет роль «скелета», на котором будут держаться стены строения. Несущий «скелет» каркасной бани 3х4 будет состоять из:
- Двух горизонтальных рядов – нижней и верхней обвязки.
- Восьми вертикальных опор, установленных по углам строения и посередине его стен.
- Укосин для вертикальной фиксации несущих опор, расположенных под углом.
Каркас каркасной бани своими руками.
Деревянные балки бани также важно защитить от влаги. Для этого необходима их пропитка влагостойкими пропитками
После укладки утеплителя деревянный каркас будет защищён также пароизоляционной плёнкой, которую крепят с внутренней стороны теплоизолирующего материала.
После сбора каркаса, для его усиления и прочности, стены обшиваются наружными стеновыми панелями. Это обеспечивают устойчивость стен к боковому сдвигу. Что особенно актуально при строительстве на открытом месте, продуваемом ветрами.
На заметкуСборку каркаса и навешивание наружных панелей выполняют как можно быстрее, в период, когда нет дождей и других осадков.
Крыша каркасной бани
Материал для кровли бюджетной бани выбирают по двум критериям – вес и цена. Он должен иметь невысокую цену и небольшой удельный вес. Для каркасных домов часто используют металлопрофиль или металлочерепицу. Эти кровельные материалы – лёгкие, яркие, красивые и долговечные, с одним недостатком – стоят они достаточно дорого.
Каркасная баня с кровлей под барбекю.
Крыша каркасной бани своими руками может быть смонтирована доступными панелями ОСБ. Они относительно недорого стоят, но требуют защиты от атмосферной влаги. Крыша каркасной бани закрывают рубероидом. После при желании поверх такой кровли можно будет положить битум. Или заменить через несколько лет старый рубероид новым.
Второй вариант сооружения недорогой крыши – не обрезные доски. Их укладывают внахлёст, обеспечивая сток воды сверху вниз. Это – самый недорогой пиломатериал, который также потребует защиты от влаги. Такую крышу необходимо ежегодно красить.
На заметкуЧто ещё учесть: крыша строения должна иметь достаточный свес. То есть расстояние между краем кровельного покрытия и стеной должно быть 600-800 мм.
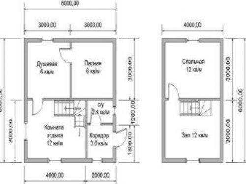
Проект каркасной бани 6х4. Разработка проекта

План постройки с мансардой
Профессионально разработанный проект каркасной бани 6х4 гарантирует целый ряд преимуществ, среди которых:
- Обеспечение длительного эксплуатационного ресурса благодаря профессиональному подходу к подсчету расчетных нагрузок на каркас;
- Возможность подобрать правильный тип стройматериалов в соответствии с нагрузками, оказываемыми на каркас;
- Возможность корректного составления сметы и, как следствие, предотвращение перерасхода стройматериалов;
- Отсутствие затруднений при регистрации строительного объекта в кадастровых органах;
- Более высокая цена при продаже дома вместе с баней на рынке вторичной недвижимости.

План одноэтажной бани 6*4
Из вышесказанного следует то, что проект каркасной бани 6х6 или 6 на 4 необходим. Но если строительство можно выполнить самостоятельно, то разработка и изготовление проектной документации требует профессионального и квалифицированного подхода.
Заказать проекты бань различных конфигураций можно в специализированных бюро. Также проектную документацию можно получить, приобретая готовый комплект каркасной бани. В итоге, вы по предоставленному плану, самостоятельно или с помощью приглашённых монтажников собираете сооружение.

На фото сборка щитовых панелей
В соответствии со стандартной проектной документацией, каркас под быстросборную баню строится с шагом 95-100 см. В качестве основного стройматериала применяется доска 150х50 мм или брус.
Важно: Если заготовка материалов и строительство ведется самостоятельно, необходимо убедиться в том, что приобретённая древесина в должной степени просушена. Если влажность бруса и доски составляет больше 20%, есть вероятность, что постройку в ходе эксплуатации «поведёт» и потребуется дорогостоящий ремонт.
Каркасная баня 6х6 с мансардой, равно как и постройка 6х4, строится с парным и моечным отделением на первом этаже. На этом же этаже обустраивается предбанник или раздевалка. Печь-каменка для большего комфорта и безопасности топится не из моечного отделения, а из предбанника.
Согласно проекту в мансарду можно попасть из предбанника по внутренней деревянной лестнице. Расчет помещений производится в соответствии с планируемым количеством человек, одновременно использующих баню. Ряд разработчиков, помимо комнаты отдыха, в мансарде предусматривает наличие террасы или веранды.

Стены, облицованные деревянной вагонкой
Бани, в соответствии с чертежной документацией, оборудуются внутренними перегородками между моечным отделением, парной и предбанником. Перегородки, как и несущие стены, изготовляются каркасными + с утеплителем, заложенным между слоями внешнего покрытия. Утеплитель в обязательном порядке с обеих сторон прокладывается гидро- и пароизоляционной пленкой.
Каркасные малогабаритные постройки, независимо от типа примененных отделочных материалов, характеризуется малой нагрузкой на грунт. Поэтому быстросборные бани возводятся на небольшом малозаглубленном фундаменте ленточного типа .
Применение ленточного основания гарантирует такие преимущества как экономия строительных материалов и времени.
Важно: организации, занятые проектированием и строительством быстросборных зданий, при необходимости могут внести в план объекта требуемые изменения. Разумеется, внесение изменений в проект скажется на его стоимости, но в таком случае можно будет построить нетиповую баню, которая будет максимально соответствовать вашим потребностям.
Каркасная баня своими руками. Как построить каркасную баню самому: преимущества и особенности самостоятельного строительства
Благодаря доступности и быстроте возведения каркасная баня пользуется спросом у дачников и владельцев частного сектора. Это отличное место как для сезонного, так и для круглогодичного отдыха.можно заказать у специалистов или же соорудить ее с нуля своими руками.

- Экологичность сырья. Основной материал – дерево. Внутри бани всегда будет приятный аромат натурального дерева.
- Под строение не нужно заливать массивный фундамент . Вполне хватит столбчатого основания или винтовых свай (в зависимости от типа грунта).
- Конструкция прогревается быстрее, в отличие от кирпичных или бревенчатых бань.
- Экономия топлива. Дров для хорошей протопки такой бани потребуется в 2–3 раза меньше, чем для кирпичной.
- Невысокая цена на материалы.
- Возможность строительства в любое время и погоду.

Из минусов каркасной бани:
- Для круглогодичной эксплуатации строение придется утеплять, что повлечет дополнительные траты.
- Необходимы наружная и внутренняя отделка конструкции.
- Баня нуждается в периодической антисептической, огнезащитной обработке.
- Велика вероятность усадки бани спустя 1,5–2 года. Усадка может быть до 10 см. Из-за этого происходит деформация отделки внутри и снаружи.
Чтобы предотвратить существенную усадку конструкции, для строительства нужно применять доски и другие пиломатериалы, которые сушили камерным способом.
Варианты проектирования бани
В начале строительных работ разрабатывается проект будущего сооружения. Сделать это можно самостоятельно, взяв за шаблон один из готовых чертежей в интернете. Есть хорошая альтернатива, которая сэкономит время, – заказать проект у специалистов. Эта же команда займется и пошаговым возведением под ключ.

В продаже есть готовые модульные баньки, которые просто собираются по принципу конструктора и не нуждаются в наружной или внутренней отделке.
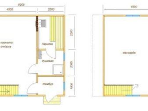
Каркасная баня 3 на 5 своими руками. Тонкости проектирования
Простота строительства и доступность его для непрофессионалов не означают, что можно смело приступать к работе без подготовки. Даже наличие опыта подобных работ не дает оснований для благодушного настроя. Избежать серьезных ошибок поможет хорошо продуманный проект и чертежи будущего сооружения.

Самая простая схема – когда парильное, душевое, котельное и гардеробное отделение объединены. Но такой шаг приемлем лишь для мини сооружений или перевозных бань, потому что не получается распределить температуру как положено. Потому стараются создать даже при наименьших габаритах пусть совсем небольшие, но автономные комнаты. Баня 3х4 м вполне может быть обогрета малым котлом либо работающей от дров печью. Отдельные проектировщики находят даже возможность дополнить ее верандой или террасой.
Минимальные по размеру проекты обладают рядом ценных свойств:
- незначительный расход стройматериалов;
- практически полное исключение отходов;
- высокая скорость работ;
- прочность и надежность (так как на малой площади экономить на качестве комплектующих не требуется).
На более крупном участке вполне можно соорудить баню размером 6х6: она уже позволит не только смывать грязь с себя, но и приглашать всю семью и даже компанию друзей. Типичные проекты с такими сторонами подразумевают значительную площадь комнаты отдыха – она может достигать 20 м2. Чаще всего именно там располагают и лестницу, связывающую первый этаж с мансардой.


Двухэтажная баня превосходит одноэтажную уже потому, что она позволяет организовать дополнительное пространство для жизни и досуга. Часто там размещают комнаты для приема гостей, спальни, ставят столы для бильярда или иной спортивный инвентарь.

В строительстве двух этажей первым шагом оказывается создание фундамента из опорных столбов, причем основание требуется покрыть слоем гидроизоляции. Специалисты рекомендуют построить стропильную систему бани из досок сечением 10х5 см, а на обрешетку обычно идет доска толщиной 2,2 см.
Каркасно-щитовое строение собирается по принципу игрушечного конструктора. Найти подходящие для сооружения помывочной с бассейном комбинации элементов не составляет труда, затем их только ставят на подготовленный каркас. В комплекте обычно идет подробная технологическая инструкция, помогающая избежать ошибок – если только ее строго соблюдают. В случае с мобильными банями все еще проще – их собирают не на строительных площадках, а на промышленных предприятиях. Все, что остается заказчикам, – это только дополнить готовые блоки необходимыми деталями.
Большинство проектов предусматривает использование двускатных крыш, чердачное помещение под ними не организуется или оно очень маленькое. Внутри зато часто ставят банный инвентарь. При выборе типа фундамента руководствуются категорией грунта и его состоянием. Масса постройки, даже если учесть наличие в ряде вариантов второго этажа, сравнительно невелика. Проектные показатели утепления зависят от того, будет ли баня использоваться круглогодично или же она предназначена лишь для теплого сезона.
Баня 3 на 4 своими руками. Преимущества бани 3 на 4 из сруба
Главным плюсом бани таких размеров является компактность. Небольшие габариты бани позволяют сэкономить на строительстве. Но несмотря на маленькие размеры она является довольно комфортной. Опытные проектировщики способны вместить необходимые компоненты планировки и предложить несколько вариантов.
Неоспоримым плюсом таких срубов является быстрое строительство. Но скорость возведения никак не сказывается на качестве строения. В результате получается надежное и долговечное помещение, которое не нуждается в ремонте и дополнительном обслуживании.
Требования к размещению
Существуют определенные требования к размещению бани. Расположение таких помещений регламентируется на законодательном уровне. Соблюдение требований обеспечивает прежде всего безопасность проживающих. Также, в случае продажи загородного дома или коттеджа, строение на участке должно быть зарегистрировано. Поэтому, если баня построена, установлена неправильно и не зарегистрирована, ее придется демонтировать.
Существует ряд требований к расположению бани:
- не ближе 8 метров к дому (это относится и к соседскому);
- не менее 12 метров к водоему (колодец и пр.);
- не ближе 3-х метров от соседского участка.
Планировка
Обязательными составляющими любой бани, в том числе и размерами 3 на 4 являются:
- раздевалка;
- парная;
- душевая.
Лучшей пропорцией для этих помещений считается – 2-1-1,5. Таким образом раздевалка, она же предбанник, в два раза больше самой парной, помывочная – в 1,5 раза. В банях 3*4, дополненных мансардным этажом, есть месть для организации зоны отдыха. В теплое время года эту функцию может выполнять терраса или веранда.
Для возведения комфортной и эргономичной бани не нужно самостоятельно считать размеры. Основой строительства является готовый проект где все продумано до мелочей.
Тонкости возведения небольшой бани
При создании бани, в частности небольшой, особе внимание следует уделить требованиям пожарной безопасности. Риски при пожаре для пребывающих в бане увеличиваются так как пространства внутри минимум.
Важно! Обратить внимание при возведении дымохода на наличие короба из металла для защиты.
Сама печь в парной должна строиться из хорошего обожженного кирпича, с применением надежной арматуры. Кладку печи стоит доверять только опытным мастерам. Лучшей защитой печи станет облицовка из керамики или фарфора, которая также увеличит ее срок службы.
Немаловажным момент – обустройство вентиляции. Важной особенностью является ее расположение. Она должна быть в нижней части, а не в верхней, как в жилых помещениях. Все, что смывается – остатки грязи и пота, лучше вытягивается нижней вытяжкой. При этом чистый воздух будет прибывать сверху, что обеспечивается системой подачи в стандартном расположении.