Баня 4 на 6 с мансардой. Особенности
- Баня 4 на 6 с мансардой. Особенности
- Баня 4 на 7 с мансардой. Сруб бани 4 на 7 мансардой и с террасой
- Дом баня 4 н. Планировка бани 6 на 4
- Баня 4 на 4 с мансардой. Особенности проектов 4х4 м
- Проект бани 6 на 4 с террасой. Особенности и расположение
- Баня 6 на 4 с террасой. Планировка
- Баня с мансардой 6 н. Каркасная баня 6 х 6 с мансардой
- Баня 6*4 проект. Планировка бани 6x4 метра
Баня 4 на 6 с мансардой. Особенности
Исключительность мансардных бань подразумевает полноценную реализацию разнообразных конструктивных решений. Подбирайте вариант дома-бани с учетом характерных черт. Для любителей проектирования различных вариаций строений баня с мансардой будет отличным способом реализации собственных идей. Одной из главных надстроечных конструкций мансарды является лестница. Подъем на мансарду в бане потребует ее наличия.
Следует тщательно разобрать противовесные моменты с учетом аргументов за и против. Только после учета основных характеристик личного банного сооружения допускается рассмотрение вопросов проектирования. Еще одной конструкционной особенностью бань с мансардой является конструкция кровли. Важно учесть ограниченность мансарды. Чтобы этот этаж был полезным, чаще применяют кровлю ломаной двускатной конструкции.
Нежелательна односкатная кровля, тип традиционного двускатного варианта также нельзя назвать самым удобным. Нередко используют шатровые кровельные конструкции. С геометрическими параметрами более или менее ясно. Подберите вариант подъема на мансарду с учетом того или иного варианта кровли. Например, самыми действенными считаются варианты маршевого вида, но их сложно монтировать на малых площадях. Особенно плохо адаптируются маршевые устройства к конструкции бань 4х4 м.
Больцевые лестницы снабжены достоинствами маршевых устройств. Такие системы нельзя применять к каркасным сооружениям, так как для них требуется прочная несущая опора. К стене крепят ступени. Если баня выполнена из других материалов, устройство вполне приемлемо для использования.
Устройства винтового типа не отличаются удобством, но они эффективные в плане экономии пространства. Зачастую они становятся палочкой-выручалочкой в проекте мансардной бани 4х4 или 5х5 м.
Лучший вариант проекта с верандой, террасой и мансардой предполагает размещение комнат в следующем порядке:
- первый этаж;
- парилка;
- душевая кабина или помывочная;
- тамбур;
- маленькая веранда.
Веранду часто используют в качестве обеденной зоны, заполняя лавками, стульями, столами. Это пространство обычно открытое, поэтому создается атмосфера простой природной красоты. Однако верандой иногда жертвуют в счет увеличения внутренней площади бани. На площади мансарды допускается обустройство спального места, игровой комнаты (например, бильярдной), кладовой. Если мансарда является кладовой, место отдыха целесообразней оборудовать и внизу. Для комфорта на мансарде должна быть предусмотрена общая высота помещения от 2,5 метров.
Баня 4 на 7 с мансардой. Сруб бани 4 на 7 мансардой и с террасой
Достаточный размер помещения позволяет расположиться в нем большой компании или приятно провести время в теплой семейной обстановке. Покупка сруба бани 4х7 с мансардой и террасой дает возможность обустроить на своем загородном участке полноценное место для отдыха и приема банных процедур. Наличие мансардного этажа позволяет обустроить комнату отдыха, мастерскую или небольшой спортзал, в общем, заказчик получает полную свободу действий, в том числе и планировке помещения.
АКЦИЯ: 6 стена 2.5м в лафет, разделяющая парную и моечную при заказе любого сруба под баню в подарок !





Описание
- Площадь сруба бани: 78 м2
- Диаметр используемых бревен: от 24 см
- Интервал от потолка до пола: 2,2 м
- Интервал от конька до потолка: 1,7 м
- Бесплатная доставка и установка
- Размеры срубов указаны внутренние
- Изготавливаем из зимнего леса
Цена (рубка в лапу): 465 000 руб.
Цена (рубка в чашу): 570 000 руб.
Цена (рубка в лапу): 550 000 руб.
Цена (рубка в чашу): 655 000 руб.
Двускатная крыша Ломаная крышаБазовая комплектация
- Внутренняя стена-перегородка протёсывается с двух сторон в лафет;
- Рубка угла в лапу без выхода концов наружу;
- Стены изнутри сруба протёсаны до ровной поверхности или в кругляк;
- Балки для потолка и пола делаем из бревна;
- Утеплитель между брёвен - мох или пакля, (выбирает сам заказчик);
- Бетонно-столбчатый фундамент из блоков 20х20х40. Песок предоставляет Заказчик;
- Стропильная конструкция 2-х скатной крыши из бревна. Расстояние между стропил 0.8м;
- Крыша зашивается обрезной доской 25 мм.;
- Потолок обшивается вагонкой 20 мм.
- Пол обшивается шпунтованной доской 36 мм.
- Фронтон крыши обшивается вагонкой толщиной 25 мм.
- Вынос под террасу без наличия стен 4 опорные стойки и компенсаторы усадки.
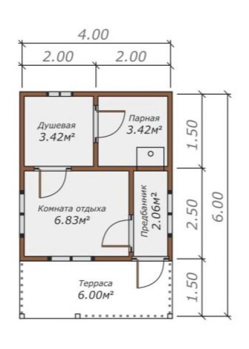
Дом баня 4 н. Планировка бани 6 на 4
На самом деле размер строения не имеет огромного значения. Важно то, насколько рационально будет использоваться пространство. На рынке строительных услуг можно найти множество проектов, которые удачно сочетают в себе маленький общий размер постройки и удачную планировку внутреннего пространства. Расскажем о нескольких таких вариантах.
Простой одноэтажный проект
Простая постройка без террас, балконов и дополнительных элементов. Здесь есть крыльцо, с которого вы сразу попадаете в прихожую ( 3 кв. м ), где можно оставить вещи. Далее:
- просторная комната отдыха ( 2.5х4 метра ) с двумя окнами;
- душевая и парная — равны по площади ( 4 квадрата ). Размер 2х2 метра . В помещение можно попасть прямо из релакс зоны. В душевой так же есть окно.
Отметим, что в этом проекте бани реализовано крыльцо 1,5х2 метра . При желании здесь можно разместить пару кресел и удобный столик. Здесь можно организовать отличный отдых для пары человек в летнее время года.
С террасой
Баня с террасой общей площадью 25 квадратных метра , в которой реализованы:
- терраса — по всей длине постройки ( 4 метра ) — общая площадь 6 кв. м . Этого достаточно, чтобы на отдых в теплое время года здесь могли разместиться сразу несколько человек;
- прихожая, где можно оставить вещи — 2,5 кв. м ;
- комната отдыха — в нее переход осуществляется из прихожей — 7.5 кв. м ;
- из комнаты отдыха можно попасть сначала в душевую, а затем и в парную — площадь каждой по 4 кв. м . Эта последовательность очень удобна.
В таком проекте все продумано — последовательность посещения мокрых зон, комната отдыха в холодное время года и удобная терраса в теплое.
Двухэтажная баня с террасой и балконом
Это удобный проект, который подходит для отдыха достаточно большой компанией. Когда строение не используется по назначению, оно может выступать в качестве гостевого домика.
Баня 4 на 4 с мансардой. Особенности проектов 4х4 м
Типовой план бани 4х4 мПроект бани 4х4 м достоин внимания пользователей за хорошую вместительность. Стандартное одноэтажное строение вмещает в себя планировку:
парную, моечную, санузел, предбанник и комнату отдыха или террасу под общей крышей. Проект бани 4х4 м может быть одноэтажный или с мансардой. Наверху в таком размещают полноценную комнату для гостей или для отдыха. Из-за небольших размеров коробка легко помещается на небольшом дачном участке или около частного дома.
Собрать баню 4х4 м можно из бруса, бревна простого или оцилиндрованного, кирпича или шлакоблоков. Самый простой вариант из бруса, так как правильная форма строения и бруса с легкостью позволяет собрать коробку своими руками.
На дачном участке обычно выбирается проект с открытой или закрытой террасой. После принятия процедур приятно выйти на воздух и подышать. А общая крыша делает террасу защищенной от ветра и дождя.
Основные характеристики типового проекта бани 4х4 м:
- Площадь по фундаменту – 21,60 м2.
- Площадь внутренней части – 11, 50 м2+2,7 м2 терраса: парилка 4,14 м2, моечная 3,59 м2, терраса 2,7 м2, предбанник 3 м2. Перепланировать внутреннюю часть можно по-своему, так если убрать террасу, то увеличиться предбанник. Поместиться полноценная комната отдыха.
Проект бани 6 на 4 с террасой. Особенности и расположение
Прежде чем приступить к строительству бани размером 6 на 4, нужно провести серьезную подготовительную работу. От ее качества зависит, как потом пойдет процесс стройки и обустройства помещения. Продумать предстоит следующие нюансы:
- место расположения на участке;
- подводка всех необходимых коммуникаций;
- выбор варианта печи;
- выбор материалов для строительства здания и отделки внутри;
- подготовка проекта, где будут обозначены все детали и размеры;
- подбор подходящего стиля и элементов дизайна;
- продумывание общего интерьера – подбор мебели, текстиля и других составляющих.




Что касается расположения, то следует его продумать так, чтобы здание стояло на достаточном расстоянии от самого дома, но в то же время не впритык к забору.
Идеальное расположение – в углу участка. При этом рядом можно благоустроить территорию. Поставить лавочки для отдыха или маленькую беседку, разбить клумбы, искусственный родничок тоже не помешает. А может быть, возле бани хватит места, чтобы оборудовать небольшой бассейн. Это будет идеальный вариант.

Оформление здания бани и самого дома должны быть выдержаны в одном стиле. Так все постройки и участок в целом будут смотреться гармонично. Заранее продуманный проект бани 6х4 позволит составить приблизительную смету, из которой будет предельно ясно, сколько средств уйдет на каждый этап строительства. И чтобы возведение бани не затянулось на долгие годы, может быть, еще на этапе составления проекта следует подумать, какие работы можно удешевить, какие объекты крайне необходимы, а без каких можно обойтись или заменить их более бюджетными вариантами.



Баня 6 на 4 с террасой. Планировка
Считается, что лучший размер для бани на даче – 4 на 6 метров. Такие параметры открывают простор для фантазии: здание можно сделать наподобие дачного домика, часть его отведя под террасу, превратив ее в зону отдыха на свежем воздухе, а можно ограничиться постройкой скромной баньки.
Баня – весьма специфичное строение с особым назначением, поэтому при планировке обязательно нужно учитывать высоту потолков и порогов. Недостаточная ширина и высота порога приведет к «выходу» тепла из парилки и сквозняку, а потолка – к появлению лишнего пара.
Идеальной считается высота потолка около двух метров.


Для проработки удачной планировки следует учитывать следующие факторы:
- число человек, одновременно находящихся в бане;
- назначение помещения: квадратные метры парилки и моечного отделения зависят от предпочтений;
- целевое разделение комнат;
- грамотное разделение пространства.


Типовой проект планировки включает следующие помещения:
- Предбанник – что-то наподобие небольшого коридора, который можно использовать как раздевалку; там же хранится банная утварь типа веников и головных уборов.
- Парилка – главное место бани. В ней будут располагаться полки и печь. Лучше ее расположить в углу здания.
- Моечная (или душевая) – комнатка, в которой находится душ, иногда и туалет.
- Комната отдыха – устраивается по желанию и по возможности. Обычно под нее отводят самую крупную комнату и обставляют всей необходимой мебелью: шкафчиками, диванчиками, лежаками, оставляют в ней вещи. Одним из важных условий этой комнаты является наличие окна.
Баня по индивидуальному проекту может включать в себя все вышеперечисленные помещения и иметь дополнительные. Например, иногда предбанник и комнату отдыха можно совместить или же вовсе отказаться от него, заменив террасой. Однако это будет более летний вариант, что подходит для сезонного времяпрепровождения. Если создается «мультисезонный» проект, то лучше сделать и внутреннюю, и уличную зоны отдыха. Но такой вариант потребует дополнительного пространства, и вместо 4-х лучше рассчитывать на 5 метров.


При наличии средств и достаточного желания можно разнообразить стандартную планировку, добавив второй этаж или веранду. Два этажа позволяют расширить функционал бани размерами 6х4 м, так как второй этаж строится в том случае, если одного уровня для организации всех помещений не хватает: например, если очень хочется устроить небольшой бассейн, а также превратить баню в домик со спальней для гостей.
Детальная схема проекта должна учитывать абсолютно все архитектурные особенности и моменты: от расположения окон и дверей до расстояний между перегородками, а ширина и расположения комнат должны быть обдуманы заранее.


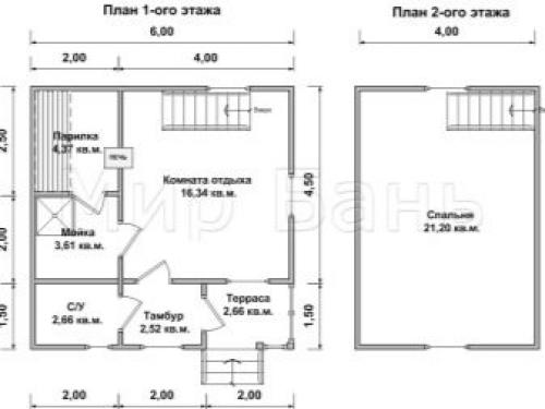
Баня с мансардой 6 н. Каркасная баня 6 х 6 с мансардой
Каркасная баня 6 х 6 с пристроенной мансардой подойдет для участков площадью от 10 соток. Может использоваться в качестве гостевого домика или небольшой дачи, если для основного жилого здания места недостаточно. Выбрав нужную толщину стен, постройку можно адаптировать для сезонного или постоянного посещения и проживания. Благодаря простоте технологии для возведения под ключ каркасной бани 6 х 6 с мансардой нужно не больше 3 недель.
Варианты планировки
Базовый проект каркасной бани 6 х 6 метров включает парилку, помывочную, санузел, комнату отдыха на первом этаже, спальню в мансарде. Если площадь здания более 55 м², наверху можно организовать два отдельных помещения для гостей или членов семьи. При необходимости в планировку вносятся изменения (если количество перегородок не меняется, стоимость не увеличивается).
Для небольшого участка стоит купить проект с террасой – в этом случае устраивать отдельную крытую площадку для отдыха не придется.
От чего зависит цена каркасной бани 6 х 6 с мансардой?
На итоговые затраты влияет комплектация здания (тип фундамента, пристройки), высота стен, тип кровли, необходимость отделки и защитной обработки. Заказывая строительство бани в Москве или МО в компании «Каркасник», вы можете точно рассчитать предстоящие расходы – в карточке каждого проекта указаны все материалы, основные и дополнительные работы.
Оплата выполняется поэтапно. Первая часть (70 %) вносится при доставке материалов и по приезду строителей на участок, вторая – после подписания акта сдачи-приемки.
Баня 6*4 проект. Планировка бани 6x4 метра
Наиболее популярной планировкой считается баня 6х4. Она не занимает большой участок и в ней можно уместиться большой семьей или с друзьями. Но перед составлением проекта нужно учесть нюансы участка, расположение и пожелания, потому что построенная баня и то, что нарисовано на чертеже может отличаться.

Если имеются знания в построении чертежей, планировку можно составить самому или скачать план из интернета, но если есть сомнения, то лучше обратиться к проектировщикам.
Баня 6 на 4 не имеет стандартной планировки, можно больше места отвести на комнату отдыха, моечную или парилку. Кому-то больше нравится посидеть за столом в компании и беседовать, а кто-то предпочитает принимать банные процедуры, но в любом случае размер бани позволяет угодить каждому.
Возле бани можно сделать беседку с мангалом и отдыхать летними вечерами, если площадь на участке позволяет.
Примерные чертежи можно посмотреть в интернете и рассчитать, подойдет ли планировка для участка. Если нужен индивидуальный проект, то он рассчитывается компаниями проектировщиками.

Можно сэкономить и построить баню “собственными силами”, главное, чтоб было время, желание и необходимый материал.
Планировка бани 6х4 может быть свободной, но, как правило, существуют стандартные помещения, без которых не обойтись:
- предбанника (раздевалки);
- моечной;
- парной;
- комнаты отдыха.
Наличие предбанника не всегда бывает в планировке 6 на 4, это небольшая часть при входе в баню, здесь разуваются и оставляют одежду, можно хранить дрова зимой, чтоб они не промокали. Часто предбанник соединяют вместе с комнатой отдыха, но для удобства лучше, чтоб для этого было отдельное помещение.
Моечную можно сделать просторную или небольшую, все зависит от того, какое количество в семье предпочитает париться. Иногда больше места отводится под парную или две комнаты делаются одинаковыми. Или в моечной умещается только лавка и полки под шайки, ковшики и тазики. Удобно сделать три комнаты одинакового размера и маленький предбанник, но расположение меняется в зависимости от личных пожеланий.

Понятие “бани” место, где можно париться, поэтому этому помещению уделяется больше внимания. В ней должна размещаться печь, стол и лавки, но нужно учитывать, что чем больше парилка, тем дольше она будет топиться и уходить ресурс на растопку. Если не предполагается, что в парную будет одновременно приходить много человек, не нужно делать большую.
В комнате отдыха будет собираться все количество людей, которое в этот момент находится в бане. Это в моечную и парилку можно ходить по очереди, а в комнате отдыха нужно уместиться всем.

Комната отдыха не только для охлаждения, но и для проведения времени за разговорами. Чтоб не толпиться и не мешать друг другу, должно быть достаточно места для размещения стола лавок или стульев. Иногда предусматривается место под установку телевизора и дивана, а также кушеток для отдыха.
