Баня из бруса 3х4 с террасой. Планировка бани 3х4
- Баня из бруса 3х4 с террасой. Планировка бани 3х4
- Проект бани из блоков 3х4. Плюсы и минусы
- Проект бани 3х4 с верандой. Бани 3 на 4: фото, проекты, особенности и преимущества
- Чертеж бани 3х4. Каркасная баня 3х4 своими руками: Проекты с Фото
- Проект бани 3х5. Баня 3 на 5: планировка внутри, фото, примеры
- Баня 3 на 4 сколько нужно бруса. Лучшие ответы
Баня из бруса 3х4 с террасой. Планировка бани 3х4
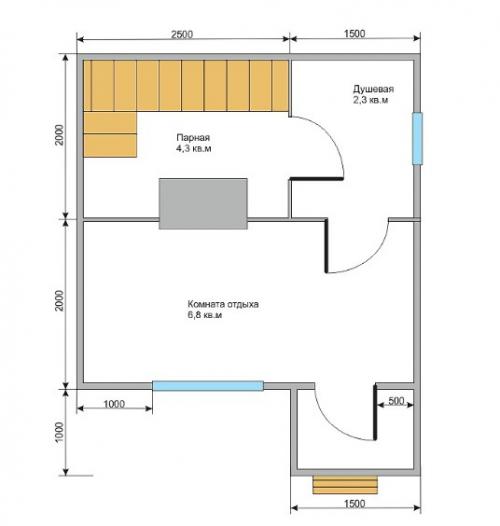
Планировка бани 3х4, как и в случае с большими аналогами, должна включать набор обязательных составляющих. Основные помещения банного комплекса:
- предбанник;
- парная;
- помывочная.
Рекомендуется следующее соотношение этих помещений – 2/1/1,5. То есть предбанник должен получиться примерно в 2 раза больше парной Душевая комната должна быть в полтора раза просторнее парной. В постройках более масштабных данный набор помещений дополняется отдельной комнатой отдыха. В планах бань 3х3 и 3х4 можно отвести под компактную зону отдыха немного места в предбаннике. В летний период функцию дополнительного помещения переносят на открытую площадку – террасу или беседку.
Чтобы построить хорошую небольшую баню не обязательно самостоятельно просчитывать размеры ее помещений. Все равно основой строительства станет архитектурный проект, в котором все уже рассчитано. Главное выбрать надежную строительную или архитектурную компанию и приобрести качественную профессиональную разработку банного комплекса. Платить за новый индивидуальный проект смысла нет. Лучше выбрать один из уже готовых типовых проектов, сэкономив, таким образом, деньги и время. Да и с учетом малой площади воплотить индивидуальность в расположении объектов не получится - если планировка бани 3 6 уже может включать вариации, то в малых домиках всё располагается компактно и в основном однотипно.
Этап строительства бани
Строительство банного комплекса осуществляется практически в том же порядке, в каком строится жилой дом. Оно состоит из таких этапов:
- выбор места на участке;
- выбор проекта;
- подготовка строительной площадки;
- закладка фундамента;
- возведение сруба;
- обустройство кровли;
- подведение коммуникаций;
- установка оборудования;
- отделочные работы.
Следует отметить, что древесина маловесна. К тому же в процессе эксплуатации она почти не реагирует вибрации грунта. Поэтому срубы-бани обычно строят на облегченных ленточных фундаментах.
Нюансы строительства маленькой бани
В маленьких банях особенно внимательно нужно отнестись к обеспечению пожарной безопасности, так как пространства в них минимум, и возгорание стен крайне опасно для находящихся внутри людей. Необходимо проследить за тем, чтобы при сооружении дымохода, в месте его прохождения через кровлю был установлен защитный металлический короб.
Для самой печи нужно выбирать качественный хорошо обожженный кирпич. Арматура для печи тоже должна быть качественной. Кладку печи можно доверять только высококвалифицированным печникам. Желательно защитить печь облицовкой из керамических или фарфоровых изразцов. Это повысит ее безопасность, долговечность и эргономичность.
Еще один важнейший нюанс – обустройство вентиляционной системы. Она должна быть не в верхней части помещений, как в доме, а в нижней. Это касается любых подобных построек, вне зависимости от размера: например, планировка бани 7 на 4 с точки зрения вентиляции ничем не отличается. Все, что смывают с себя люди, когда парятся и моются, остается на полу банных помещений, поэтому «выдувать» грязный воздух с частичками грязи и пота лучше при помощи нижней вентиляции. Однако при этом чистый воздух должен поступать сверху. Для этого устанавливается система подачи воздуха со стандартным размещением.
Проект бани из блоков 3х4. Плюсы и минусы
Блочные строительные материалы имеют свои плюсы и минусы. Их обязательно нужно знать, если вы планируете использовать блоки в строительстве бани. Для начала стоит рассмотреть подробнее, какими преимуществами обладают подобные элементы.

Выделяются несколько плюсов такого материала, как блоки.
- Конструкция, построенная из блоков, не будет давать усадки, как, например, строения из древесины.
- Парную из блоков можно строить практически сразу после основной отделки.
- На строительство такой бани уйдет минимальное количество времени.
- Произвести все ремонтные работы можно без привлечения сторонней помощи, однако специалисты рекомендуют пригласить хотя бы одного помощника. Так строительство пойдет гораздо быстрее.
- Конечная стоимость блочной бани будет в 2-3 раза ниже, чем в случае со строительством парной из дерева точно таких же размеров.
- Блочные материалы являются абсолютно безопасными для здоровья человека. В их составе нет опасных химических соединений, поэтому даже в условиях повышенных температур они не выделяют вредоносных веществ.
- Блоки имеют относительно небольшой вес. Благодаря данной характеристике можно существенно сэкономить силы и денежные средства на подготовке качественного фундамента.
- Многие потребители выбирают для строительства блочные материалы, поскольку они не поддерживают горение.
- Баня из блоков не подвержена гниению.


- Блоки являются неприхотливыми в уходе. Их не нужно регулярно промазывать антисептическими составами, как в случае с деревянными строениями. Блочные материалы не подвержены образованию плесени и грибка.
- Стены, построенные из такого сырья, являются «дышащими» благодаря своим диффузным свойствам.
- Многие разновидности блоков, например, газосиликатные, могут похвастаться неплохими тепло- и шумоизоляционными свойствами.
- Срок службы качественных блоков является очень долгим.
Как можно заметить, строения из блоков являются весьма долговечными и износостойкими.
В настоящее время многие хозяева выбирают именно блочные материалы для строительства бань (и не только).

Однако у этих изделий есть и свои минусы.
- Блоки впитывают в себя влагу, поэтому бане необходимо обеспечить качественную гидроизоляцию, в противном случае материал может просто разрушиться.
- Бане из блоков необходима пароизоляция. Это объясняется тем, что внутри стен из подобных материалов почти всегда накапливается конденсат, поэтому без пароизолирующих материалов здесь не обойтись.
- Блоки являются долговечными материалами, однако в данном вопросе они уступают кирпичу.
- В составе популярных газосиликатных блоков присутствуют алюминиевая пудра и известь. Данные компоненты уменьшают положительные характеристики материала.
Многих проблем, связанных с блочными банями, вполне можно избежать, если произвести их качественное возведение, а также заранее позаботиться о гидро- и пароизоляции.


Проект бани 3х4 с верандой. Бани 3 на 4: фото, проекты, особенности и преимущества
Главным достоинством такой бани являются небольшие размеры, поэтому она легко уместится даже на самом мелком участке. При этом баня получится удобной в эксплуатации и функциональной.
Немаловажным преимуществом является огромная экономия. Вам понадобится малое количество строительных и отделочных материалов, поэтому итоговая стоимость постройки получится довольно низкой.
Еще одним достоинством проектов бань 3х4 является быстрота возведения. Реализовывать небольшой проект значительно проще, чем крупный, вы без труда сможете быстро построить баню своими руками.
Чаще всего баню 3х4 строят на даче, именно в этом случае имеется необходимость в возведении недорогой и небольшой конструкции. Те, кто планирует строить баню рядом с частным домом, отдают предпочтение более просторным вариантам, к примеру, бане 6х4 м. На даче же бани 3х4 будет достаточно: она не займет много места, останется территория под огород, при этом вы сможете попариться в бане.
Строительство бани всегда начинается с проекта. Именно от качества его составления зависит и надежность самой конструкции. В интернете вы легко найдете фото проектов бань 3 на 4, если хорошо разбираетесь в строительстве, то можно сделать проект самостоятельно, еще один вариант – заказать проект.
При планировании постройки небольшой бани редко обращаются к специалистам. Площадь у бани небольшая, поэтому конструкция получается стандартной, в большинстве случаев нет смысла переплачивать. Проще и дешевле взять готовый вариант и внести в него коррективы.
В плане бани 3х4 должны быть указаны размеры всех помещений, расположение окон и дверей, нужно заранее определиться со всеми коммуникациями и электричеством, а также рекомендуется продумать расстановку мебели.
Чертеж бани 3х4. Каркасная баня 3х4 своими руками: Проекты с Фото
Каркасную баню построить намного проще и быстрее, чем кирпичную или сруб. Масштабные чертежи, дорогостоящие материалы и работы, внушительный фундамент – все это отсутствует. Главное правильная термо- и гидроизоляция, а также готовый проект, на который можно ориентироваться.
Проект каркасной бани 3х4 м
Под такую постройку достаточно ленточного или столбчатого фундамента. Сооружение практически не дает усадки ввиду своей легкости, поэтому для основы маленькой каркасной бани необходимо приобрести лишь хорошо просушенный брус размерами 20х20 см для стоек и доску. Чертежи наиболее простых и малозатратных бань можно увидеть ниже.


К преимуществам каркасных бань также можно отнести отсутствие деформации, возможность сделать инженерные коммуникации скрытыми, разнообразие отделочных материалов. Строение с квадратурой 12 м2также прекрасно удерживает тепло, как и сруб.
Чтобы ваша баня прослужила долго и не требовала ремонта, необходимо обратить внимание на следующие моменты:
- каркас должен рассполагаться на ровной поверхности;
- не стоит выбирать самую дешевую термоизоляцию;
- древесина должна быть качественной, не тонкой и тщательно обработанной антисептиками;
- если каркас вызывает сомнения относительно шаткости, его обязательно усиливают подкосами.
Каркасные бани не бояться усадки, так как материал достаточно упруг и не боится усадок. Верхние срезы цоколя ложатся на опорные, хорошо гидроизолированные брусья. Лучше если они будут из дуба, лиственницы или граба. Для связки деревянного пояса и фундамента использую анкера из арматуры (1,4-1,6 см) с крючками, заглубленными в бетон до 20 см. С другой стороны должна присутствовать резьбы под гайку.

Угловые стыки, как правило, делают «под лапу» и закрепляют анкерами. Дальше – выставляются крайние стойки (10х15 см) вертикально и закрепляются при помощи укосин. Толщина стоек должна соответствовать толщине утеплителя.

Для строений 3х4 м допустима установка подкосов на угловых стойках.

Если баня будет двухэтажная, лучше ставить подкосы в каждом пролете. Шаг стоек каркаса 0,6-0,8 м. Они крепятся к опорному брусу при помощи стальных скоб. Брусья должны быть сечением не менее 5х15 см.
Особенности постройки каркасной бани
Каркасная баня прослужит достаточно долго при использовании качественной и надежной термо- и гидроизоляции. Снаружи здание можно защитить от внешнего воздействия сайдингом или блокхаусом, которые сделают баню похожей на сруб и уберегут от гнили или плесени.

На самом деле мини-баню вполне можно оборудовать самостоятельно. Никакие особые навыки не требуются. Главное, представить, как она должна выглядеть (с террасой или без), продумать эргономичное отопление и водоотведения, теплоизоляцию и ознакомиться с типовыми вариантами. Фото проектов каркасных бань 3х4 своими руками можно посмотреть далее.


Готовый проект небольшой банной постройки можно заказать у ряда фирм, однако, чтобы в итоге не разочароваться и при желании, все можно сделать и самостоятельно. Для начала, необходимо заложить фундамент, а это значит прикупить асбестоцементные трубы длиной до 40 м и диаметром не менее 10 см. Также необходимо пробурить скважину – диаметр – 20 см, глубина – 1,5 м. И, приготовить раствор из воды, мелкого щебня, цемента и песка.
Важный этап в постройке бани своими руками – обвязка, для чего необходимы доски 5х10 см, обработанные антисептическими растворами. Делается разметка стен и производится укладка материала по внешнему контуру. Доска ложится наружными гранями и крепится гвоздями. Цоколь соединяется при помощи опор.
Обвязки (верхняя, нижняя) – выполняются из досок, настил рубероида от нижней поверхности отсекается. Все проводимые работы контролирую уровнем. При отклонении, осуществляют дополнительную укладку толя. Чтобы конструкция была прочной обвязку и лаги закрепляют с использованием предварительно вмонтированных металлических пластин. Их также нужно обрабатывать антисептиком.
Возведение стен требует измерения метража между осями. Если нет стыковки со стенами – хватит 0,6 м, при их наличии, необходим зазор в 0,4 м.

Интервалы от стойки до стойки будут зависеть от размеров оконных проемов и дверей. Рамы, после закрепления необходимо проверить на точное совпадение с прямоугольными параметрами. Стропильные конструкции лучше собирать на открытом участке земли. Для придания строению жесткости стены оббиваются штукатурной дранью. Кровлю часто предусматривают с вентиляционной системой. Также, построить каркасную баню своими руками, как мы уже говорили не так уж и сложно, но с крышей все немного по-другому. Поэтому если у вас нет опыта установки или ремонта кровли дома или бани, то можно обратиться к специалистам по этой ссылке:. Вы найдете специалистов с большим опытом, которые занимаются ремонтом крыши и они точно смогут вас проконсультировать и помочь с вашим проектом.
Проект бани 3х5. Баня 3 на 5: планировка внутри, фото, примеры
Несмотря на то, что баня 3х5 небольшая, в ней можно поместить абсолютно все, что нужно для комфортного отдыха. В каждой бане должны быть парная, моечная и комната отдыха.
Ниже представлено фото планировки бани 3х5 с основными помещениями: предбанником/комнатой отдыха, парной и моечной. Это самый простой и оптимальный вариант. Большая часть площади отдана под парную и моечную, комната отдыха небольшая – всего 6 квадратных метров. Такой план подойдет для небольшой семьи или в случае, если рядом с баней будут дом или беседка, где можно будет отдохнуть между процедурами.
Баня 3 на 4 сколько нужно бруса. Лучшие ответы
Таблица строительных материалов МатериалыКоличествоИллюстрация Цемент М400150 кгПиленый брус 150×150 мм3,5 м3Доска 50×100 мм0,3 м3Рейка 20×50 мм25 м/п. Вагонка натуральная0,5 м3Доска обрезная толщиной 25 мм0,3 м3Кирпич шамотный огнеупорный500 шт. Ондулин10 м2Бетонные блоки стандартного размера30 шт.
Расчет материалов
После подготовки проекта можно рассчитать сколько кубов бруса надо на баню 3х4 м. Для этого предварительно нужно подсчитать количество штук бруса.
К примеру, строится баня из бруса 3 на 3 на 4 м, т. е. высота стен составляет 3 метра. Сечение бруса составляет 100х150 мм.
В таком случае расчет выглядит следующим образом:
в начале узнаем, сколько штук бруса понадобится на одну стену – 3000/150=20 шт.
;теперь можно посчитать необходимый объем бруса для деревянной стены длиной 4 м – 0,10х0,15х4х20=1,2м3х2=2,4м3;точно так же выполняется расчет объема материала на трехметровые стены – 0,10х0,15х3х20=0,9м3х2=1,8м3;теперь можно узнать сколько надо бруса 100х150 на баню 3х4 – 1,8+2,4=4,2 м3.
Конечно, материал необходимо закупать с небольшим запасом, поэтому полученное значение нужно округлить до 5м3.Обратите внимание!Необходимый объем бруса следует подкорректировать в зависимости от его длины.К примеру, если длина составляет 6 метров, то подсчитывать объем следует как для шестиметровых, а не четырехметровых стен.
Теперь, когда известно, сколько кубов бруса на баню 3х4 требуется, можно посчитать общую стоимость материала для стен. К этой сумме нужно приплюсовать стоимость материалов для фундамента, кровли, а также внутренней отделки.
Таким образом можно узнать, во сколько обойдется построенная баня своими руками из бруса 3х4 м.
Совет!Для нижних венцов бани лучше использовать твердые сорта древесины. к примеру, лиственницу или дуб.
Это увеличит прочность и долговечность стен.