Как построить срубовую баню своими руками. Правила строительства парилки
Как построить срубовую баню своими руками. Правила строительства парилки
В XXI веке требования к возведению бани кардинально изменились. Теперь предбанника и парной не всегда достаточно, комнаты отдыха, бильярдные, душевые и туалетные комнаты очень актуальны. От того, сколько этажей и помещений в бане, какая конструкция, планировка, будет зависеть общий метраж, количество материалов.
Лучшей древесиной считается та, что заготовлена в северных областях России, и зимой, так как в зимний сезон она имеет наименьший уровень влажности.
При строительстве бревенчатой бани, следует учитывать некоторые особенности :
- лучше использовать бревна со специальной защитной пропиткой от гниения, грибка и паразитов;
- сырой древесине потребуется более длительный срок на усадку – только после этого устанавливают двери, окна и производят отделку;
- щели необходимо герметически заделывать, чтобы максимально сохранять тепло в помещении;
- создание вентиляции, укладку печки нужно доверить профессионалу – это гарантирует безопасность в эксплуатации на десятилетия.
Для возведения бани необходимо правильно выбрать место расположения на участке , оно зависит от строительных норм СНиП, где учтены:
- коммуникации (подземные);
- расстояние от строений, участков соседей – не ближе 8 м от других построек, так как баня пожароопасный объект;
- удаленность от проезжей части и водоемов – не менее 5 м.
Многие заранее планируют озеленение участка, где будет располагаться сруб, создавая максимально уютный и комфортный уголок.
Самые популярные, недорогие варианты древесины — это ель и сосна. Специалисты рекомендуют отдавать предпочтение северным видам деревьев, они меньше впитывают влагу в отличие от южных сортов.
Приступать к строительству необходимо после того, как купленный «лесоматериал» отлежится и «надышится» 25-30 дней . Собирают сруб по технологии рубки бревна «в лапу» или «в чашу». Первый вариант более дешевый, простой в сборке, дает большую площадь, но требует дополнительного утепления и внешней отделки. Второй – прочный, максимально сберегает тепло, более трудоемкий, дорогой, но не требует внешней отделки.
Баня 4 на 4 своими руками. Особенности проектов 4х4 м

Типовой план бани 4х4 м
Проект бани 4х4 м достоин внимания пользователей за хорошую вместительность. Стандартное одноэтажное строение вмещает в себя планировку:
парную, моечную, санузел, предбанник и комнату отдыха или террасу под общей крышей. Проект бани 4х4 м может быть одноэтажный или с мансардой. Наверху в таком размещают полноценную комнату для гостей или для отдыха. Из-за небольших размеров коробка легко помещается на небольшом дачном участке или около частного дома.
Собрать баню 4х4 м можно из бруса, бревна простого или оцилиндрованного, кирпича или шлакоблоков. Самый простой вариант из бруса, так как правильная форма строения и бруса с легкостью позволяет собрать коробку своими руками.
На дачном участке обычно выбирается проект с открытой или закрытой террасой. После принятия процедур приятно выйти на воздух и подышать. А общая крыша делает террасу защищенной от ветра и дождя.
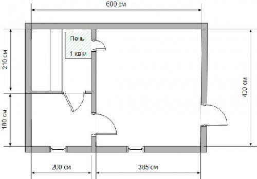
Основные характеристики типового проекта бани 4х4 м:
- Площадь по фундаменту – 21,60 м2.
- Площадь внутренней части – 11, 50 м2+2,7 м2 терраса: парилка 4,14 м2, моечная 3,59 м2, терраса 2,7 м2, предбанник 3 м2. Перепланировать внутреннюю часть можно по-своему, так если убрать террасу, то увеличиться предбанник. Поместиться полноценная комната отдыха.
Баня 6 на 4 своими руками. Планировка бани 6x4 — идеи, материал, этажность
О чем задумываются владельцы коттеджей и загородных домов? О том, как хорошо было бы поставить баньку. Ведь это SPA-салон в собственном распоряжении. А какая площадь должна быть?
В маленькой будет тесно, большая будет быстро остывать и усилий на поддержание микроклимата придется прикладывать много. А вот баня 6×4 метра – один из оптимальных размеров.
Строить баню самим? Почему бы и нет, если есть талант к строительному делу, необходимое оборудование и много сил. Купить? Такой вариант тоже хорош, поскольку получаете уже готовый банный комплекс. Но точно ли все устроит?

Сами будете строить или закажете готовое здание, проект бани 6×4 вам понадобится. Предлагаем несколько фото с размерами и внутренней планировкой. Так можно визуально представить, где вы и гости будут париться, где принимать душ, переодеваться и отдыхать.
План бани может быть один, а вариантов исполнения несколько в зависимости от материала для строительства стен. А если что-то не устраивает, можно внести дополнения в проект в виде веранды или террасы внизу или мансарды наверху.
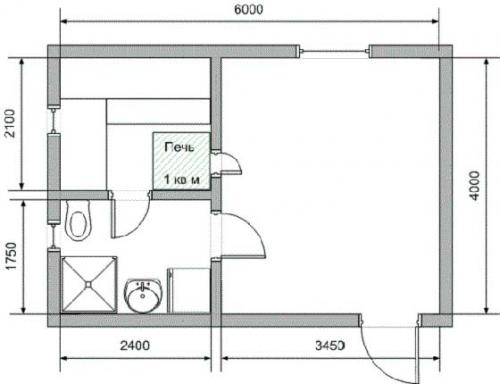
Планировка бани 6×4 метра
Что должно быть в бане помимо самой парилки и сеней? Забудем темные и тесные деревенские строения, как помещения для купания. Сегодня баня – это место отдыха, поэтому план бани 6×4 должен быть хорошо продуманным. Что в него включить?


- Парная. Здесь стоит печь, находятся лавки с лежаками. Обычно парная занимает вторую по величине комнату и находится, как правило, в углу здания.
- Душевая. Находятся мойка и парилка отдельно, иначе либо парилка остынет, либо душ не принесет желаемого облегчения.
- Предбанник – место, где можно оставить вещи.
- Комната отдыха – самое большое по площади помещение. Здесь и удобные диваны, кресла и стол, и телевизор. Включив фантазию, можно украсить комнату живыми цветами и комнатным водопадом.
Комната отдыха внутри самой бани – отличное место для зимнего времяпрепровождения. А летом будет приятно посидеть на открытой террасе, в межсезонье – на застекленной веранде. Стоит продумать этот момент и спроектировать план бани 6×4 с террасой или верандой. С фото таких вариантов мы поможем.
Хочется в бане иметь помимо стандартных помещений еще и бассейн? Планировка бани 6×4 может учитывать и это. В таком случае понадобится второй этаж или мансарда. На них можно оборудовать раздевалки, комнату отдыха или душевую, а парилку или бассейн оставить снизу. Вдохновляйтесь фото-идеями.



Подробней о помещениях
Классическая баня 6×4 имеет три помещения.

Комната для отдыха, парная и душевая
Предбанник
Здесь гости раздеваются, тут же в ящиках хранится уголь или дрова для печи, а на полках веники.

Для экономии места предбанник часто объединяют с гостевой комнатой, расставляя здесь мебель, устанавливая телевизор и другие приборы, накрывая стол.
Его площадь в идеале – из расчета на 1 человека по 1,3 кв.м + место для хранения банных принадлежностей и вещей.
Важно! В комнате отдыха должно быть окно.
Парилка
В помещении стоит печь – натуральная, газовая или электрическая. К стенам крепятся полки. Здесь требования иные – минимум по 1 метру на каждого + печь + расстояние от печи до стен и проходы.

Идеальная высота – 2-2,1 метра. Если потолки будут выше, пар будет занимать лишнее, неиспользуемое пространство. Если ниже – накапливаясь, горячему воздуху понадобится выход, и он улетучится в вентиляцию. Ширина полок – 40-90 см.
Важно! Дверь должна открываться не в парилку, а из нее, то есть в комнату отдыха. В противном случае в предбаннике будет высокая температура и влажность.
Как могут париться гости и хозяева в парной, приведено на схеме ниже.

Как правильно париться
Душевая
В зависимости от размера помещения, здесь можно установить душевую кабинку, туалет, вмонтировать душ в стену.

Обогреваться душевая может той же печью, что и парилка (если у них смежная стена).
Выбрав планировку с учетом необходимых помещений в бане и их размерами, нужно определиться с материалом, из которого и будет возводиться комплекс.
Баня из бревна
Баня из бревна – это классика. И наиболее популярны оцилиндрованные бревна. Деревенские парилки как раз и возводили из сруба.

Прелесть таких комплексов в том, что дерево – материал здоровый, экологически чистый. Возводится такая баня в рекордные сроки. Если бревна обрабатываются механическим способом, а не вручную, стоимость их невелика. Сэкономить можно и на внутренней отделке – дерево само по себе прекрасно. А для пожаробезопасности и противостояния грибкам бревна обрабатываются специальными растворами.
Недостатки появятся, если компания, вызвавшаяся поставить баню, не просушила бревна, поэтому через некоторое время здание «поведет», или неправильно выбрала дерево: хвойные породы «плачут», дуб может растрескаться от жары.