Планировка бани 3 н. Баня 3*6
- Планировка бани 3 н. Баня 3*6
- Баня 6 на 3 с туалетом. Баня из бруса 6 на 3 метра: особенности типовых проектов. Критерии для выбора планировки, оформления и материалов отделки
- Баня 3 н. Планировка бани 5х3
- Баня 3 н. Баня 3х8 из бруса (Б-84)
- Планировка бани 6 н. Планировка бани 6x4 — идеи, материал, этажность
Планировка бани 3 н. Баня 3*6
С чего начинается строительство бани ? Кто-то обращается за помощью к специалистам, а кто-то стремится сделать всю работу самостоятельно. Чаще всего в ней выстраивают на территории загородных коттеджей и дач. Как приятно после работы на приусадебном и огородном участке просто насладиться отдыхом. Строительство подразумевает тщательную планировку каждой из комнат этого небольшого сооружения. Специалисты советуют возводить ее неподалеку от водоемов, так как после сильного нагрева нужно будет своевременно охладиться.
Все по пунктам
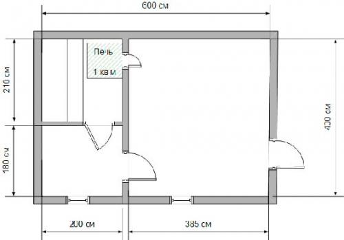
После того, как вы определитесь с количеством помещений и детальной планировкой , нужно будет получить разрешение исполнительных органов. Если у вас на этот счет нет совершенно никаких творческих мыслей, тогда стоит подобрать один из множества классических проектов бань с размером 3*6. Детальные расчета помогут определить основные параметры, а также ее помещений:
- предбанника ;
- парилки ;
- моечной.
Варианты планировок

Вариант 1

Вариант 2

Вариант 3
Строим баню своими руками
Чаще всего размеры рассчитываются исходы из того, сколько одновременно человек будет мыться (не более 3-4 человек) . Строить ее для одного человека - совершенно бессмысленно. В ней человек должен отдыхать не только душой, но еще и телом. Баня 3*6 своими руками должна иметь парилку не менее чем 6 метров квадратных. Предбанник, или как его еще именуют должен быть 3-5 квадратных метров . Расчеты проводятся следующим образом: на одного человека должно обязательно приходиться не меньше 1,5 метров. Предбанник и тамбур служат не просто украшением, они выполняют свое основное предназначение, которое заключается в препятствовании проникновения холодного воздуха внутрь. Если парилка маленькая, то парилку и моечную очень часто совмещают, но специалисты не рекомендуют этого делать.
Терраса возле бани
Любители полюбоваться природой не упустят возможности построить возле нее небольшую террасу или беседку. В летнее время года в беседке можно будет отдохнуть, выпить горячего чая и т.д. Дождливой осенью терраса будет служить козырьком от осадков.

Идеальная печь
Какой должна быть печка для бани ? Кто-то отдает предпочтение дровяной, а кому-то больше нравится электрическая. Самое главное, чтобы печь была максимально компактной и способной нагреть воду для мытья и камни . В качестве топлива используется: электричество, дрова и газ. Вид топлива будет зависеть от основной конструкции, а также от размеров печки-каменки . Не стоит приобретать дешевые печки китайского производства, так как уже через несколько месяцев вам придется потратить в несколько раз больше для того, чтобы заменить свою печь на: немецкую, испанскую, английскую, французскую или итальянскую модель.

Баня 6 на 3 с туалетом. Баня из бруса 6 на 3 метра: особенности типовых проектов. Критерии для выбора планировки, оформления и материалов отделки
В древние времена люди очень любили париться в бане, и спустя столько времени это не изменилось. Практически каждый владелец даже маленькой дачи желает построить баню, но не каждый на это решается. Но это не так сложно, как вы думаете. Главное — начать.

В этой статье вы сможете узнать об особенностях строительства бани 6х3 метра, о материалах, используемых в возведении этой конструкции, и прочих нюансах данной постройки.

Достоинства бани 6х3
Баня таких размеров может иметь большое количество нюансов, но сейчас стоит обратить внимание на достоинства.

Так, среди них:
- Компактность постройки. Такие габариты позволяют возвести баню на участке даже с малой площадью.
- Односезонное возведение. Банная конструкция является одной из самых простых, и постройку такого типа можно возвести всего за один сезон — усадка при использовании бруса минимальна.
- Стоимость создания. Цена на возведение такой бани не слишком высока, что и привлекает будущих владельцев, если использовать подходящие материалы.
- Бюджетная эксплуатация. Бани таких габаритов просты и дешевы в обслуживании, они быстро прогреваются и не требуют огромного количества топлива, если сравнивать с большими банными комплексами.
Материалы для возведения бани 6 на 3
Материалов для создания бани на 6х3 метра множество, и следует подробно рассмотреть несколько распространенных вариантов:
- Дерево. Бани из бревна или бруса являются неким классическим вариантом для оформления дачи или загородного участка. Стены из дерева придают уюта постройке, отлично держат тепло без нарушения теплообмена. Плюсом таких бань является экономия топлива, но вот большим минусом — регулярный уход за стенами, так как со временем они могут потерять свой должный внешний вид.
- Кирпич. Здесь среди достоинств стоит отметить долговечность, надежность, отсутствие постоянного ухода, а также способность вписаться практически в любой ландшафт. К сожалению, здесь есть и недостатки, например, высокая цена как на создание, так и эксплуатацию постройки. На растапливание кирпичной бани уходит много времени и ресурсов, а также понадобится продуманная система вентиляции.
- Блоки. В наше время такие материалы как шлакоблоки, пеноблоки и керамзитобетонные блоки пользуются довольно большой популярностью среди фанатов загородных бань. Такие постройки имеют прекрасную теплоизоляцию, оптимизированные размеры и малый вес, что снижает время на возведение бани.
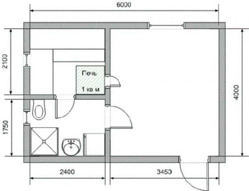
Баня 3 н. Планировка бани 5х3
В банном помещении, вне зависимости от того, какого размера оно будет, должны быть определенные комнаты. Без них баня не будет полноценной.
Первое помещение, в которое заходит человек, является предбанником. Это своеобразная прихожая, где можно снять одежду. В ее интерьере обязательно должен быть удобный шкафчик для хранения вещей на то время, пока человек будет париться. Многие устанавливают здесь еще 1 ящик, в котором хранится топливо, то есть, дрова либо уголь.
Далее идет комната отдыха. Даже небольшие проекты бань должны включать в себя это помещение. Здесь, как правило, расположен столик и несколько удобных стульев для чаепития и отдыха с друзьями.
Следующей важной комнатой является мойка, или душевая. Здесь будут совершаться охлаждающие процедуры после того, как человек распарит тело
Интерьер данного помещения очень прост. Здесь должно быть несколько лавочек, душ и емкость с водой. В современных банях нередко вместо мойки просто устанавливают душевую кабину. Если речь именно о таком типе бани, то можно дополнить это помещение и стиральной машинкой, чтобы сэкономить место в доме.
Самым главным помещением в бане является парная. Именно ради ее посещения люди и строят подобные здания. Здесь, по традиции, должна быть установлена печь, оборудованы деревянные лавочки. В парилке главное – это горячий воздух. Здесь важен не столько внутренний интерьер, сколько правильная теплоизоляция. Нельзя забывать о том, что это помещение не только очень теплое, но и влажное. По этой причине количество электроприборов в данной комнате должно быть сведено к минимуму. Допускается пара лампочек в специальных плафонах, а также печка, работающая от электросети. Интерьер парной лучше сделать в простом деревенском стиле. Здесь ничего особенно придумывать не нужно, достаточно просто обработать стены деревом. Если баня была построена из деревянных бревен, их можно просто обработать специальными растворами, чтобы они лучше переносили высокие температуры и влажность.
Это основные комнаты, которые должны быть в каждой бане, даже самой компактной. Кроме того, иногда к бане пристраивают удобную террасу для чаепития на свежем воздухе. Встречаются и более продвинутые варианты с бассейнами, но такие строения далеко не каждому по карману. Если парной будет пользоваться небольшая семья, нет смысла выстраивать огромное помещение и тратить на это кучу денег. Даже в компактной бане проекта 3 на 5 из пеноблоков либо другого материала можно прекрасно отдохнуть и поправить здоровье.
Баня 3 н. Баня 3х8 из бруса (Б-84)
цена бани 3х8 под ключ
стоимость из бруса естественной влажности
Брус который не подвергался сушке
Брус 90х140 609 000 ₽
Брус 140х140 637 000 ₽
Брус 140х190 670 000 ₽
стоимость из бруса камерной сушки
Брус который имеет влажность не более 19%, что позволяет уменьшить риск трещин в бруса
Брус 90х140 706 000 ₽
Брус 140х140 739 000 ₽
Брус 140х190 777 000 ₽
Расчитаем стоимость проекта и перезвоним
Базовая комплектация под ключ
| Фундамент | Опорно столбчатый из блоков 200х400х200 мм по четыре блока в каждой тумбе. Количество тумб зависит от размеров бани. Стоимость свайного фундамента рассчитывается отдельно. |
| Силовая конструкция | |
| Основание (обвязка) | Обвязка - 2 нижних венца из нестроганного бруса. Толщина сечения согласно выбранной толщины наружных стен (100х150 мм, 150х150 мм или 200х150 мм). |
| Половые лаги | Обрезной брус 50х150 мм с шагом не более 600 мм. |
| Черновой пол | Обрезная доска 1-го сорта 22х100 мм естественной влажности, укладывается на брусок 40х50 мм, прибитый к лагам. |
| Наружные стены | Профилированный брус 90х140, 140х140 или 190х140 мм. Форма сечения на выбор: прямоугольная или закругленная с внешней стороны. |
| Сборка сруба | Между венцами проф. бруса прокладывается льноджутовый утеплитель. Сборка осуществляется на металлические нагеля (гвозди 200 мм). В качестве дополнительной услуги - сборка на берёзовые нагеля. |
| Стыковка угловых соединений | Рубка наружных стен и внутренних перегородок осуществляется в "тёплый угол" (шип-паз). Акция: БЕСПЛАТНО! |
| Перегородки | Прямой профилированный брус из древесины хвойных пород естественной влажности 90х140 мм. |
| Высота потолков | 2.2 м (16 венцов), высота конька: 1.5 м. |
| Потолочные балки | Нестроганная доска естественной влажности 40х100 мм с шагом не более 900 мм. |
| Отделка и утепление | |
| Чистовой пол | Сухая шпунтованная доска 36 мм. |
| Утепление | Пол и потолок утепляется минеральной ватой Knauf 50 мм. Доп. услуга - увеличение толщины. |
| Мембраны | С обеих сторон утеплителя (пол, потолок) протягивается изоляционные мембраны Isospan или аналог. С внешней стороны - ветроизоляция. С внутренней стороны - пароизоляция. |
| Отделка парной | По всему периметру парной (потолок, стены) прокладывается алюминиевая фольга. Подшивается сухой осиновой вагонкой. |
| Двери в парную | Монтируется клиновая осиновая дверь камерной сушки. |
| Полки в парной | Монтируются двухъярусные осиновые пологи камерной сушки. |
| Потолок | По потолочным балкам прокладывается пароизоляционная пленка "Изоспан Б". Потолок подшивается сухой вагонкой 14 мм класса "В". Утепляется минеральной ватой "Knauf" в 50 мм. Монтируется ветроизоляция "Изоспан Б" |
| Окна | Деревянные зимние окна двойного остекления из сосны, толщиной бруска 46 мм. Два стекла через деревянную планку 3х10х3 мм. Стекла герметично просиликонены. Фурнитура поворотная. В комплекте ручки. Размеры и количество - согласно проекту. |
| Двери межкомнатные | Деревянные филенчатые из сосны без фурнитуры. |
| Дверь входная | Деревянная филенчатая (если общая стоимость бани от 590 000 рублей - ставим металлическую дверь). Монтируются обсадные бруски. |
| Плинтус и обналичка | Все углы дома закрываются сухим деревянным плинтусом. Оконные и дверные проемы обносятся наличником. |
| Крыша и кровля | |
| Стропила | Нестроганная доска естественной влажности 40х100 мм с шагом не более 900 мм. |
| Обрешётка крыши | Одинарная, из обрезной доски естественной влажности 22 мм. |
| Крыша и кровля | Крыша двускатная. Высота конька - 1.5 - 1.8 м (согласно проекту). Кровельный материал - ондулин (красный, коричневый или зеленый). Прокладывается ветроизоляционная мембрана "Изоспан А". |
| Внешние фронтоны и поднебесники | Фронтоны каркасные с прокладкой ветрозащитной мембраны "Изоспан А". Снаружи обшиваются вагонкой 14 мм класса "В" естественной влажности. Поднебесники по скату и по фронтону шириной 270 мм. |
| Дополнительно | |
| Банная печь | В базовую комплектацию не входит, заказывается отдельно. Возможные варианты: Ермак-12, Ермак-16, Ермак-20. |
| Оконные и дверные проёмы | Во все оконные и дверные проёмы впиливаются обсадные бруски "ройки" для минимизации негативных последствий усадки. Акция: БЕСПЛАТНО! |
| Компенсаторы усадки | В опоры столбов устанавливаются металлические винтовые компенсаторы усадки. Акция: БЕСПЛАТНО! |
| Душевой поддон | Монтируется пластиковый поддон для душа. Выводится гофрированная труба на улицу для слива воды. Акция: БЕСПЛАТНО! |
| Ступени | Монтируются деревянные ступени при входе. |
Дополнительные опции к проекту
| Увеличить высоту бани на один венец | 16 000 ₽ |
| Строительство перегородок из бруса | 22 000 ₽ |
| Установка трубы-сэндвич через крышу | 8 000 ₽ |
| Комплект труб-сэндвич | 14 000 ₽ |
| Замена половой доски на шпунтовую толщиной 36 мм. | 16 000 ₽ |
| Металлическая входная дверь (производство - Китай) | 7 000 ₽ |
| Утепление бани до 100 мм. | 14 000 ₽ |
| Теплый угол (БЕСПЛАТНО) | 32 000 ₽ |
| Сборка бани на деревянные нагеля | 32 000 ₽ |
| Облицовка печи кирпичом | 10 000 ₽ |
| Строительная бытовка 3х2 м. | |
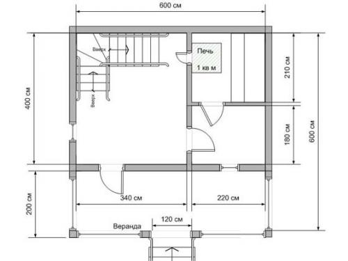
Планировка бани 6 н. Планировка бани 6x4 — идеи, материал, этажность
О чем задумываются владельцы коттеджей и загородных домов? О том, как хорошо было бы поставить баньку. Ведь это SPA-салон в собственном распоряжении. А какая площадь должна быть?
В маленькой будет тесно, большая будет быстро остывать и усилий на поддержание микроклимата придется прикладывать много. А вот баня 6×4 метра – один из оптимальных размеров.
Строить баню самим? Почему бы и нет, если есть талант к строительному делу, необходимое оборудование и много сил. Купить? Такой вариант тоже хорош, поскольку получаете уже готовый банный комплекс. Но точно ли все устроит?

Сами будете строить или закажете готовое здание, проект бани 6×4 вам понадобится. Предлагаем несколько фото с размерами и внутренней планировкой. Так можно визуально представить, где вы и гости будут париться, где принимать душ, переодеваться и отдыхать.
План бани может быть один, а вариантов исполнения несколько в зависимости от материала для строительства стен. А если что-то не устраивает, можно внести дополнения в проект в виде веранды или террасы внизу или мансарды наверху.
Планировка бани 6×4 метра
Что должно быть в бане помимо самой парилки и сеней? Забудем темные и тесные деревенские строения, как помещения для купания. Сегодня баня – это место отдыха, поэтому план бани 6×4 должен быть хорошо продуманным. Что в него включить?


- Парная. Здесь стоит печь, находятся лавки с лежаками. Обычно парная занимает вторую по величине комнату и находится, как правило, в углу здания.
- Душевая. Находятся мойка и парилка отдельно, иначе либо парилка остынет, либо душ не принесет желаемого облегчения.
- Предбанник – место, где можно оставить вещи.
- Комната отдыха – самое большое по площади помещение. Здесь и удобные диваны, кресла и стол, и телевизор. Включив фантазию, можно украсить комнату живыми цветами и комнатным водопадом.
Комната отдыха внутри самой бани – отличное место для зимнего времяпрепровождения. А летом будет приятно посидеть на открытой террасе, в межсезонье – на застекленной веранде. Стоит продумать этот момент и спроектировать план бани 6×4 с террасой или верандой. С фото таких вариантов мы поможем.
Хочется в бане иметь помимо стандартных помещений еще и бассейн? Планировка бани 6×4 может учитывать и это. В таком случае понадобится второй этаж или мансарда. На них можно оборудовать раздевалки, комнату отдыха или душевую, а парилку или бассейн оставить снизу. Вдохновляйтесь фото-идеями.



Подробней о помещениях
Классическая баня 6×4 имеет три помещения.

Комната для отдыха, парная и душевая
Предбанник
Здесь гости раздеваются, тут же в ящиках хранится уголь или дрова для печи, а на полках веники.

Для экономии места предбанник часто объединяют с гостевой комнатой, расставляя здесь мебель, устанавливая телевизор и другие приборы, накрывая стол.
Его площадь в идеале – из расчета на 1 человека по 1,3 кв.м + место для хранения банных принадлежностей и вещей.
Важно! В комнате отдыха должно быть окно.
Парилка
В помещении стоит печь – натуральная, газовая или электрическая. К стенам крепятся полки. Здесь требования иные – минимум по 1 метру на каждого + печь + расстояние от печи до стен и проходы.

Идеальная высота – 2-2,1 метра. Если потолки будут выше, пар будет занимать лишнее, неиспользуемое пространство. Если ниже – накапливаясь, горячему воздуху понадобится выход, и он улетучится в вентиляцию. Ширина полок – 40-90 см.
Важно! Дверь должна открываться не в парилку, а из нее, то есть в комнату отдыха. В противном случае в предбаннике будет высокая температура и влажность.
Как могут париться гости и хозяева в парной, приведено на схеме ниже.

Как правильно париться
Душевая
В зависимости от размера помещения, здесь можно установить душевую кабинку, туалет, вмонтировать душ в стену.

Обогреваться душевая может той же печью, что и парилка (если у них смежная стена).
Выбрав планировку с учетом необходимых помещений в бане и их размерами, нужно определиться с материалом, из которого и будет возводиться комплекс.
Баня из бревна
Баня из бревна – это классика. И наиболее популярны оцилиндрованные бревна. Деревенские парилки как раз и возводили из сруба.

Прелесть таких комплексов в том, что дерево – материал здоровый, экологически чистый. Возводится такая баня в рекордные сроки. Если бревна обрабатываются механическим способом, а не вручную, стоимость их невелика. Сэкономить можно и на внутренней отделке – дерево само по себе прекрасно. А для пожаробезопасности и противостояния грибкам бревна обрабатываются специальными растворами.
Недостатки появятся, если компания, вызвавшаяся поставить баню, не просушила бревна, поэтому через некоторое время здание «поведет», или неправильно выбрала дерево: хвойные породы «плачут», дуб может растрескаться от жары.