Баня с мансардой 6 н. Проект бани 6х4 с мансардой – отличный вариант
Баня с мансардой 6 н. Проект бани 6х4 с мансардой – отличный вариант
Дерево относится к материалам, которые являются самыми экологичными, и в то же время прочными и теплыми. Строительство бань практически всегда велось из бревен, а внутренняя отделка выполнялась из липы и осины.
В настоящее время проекты бань с мансардой 6х4 метров пользуются большой популярностью. При этом используется оцилиндрованные бревна, пропущенные через специальные станки, в которых выпилен паз. Чаще всего такие бревна изготавливаются под конкретный проект, поэтому чашки в них выпиливаются на конкретном месте с высокой степенью точности.

Фото бани с мансардой – удобно и практично
Поэтому на месте сруб из таких бревен собирается довольно быстро, важно конечно иметь определенный навык работы с этим материалом. Все бревна нумеруются по стенам и венцам, что исключает путаницу. Применение современных покрытий и специальных пропиток от горения и гниения, позволят увеличить сроки эксплуатации зданий из оцилиндрованного бревна.
Достоинства бани с мансардой из бревна

Отличная комната отдыха и прекрасный микроклимат в мансарде бани из дерева
Пожалуй, Вас заинтересует проект бани из бревна 6х4 с мансардой, и именно из-за имеющихся у этого материала достоинств:
- Экологичность – находясь во внутренних помещениях бани, нет опасений попадания в воздух каких-либо химических веществ, опасных для здоровья. Напротив, эфирные масла, имеющиеся в древесине, благоприятно влияют на организм человека.
- Дерево обладает низкой теплопроводностью , поэтому, хорошо законопатив сруб, можно рассчитывать на отличное сохранение тепла. Следовательно, даже в сильные холода, баня легко и быстро протапливается и остывает достаточно долго.
- Деревянные стены обеспечивают возможность естественного воздухообмена . В результате чего исключаются сквозняки, что бережет от простуд.
- Длительные сроки эксплуатации при соблюдении всех правил установки сруба, исчисляемые десятилетиями. Если же сложить баню из осины или лиственницы, то такая баня со временем становится еще прочнее.
- Относительно невысокая цена на баню из оцилиндрованного бревна.
- Процесс установки занимает не так много времени , потому что имеющиеся у бревен пазы и выпиленные в нужных местах чашки значительно сокращают время строительства.
Дом баня 6 на 8 с мансардой. Проекты бани 6х8 м: особенности и виды
Строительство любой бани начинается с проекта. Именно в процессе его создания вы определяетесь с количеством и размером помещений, расположением дверей и окон и даже расстановкой. Необходимо также заранее определиться с тем, где будут выключатели и светильники, продумать системы канализации и водоснабжения/водоотведения.
Проект бани 6х8 достаточно просторный, поэтому нет необходимости ограничиваться самым минимальным набором помещений, а именно парной и моечной. В такой бане без труда поместятся не менее важные комната отдыха и предбанник.
Предбанник – это прихожая, где должно быть место для того, чтобы переобуться и оставить верхнюю одежду. Также нередко в нем выделяют место под хозяйственные нужды, в частности для хранения дров. Делать большим его не стоит, поскольку постоянно и всеми он использоваться не будет.
Парная может быть также разных размеров. Зависит от того, на сколько человек она рассчитана. В парной нужно разместить печь и полоки. Размеры парной обычно не меньше 2х2 м, но поскольку баня 6х8 довольно большая, лучше парную сделать также крупнее, хотя бы 2х3 м.
Моечная может быть совсем небольшой или крупной. Зависит от того, что вы хотите в ней разместить. Если в ней будет лишь одна душевая кабина, то нужно делать моечную чуть больше кабины. Другой вариант, если в ней будут душ, купель или даже бассейн. В этом случае моечная будет значительно больше.
Комната отдыха – это место, где вы будете одновременно всей компанией, поэтому она должна быть просторной. В этом помещении также будут как минимум стол и стулья/лавки. На площади комнаты отдыха экономить не стоит, если в ней будет тесно, то удовольствие от посещения бани будет меньше.
Как уже говорилось, баня 6х8 достаточно большая, поэтому проект может предусматривать и другие помещения. Обязательно сделайте санузел, с ним баня будет комфортнее, и ее можно будет использовать в качестве гостевого домика. В проекте также возможно сделать небольшую кухню.
Традиционно в баню ходят летом. Но разве захочется в теплую погоду проводить время в помещении? Поэтому рекомендуем сделать веранду. Она может быть небольшой или просторной. Но важно, чтобы на ней поместились стулья и стол, в таком случае можно будет устроить пикник. При этом если пойдет дождь – не страшно, крыша защитит вас от непогоды.
Отдельного внимания заслуживают проект бани 6 на 8 с мансардой. Двухэтажная постройка сразу же значительно увеличивает величину полезной площади, не занимая при этом лишнюю территорию на земельном участке. В ней легко поместится компания из 6 человек.
Подобный вариант идеально подходит для небольших территорий. Такая баня на даче может заменить дачный домик. Если же вы построите подобную баню рядом со своим домом, то у вас получится, в которой смогут останавливаться ваши друзья и родственники.
Традиционно баню размещают на первом этаже, а жилые комнаты на втором. Конечно, можно сделать и иначе, но в этом случае стоимость постройки бани будет в разы выше. На втором ярусе можно сделать удобную комнату для отдыха, мансарду или даже спальню. Но если вы планируете жить на втором этаже, то нужно продумать систему отопления. В таком случае в бане можно будет оставаться с ночевкой круглый год, а не только летом.
Пример проект дома-бани 6 на 8 вы можете посмотреть в этом
https://www.youtube.com/watch?v=jhoVE3BjziQ
Как видите, баня 6 на 8 – это достаточно просторная и вместительная постройка. Здесь можно проявить фантазию и сделать проект с разным количеством помещений. Планировка бани 6х8 может быть разной в зависимости от ваших нужд. Отдыхаете большой компанией? Сделайте просторные парную и комнату отдыха. Предпочитаете собираться только семьей? Можно добавить в проект беседку или сделать просторную моечную. Существует множество вариантов планировок, вы можете найти как готовую в интернете, так и составить самостоятельно или с помощью специальных компаний.
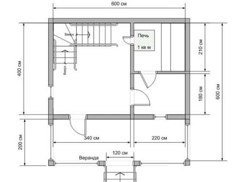
Двухэтажная баня 6 н. Планировка бани 6x4 — идеи, материал, этажность
О чем задумываются владельцы коттеджей и загородных домов? О том, как хорошо было бы поставить баньку. Ведь это SPA-салон в собственном распоряжении. А какая площадь должна быть?
В маленькой будет тесно, большая будет быстро остывать и усилий на поддержание микроклимата придется прикладывать много. А вот баня 6×4 метра – один из оптимальных размеров.
Строить баню самим? Почему бы и нет, если есть талант к строительному делу, необходимое оборудование и много сил. Купить? Такой вариант тоже хорош, поскольку получаете уже готовый банный комплекс. Но точно ли все устроит?

Сами будете строить или закажете готовое здание, проект бани 6×4 вам понадобится. Предлагаем несколько фото с размерами и внутренней планировкой. Так можно визуально представить, где вы и гости будут париться, где принимать душ, переодеваться и отдыхать.
План бани может быть один, а вариантов исполнения несколько в зависимости от материала для строительства стен. А если что-то не устраивает, можно внести дополнения в проект в виде веранды или террасы внизу или мансарды наверху.
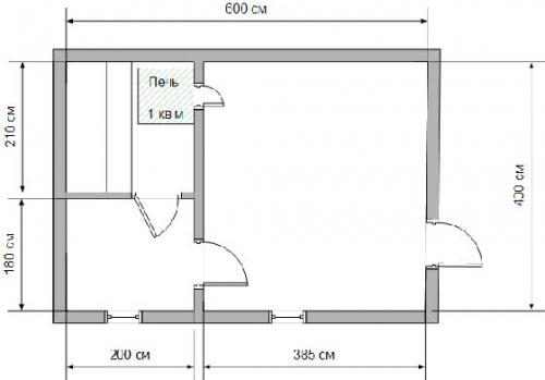
Планировка бани 6×4 метра
Что должно быть в бане помимо самой парилки и сеней? Забудем темные и тесные деревенские строения, как помещения для купания. Сегодня баня – это место отдыха, поэтому план бани 6×4 должен быть хорошо продуманным. Что в него включить?


- Парная. Здесь стоит печь, находятся лавки с лежаками. Обычно парная занимает вторую по величине комнату и находится, как правило, в углу здания.
- Душевая. Находятся мойка и парилка отдельно, иначе либо парилка остынет, либо душ не принесет желаемого облегчения.
- Предбанник – место, где можно оставить вещи.
- Комната отдыха – самое большое по площади помещение. Здесь и удобные диваны, кресла и стол, и телевизор. Включив фантазию, можно украсить комнату живыми цветами и комнатным водопадом.
Комната отдыха внутри самой бани – отличное место для зимнего времяпрепровождения. А летом будет приятно посидеть на открытой террасе, в межсезонье – на застекленной веранде. Стоит продумать этот момент и спроектировать план бани 6×4 с террасой или верандой. С фото таких вариантов мы поможем.
Хочется в бане иметь помимо стандартных помещений еще и бассейн? Планировка бани 6×4 может учитывать и это. В таком случае понадобится второй этаж или мансарда. На них можно оборудовать раздевалки, комнату отдыха или душевую, а парилку или бассейн оставить снизу. Вдохновляйтесь фото-идеями.



Подробней о помещениях
Классическая баня 6×4 имеет три помещения.

Комната для отдыха, парная и душевая
Предбанник
Здесь гости раздеваются, тут же в ящиках хранится уголь или дрова для печи, а на полках веники.

Для экономии места предбанник часто объединяют с гостевой комнатой, расставляя здесь мебель, устанавливая телевизор и другие приборы, накрывая стол.
Его площадь в идеале – из расчета на 1 человека по 1,3 кв.м + место для хранения банных принадлежностей и вещей.
Важно! В комнате отдыха должно быть окно.
Парилка
В помещении стоит печь – натуральная, газовая или электрическая. К стенам крепятся полки. Здесь требования иные – минимум по 1 метру на каждого + печь + расстояние от печи до стен и проходы.

Идеальная высота – 2-2,1 метра. Если потолки будут выше, пар будет занимать лишнее, неиспользуемое пространство. Если ниже – накапливаясь, горячему воздуху понадобится выход, и он улетучится в вентиляцию. Ширина полок – 40-90 см.
Важно! Дверь должна открываться не в парилку, а из нее, то есть в комнату отдыха. В противном случае в предбаннике будет высокая температура и влажность.
Как могут париться гости и хозяева в парной, приведено на схеме ниже.

Как правильно париться
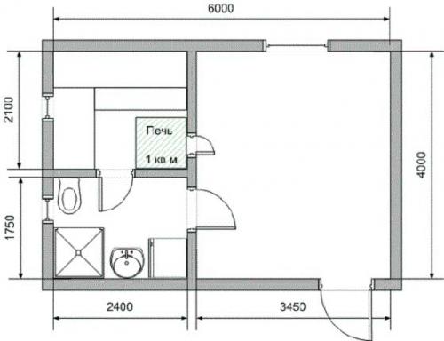
Душевая
В зависимости от размера помещения, здесь можно установить душевую кабинку, туалет, вмонтировать душ в стену.

Обогреваться душевая может той же печью, что и парилка (если у них смежная стена).
Выбрав планировку с учетом необходимых помещений в бане и их размерами, нужно определиться с материалом, из которого и будет возводиться комплекс.
Баня из бревна
Баня из бревна – это классика. И наиболее популярны оцилиндрованные бревна. Деревенские парилки как раз и возводили из сруба.

Прелесть таких комплексов в том, что дерево – материал здоровый, экологически чистый. Возводится такая баня в рекордные сроки. Если бревна обрабатываются механическим способом, а не вручную, стоимость их невелика. Сэкономить можно и на внутренней отделке – дерево само по себе прекрасно. А для пожаробезопасности и противостояния грибкам бревна обрабатываются специальными растворами.
Недостатки появятся, если компания, вызвавшаяся поставить баню, не просушила бревна, поэтому через некоторое время здание «поведет», или неправильно выбрала дерево: хвойные породы «плачут», дуб может растрескаться от жары.
Баня 4 на 7 с мансардой. Банный дом для идеального дачного участка
Предлагаемый проект является образцом классического банного строительства нашего региона. Проекты, подобные этому, можно найти на сайте компании «Мастер Дачи» в разделе « Бани из рубленого бревна ».
СОВЕТ! Поскольку выбор банного дома для дачи – процесс ответственный и требующий максимального внимания, то делать его следует исходя из практичности конкретного строения в условиях вашего участка.
Баня 5 на 7 состоит из таких ключевых частей:
- Основное помещение первого этажа представляет собой компактно расположенные типовые части банного комплекса (предбанник, моечная и парная). Размеры предбанника позволили разместить в нем лестницу на мансардный этаж, при этом в комнате осталось свободное место для мебели. Проходная моечная (6 кв.м.) оснащена небольшим окном для проветривания. Подобное же окно размещено и в парной (6 кв.м.).
- Закрытая веранда, которую предусматривает данный проект, может эксплуатироваться в любое время года. Этому способствует наличие общей с парной стены, которая и обеспечивает комфортную температуру для этой части банного дома.
- Второй (мансардный) этаж может использоваться в качестве хозяйственного помещения для хранения банных принадлежностей или садового инвентаря, а может быть переоборудован для проживания.
Специалисты отмечают, что с точки зрения простоты и удобства пользования наиболее практичным проектом считается именно баня с верандой: проект предусматривает пользование строением и в теплое, и в холодное время года. Наличие просторной веранды удобно для семей с различным составом, а также для особо хозяйственных владельцев, которые нуждаются в наличии дополнительной площади дачных построек.
Источник: https://bani-iz-brusa.postroivsesam.info/stati/banya-s-mansardoy-6-n-penobloki