8 этапов возведения и рекомендации, как строить баню. Виды материала для строительства бани
- 8 этапов возведения и рекомендации, как строить баню. Виды материала для строительства бани
- Баня своими руками чертежи. Миниатюрные каркасные баньки — оптимальный выбор
- Как построить баню из блоков. Возводим баню – поэтапное строительство
- Чертеж бани 3х4. Варианты планировки бани 3х4 для дачи
- Как начать строить баню. Популярные вопросы и ответы
8 этапов возведения и рекомендации, как строить баню. Виды материала для строительства бани
Традиционным материалом для бань является дерево: сруб или профилированный брус. Деревянные стены хорошо удерживают тепло внутри строения, а смолистый аромат благоприятно влияет на самочувствие. Из недостатков можно выделить низкую огнестойкость – для защиты дерево обрабатывают специальными растворами – и слабую герметизацию стыков, из-за чего требуется тщательно проконопачивать все щели.
Более дешевым материалом для стен бани является кирпич или блоки из ячеистого бетона. Из преимуществ таких бань можно выделить простоту в обслуживании, огнестойкость, хорошие, но недостаточно высокие теплоизоляционные свойства, вследствие чего такие стены требуют дополнительного утепления. Кроме проведения дополнительной теплоизоляции стен, изнутри их необходимо тщательно загерметизировать, ввиду высокой влагопоглощающей способности.
Если нужен эконом вариант
Не обязательно выстраивать большую баню, чтобы наслаждаться парными процедурами – всегда есть возможность построить баню дешево, используя эконом вариант. При этом сэкономить можно на многом, например:
- Материал стен. Баня из дерева более предпочтительна, но из блоков экономически выгодна. Если не хочется отступать от деревянной застройки, предпочтительнее выбрать технологию каркасного строительства, при которой можно использовать бывшую в употреблении обрезную доску или низкосортную не обрезную, придав дополнительный колорит внешнему виду бани.
- Тщательное планирование. На стадии создания проекта уменьшить размеры комнат до минимально допустимых. От комнаты отдыха можно отказаться. А вот парилку следует выполнять с учетом всех требований безопасности: в слишком маленькой парилке легко обжечься о каменку или обвариться паром. Помывочную можно объединить с парилкой.
- Водосточная система. Можно отказаться от подачи воды в баню по трубопроводу, достаточно обустроить печь с баком для подогрева воды и приносить воду в ведрах. От санузла и вовсе можно отказаться.
Впрочем, все способы экономии лучше обсудить с застройщиком – на месте виднее, какие из них можно использовать, а что будет явно нежелательным.
Как построить баню для дачи? Если вопрос о необходимости бани на участке уже решен, остается только выбрать, заказывать строительство с нуля или купить готовую баню. При заказе строительства можно выбрать типовой проект или сделать индивидуальный под заказчика. Готовые компактные бани для дачи «приезжают» к заказчику уже в собранном виде. Посмотреть ее изнутри можно непосредственно перед покупкой, особенно интересны бани цилиндрической формы.
Особенности готовых бань:
- Баня монтируется на деревянном каркасе;
- Внутри и снаружи каркас бани обшивается вагонкой, возможно использование профилированного бруса, тогда стоимость готовой бани будет выше;
- Источником тепла является электрокаменка;
- Баня разделена на 3 комнаты, переходящие друг в друга: предбанник, моечная, парилка;
- Емкость для воды монтируется на крыше, а под полом – поддон для стока. Вывод стоков осуществляется через специальный патрубок.
Рекомендации по выбору материалов и общий ход работ
Даже когда проект полностью готов, есть еще много нюансов, которые потребуют внимания. Как сделать наружную отделку, что выбрать в качестве утеплителя, чем настлать крышу и подобные моменты.
Баня своими руками чертежи. Миниатюрные каркасные баньки — оптимальный выбор
Мини-баня на загородном участке — прекрасный вариант для экономии площади. Правда, одновременно попариться в помещении 3х3 или 3х4 получится лишь у пары человек. Тем не менее, это самый быстрый и недорогой вариант постройки. За основу проще всего взять готовый проект каркасной бани. Можно объединить раздевалку, душевую и парилку в одном помещении. Или предусмотреть более удобный проект с отдельной парилкой, помывочной и комнатой отдыха.

Малогабаритные каркасные бани 4х3 или 4х4 — лучший выбор:
- для экономии на стройматериалах (брус 6 метров режут пополам, получается безотходная стройка);
- скоростного возведения конструкции (всего пару недель затрачивают на строительство при условии готового проекта);
- крепости готового сооружения (при закупке качественной пропитанной древесины каркасная баня простоит очень долго).
Баня до 20 кв. м — рациональное использование площади
Если есть возможность построить каркасную баню 6х6, ее обязательно нужно использовать. Стандартные чертежи включают парную, душевую, комнату отдыха, небольшой коридорчик и санузел. Если разработать проект с мансардой, получите дополнительную жилплощадь на втором этаже. Ее можно использовать под гостевую, бильярдную или спальню.

Техдокументация для проектов каркасных бань площадью 20 кв. м предполагает организацию опорно-столбчатого фундамента с блоками из бетона , основание должно быть надежно гидроизолировано. На пол укладывают черновой настил (22-миллиметровая обрезная доска), затем чистовое покрытие в виде 30-миллиметровой шпунтованной доски. Антисептическую обработку и утепление 10-сантиметровой минватой нужно обеспечить в обязательном порядке.
Стены, перегородки и перекрытия делают из бруса 150х100 мм, используется также доска 100х50 мм и 100х40 мм. Вагонка после камерной обработки идеально подходит для обшивки потолка и перегородок. Десятисантиметровые плиты минеральной ваты и пароизоляция в два слоя укладываются под обшивку.

Для обустройства стропильной системы предназначена доска 100х50 мм, для обрешетки — 22 мм. Для кровельных работ лучше взять ондулин с волновым профилем Выбор оконной системы — деревянной или металлопластиковой — остается за владельцем. Для парной надо приобрести дровяную печь с баком для воды, продумать кирпичную кладку там, где будет располагаться топка.
Вот такие чертежи и планы можно использовать для возведения каркасной бани своими руками.



Индивидуальные проекты позволяют реализовать практически любые пожелания будущего владельца. Есть возможность присоединить к бане веранду или террасу. И даже в чертежи готовой документации можно вносить небольшие корректировки. Компании по разработке проектов предлагают следующий ряд услуг:
- объект под ключ — проект каркасной бани с заводской сборкой стен и перегородок, полной отделкой внутренних стен и фасадов;
- черновая отделка — облицовка или фасада, или внутренних стен;
- без облицовки — базовая сборка из щитов.
Как построить баню из блоков. Возводим баню – поэтапное строительство
Поэтапное строительство бани из пеноблоков своими руками подразумевает под собой целый ряд строительно-монтажных работ, которые вам предстоит выполнить в определенной последовательности. Постараемся рассмотреть каждый этап более подробно.
Фундамент
Пожалуй, самый важный этап в строительстве бани из пеноблоков – залить надежный и прочный фундамент:
- Изначально, необходимо выкопать неглубокий котлован под ленточный фундамент – 60 см в глубину и 30 см в ширину;
Траншея для будущего основания бани
- Далее, необходимо взять штыри или колышки и вбить по периметру всего котлована. Затем при помощи лазерного уровня или нивелира отметить горизонтальную плоскость, которая впоследствии отмечается веревкой;
Натягиваем веревку по уровню
- Следующий этап – вязка армокаркаса, толщина арматуры в котором должна быть не менее 12 мм;
- Теперь, когда каркас готов, можно смело приступать к возведению опалубки, которая собирается из досок или щитов, толщиной не менее 25 мм (такая толщина является оптимальной для работ с небольшим фундаментом);
Опалубка, укрепленная опорами + арматура + раствор
- Когда все готово, можно приступать к заливке бетоном (рекомендуется бетон марки 200). Для таких целей лучше иметь бетономешалку или заказать автомиксер, с необходимым количеством готового бетонного раствора.
В итоге, у вас должен получиться фундамент, высотой примерно 70-75 см, которого будет вполне достаточно для реализации проекта бани из пеноблоков (см. фото ниже).
Готовый фундамент с готовым основанием и сливом
Теперь можно смело приступать к монтажу канализации и 10 сантиметрового приемника сточной воды.
Стены
Прежде чем вы приступите к возведению стен из пеноблоков своими руками, вам потребуется заняться гидроизоляцией фундамента. Данный процесс не подразумевает собой никаких серьезных мероприятий – достаточно растопить битум и предварительно разбавив его дизельным топливом (отработанным маслом) промазать бетонное основание.
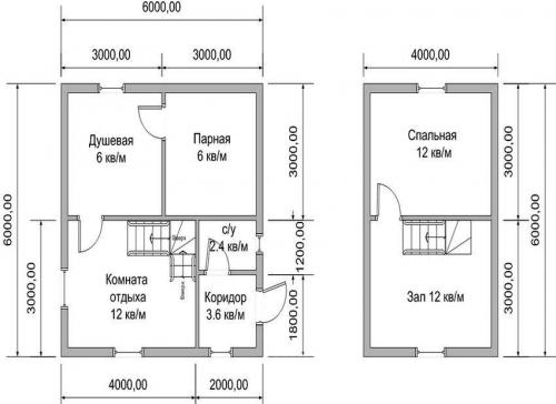
Чертеж бани 3х4. Варианты планировки бани 3х4 для дачи
Перед постройкой бани нужно определиться с местом ее расположения. Она должна находиться не ближе 15 метров от жилого здания, такое расстояние продиктовано техникой безопасности. Удачно было бы построить ее с водоемом или бассейном. Баня должна быть построена на песчано-гравийном участке, если такового нет, то необходимо выкопать яму глубиной полтора метра, и засыпать ее нужной землей. Но в любом случае сооружение нужно возводить на сваях.
Пример проекта с отдельной комнатой отдыха
На фото представлен чертеж бани с отдельными комнатами – 3 штуки.
Схема бани площадью 12 м2.
Классический чертеж: парная, мойка, предбанник
Он предусматривает наличие трех комнат:
- парилку;
- моечную;
- предбанник.
В парилке обязательно предусмотренная печь-каменка, которая выполняет две функции: обеспечивает помещение теплом и паром. Лучше располагать ее между предбанником (комнатой отдыха) и парилкой. Оптимальным было бы обустроить ее рядом с дверью. Если после ее установки в предбаннике чувствуется прохлада, то есть смысл установить еще и печь-буржуйку, специально для обогрева помещения. Обе печи работают на дровяном топливе.
Вас также может заинтересовать проект бани из керамзитобетонных блоков.
Парная – особая комната, если в предбаннике достаточно установить стол и удобную мебель для сидения, то в ней нужно продумать все до мелочей. Ни одна парная не обходится без лежанок – полок, чтобы сэкономить место, а также с учетом предпочтений разных людей, они должны быть двухъярусными. На них человек должен умещаться лежа во весь рост.
Перед постройкой бани нужно определиться с местом ее расположения. Она должна находиться не ближе 15 метров от жилого здания, такое расстояние продиктовано техникой безопасности.
Удачно было бы построить ее с водоемом или бассейном. Баня должна быть построена на песчано-гравийном участке, если такового нет, то необходимо выкопать яму глубиной полтора метра, и засыпать ее нужной землей. Но в любом случае сооружение нужно возводить на сваях.
Чертеж бани
Он предусматривает наличие трех комнат:
- Предбанник (комната отдыха)
- Парилка
- Парная
Предбанник
В предбаннике обязательно предусмотрена печь-каменка, которая выполняет две функции: обеспечивает помещение теплом и паром. Лучше располагать ее между предбанником (комнатой отдыха) и парилкой. Оптимальным было бы обустроить ее рядом с дверью.
Если после ее установки в предбаннике чувствуется прохлада, то есть смысл установить еще и печь-буржуйку, специально для обогрева помещения. Обе печи работают на дровяном топливе.
Парилка
Парная – особая комната, если в предбаннике достаточно установить стол и удобную мебель для сидения, то в ней нужно продумать все до мелочей.
Ни одна парная не обходится без лежанок – полок, чтобы сэкономить место, а также с учетом предпочтений разных людей, они должны быть двухъярусными. На них человек должен умещаться лежа во весь рост.
Как начать строить баню. Популярные вопросы и ответы
Павел Бунин, владелец банного комплекса «Баньскъ»:
Как снизить расходы на постройку бани из бруса?
Несмотря на то, что даже в стандартной комплектации бани из бруса стоят относительно недорого, технология позволяет дополнительно сократить расходы. Но не стоит забывать о правиле: «экономим, но делаем это грамотно, без потери качества результата».
Фундамент. Один из основных этапов постройки. Именно от него зависит, в какую стоимость обойдётся строительство бани. Строя баню из профилированного бруса, достаточно сделать столбчатый фундамент. На него уйдет в два раза меньше материалов, чем на ленточный. Уже ощутимая экономия.
Стены. Стоимость бани во многом зависит и от выбора материала. Так, обрезной брус по цене сопоставим со стоимостью бревна, чтобы работать с этим материалом, необходимо иметь опыт в проведении подобных строительных работ. Несмотря на немалую стоимость профилированного бруса, такой материал позволит упростить этап строительных работ. Все благодаря удобному типу соединения «шип в паз», который обеспечивает герметичность и снижает расходы на теплоизоляцию стен. Самая дорогая разновидность стенового материала — профилированный клееный брус. Используя такой материал, вы существенно сэкономите время.
Кровля. Для того, чтобы стоимость строительства бани была невысокой и без ущерба для качества, можно отказаться от строительства кровли со сложными архитектурными формами. Есть более простые в реализации конструкции, поэтому советую в качестве кровельного материала использовать недорогую, но надёжную и лёгкую мягкую черепицу.
Внутренняя отделка. Опытные строители заверяют, что экономить на внутренней отделке любой бани нельзя. От этого этапа зависит комфорт и период эксплуатации объекта. Нужно обратить внимание на материалы, которые используются в парилке и моечном отделении. Лучшим вариантом для облицовки стен, потолка и пола считаются доски из осины или лиственницы. Обе породы гидрофобные, прочные, а главное, экологически безопасные. А это основной принцип в строительстве любой бани.
Что лучше поручить специалистам?
Соблюдение технологии, грамотный расчёт сметы и ответственный подход гарантируют высокое качество и доступную стоимость результата, однако есть этапы, на которых мы не рекомендуем экономить, лучше привлечь специалистов.
Проект. Как при строительстве любого объекта, изначально для бани необходимо создать проект. Для его составления лучше обратиться в профессиональные конструкторские агентства. Специалисты помогут создать индивидуальный проект с учётом всех особенностей участка и дадут рекомендации по строительству. Не стоит халатно относиться к данному этапу, так как грамотными агентствами изучается даже почва, на которой планируются строительные работы.
Расчёт материала. Любой мастер с большим опытом даже на глаз сможет прикинуть нужное количество материала. Если же вы обращаетесь за доставкой древесины к поставщику, то он все подсчитает самостоятельно и привезет нужное количество. Но редко кто из них учитывает форс-мажорные обстоятельства, к примеру, бракованный материал. Поэтому на данном этапе рекомендую проконсультироваться со специалистами.
Имеются ли нормативы установки бани на участке?
Правильное расположение бани – важнейший этап в строительстве. Есть несколько важных факторов, которые нужно учесть при строительстве.
Стоит обратить внимание на обеспечение бани дневным светом, поэтому необходимо ориентироваться на юг, юго-восток, восток.
Важно изучить рельеф местности, если на территории есть уклон, то банное помещение нужно расположить на возвышенной части, этим вы обезопасите постройку от атмосферных осадков и грунтовой воды. Если сделать это невозможно, примите меры по защите.
Заранее продумайте вопрос по подведению коммуникаций.
Без пожарной безопасности никуда.
На сегодняшний день действуют нормы, которые необходимо соблюдать:
минимальное расстояние от бани до жилого помещения – 8 метров;
между баней из бруса и соседними домами должно быть не менее 15 метров;
до леса, рощ и других мест массового размещения деревьев – 15 метров;
до озёр, рек, прудов и всего подобного – 5 метров;
расстояние до высоких деревьев, даже если это собственный сад – 4 метра;
среднерослых деревьев – 3 метра;
кустарниковой растительности – 1 метр.