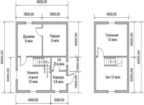
Баня из бруса 6 6 своими руками. Выбор материала
- Баня из бруса 6 6 своими руками. Выбор материала
- Баня своими руками чертежи. Миниатюрные каркасные баньки — оптимальный выбор
- Баня из бруса 3 на 5 своими руками. Выбор места и планировка
- Как построить баню из бруса 6 н. Проект бани из бруса 6х4: особенности составления, постройки и планировки, фото
- Баня из бруса своими руками: пошаговая инструкция. Как построить баню РёР· деревянного Р±СЂСѓСЃР° СЃРІРѕРёРјРё руками - пошаговая инструкция
- Мини баня из бруса своими руками. Проектирование и фундамент
Баня из бруса 6 6 своими руками. Выбор материала
На профильных форумах ведется многолетняя дискуссия о выборе материала для строительства. Мнения о том, что лучше использовать – ошкуренное бревно или профилированный брус, разделились примерно поровну. Сторонники с обеих сторон выдвигают различные аргументы:
- В отношении ошкуренного бревна. Практичность бревенчатой постройки проверена веками, большую часть времени строение не используется по назначению и ни отапливается, внутреннее пространство имеет одинаковую температуру с наружным воздухом. Для обогрева внутреннего пространства достаточно тепла от печи-каменки, сруб хорошо сохраняет тепло на протяжении длительного времени. Сухое бревно обладает незначительной гигроскопичностью, некоробится и не растрескивается в условиях повышенной влажности. В качестве недостатка отмечается длительность процесса усадки бревенчатого сруба и необходимость периодически заново конопатить межвенцовые швы.
- В отношении профилированного бруса. Сруб из бруса менее подвержен усадке, отсутствуют проблемы с усадкой и конопаткой швов, что значительно сокращает сроки строительства. Оппоненты сторонников бруса отмечают, что чередование циклов нагрев-остывание способствует образованию в брусе глубоких трещин, процесс усугубляется повышенной влажностью. Сруб из бруса быстрее остывает, в зимнее время для обогрева вспомогательных помещений может потребоваться дополнительный обогреватель. При расчете стоимости материала, необходимо учитывать, что профилированный брус на 50% дороже ошкуренного бревна.
Баня своими руками чертежи. Миниатюрные каркасные баньки — оптимальный выбор
Мини-баня на загородном участке — прекрасный вариант для экономии площади. Правда, одновременно попариться в помещении 3х3 или 3х4 получится лишь у пары человек. Тем не менее, это самый быстрый и недорогой вариант постройки. За основу проще всего взять готовый проект каркасной бани. Можно объединить раздевалку, душевую и парилку в одном помещении. Или предусмотреть более удобный проект с отдельной парилкой, помывочной и комнатой отдыха.

Малогабаритные каркасные бани 4х3 или 4х4 — лучший выбор:
- для экономии на стройматериалах (брус 6 метров режут пополам, получается безотходная стройка);
- скоростного возведения конструкции (всего пару недель затрачивают на строительство при условии готового проекта);
- крепости готового сооружения (при закупке качественной пропитанной древесины каркасная баня простоит очень долго).
Баня до 20 кв. м — рациональное использование площади
Если есть возможность построить каркасную баню 6х6, ее обязательно нужно использовать. Стандартные чертежи включают парную, душевую, комнату отдыха, небольшой коридорчик и санузел. Если разработать проект с мансардой, получите дополнительную жилплощадь на втором этаже. Ее можно использовать под гостевую, бильярдную или спальню.

Техдокументация для проектов каркасных бань площадью 20 кв. м предполагает организацию опорно-столбчатого фундамента с блоками из бетона , основание должно быть надежно гидроизолировано. На пол укладывают черновой настил (22-миллиметровая обрезная доска), затем чистовое покрытие в виде 30-миллиметровой шпунтованной доски. Антисептическую обработку и утепление 10-сантиметровой минватой нужно обеспечить в обязательном порядке.
Стены, перегородки и перекрытия делают из бруса 150х100 мм, используется также доска 100х50 мм и 100х40 мм. Вагонка после камерной обработки идеально подходит для обшивки потолка и перегородок. Десятисантиметровые плиты минеральной ваты и пароизоляция в два слоя укладываются под обшивку.

Для обустройства стропильной системы предназначена доска 100х50 мм, для обрешетки — 22 мм. Для кровельных работ лучше взять ондулин с волновым профилем Выбор оконной системы — деревянной или металлопластиковой — остается за владельцем. Для парной надо приобрести дровяную печь с баком для воды, продумать кирпичную кладку там, где будет располагаться топка.
Вот такие чертежи и планы можно использовать для возведения каркасной бани своими руками.



Индивидуальные проекты позволяют реализовать практически любые пожелания будущего владельца. Есть возможность присоединить к бане веранду или террасу. И даже в чертежи готовой документации можно вносить небольшие корректировки. Компании по разработке проектов предлагают следующий ряд услуг:
- объект под ключ — проект каркасной бани с заводской сборкой стен и перегородок, полной отделкой внутренних стен и фасадов;
- черновая отделка — облицовка или фасада, или внутренних стен;
- без облицовки — базовая сборка из щитов.
Баня из бруса 3 на 5 своими руками. Выбор места и планировка
Если на вашем участке есть дом или дача, то от таких построек баньку следует удалить где-то на 15 метров, по требованиям противопожарной безопасности. Впрочем, некоторые собственники участков пристраивают на свой страх и риск парилку к дому, летней кухне и другим строениям. В таком случае необходимо защитить от сырости смежные строения, а также позаботится о надежной изоляции электропроводки.
Огромный плюс если рядом имеется естественный водоем, в таком случае баню можно строить недалеко от него (на расстоянии не меньше 25 м, дабы избежать возможного подтопления). При отсутствии водоема не стоит огорчаться, можно своими руками соорудить деревянную купель для бани или приобрести пластиковую.
Размеры бани
Что относится к размеру постройки, то баню своими силами возводят средних размеров, например, 3×5. Планировка бани 3 на 5, не займет у вас много времени и сил, для небольшой раздевалки моечного помещения, таких габаритов вполне достаточно. А вот если планировка бани 3 на 3 на 5, то в такой парилке можно даже построить предбанник и даже душ.
Полезный совет! Желательно чтобы парная была на возвышенности. В этом случае не потребуется специальное устройство для водоотвода, она естественным путем будет уходить.
Для отдыха на свежем воздухе, после водных процедур, соорудите веранду. Особо строгих правил относительно планировки помещений нет. Главное – это комфорт и удобство для вас.

На фото вы можете увидеть, какая может быть схема бани 3х5
Выбор фундамента
Для строительства бани чаще всего предпочитают фундамент — ленточный или столбчатый, это зависит от типа почвы местности. Если грунт на участке образован каменистыми породами или песком крупнозернистым, то лучше выбирать столбчатый фундамент.

План парилки
На этом рисунке план бани 5х3 с правильным расположением.
Для этого в углах будущей бани, в местах, где пересекаются наружные стены необходимо поставить опоры 40 х 40 см, в основе которых кирпичи, либо бутовые камни, скрепленные раствором цемента. Можно взять, заполнив бетонной смесью и асбестоцементные трубы. Кирпичная стенка в полкирпича выкладывается между опорными столбами.
Если в почве много супеси, мелкого песка или глины, то предпочтительней ленточный монолитный фундамент, который строится таким образом:
- На нужном участке делаете разметку колышками и натягиваете между ними бечевку;
- Копаете траншею на определенную глубину в зависимости от грунтовых вод;
- Насыпаете песок на дно траншеи толщиной 10-20 см, поливая водой тщательно утрамбовываете;
- Сверху песок засыпается гравием и уплотняется;
- Устанавливают опалубку и укладывают арматуру на песочно-гравийную подушку;
- Далее заливается смесь цемента.
Заливать лучше бетон в несколько этапов, уплотняя его постоянно способом штыковки. По правилам фундамент должен быть над поверхностью земли выше на 10 см. Когда будет готов фундамент, ему необходимо полностью высохнуть, после этого стелите рубероид для гидроизоляции и начинайте возводить стены своими руками.
Для работы над планом и схемами вам нужны будут:
- Линейка.
- Столярный карандаш.
- Циркуль.
Планировка стен и кровли
Наша планировка бани 5 на 3 частично уже выполнена. Достаточно просто строить стены из готового бруса сечением 15 на 15, либо 15 на 18.
Укладываются бревна либо методом в лапу, либо в торцовый шунт, при этом каждый венец утепляют:
- Джутом.
- Мхом.
- Льном.
- Паклей.
Это теплоизоляционные материалы. Не забудьте при выкладывании бруса оставить для дверей и окон пространство.

Пароизоляционный материал
После подведения стены под кровлю, нужно определиться какая у бани будет крыша: двускатной или односкатной, с каким углом наклона, с чердачным помещением или нет? Уложите стропила в зависимости от выбранного типа, с помощью скоб зафиксировав их на последнем венце сруба.
Для односкатной крыши стропила закрепляют внутренней и наружной опорой, или сразу двумя наружными. На двускатной крыше нижние концы стропил опирают о стены, а верхние соединяют, образовав, таким образом, конек крыши.
Обрешетка закрепляется на стропила, затем на них укладывают кровельное покрытие:
- Металлочерепицу.
- Профилированный лист.
- Черепицу.
- Шифер.

Схема врубки
Обратите внимание! Устанавливать двери нужно с южной стороны, так как зимой с этой стороны меньше снега.
Внутренняя планировка
Если внутри бани бетонный пол, выложите его керамической плиткой и поставьте пару деревянных решеток, чтобы ноги не замерзали. Если пол деревянный сделайте его протекающим, желательно после каждого посещения баню проветривать, древесина тогда дольше прослужит.
Проведите отделочные работы вагонкой для стен и пола парилки, полки размещайте в два, три яруса.

Как построить баню из бруса 6 н. Проект бани из бруса 6х4: особенности составления, постройки и планировки, фото

Большинство владельцев частных домов, дачных участков планирует постройку бани. Нет ничего приятнее, чем попариться в бане, в которой отлично очищается тело, снимается напряжение и улучшается самочувствие. Кроме того, посещение бани – это излюбленное занятие русского народа еще с древних времен.
Постройка бани своими руками или заказ бани «ключ» – каждый выбирает для себя сам. Если у вас имеются строительные навыки, необходимое оборудование и время, то возведение строения своими силами обойдется значительно дешевле. Баня «под ключ» – вариант для тех, кто не имеет свободного времени или плохо разбирается в строительстве.
Постройка любого строения начинается с проекта. Сегодня существует масса разнообразных решений строительства бани, рассмотрим один из них.
Проект бани из бруса 6х4: особенности, преимущества
Этот проект в настоящий момент является одним из самых популярных, он имеет оптимальные размеры: в помещениях не будет тесно, и вы сможете спокойно передвигаться, но при этом баня не займет слишком много места. Баня получается довольно просторной и вмещает до 6 человек.
Обычно в бане 6х4 делают четыре помещения:
- предбанник;
- парилку;
- моечную;
- комнату отдыха.
На входе обустраивают небольшое крыльцо или террасу.
Если посмотреть в интернете фото проектов бани 6х4 из бруса, то можно увидеть, что все они отличаются: в каком-то большая парная и узкая мойка, в какой-то просторная комната отдыха и компактная парная и т. д. Преимуществом бани такого размера является то, что размеры каждого из помещений можно по своему желанию варьировать, увеличивая одно за счет уменьшения другого.
Итоговая постройка получается достаточно компактной, поэтому она может поместиться даже на небольшом участке.
Баня из бруса – это хороший вариант для тех, кто современным баням, саунам, хамам предпочитает именно русскую баню. Брус – это дерево, т. е. экологически чистый и натуральный материал, во времена Руси бани строили именно из дерева. Но в отличие от обычных бревен брус имеет свои преимущества:
- меньший расход. У бруса тонкие грани, а у бревна нет, поэтому для постройки одного и того же здания потребуется меньшее количество бруса;
- надежность. Вероятность образования трещин на боковых поверхностях у бруса меньше, чем у бревна;
- легкий и быстрый монтаж. Для постройки бани из бруса достаточно купить материал и можно сразу начинать собирать из него сруб своими руками , постройка проще и по плечу даже тем, кто не имеет огромного опыта в строительстве. Если брусьев не хватило, то можно сразу докупить нужное количество;
- быстрая усадка. Брус сохнет быстрее, чем бревна;
- ровные стены. Благодаря этому площадь дома будет чуть больше, хотя с внешней стороны площадь постройки имеет одинаковые размеры.
Но по некоторым показателям брус уступает бревну. В частности, долговечность у бревен больше, поскольку брус больше подвержен гниению. Его нужно обязательно обработать антисептиком, в таком случае срок его службы увеличится. У бани из бруса множество прямых щелей, поэтому в ней нужно делать качественную теплоизоляцию.

Постройка бани из бруса 6х4 по проекту своими руками
Чтобы баня получилась качественной, и ее посещение было в удовольствие, нужно соблюдать определенный порядок работ.
Этап 1. Составление проекта и выбор места
Чаще всего площадь территории, где можно возвести постройку, довольно ограниченна. Но в любом случае нужно подобрать место, следуя некоторым правилам.
Основное требование – баня не должна строиться в низине. Если альтернативы нет, то нужно сделать искусственную подсыпку. Если рядом стоит дом, то постройте баню так, чтобы она не загораживала окна дома, не затрудняла проход к нему и т. д. Нужно заранее решить вопрос с водопроводом.
Составить план можно своими силами, начертив его на бумаге или на компьютере или обратиться к специалистам. Самостоятельно сделать проект не так сложно, как кажется на первый взгляд. В интернете можно найти проекты бань из бруса 4х6, которые отличаются расположением и размерами помещений, местоположением окон и дверей и т. д.
Учтите, что основное помещение – это парилка. Если вы планируете ходить в баню компанией, то лучше сделать парную больше, а также увеличить высоту помещения, чтобы расположить полки для бани несколькими рядами.
Главное, чтобы на плане были прорисованы все перегородки, окна, двери, указаны все размеры. Заранее продумайте вентиляцию, канализацию, систему подачи воды и электрические элементы (розетки, выключатели).


Этап 2. Покупка материалов
На основании составленного проекта нужно подготовить список необходимых материалов. Лучший вариант – приобрести все сразу, не забудьте про небольшой запас. Опасность покупки материалов «впритык» заключается в том, что при наличии бракованных элементов вам не хватит деталей на строительство, из-за чего нужно будет снова ехать в магазин. А если нужного материала не будет, то придется делать перерыв в строительстве.
Баня из бруса своими руками: пошаговая инструкция. Как построить баню РёР· деревянного Р±СЂСѓСЃР° СЃРІРѕРёРјРё руками - пошаговая инструкция
Мой канал в Яндекс Дзен Ремонт и стройка своими руками
Вся статья в слайдере
Есть три варианта появления бани.
- Нанять строительную бригаду. Сложности в общении с рабочими. Строительство займёт 2-3 недели. Максимальный расход денег.
- Купить готовую баню по стандартным чертежам. Её привезут, установят и подключат за 1 день. Баня стандартной планировки, без учёта особенностей жизни семьи.
- Построить самому. Строительство займёт 4-5 недель. Минимальный расход денег. Баня соответствует потребностям семьи.
Зачем нужна баня
Р?спользование бани.
- Отдых, улучшение здоровья, косметические процедуры, общение с друзьями и родственниками во время банной процедуры.
- Летом в моечном отделение купаются после работы в огороде, чтобы не заносить грязь в жилой дом.
- В бане удобно хранить рабочую одежду и переодеваться для сезонных работ.
- В промежутках между банными процедурами в помещение хранят вещи, инструменты и садовый инвентарь.
- На террасе или в самой бане днём отдыхают.
Строительство бани из бруса займёт 3- 4 недели. Прослужит она долгие годы.
Как видно, баня полезна не только тем кто любит высокую температуру и березовый веник. Баня нужна в любом частном доме. Только надо выставить приоритеты использования.
Р?нформация РІ статье поможет построить семейную баню РёР· Р±СЂСѓСЃР°. Статья рассчитана РЅР° людей Сѓ РєРѕРіРѕ есть СЃРІРѕР№ РґРѕРј, опыт строительных работ, время, деньги РЅР° строительный материал.
Выбираем место для бани
У большинства людей участки земли небольшие, поэтому баню строят там где есть место. Если участок большой, обратите внимание на рекомендации.
- Не стройте баню далеко от дома. Оптимальное расстояние 10-20 метров. Перед банной процедурой в баню заносят вещи, моющие и косметические средства - неудобно это делать если до бани 100 метров. После банной процедуры удобно в халате пройти в дом и начать одеваться. Если расстояние между домом и баней большое - это делать не комфортно.
- Рљ бане надо подвести РІРѕРґСѓ, электричество Рё отвести канализацию. Обычно РІСЃРµ коммуникации ведут РёР· РґРѕРјР°. Рто ещё РѕРґРЅР° причина строить баню РЅР° расстоянии 10-20 метров РѕС‚ РґРѕРјР°.
- Не стройте баню над подземными коммуникациями: канализация, холодная вода.
- Вход в баню делайте в сторону от дома. После бани хочется подышать свежим воздухом. Удобней это делать если на вход в баню не смотрят окна из своего и соседского домов.
Выбирая место для бани учитывайте расположение коммуникаций, дома, построек соседей.
Мини баня из бруса своими руками. Проектирование и фундамент
Даже маленькую баню невозможно построить без хотя бы простейшего проекта, поэтому первая стадия работы – составление план-схемы. Здесь нужно обозначить расположение основных объектов и их габариты.
Как правило, в бане выделяют четыре зоны:
- предбанник – достаточно пространства площадью 1,5 х 2 м;
- комната отдыха – около 2 х 2 м;
- душевая – не менее 1 х 1 м;
- парилка – не более 1,5 х 2 м.

План маленькой бани для дачи
Таким образом, получаем минимальные габариты бани: длина – 6 м, высота – 2 м, ширина – 2,5 м. Этого вполне хватит для обустройства комфортной и практичной парной.
Вторая стадия работы – заливка фундамента. Определяясь с типом основания, ориентируйтесь на тип грунта участка.
Если мини-баня возводится на твердом и сухом грунте, можно ограничиться облегченным фундаментом: по всей площади будущей бани уложите плоские камни, покройте их глиной, утрамбуйте, а сверху обустройте плотный слой деревянных брусьев и обработайте их гидроизоляционным битумом.
Если же на вашем участке мягкий грунт, закладывайте ленточный фундамент: выкопайте траншею, поочередно заполните ее слоями песка и щебня, утрамбуйте основание и закрепите сверху армирующую сетку, а затем залейте котлован цементным раствором.
Важно! Ленточный фундамент обязательно нужно покрывать слоем гидроизоляции. Самый простой вариант – листы рубероида.
На почве с большим содержанием песка под миниатюрную баню можно уложить фундамент из бетонных блоков. Для облегченной конструкции хватит 10 блоков стандартных габаритов 20 х 20 х 40 см.
Мини баня из бруса своими руками. Проектирование и фундамент
Даже маленькую баню невозможно построить без хотя бы простейшего проекта, поэтому первая стадия работы – составление план-схемы. Здесь нужно обозначить расположение основных объектов и их габариты.
План маленькой бани для дачи
Таким образом, получаем минимальные габариты бани: длина – 6 м, высота – 2 м, ширина – 2,5 м. Этого вполне хватит для обустройства комфортной и практичной парной.
Вторая стадия работы – заливка фундамента
Ориентируйтесь на тип грунта участка, чтобы определиться с типом основания.
Облегченный фундамент на твердом и сухом грунте
Если мини-баня возводится на твердом и сухом грунте, можно ограничиться облегченным фундаментом:
- Уложите плоские камни по всей площади будущей бани
- Покройте их глиной
- Утрамбуйте основание
- Обустройте плотный слой деревянных брусьев и обработайте их гидроизоляционным битумом
Ленточный фундамент на мягком грунте
Если на вашем участке мягкий грунт, закладывайте ленточный фундамент:
- Выкопайте траншею
- Поочередно заполните ее слоями песка и щебня
- Утрамбуйте основание
- Закрепите сверху армирующую сетку
- Залейте котлован цементным раствором
Важно! Ленточный фундамент обязательно нужно покрывать слоем гидроизоляции. Самый простой вариант – листы рубероида.
Фундамент из бетонных блоков на почве с большим содержанием песка
Для облегченной конструкции хватит 10 блоков стандартных габаритов 20 х 20 х 40 см.