Баня из бруса 6 на 3 своими руками. Баня 3 на 6: планировка, выбор материалов, советы по строительству
- Баня из бруса 6 на 3 своими руками. Баня 3 на 6: планировка, выбор материалов, советы по строительству
- Бюджетная баня из бруса своими руками. Рекомендации по выбору материала
- Баня 6 на 3 с туалетом. Особенности строительства бани 6 на 3
- Баня из бруса 150х100 своими руками. Строим баню из бруса самостоятельно
- Баня 6 на 3 планировка. Баня 3*6
Баня из бруса 6 на 3 своими руками. Баня 3 на 6: планировка, выбор материалов, советы по строительству
Как строится баня 6х3 из бревна своими руками? Как лучше спланировать внутренние помещения? Из чего соорудить пол и фундамент? Необходимо ли бревенчатым стенам дополнительное утепление? Давайте вмести поищем ответы.

Наш герой.
Планировка
Размеры, из которых мы исходим, обусловлены максимальной длиной поставляемых пиломатериалов. Брус и оцилиндрованное бревно длиннее 6 метров создают серьезные проблемы при транспортировке.
С точки зрения их экономии размер и в самом деле оптимален:
- Более длинные стены возводятся из целого бревна.
- На коротком торце строения оно пилится ровно пополам, тем самым сводя количество отходов практически к нулю.
Уточним: ничто, разумеется, не мешает использовать более короткий материал, срастив его по длине. Однако в этом случае количество отходов неизбежно возрастет.
Благодаря толщине стен полезная площадь строения будет равна примерно 15-16 квадратным метрам. Наша задача — использовать их с максимальной эффективностью.
Вот несколько вариантов возможной планировки строения.

Компактная парилка соседствует с мойкой, оснащенной душевой кабинкой или поддоном. Остальная площадь делится примерно поровну между комнатой отдыха и подсобкой.

Строение разделено пополам поперечной перегородкой. Половина площади занята комнатой отдыха; на остальной половине парная соседствует с душевой комнатой.

Парилка продолжает увеличиваться в размерах за счет предбанника. Середина строения вмещает теплый тамбур, душ и туалет.
Бюджетная баня из бруса своими руками. Рекомендации по выбору материала
Приверженцам традиций рекомендуется строить баню из качественной древесины хвойных пород. Этот материал нехрупкий, а главное — долго служит. А ещё хвоя отличается экологической чистотой и низкой теплопроводностью, то есть не выпускает тепло и при этом мешает совершаться воздухообмену. Уникальным свойством этого дерева считают стойкость к различным проявлениям климата.
Такое деревянное здание должно стоять на надёжном основании
Для строительства можно взять один из двух видов древесины хвойных пород:
- оцилиндрованные брёвна-кругляки;
- цельные брусья.
Опытные строители советуют строить баню из брусьев, так как этот материал стоит дешевле, и из него намного проще возводить стены. К тому же брусовая постройка прекрасно обходится без громоздкого фундамента.
Брусовое строение выглядит просто, зато собирается легко
Если остановить свой выбор на оцилиндрованных брёвнах, то можно жестоко разочароваться: бревенчатое строение долго оседает, отчего ввести его в эксплуатацию не получится раньше, чем через полтора года после строительства. В отличие от бани из брёвен, брусовую постройку можно смело использовать спустя полгода с завершения строительных работ.
При покупке брусьев следует воспользоваться рулеткой, чтобы проверить материал на соответствие заданным размерам, а затем удостовериться в хорошем качестве строительного сырья. Для этого нужно сделать следующее:
- визуально исследовать материал и убрать из приготовленной партии брак, то есть брусья, цвет которых неравномерен или неестественен и свидетельствует о плохой просушке изделия;
- посмотреть, нет ли среди брусьев строительного сырья с большими трещинами, синеватыми пятнами, червоточинами или другими повреждениями, и отложить его в сторону;
В осмотре нуждается каждый брус
- обратить внимание на кромки материала и убедиться в том, что годичные кольца на обеих сторонах абсолютно одинаковы по размеру.
Баня 6 на 3 с туалетом. Особенности строительства бани 6 на 3
Баню можно построить своими руками. Неограниченный доступ к информации поможет совместить возможности с пожеланиями, а также проявить свои творческие способности. Наибольший интерес может вызвать простой и проверенный проект бани 3х6.
Перед тем как приниматься за дело, подумайте, какая будет планировка бани и где на участке наиболее удобно разместить такое сооружение.
Тонкости подготовительного этапа строительства
Есть несколько правил размещения постройки, которые облегчат эксплуатацию бани в дальнейшем.
Планировка бани
Баню можно установить отдельно или совместить с другим сооружением: сделать ее частью дома, соединить с летней кухней или мастерской. Но опыт показывает, что такое соседство может привести к появлению сырости и неприятного запаха. Грамотная планировка устройств систем канализации, вентиляции и гидроизоляции поможет избежать подобной ситуации.
При строительстве бани необходимо заложить фундамент на глубину промерзания грунта. В зависимости от влажности почвы можно сделать упрощенный вариант основания. Но, как показывает практика, баня 6х3 строится на крепком фундаменте из камня, кирпича или бетона. Примерно через 2-3 месяца, как только основание просохнет и отстоится, можно приступать к строительству.
Постройка сооружается из экологических материалов, которые «дышат», хорошо удерживают и отдают тепло. Одним из лучших по праву считается дерево. Иногда бани 3х6 строятся из натурального камня и кирпича, которые отличаются долговечностью и большей пожаробезопасностью.
Совет от мастера!
В плане постройки вход обычно размещается с южной стороны: в зимний период там не такие большие сугробы и весной снег тает гораздо быстрее. Баня 6х3 сооружается на расстоянии 5 м от других построек и располагается не ближе чем в 15-20 м от водоемов, склонов, на ровной поверхности. Воспользуйтесь готовым планом бани 6х3.
От правильной заготовки леса и сушки древесины зависит длительность срока эксплуатации бани 3 на 6. Заготавливать древесину нужно с декабря до начала марта. Несколько месяцев срубленные деревья должны полежать, только после этого можно приступать к изготовлению бревен и бруса для строительства бани.
Чтобы сохранить данный строительный материал, необходимо придерживаться нескольких правил.
- Бревно очищается от коры. Чтобы оно не растрескивалось по краям, на его концах оставляют полосу коры шириной 15 см.
- Чтобы не допустить прелости, бревна хранят в штабелях. При этом расстояние между бревнами должно составлять 5 см, между рядами штабеля – 10 см, между землей и первым штабелем – 20 см.
- Следует накрыть бревна каким-либо кровельным материалом, например, шифером, что на них не попадали осадки. Между шифером и бревнами должно быть минимум 5 см.
- Защитите бревна от прямого попадания солнечных лучей. Расположите материал в хорошо продуваемом месте.
Наполняем баньку хорошим настроением
Баня 6 на 3 поможет укрепить здоровье, очистить тело, принесет духовное умиротворение. Вы можете обустроить свой храм чистоты согласно личным предпочтениям и заложить в проект бани размер парной комнаты, варианты размещения полок, их форму, ширину.
Продумайте, чем будет отапливаться парная комната бани 6х3: печью-каменкой, электроприборами или трубами с горячей водой, газом. Самым лучшим вариантом, бесспорно, считается печь-каменка, которая размещается в углу парилки.
Варианты планировки бани
Баня должна иметь душевую комнату. Здесь вы можете установить душ на три человека и подвесить деревянное ведерко, в которое будет наливаться холодная вода. Можно оборудовать душевую небольшим столиком или полочкой, чтобы положить туда средства личной гигиены. Позаботьтесь о наличии крючков для полотенец.
Совет от мастера!
Если позволяют средства, можно установить в бане 6х3 душевую кабинку. Комнату для отдыха желательно оборудовать столиком, креслами и другими нужными предметами банного интерьера.
Баня из бруса 150х100 своими руками. Строим баню из бруса самостоятельно
В нашем сегодняшнем обзоре мы расскажем, как построить своими руками такую баню из бруса, какую хотел бы иметь на своем участке каждый владелец загородного дома. Не секрет, что баня — это не только место для помывки, но и одно из лучших изобретений для оздоровления и поддержания тонуса организма. Но для того, чтобы процесс принятия процедур приносил действительно пользу, а не вред, при строительстве нужно учесть немало нюансов.
Расположение и размер бани
Чтобы правильно выбрать место расположения бани с нуля, посмотрите на схемы, рекомендованные по СНиП.

Размер бани следует рассчитывать из следующих критериев:
- размер парилки, который определяется исходя из количества одновременно находящихся в ней человек. Для двоих будет достаточно 3х1,5 м при высоте 2 м. Для четверых уже потребуется увеличить размеры до 2х4 м.
- размер помывочного отделения. Он определяется из аналогичного расчета: 2х2 — для двоих, 4х2 — для четверых. Если вы планируете установить купель, то размеры нужно скорректировать с учетом размера купели.

- А вот раздевалка и комната отдыха рассчитываются исходя из личных предпочтений. Это может быть просто раздевалка с лавочкой, а может быть большая комната отдыха с камином, массажным столом, бильярдом и т.п.

Фундамент бани
Тип фундамента для бани из бруса можно выбрать абсолютно любой, так как строение не является сверхтяжелым. Он может быть свайный, ленточный, столбчатый или плитный. Но к нему есть некоторые сопутствующие требования.

- Фундамент для самого строения и для печи категорически запрещается делать единым целым. Это ограничение действует по причине разницы температур печи и строения. Единый фундамент может привести к деформации конструктива постройки.
Неправильно изготовленный фундамент для бани
- Независимо от типа фундамента обязательна выемка грунта на глубину 30-50см под всей плоскостью будущего основания здания, и засыпка слоя песка толщиной 10-50см. При этом надо учитывать, что от верха песчаной подсыпки до низа деревянных конструкций пола бани должно быть выдержано расстояние от 40 до 60 см. Это нужно для того, чтобы была возможность циркуляции воздуха под полом, а песок в свою очередь будет забирать на себя излишнюю влажность. Тем самым вы своими руками надолго защитите основание бани от гниения и грибка, которые вызывают не только повреждение конструкций, но и вредны для организма человека.

- Также очень важным фактором является глубина заложения фундамента. Как мы ранее указали, тип фундамента можно выбрать любой, но глубина основания должна быть ниже глубины промерзания грунта. Это основа основ для любого фундамента, независимо от его назначения.

В свою очередь мы рекомендуем сделать для бани ленточный железобетонный фундамент. Для него потребуется выкопать траншею на глубину промерзания грунта по предварительно подготовленной схеме, с нанесением всех мест расположения стен.
Далее изготовьте двойной каркас из арматуры диаметром 12-14 мм, с шагом 200мм
Установите опалубку из щитов или обрезной доски

Для последующего монтажа элементов труб водопровода, канализации и крепления нижней обвязки не забудьте установить закладные детали.
Залейте все бетоном марки М250 или выше.
После высыхания бетона снимите опалубку и покрасьте стены битумным праймером.
Фундамент для печи можно изготовить из бетона или кирпича. Площадь опоры должна быть на 10 см больше, чем площадь основания печи.

Нижняя обвязка и пол бани
Нижняя обвязка выполняется из бруса 200х200мм. Предпочтительно использовать твердые породы дерева: дуб, кедр, лиственница. Крепление к фундаменту производить через предварительно заложенные анкера.

Схема установки закладной под брус

Не забудьте проложить между фундаментом и нижней обвязкой листы гидроизоляции!
Крепление бруса на углах и пересечениях производится металлическими оцинкованными уголками, с помощью саморезов и гвоздей. Предварительно в местах пересечений выпиливаются и вырубаются монтажные пазы для стыковки.

Брус нижней обвязки перед монтажом нужно обработать средством для огнебиозащиты дерева.
Нижнюю часть обвязки по внутреннему периметру необходимо обшить бруском 40х40 мм для монтажа чернового пола. Крепление осуществляется гвоздями и саморезами.

После чего на эти бруски укладывается черновое покрытие из обрезной доски толщиной 20-30мм.

Черновой пол
Далее по черновому полу стелется ветровлагозащитнуая мембрана, которая крепится к доскам и брусу с помощью строительного степлера.

Для теплоизоляции полов и потолка бани можно использовать керамзит. Это достаточно недорогой, а главное экологически чистый материал.
Но один недостаток у керамзита все-таки есть — он впитывает воду, после чего теряет свои свойства. Поэтому засыпанный керамзит должен быть защищен от влаги гидроизоляцией, для чего достаточно закрыть его со всех сторон полиэтиленовой пленкой и проклеить стыки алюминиевым скотчем.
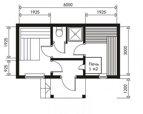
Баня 6 на 3 планировка. Баня 3*6
С чего начинается строительство бани ? Кто-то обращается за помощью к специалистам, а кто-то стремится сделать всю работу самостоятельно. Чаще всего в ней выстраивают на территории загородных коттеджей и дач. Как приятно после работы на приусадебном и огородном участке просто насладиться отдыхом. Строительство подразумевает тщательную планировку каждой из комнат этого небольшого сооружения. Специалисты советуют возводить ее неподалеку от водоемов, так как после сильного нагрева нужно будет своевременно охладиться.
Все по пунктам
После того, как вы определитесь с количеством помещений и детальной планировкой , нужно будет получить разрешение исполнительных органов. Если у вас на этот счет нет совершенно никаких творческих мыслей, тогда стоит подобрать один из множества классических проектов бань с размером 3*6. Детальные расчета помогут определить основные параметры, а также ее помещений:
- предбанника ;
- парилки ;
- моечной.
Варианты планировок

Вариант 1

Вариант 2

Вариант 3
Строим баню своими руками
Чаще всего размеры рассчитываются исходы из того, сколько одновременно человек будет мыться (не более 3-4 человек) . Строить ее для одного человека - совершенно бессмысленно. В ней человек должен отдыхать не только душой, но еще и телом. Баня 3*6 своими руками должна иметь парилку не менее чем 6 метров квадратных. Предбанник, или как его еще именуют должен быть 3-5 квадратных метров . Расчеты проводятся следующим образом: на одного человека должно обязательно приходиться не меньше 1,5 метров. Предбанник и тамбур служат не просто украшением, они выполняют свое основное предназначение, которое заключается в препятствовании проникновения холодного воздуха внутрь. Если парилка маленькая, то парилку и моечную очень часто совмещают, но специалисты не рекомендуют этого делать.
Терраса возле бани
Любители полюбоваться природой не упустят возможности построить возле нее небольшую террасу или беседку. В летнее время года в беседке можно будет отдохнуть, выпить горячего чая и т.д. Дождливой осенью терраса будет служить козырьком от осадков.

Идеальная печь
Какой должна быть печка для бани ? Кто-то отдает предпочтение дровяной, а кому-то больше нравится электрическая. Самое главное, чтобы печь была максимально компактной и способной нагреть воду для мытья и камни . В качестве топлива используется: электричество, дрова и газ. Вид топлива будет зависеть от основной конструкции, а также от размеров печки-каменки . Не стоит приобретать дешевые печки китайского производства, так как уже через несколько месяцев вам придется потратить в несколько раз больше для того, чтобы заменить свою печь на: немецкую, испанскую, английскую, французскую или итальянскую модель.
