Баня каркасная за 3 недели. Современная каркасная баня — достоинства и недостатки
Баня каркасная за 3 недели. Современная каркасная баня — достоинства и недостатки
Современные технологии не стоят на месте и поэтому на место традиционным баням из сруба приходят более дешёвые в строительстве каркасные конструкции. Недорогое строительство сегодня стало актуальным, так как люди стараются минимизировать расходы на приобретение материалов и услуги строителей.
Небольшая каркасная баня с верандой
Преимущества каркасных бань очевидны:
- Стены сооружения не дают усадки.
- Строение получается достаточно тёплым и лёгким при использовании современных теплоизоляционных материалов.
- Быстрота возведения конструкции с возможностью производить отделочные работы как внутри, так и снаружи здания одновременно. Каркас бани можно собрать с привлечением минимального числа людей за несколько дней. Отделочные работы занимают 2–3 недели.
- Большой срок службы. Правильно построенное здание с соблюдением всех технологических требований сможет простоять столетие.
- Отделка может осуществляться самыми различными материалами. Снаружи стены могут облицовываться сайдингом, натуральным деревом, камнем, штукатуркой и т. д.
- Благодаря специфике постройки все инженерные коммуникации можно спрятать в стены.
- Стоимость возведения каркасной бани существенно ниже бревенчатой и кирпичной.
- Такое строение не нуждается в создании сложных архитекторских проектов и чертежей.
Но наряду с массой преимуществ есть и некоторые недостатки такой бани, к которым можно отнести высокий уровень влажности. Во время дождей и таяния снега в незащищенные места конструкции попадает вода, которая со временем накапливается и разрушает стены. Тем не менее, зная все тонкости и нюансы возведения такого здания можно избежать неприятных моментов.
Каркасная баня своими руками чертежи. Фундамент
Фундамент, как я уже говорил, под нашей баней столбчатый. Сначала мы не без помощи наемников сняли лопатами слой грунта с растущей на нем травой. Площадку выровняли, после чего начали делать разметку.

Начало начал. Сняли грунт по всей площади
Хочу поделиться опытом и подробно рассказать о процессе разметки. Чтобы баня не была кривой и косой, обязательно нужно точно вымерять углы и диагонали. Мы так и поступили.
Первый угол намечали, воткнув в землю колышек и выровняв его по отвесу. Для дальнейшей разметки пригодился угольник и пятиметровая рулетка. К первому колышку привязали шнур, отмерили 450 мм, проверили угол и воткнули еще два колышка, соответственно обозначающих второй и третий углы бани. Аналогично натянув шнур, установили последний четвертый колышек.
Несмотря на то, что углы мы проверяли угольником, замер диагоналей показал небольшие неточности. Пришлось исправлять их, слегка сдвигая колья и четко выравнивая их по уровню.
Дальнейшим этапом работы стала разметка местоположения столбцов, расстояние между которыми равняется 112,5 см. Местоположение отмечали, просто неглубоко втыкая прутья арматуры.
В бане будет одна межкомнатная перегородка, соединенная с углом печи. Используя рулетку, мы с сыном сделали замер и отметили положение одного столбика, который будет удерживать перегородку и еще четырех столбиков, которые в дальнейшем окажутся под печью.

Талибы бурят, сын помогает
После всех расчетов и разметок пришло время бурить ямы под фундаментные столбы. Под землю они будут уходить на полтора метра и еще на 30 см торчать из земли. На фото видно, что мы сняли шнуры, но оставили колышки. Ямы выкопали довольно быстро – рабочие бурили бензобуром, сын помогал таскать землю. Кстати, диаметр ям был примерно 30 см, то есть на 5 см больше диаметра асбестоцементных труб.
Чтобы столбики стояли крепко, на дно ям я насыпал слой гравия и песка, после чего утрамбовал эту засыпку ручной трамбовкой. Изготовил ее сам, перпендикулярно приколотив к длинному березовому бревну брусок-ручку. Принцип простой – засыпал гравий, взял бревно, опустил в яму и несколько раз им постучал.

В каждую яму подсыпали песок и гравий, утрамбовали и расставили столбы, под печь — 5 штук
Цемент для столбиков мы с сыном замешивали в небольшой электрической бетономешалке . Засыпали цемент, песок, немного щебня, перемешивали и вливали воду. Столбики заливались по всем правилам. Сначала труба опускалась в яму, потом в нее наливался первый слой раствора. Трубу мы приподнимали, чтобы часть раствора стекла на дно ямы, после чего опускали ее, выравнивали и уже тогда слоями по 20-30 см заливали доверху. Каждый слой приходилось уплотнять, используя все то же бревно с перекладиной. Благо диаметр полена был меньше диаметра труб. Чтобы не испачкать столбы, бетон лили через узкий желоб и пластиковую воронку. Получилось достаточно аккуратно. После заливки, в бетон мы вбивали прутья арматуры (шпильки с резьбой). Верхний край оставляли немного торчать над бетоном, чтобы в дальнейшем прикрепить брусья нижней обвязки. В последнюю очередь был засыпан песок в пространство между стенками ям и трубами. На этом работы по сооружению были временно завершены.
Через два дня, как следует отдохнув, я занялся фундаментом для печи. Разрезал лист ДСП на 5 частей – 4 для стенок опалубки и 1 для дна. Самый большой лист примерил на опорные столбики, потом пошел сверлить в нем отверстия под шпильки, а заодно приколотил гвоздями бортики. Получившуюся коробку с отверстиями я насадил на шпильки, приготовил гайки с шайбами и, выравнивая лист по уровню, потихоньку затянул крепеж. Снизу опалубку подпер досками.
Чтобы фундамент под печью получился более крепким, я изготовил арматурный каркас. Нашел сварную сетку, вырезал два куска почти по размеру опалубки и приварил куски проволоки так, чтобы каркас получился объемным. Посмотрите на схему, на ней показано, как расположены прутки. Конечно, в идеале использовать не сварную сетку, а самостоятельно связывать мягкой проволокой отдельные арматурины. Такое соединение более пластично и не разрушается почти никогда.
Схема армирования
В опалубку с уложенным арматурным каркасом заливали бетон , замешанный с порцией мелкой щебенки. Рассказывать здесь особо нечего – залили, выгнали проволокой пузырьки воздуха, утрамбовали, накрыли пленкой и оставили застывать. Процесс этот продолжительный, занимает целый месяц. Ждать мы с сыном не стали, решив за это время сделать каркас бани, крышу и некоторые сопутствующие работы.

Забетонировали все столбы, под печь залили плиту
Перед тем как начать укладывать балки, я вкопал между столбами трубы канализации и подачи воды, чтобы потом не пришлось подлезать под лаги.
Готовые каркасные бани. Миниатюрные каркасные баньки — оптимальный выбор
Мини-баня на загородном участке — прекрасный вариант для экономии площади. Правда, одновременно попариться в помещении 3х3 или 3х4 получится лишь у пары человек. Тем не менее, это самый быстрый и недорогой вариант постройки. За основу проще всего взять готовый проект каркасной бани. Можно объединить раздевалку, душевую и парилку в одном помещении. Или предусмотреть более удобный проект с отдельной парилкой, помывочной и комнатой отдыха.

Малогабаритные каркасные бани 4х3 или 4х4 — лучший выбор:
- для экономии на стройматериалах (брус 6 метров режут пополам, получается безотходная стройка);
- скоростного возведения конструкции (всего пару недель затрачивают на строительство при условии готового проекта);
- крепости готового сооружения (при закупке качественной пропитанной древесины каркасная баня простоит очень долго).
Баня до 20 кв. м — рациональное использование площади
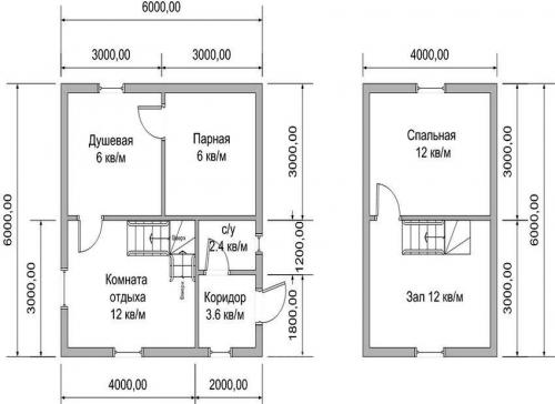
Если есть возможность построить каркасную баню 6х6, ее обязательно нужно использовать. Стандартные чертежи включают парную, душевую, комнату отдыха, небольшой коридорчик и санузел. Если разработать проект с мансардой, получите дополнительную жилплощадь на втором этаже. Ее можно использовать под гостевую, бильярдную или спальню.

Техдокументация для проектов каркасных бань площадью 20 кв. м предполагает организацию опорно-столбчатого фундамента с блоками из бетона , основание должно быть надежно гидроизолировано. На пол укладывают черновой настил (22-миллиметровая обрезная доска), затем чистовое покрытие в виде 30-миллиметровой шпунтованной доски. Антисептическую обработку и утепление 10-сантиметровой минватой нужно обеспечить в обязательном порядке.
Стены, перегородки и перекрытия делают из бруса 150х100 мм, используется также доска 100х50 мм и 100х40 мм. Вагонка после камерной обработки идеально подходит для обшивки потолка и перегородок. Десятисантиметровые плиты минеральной ваты и пароизоляция в два слоя укладываются под обшивку.

Для обустройства стропильной системы предназначена доска 100х50 мм, для обрешетки — 22 мм. Для кровельных работ лучше взять ондулин с волновым профилем Выбор оконной системы — деревянной или металлопластиковой — остается за владельцем. Для парной надо приобрести дровяную печь с баком для воды, продумать кирпичную кладку там, где будет располагаться топка.
Вот такие чертежи и планы можно использовать для возведения каркасной бани своими руками.



Индивидуальные проекты позволяют реализовать практически любые пожелания будущего владельца. Есть возможность присоединить к бане веранду или террасу. И даже в чертежи готовой документации можно вносить небольшие корректировки. Компании по разработке проектов предлагают следующий ряд услуг:
- объект под ключ — проект каркасной бани с заводской сборкой стен и перегородок, полной отделкой внутренних стен и фасадов;
- черновая отделка — облицовка или фасада, или внутренних стен;
- без облицовки — базовая сборка из щитов.