Баня с террасой и барбекю своими руками. Проект бани с террасой и барбекю: преимущества
- Баня с террасой и барбекю своими руками. Проект бани с террасой и барбекю: преимущества
- Баня с верандой под одной крышей. Что нужно учесть в проекте бани и барбекю
- Проект бани с верандой террасой и барбекю из кирпича. Терраса и барбекю: планируем правильно
- Баня с террасой своими руками. Проекты бань из бруса с террасой
Баня с террасой и барбекю своими руками. Проект бани с террасой и барбекю: преимущества
Главное преимущество бани с барбекю под одной крышей заключается в ее многофункциональности: вы получаете возможность насладиться водными и парильными процедурами в бане, подышать свежим воздухом на террасе и насладиться вкусной едой за приятной беседой в компании семьи или друзей.
Приезжая на отдых, вам не придется куда-то идти, чтобы готовить шашлыки, все находится в шаговой доступности. Причем веранда имеет крышу, т. е. даже если на улице пошел ливень, вы спокойно можете наслаждаться отдыхом, не отказывая себе в удовольствии отведать ароматное жареное мясо и подышать свежим воздухом. Снаружи же разжечь огонь в непогоду будет проблематично.
Печь на террасе используется не только для приготовления еды, но и обогрева воздуха, поэтому даже в прохладный вечер вам будет уютно и тепло сидеть рядом с ней, расслабляясь под приятный звук потрескивающих бревен.
Баня с барбекю под одной крышей при всей своей многофункциональности довольно компактна, она рационально использует пространство и экономит место на вашем участке.

Баня с беседкой и барбекю также выходит дешевле, чем постройка отдельных бани и террасы. В этом случае у них будет одна общая стена, пропадет необходимость оформлять между ними дорожки – это ощутимо сократит расходы на строительство.
Баня с террасой и печью выглядит эффектно и красиво, ее можно всячески украсить и отделать, достаточно дать волю фантазии. С такой постройкой ваш участок приобретет новый привлекательный вид, куда вы с семьей и друзьями будете с удовольствием приезжать.
Баня с верандой под одной крышей. Что нужно учесть в проекте бани и барбекю

Банный оздоровительный комплекс в усадьбе с размещением террасы возле пруда
Существуют СНИПы, которые определяют место здания по санитарным, пожаробезопасным нормам.
По СНИПам:
- удалённость от ограждения, забора — 3 м;
- при наличии колодца на территории приусадебного участка удалённость от бани – 8—12 м (чтобы не загрязнялись грунтовые воды);
- рекомендуемое расстояние до основной постройки, жилого дома — 8 м (из соображений пожарной безопасности).
Прежде чем выбрать проект бани с верандой, террасой, нужно учесть такие факторы:
- Прежде чем определиться с проектом бани с террасой, барбекю, необходимо подумать, сколько гостей будет отдыхать в оздоровительном комплексе . Это определяет габариты постройки, размер террасы для отдыха.
- Строение должно быть соразмерно участку, нужно соблюсти пропорции. Если только баня с террасой расположены не на отдельной территории.
- Будет ли баня с террасой эксплуатироваться в холодное время года. Когда используют в межсезонье, зимой, дополнительно необходимо оборудовать строение отсекающим тамбуром. Холодный воздух с улицы не попадёт внутрь помещения.
- Выбирают планировку, исходя из оборудования для бани: размера парилки; будет установлен мини-бассейн, купель или душевая кабина, чтобы окунуться после парилки. Варианты планировок предполагают наличие помывочной, санузла, комнаты для отдыха, раздевалки, прихожей (отсекающий тамбур), санузла. Туалет обычно делают в помывочной. Для того чтобы всё разместить, предварительно необходимо сделать чертёж в масштабе.
- Материальные возможности определяют затраты на застройку , подбор материалов, габаритные размеры постройки.
Проект бани с верандой террасой и барбекю из кирпича. Терраса и барбекю: планируем правильно
Планируя террасу, прежде всего необходимо учесть, какое направление ветра является основным, чтобы задание бани закрывало собой террасу. Кроме того, это позволит правильно разместить и барбекю, чтобы ветер относил дым и жар в сторону от отдыхающих. Если терраса будет служить для укрытия от солнечных лучей в жаркий летний день, то не стоит размещать её с южного направления. Или же наоборот – терраса с шезлонгом может стать отличным местом для приема солнечных ванн – здесь все зависит от пожеланий и вкусов хозяина. Кроме того, на выбор расположения террасы немало влияет и окружающий пейзаж – созерцание забора врядли добавит настроения на отдыхе, куда приятнее любоваться лесом, озером или благоустроенным ландшафтным дизайном.
Террасу можно расположить фронтально (т.е. вдоль фасада бани, рис. 1), сбоку (возле одной из стен), она может иметь угловое расположение (вдоль двух примыкающих стен) или опоясывающие (вдоль трех стан, иногда и полностью вокруг бани, если позволяет территория).

Рис. 1. Проект бани с фронтальным расположением террасы

Фронатльное расположение террасы

Проект стильной и лаконичной бани с террасой и барбекю
Если вы не планируете приглашать много людей, то с учетом установки барбекю (мангала), минимальная рекомендуемая площадь террасы – 7-8 м2. Но лучше начинать с 9-10 м2, тогда кроме столов и стульев на террасе можно будет поставить шезлонг, пару кресел, при этом человек, стоящий у барбекю, будет иметь достаточно свободного места для работы, а отдыхающим не будет докучать жар от печки и дым.
Хотя терраса в классическом понимании – это открытая площадка, для большего комфорта она имеет крышу для защиты от осадков и солнца. Это может быть продолжением крыши бани и быть выполнена из аналогичного кровельного материала, а можно накрыть террасу полупрозрачным поликарбонатом . Кроме того, непрозрачный навес будет создавать полумрак в самой бане, поэтому придется раньше включать свет.
Совет! Поликарбонатное покрытие особенно оправдано для больших по площади террас – нет необходимости сооружать массивное основание, легкая металлическая конструкция не будет загромождать пространство, оставаясь практически незаметной.
Для пола на террасе лучше всего подойдет деревянная доска или декинг. Конечно, можно положить тротуарную или керамическую плитку, но дерево будет смотреться уютнее. Природный камень используют в качестве покрытия на большой террасе

Природный камень станет эффектной отделкой для террасы
Для установки барбекю необходимо заложить фундамент отдельно, а для строительства используют специальный огнеупорный кирпич, при этом основание делают высотой порядка 70 см от уровня пола.
Совет! Для улучшения пожарной безопасности, вокруг барбекю лучше положить каменную (кафельную) плитку вместо деревянного покрытия – даже если на неё упадет искра, она не вызовет возгорание.
В передней стенке делают прямоугольную нишу, в которой можно будет хранить небольшой запас дров. Для отвода дыма для барбекю делают отдельный дымоход, который по высоте должен обеспечить эффективный отвод дыма от бани.


Баня с террасой своими руками. Проекты бань из бруса с террасой
Построить перед баней или рядом с ней террасу не так и сложно. Вообще, чаще всего затруднения вызывает отсутствие проекта. Если позволяют средства, лучше заказать его, подробно описав, что и как вы себе представляете, чего желаете достигнуть, и какие вещи вам категорически не нравятся. Если заказать изготовление персонального проекта невозможно, есть вариант подыскать один из готовых, немного подкорректировать под собственные нужды. Вот несколько проектов бань с разными террасами, которые несложно сделать своими руками.
Баня 4 на 4,5 с террасой
По проекту баня состоит из трех помещений, к ней пристроена терраса на отдельном несвязном фундаменте (об одном из вариантов его строительства читайте ниже). В здании бани есть три комнаты:
- комнаты отдыха;
- парная;
- душевая. Проекты бани 4 +на 4 с террасой на отдельном столбчатом фундаменте 
Параметры помещений можно изменять, сдвигая простенок, отделяющий комнату отдыха. Если баня строится под суховоздушную сауну, болшой объем парной не нужен: рассчитайте количество людей, которые должны поместиться за один заход, потом посчитайте площадь полок для их комфортного устройства: для «сидячих» мест можно брать на человека 1-1,2 метра, на «лежачие» — 2,1-1,2 м. Ширина полок — 0,7-0,9 м. Высчитаете площадь полоков, добавьте место под печь и ее ограждение и немного площади для свободного перемещения. Получите требуемую площадь.
Расчет площади парилки в русской бание аналогичен, то если в сауне «лежачие» места можно не делать — там обычно только сидят, то в русской парной они обязательны. Еще разница в том, что ограждение печи для сауны — это деревянная конструкция, которая не дает прикоснуться к раскаленным стенкам. В русской же парной, если ставят металлическую печь, то обязательно ее закрывают кирпичным экраном , а это уже совсем другие размеры. Потому и площадь требуется выделить большую.
Подробнее о планировке бань, размерах помещений читайте тут . О том, где и какие окна размещать написано в статье «Банные окна: где ставить и каких размеров» . О том, какие двери и их размеры нужны в парилке и других помещениях, читайте в статье «Какие двери выбрать для бани и сауны»

Это пример того, как выглядит воплощение проекта
Использование такой бани зимой будет не комфортным: вход а в комнату отдыха прямо с улицы и холодный воздух будет явной помехой. Для устранения этого недостатка можно или отгородить часть комнаты отдыха под тамбур, или сделать часть веранды закрытой. Второй вариант выглядит предпочтительнее из-за небольших габаритов помещений. Но тогда нужно или делать вход с другой стороны, или смещать двери.
По выбору дровяной печи для бани : для данного проекта нужен будет компактный вариант, возможно, высокий и узкий, но можно попробовать вписать просто небольшую по размерам. Объем получится совсем небольшой, так что малых мощностей должно хватить. В данном проекте предусмотрена печь, которая топится из комнаты отдыха. Одновременно она будет отапливать и ее, так что нужен некоторый запас мощности, не забывайте об этом (если планируете посещение бани зимой). Например, «Жара «Малютка» , печи Варвара — модели «Паленица» и «Мини» , или « Компакт», «Оса», «Шилка» и «Бирюса» у «Термофора».
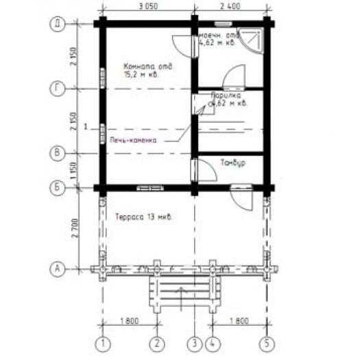
Проект бани 4 на 6 с террасой
Этот вариант планировки небольшой бани сразу предусматривает выделение небольшого тамбура, так что эта баня без переделок подойдет для зимнего использования. Парилка и мойка раздельные, имеют почти одинаковые размеры, что не всегда оправдано. Если в моечной будут только пользоваться душем, то ее можно сделать чуть компактнее, выгородив больше места под парилку (для русской бани). В душе также можно установить обливное устройство. Если позволяет высота потолков, оно монтируется над «гусаком» душа, если нет — сбоку.

Проект бани 4 на 6 с террасой
Чертеж бани 6 на 5 (с выступающей террасой)
Этот проект бани из бруса тоже имеет выгороженный закрытый тамбур. Он занимает часть террасы, но чтобы не уменьшать ее площадь, ее «выдвинули» за пределы фундамента здания. При желании можно ее еще увеличить, сделав в виде буквы «Г». Получится просторная площадка для летнего отдыха. На ней можно будет выгородить часть для установки барбекю ( тут есть несколько проектов ).

Баня 4 на 5 с примыкающей террасой
Проект бани 6 на 6 с открытой террасой
Этот вариант планировки обходится все тем же количеством помещений. Просто площадь их стала больше: теперь габариты позволяют. В таком варианте уже можно выгородить небольшое помещение под раздевалку. И для зимнего использования нужно будет где-то организовать тамбур.


