Как дешево построить баню своими руками. Брус, каркас, арболит
- Как дешево построить баню своими руками. Брус, каркас, арболит
- Баня 2х3 своими руками. Какую баню разместить на своем участке
- Баня своими руками из подручных материалов. Устройство потолка бани из подручных материалов
- Из чего построить баню дешево. Виды бюджетных бань
- Самая простая баня своими руками. Строим баню своими руками — планировка, особенности строительных материалов, выбор конструкции и печи. Поэтапная инструкция по строительству своими руками
- Как построить баню из блоков. Плюсы и минусы
Как дешево построить баню своими руками. Брус, каркас, арболит

Бюджетный вариант — летняя баня из бруса толщиной в 100 мм.
Обдумывая, как построить баню недорого своими руками, обратите внимание на такие доступные материалы, как деревянный брус и арболит, а также технологию утепленного каркаса.
Бюджетный вариант — летняя (для использования с весны до поздней осени) баня из бруса толщиной в 100 мм. Для утепления можно использовать паклю, а вместо внутренней отделки просто зачистить поверхность древесины.
Каркасные парилки собирают из деревянного «скелета», досок, фанеры, ориентированно-стружечных плит (ОСП). У них есть весомые преимущества:
- простота сборки
- небольшой вес
- дешевизна стройматериалов и фундамента (допускается столбчатый)
- быстрое прогревание
Такая постройка обычно не дает усадки, если будете пользоваться баней только летом, достаточно толщины стен в 10 см. Для капитальной круглогодичной парной нужно утеплить внутренние стены, усилить каркас и кровельную конструкцию.
Оптимальным по соотношению цены и качества считается ондулин (около 200 рублей за квадратный метр) — он легкий, простой в установке и долговечный. Если строить каркасную баню из сухих досок (их обязательно обрабатывают антисептиком) и использовать пожаробезопасную базальтовую вату с пароизоляционной пленкой, баня обойдется около 8000 рублей за «квадрат».
Каркасные баньки сооружают даже из дров без сучков и иных дефектов. В яму для слива вставляют бочку с обломками кирпича и щебня, в нее выводится трап. Утепляется полы и потолки, на стены и потолок мастера советуют пустить фольгированную бумагу для саун, ставится печь (отлично себя зарекомендовал недорогой «Вулкан»). Готово!

Особое внимание нужно уделить гидроизоляции.
Чуть дороже получится банька из арболита, или опилкобетона. Это надежный материал, хорошо сохраняющий тепло. Из него изготавливают блоки или применяют монолитную технологию: собирают опалубку, в нее заливают цемент, смешанный с опилками, песком и водой. Затем придется подождать три-четыре дня, пока состав застынет, и заливать дальше.
Особое внимание нужно уделить гидроизоляции. На небольшую парную уйдет около трех кубов пиломатериала и утеплитесь. Знатоки рекомендуют обратить внимание на изоспан FB и изолон (для потолка), выдерживающий нагрев до 150 градусов. Затраты на строительство стен не превысит 12000-15000 рублей.
Экзотический, но самый выгодный вариант — баня-землянка, которую можно построить и в одиночку. Фундамент для нее не нужен, однако вырыть котлован непросто, на это может уйти не один месяц.
Летнюю парилку можно соорудить из большой деревянной бочки. Она частично перекрывается деревянной решеткой: по одну ее сторону ставят печь, по другую — небольшую скамью, на которой поместятся два-три человека.
Небольшую баньку смекалистые граждане устраивают в микроавтобусе или машине с кузовом — в интернете есть соответствующие мастер-классы с фото и
На даче иногда используют и походные бани на 3-7 человек. Температура в палатку нагнетается мобильным парогенератором или небольшой печкой и достигает 90 градусов.
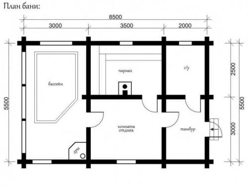
Баня 2х3 своими руками. Какую баню разместить на своем участке
Размер будущего строения зависит от многих факторов и одним из основных является размер участка и бюджет хозяев. Минимальный размер любого банного комплекса должен составлять не менее 2 на 3 метра, хотя некоторые умельцы творят чудеса и даже проекты бань 2 на 2 смело пристраивают к своим домам и даже ставят как отдельное строение.
Это все возможно, но тут потребуется сноровка, так как при минимальных размерах бани 2х2 метра места для предбанника не остается и его вполне можно заменить летней верандой или пристройкой к дому.
На примере: к любому дому можно пристроить баню в виде парилки, которая так же выполняет функцию помывочной и топку, при этом расходы на строительство будут минимальными и одна стена в доме и бане будет единая .
Баня с парной и предбанником

Схематическое изображение планировки
Банька небольших размеров 2 на 3 метра вполне может быть альтернативой любой другой, так как вмещает в себя:
- Предбанник 2х1;
- Парилку и помывочную вместе 2х2м.
В парилке следует разместить:
- Полок 2 х 0.5м;
- Печь со встроенным бачком 0.5 х 1м;
- Дополнительные крючки для полотенец и мочалок;
- А так же небольшое место для тазика или ванной можно оборудовать под полком, что сэкономит и так небольшое пространство.
Предбанник хоть и небольшой, но для 1 – 2 человек места вполне достаточно.
В нем достаточно:
- Поставить лавку;
- Вешалки и крючки для одежды;
- Небольшую полочку на боковой стене для графина с соком или водой.
Вариант бани как пристройки

Баня, пристроенная к дому
Если бюджет семьи не позволяет построить полноценный банный комплекс с парной, помывочной, душевой и предбанником на 3 – 4 человека, то в данной ситуации можно все распланировать несколько иначе. Возьмем в качестве примера любой загородный домик и сделаем пристройку к его веранде.
При этом что мы получим в результате пристройки 2 на 3 метра:
- Предбанник и веранда – это одно целое и можно дополнить интерьер помещения на сове усмотрение;
- Помывочная комната 2 на 2 метра вполне вместит в себя полноценную лавку, печь с топкой и место для душа;
- Парная 1м на 2 м – хоть и небольшая, но для одного взрослого человека вполне достаточно.
Вот и выход из ситуации – баня с домом под разными крышами, но с одним общим входом.
Совет: если вы решились пристроить баню к дому, то не забудьте учесть материал строения. Это обязательное условие, так как многие строительные материалы по-разному воспринимают повышенную влажность и могут просто быть не пригодными для высоких температур.
Баня своими руками из подручных материалов. Устройство потолка бани из подручных материалов
После возведения стен и перегородок бани можно приступать к устройству потолка, который делают применительно к каркасной конструкции бани.
Для этого на верхнюю обвязку каркаса укладывают хорошо подогнанные друг к другу горбыль, доски или прямые обтесанные жерди. Затем этот накат покрывают снизу пароизоляционным материалом (пергамин, фольга) и обшивают тонкими досками (10—15 мм).
Сверху накат также покрывают слоем пергамина или рубероида, по периметру потолка закрепляют доски, образующие короб высотой 150 мм. Короб потолка засыпают слоем утеплителя (опилки, торф, керамзит), который сверху покрывают рубероидом или толью и устраивают обрешетку кровли. На обрешетку, покрытую также слоем рубероида, укладывают волнистые асбоцементные листы, закрепляемые кровельными гвоздями.
Кровлю каркасной бани с засыпными стенами выполняют, как правило, односкатной, что значительно упрощает и удешевляет строительство (рис. 7).

Рис. 7. Устройство потолка и кровли каркасной бани:
1 - стойки каркаса; 2 - подшивной потолок; 3 - пергамин; 4 - накат потолка; 5 - верхняя обвязка стоек; 6 - утеплитель; 7 - рубероид, толь; 8 - обрешетка; 9 - асбоцементный лист кровли.
Устройство пола бани начинают с установки опорного бруса. Его закрепляют гвоздями на уровне нижней доски обвязки по периметру каркаса (рис. 2; 6). Для обеспечения дополнительного крепления досок пола надо установить лагу, опирающуюся на отдельную опору и стойки каркаса. В последующем все работы по устройству пола, каменки, полка, слива воды и дренажной ямы выполняют по правилам, изложенным для деревянной бани.
Предлагаемый вариант каркасной бани с использованием дешевых подручных материалов под силу соорудить любому умельцу, даже не имеющему большого опыта строительных работ. Постройка каркасной бани может быть выполнена в максимально короткий срок (1,5—2 месяца), а применение дешевых материалов обеспечит существенную экономию семейного бюджета.
Из чего построить баню дешево. Виды бюджетных бань
В зависимости от материала бани бывают разных видов. Выбирают то, что дешевле в конкретном регионе. Поэтому, тем, кто живёт за городом постоянно, в непосредственной близости с лесом или имеет участок в лесополосе, дешевле будет поставить сруб. В черте города или в деревне такое строение выйдет дороже. Рассмотрим бюджетные варианты бань. (Читайте статью на тему “Осина или сосна — что подходит для бани лучше (сравнение, плюсы и минусы)”)
Из пеноблока
Только совсем недавно этот материал стали использовать для строительства саун. Он лёгкий по весу, поэтому не требуется возводить прочный фундамент. Тепло здесь долго сохраняется, но при внутренней и внешней отделке потребуется предусмотреть дополнительный слой теплоизоляции и защиту от пара . Блок не боится огня и не крошится под воздействием высоких температур, а также не выделяет токсины в воздух. (Читайте статью на тему “Баня из пеноблоков своими руками: проекты, минусы, плюсы”)
На заметку! Не смотря на устойчивость материала к огню, при облицовке деревянными элементами, их обязательно нужно обработать антисептическими и противопожарными средствами.
Каркасные
Уже более 10 лет строения из каркаса и панелей пользуются спросом. Они легко и быстро возводятся, не требуют особых вложений и усилий. Материал лёгкий по весу, поэтому тяжёлую технику привлекать не требуется, а также не целесообразно делать тяжёлое фундаментальное основание. Преимущественно такую баню устанавливают на столбчатом фундаменте. Стены можно сконструировать самостоятельно или купить уже готовые рамы, которые нужно только собрать в единую конструкцию. Тонкие стены после установки обязательно нужно утеплить и защитить от воздействия влаги. В любом случае, требуется декоративная отделка, черновая обшивка смотрится не эстетично. (Читайте статью на тему “Вагонка для бани: какую лучше выбрать, отделка и монтаж”)
На заметку! Не экономьте на теплоизоляции и материале для защиты от влаги, иначе, в скором времени вам придётся менять несущие детали, делать капитальный ремонт, что потребует гораздо больших затрат, чем теплоизоляция.
Из газобетона
По свойствам и внешним признакам этот материал похож на пеноблоки. Изделия изготавливают из цемента, алюминиевой смеси песка с добавлением специальных газообразующих веществ. В процессе изготовления происходит химическая реакция, которая способствует затвердеванию. Строение из газоблоков получается прочным и тёплым. Материал устойчив к поражению грибком и плесенью, но не терпит сырости. Чтобы избежать воздействия влаги, необходимо сделать вентиляцию . Каждый блок можно разделить на отдельные составные части. Он легко режется и собирается. (Читайте статью на тему “Баня из газобетона своими руками: Проекты, плюсы и минусы”)
Из досок
При возведении используются только доски. Здесь не требуется основание из брёвен или бруса. Каркас сооружают из брусьев, сечение которых не менее 5 см . Это сезонное строение, его используют только в дачный период. Конструкцию легко возвести самостоятельно за несколько недель, но опытные мастера рекомендуют взять в помощники напарника. Здесь не нужна внешняя или внутренняя отделка. Главное, чтобы доски плотно прилегали друг к другу.
На заметку! Возводя строение из досок вполне можно воспользоваться необрезным материалом. Главное, чтобы не было претензий к внешнему виду, а древесина была крепкой и сухой.
Из шлакоблоков
Строение быстро и легко возводится, но требует дополнительного утепления , гидроизоляции . Неустойчивость к перепадам температуры устраняется с помощью дополнительной защитной обшивки. Главное достоинство шлакоблоков – это способность выдержать высокие температуры. Он не загорается под прямым воздействием огня. Если конструкция опорная, то блоки выбирают монолитные, они усиливают несущие свойства стен. Для внешних стен выбирают блоки, которые внутри пустые, а внутренние перегородки возводят из тонких шлакоблоков. Здесь не нужен особенно прочный фундамент, что значительно экономит средства. Достаточно соорудить ленточное или столбчатое основание. Главное, заранее сделать анализ почвы и убедиться, что слои земли не подвинутся со временем.
На заметку! Строения из шлакоблоков отличаются довольно высокой звукопроницаемостью, поэтому, выбирая вид сауны, задумайтесь, подходит ли именно этот вариант. Можно сделать дополнительную обшивку из шумопоглощающих материалов, но это выйдет за рамки выделенного бюджета.
Самая простая баня своими руками. Строим баню своими руками — планировка, особенности строительных материалов, выбор конструкции и печи. Поэтапная инструкция по строительству своими руками
Многие жители больших городов с нетерпением ждут выходных, чтобы сбежать от шума и суеты на дачу. Нет ничего прекрасней комфортного отдыха на природе, особенно если одно из составляющих комфорта — настоящая русская баня.

Пожалуй, каждый дачник или владелец частного дома мечтает иметь собственную баню, даже если жилище полностью благоустроено и имеет ванную. Ничто не может сравниться с жаркой парилкой и душистыми вениками. Баня очищает не только тело, но и душу, снимая стресс и поднимая настроение. Проще всего было бы заказать возведение бани строителям, но можно это сделать и самому, обустроив ее на свой вкус и значительно сэкономив средства. Достаточно лишь приобрести материал, подготовить инструменты и познакомиться с советами и рекомендациями, как сделать баню своими руками.

Перед началом строительства нужно выбрать подходящий проект и определиться с материалами. Многие согласятся, что идеальная баня должна быть деревянной, но в некоторых регионах дерево считают редким и дорогим вариантом, предпочитая возводить бани из кирпича или пеноблоков. После решения этого вопроса можно начать подготовку к строительству.

Составление планировки бани
Самый простой, но затратный вариант — выбрать один из множества готовых проектов. Можно также заказать чертеж, но это тоже будет стоить денег. Поэтому многие из умельцев, решившихся на строительство, создают чертежи бани своими руками, опираясь на советы, рекомендации и определенные нормы.
План будущей бани должен быть максимально точным. На нем необходимо прорисовать места расположения окон, дверей, печки и внутренних деревянных конструкций: лавок, полков, ступеней. Также следует определить площадь помещений и обозначить коммуникации.

На дачных участках обычно ставят бани простого типа, вмещающие в себя комнату отдыха, парилку и моечное помещение. Желательно, чтобы был предбанник, который не пропустит холод с улицы и послужит местом хранения дров.

Самый популярный и простой проект — строение 3х3 или 3х4. В этом случае получается компактная постройка с парной, объединенной с моечной и предбанником в роли комнаты отдыха. В такой бане одновременно могут париться два человека. Для постоянного использования она не подойдет, но как дачный вариант будет очень удобна.

В последнее время при возведении бань парную отделяют от моечной, выбирая планировку из трех помещений. В этом случае размеры строения должны быть 4х4 или 6х4.

На территории участков для частных домов и коттеджей нередко возводят современные бани сложной планировки, включающей в себя до шести внутренних помещений, террасу и даже мансардный этаж с балконом.

Но для них лучше приобретать готовые проекты, которые рассчитаны на размеры сооружений 8х8 или 10х10. Эти варианты хороши для частого использования большими компаниями.

Выбор места
Лучше под строительство выбирать ровный участок, чтобы не пришлось делать основательный фундамент. Место не должно быть слишком сырым, иначе низ постройки и пол начнут гнить.

Если рядом имеется водоем, лучше строить баню ближе к нему, в этом случае можно будет после парилки окунуться в прохладную воду. Вход в предбанник обычно делают с южной стороны, чтобы перед дверью не скапливался снег.
Строительные материалы для бани
Перед началом стройки следует подготовить все нужные материалы. Помимо того, что потребуется для стен, надо приобрести все необходимое для крыши, фундамента и отделки. В обязательном порядке потребуется:
- половая доска;
- доски для потолка или вагонка 20 мм или чуть толще;
- вагонка для отделки стен;
- пароизоляционная пленка для обустройства кровли;
- пленка для гидроизоляции;
- минеральная вата для утепления потолка;
- асбестовые листы для изоляции стен рядом с печью и трубой;
- песчано-гравийная смесь и цемент для фундаментных работ;
- материал для кровли;
- утеплитель для стен (если баня будет из бруса или бревна).

Построенную баню сразу эксплуатировать нельзя, так как она должна осесть. Поэтому строительство рекомендуется начинать ранней весной.

Какой материал выбрать для стен
На современном рынке строительных материалов представлены различные варианты, подходящие для возведения бани на любой вкус. Самые распространенные: дерево, бетонные блоки и кирпич.

С давних времен строительство велось из дерева как из самого экологически чистого материала, не требующего дополнительной отделки. Деревянные стены радуют приятным ароматом и эстетичным внешним видом.

Баня из бруса
Самым удобным вариантом возведения стен из дерева считается брус. Помимо низкой теплопроводности и красивого внешнего вида он имеет ряд положительных качеств: небольшую усадку, легкость при сборе стен, небольшой вес, позволяющий обойтись без массивного фундамента. Баня из бруса своими руками возводится в максимально короткие сроки.

Бревенчатая баня
Классический вариант, пользующийся большим спросом. Материал обладает теми же качествами, что и брус, но более сложен в обращении. Чтобы сложить стены, необходимо произвести обработку бревен, чтобы они складывались и держались друг за друга.
Как построить баню из блоков. Плюсы и минусы
Блочные строительные материалы имеют свои плюсы и минусы. Их обязательно нужно знать, если вы планируете использовать блоки в строительстве бани. Для начала стоит рассмотреть подробнее, какими преимуществами обладают подобные элементы.
Выделяются несколько плюсов такого материала, как блоки.
- Конструкция, построенная из блоков, не будет давать усадки, как, например, строения из древесины.
- Парную из блоков можно строить практически сразу после основной отделки.
- На строительство такой бани уйдет минимальное количество времени.
- Произвести все ремонтные работы можно без привлечения сторонней помощи, однако специалисты рекомендуют пригласить хотя бы одного помощника. Так строительство пойдет гораздо быстрее.
- Конечная стоимость блочной бани будет в 2-3 раза ниже, чем в случае со строительством парной из дерева точно таких же размеров.
- Блочные материалы являются абсолютно безопасными для здоровья человека. В их составе нет опасных химических соединений, поэтому даже в условиях повышенных температур они не выделяют вредоносных веществ.
- Блоки имеют относительно небольшой вес. Благодаря данной характеристике можно существенно сэкономить силы и денежные средства на подготовке качественного фундамента.
- Многие потребители выбирают для строительства блочные материалы, поскольку они не поддерживают горение.
- Баня из блоков не подвержена гниению.
- Блоки являются неприхотливыми в уходе. Их не нужно регулярно промазывать антисептическими составами, как в случае с деревянными строениями. Блочные материалы не подвержены образованию плесени и грибка.
- Стены, построенные из такого сырья, являются «дышащими» благодаря своим диффузным свойствам.
- Многие разновидности блоков, например, газосиликатные, могут похвастаться неплохими тепло- и шумоизоляционными свойствами.
- Срок службы качественных блоков является очень долгим.
Как можно заметить, строения из блоков являются весьма долговечными и износостойкими.
В настоящее время многие хозяева выбирают именно блочные материалы для строительства бань (и не только).
Однако у этих изделий есть и свои минусы.
- Блоки впитывают в себя влагу, поэтому бане необходимо обеспечить качественную гидроизоляцию, в противном случае материал может просто разрушиться.
- Бане из блоков необходима пароизоляция. Это объясняется тем, что внутри стен из подобных материалов почти всегда накапливается конденсат, поэтому без пароизолирующих материалов здесь не обойтись.
- Блоки являются долговечными материалами, однако в данном вопросе они уступают кирпичу.
- В составе популярных газосиликатных блоков присутствуют алюминиевая пудра и известь. Данные компоненты уменьшают положительные характеристики материала.
Многих проблем, связанных с блочными банями, вполне можно избежать, если произвести их качественное возведение, а также заранее позаботиться о гидро- и пароизоляции.