Парная и помывочная в одном помещении бани. Преимущества и недостатки моечной в парилке
- Парная и помывочная в одном помещении бани. Преимущества и недостатки моечной в парилке
- Проект бани с помывочной и парилкой. ТОП-60 лучших проектов бани для дачи на 2023 год
- Баня с отдельной парилкой и мойкой. Особенности бани 3 на 3
- Баня с парилкой и помывочной. Баня с парилкой и мойкой: особенности планировки бань размером 4х6, 3х4, 5х5, 3х6, 3х5 с совмещённым или раздельным интерьером
- Как сделать баню с отдельной парилкой. Баня с парилкой и мойкой в одном помещении: преимущества и недостатки
Парная и помывочная в одном помещении бани. Преимущества и недостатки моечной в парилке
Самое большое преимущество и главная причина, по которой помывочная обустраивается с парилкой в одном помещении, заключается в том, что такое решение позволяет построить баню с минимальными габаритами 4х4 или даже 3х3. Когда-то основное назначение бани в деревнях было в возможности помыться в ней. То есть даже если семья была не богатой, то всё равно небольшая банька была необходима для регулярного приёма банных процедур в целях гигиены.
Поэтому и строились хотя бы небольшие, но полнофункциональные бани, где можно было и помыться и попариться. Так как пространство внутри такой конструкции минимальное, то разделение помывочной и парной сделать было невозможно.
Есть у объединения помывочной с парилкой и свои недостатки. В первую очередь нужно сказать про неудобство принятия банных процедур в большой компании. Очевидно, что небольшая баня обычно строится либо для одного-двух человек, либо для маленькой семьи. Но, если планируется её использовать на несколько человек, то сразу нужно учитывать, что мыться можно будет только после того, как все попарятся.
Если после парения помыться, то воздух в парилке станет достаточно сырым и дальнейшее парение уже будет не таким качественным. Кроме того, после принятия душа в помещении остаются запахи мыла и шампуня, что также добавляет неприятных ощущений тем, кто будет париться следом. Так что здесь прийдется выбирать: либо париться и мыться всем вместе, либо тем, кто будет париться после того, как кто-то уже помылся, надо будет мириться с менее качественной атмосферой в парной.
Также давно замечено, что при совместном использовании одного помещения и для парения и для принятия душа пол в нём заметно быстрее требует замены. А так как конструкция такой бани обычно бюджетная, то пол здесь делают проливной из деревянных досок. Размещать все элементы в нём лучше таким образом, чтобы была возможность провести замену половых досок без больших сложностей.
Парная и помывочная в одном помещении бани: преимущества и недостатки
Самое большое преимущество и главная причина, по которой помывочная обустраивается с парилкой в одном помещении, заключается в том, что такое решение позволяет построить баню с минимальными габаритами 4х4 или даже 3х3.
Когда-то основное назначение бани в деревнях было в возможности помыться в ней. То есть даже если семья была не богатой, то всё равно небольшая банька была необходима для регулярного приёма банных процедур в целях гигиены.
Поэтому и строились хотя бы небольшие, но полнофункциональные бани, где можно было и помыться и попариться. Так как пространство внутри такой конструкции минимальное, то разделение помывочной и парной сделать было невозможно.
Есть у объединения помывочной с парилкой и свои недостатки. В первую очередь нужно сказать про неудобство принятия банных процедур в большой компании.
Очевидно, что небольшая баня обычно строится либо для одного-двух человек, либо для маленькой семьи. Но, если планируется её использовать на несколько человек, то сразу нужно учитывать, что мыться можно будет только после того, как все попарятся.
Если после парения помыться, то воздух в парилке станет достаточно сырым и дальнейшее парение уже будет не таким качественным. К тому же, после принятия душа в помещении остаются запахи мыла и шампуня, что также добавляет неприятных ощущений тем, кто будет париться следом.
Так что здесь прийдется выбирать: либо париться и мыться всем вместе, либо тем, кто будет париться после того, как кто-то уже помылся, надо будет мириться с менее качественной атмосферой в парной.
Проект бани с помывочной и парилкой. ТОП-60 лучших проектов бани для дачи на 2023 год
Баня: планировка и разделение общей площади на зоны
Если раньше бани состояли только из одной комнаты, то современные варианты этих конструкций включают несколько. Сюда могут входить прачечная, раздевалка, зона отдыха, бассейн, бильярдная и т.д. Для того, чтобы в дальнейшем хозяину не пришлось прибегать к реконструкции и приспособлению постройки, необходимо еще на этапе проектирования сделать все важные отметки в чертежах. Особого внимания заслуживают следующие моменты:

Для удобства современные сауны включают несколько функциональных зон
- внутренняя планировка;
- система водоснабжения;
- электрические кабели;
- канализация и дренаж.
Примечание! Имея перед собой подробную схему, вы сможете значительно упростить и ускорить процесс выбора и расстановки мебели.
Разработка плана бани с учетом условий дачного участка
Чтобы создать идеальные условия для отдыха в бане, необходимо учесть некоторые нюансы, которые позволят избежать проблем при эксплуатации помещения. Желательно, чтобы зона строительства располагалась на суше с низким уровнем наличия грунтовых вод. Перед тем как приступить к разработке проекта, необходимо сразу исключить все участки, не соответствующие этому условию.

Проект сауны 5 х 7 метров с открытой террасой
Если на территории есть колодец, то расстояние между ним и баней должно быть не менее 5 м. Минимальное расстояние между парилкой и жилым домом — 8 м. Дальше от бани компостная яма и туалет расположены, тем лучше. Специалисты рекомендуют заходить с южной стороны. Зимой здесь образуется меньше сугробов, поэтому возможность перекрытия доступа к двери исключена. Лучше, если окна выходят на запад, что облегчит проникновение в комнату достаточного количества солнечного света.
Если на дачном участке есть водоем, то после постройки бани в 15-20 м от него можно использовать вместо бассейна. Кроме того, наличие реки или озера в непосредственной близости от объекта обеспечит систему водоснабжения.

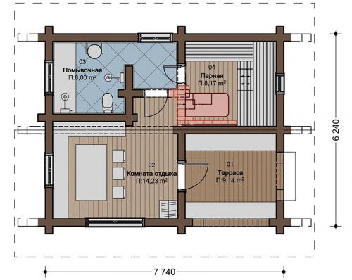
Размеры проекта сауны 7,74 х 6,24 метра
Для небольших участков (3-6 соток) подходят проекты санузлов 3 на 3, фото таких построек в изобилии на сайтах строительных компаний. Даже в таких компактных постройках парная остается основным помещением. Для организации этого помещения следует выделить максимально возможный объем пространства — примерно 8 м². Этого достаточно, чтобы установить 2-3 грядки (полочки) и поставить печь.
Остальные комнаты могут быть включены в планировку санузла 3х4м и более (по желанию). Конструкцию можно использовать по прямому назначению даже при отсутствии бильярдной или санузла. Баня не может существовать без турецкой бани. По этой причине разделение внутреннего пространства на функциональные зоны во многом зависит от масштабов проекта.

Сауны рекомендуется строить на расстоянии не менее 8 м от жилого дома
Если вам нужны дополнительные удобства, вы можете включить небольшую душевую или ванну в дизайн своей ванны размером 3 на 4 метра. После турецкой бани здесь можно смыть грязь и остыть. Типичные проекты характеризуются наличием комнаты отдыха, которая будет обслуживаться в перерывах между парными сеансами. Для его организации потребуется 4,5 м².
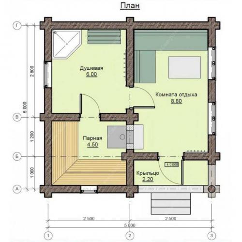
Пригодятся и другие помещения, например, гардеробная или тамбур. Они достаточно компактны, чтобы вместить бревенчатую сауну 5 на 5 вместе с основными помещениями.
Обратите внимание: размер купальной зоны на одного человека составляет 2 м².

Проект сауны 6х6 м со вторым мансардным этажом
Проектирование бани: основные помещения и удачные примеры планировок
Даже самый маленький проект не может состоять только из турецкой бани. Чтобы санузел нормально функционировал и условия его эксплуатации обеспечивали комфорт человеку, в планировку следует включить и другие помещения. Для этого внутреннее пространство здания разделено на небольшие комнаты, каждая из которых играет свою роль.
В конструкции бани 5 на 6 м (с учетом небольших размеров такой постройки) нет необходимости использовать несущие стены для разделения пространства на зоны. Достаточно будет легких деревянных перегородок. Они не нуждаются в закладке фундамента и не несут дополнительных нагрузок.

При разделении пространства вместо стен можно использовать стеклянные перегородки для экономии места
За счет разделения основного пространства на несколько секций можно будет эффективно и быстро отапливать парилку. В этом случае остальные помещения не будут отапливаться. Это преимущество особенно полезно для комнаты отдыха.
Гардеробная относится к категории необходимых помещений. Это помещение используется как входная дверь в ванную комнату, предотвращая попадание холодного уличного воздуха в парилку. Здесь можно хранить дрова или другое топливо. Гардеробная подходит для обустройства небольшой гардеробной (гардеробной). При правильной планировке можно легко перейти из этой комнаты в парилку, душевую и комнату отдыха.
Баня с отдельной парилкой и мойкой. Особенности бани 3 на 3
Построить такую небольшую баню не слишком сложно. При наличии гравия, песка не нужно даже рыть яму под фундамент. Легкая конструкция не нуждается в дополнительной опоре, если почвы устойчивые. Однако об отводе лишней жидкости подумать нужно. Хотя сама постройка будет небольшой, ее нельзя ставить вплотную к жилому помещению. По нормам расстояние между стенами таких строений должно быть не менее 15 метров, размеры парной в этом случае значения не имеют.
На заметку!
Обязательно нужно учитывать и нормы в плане расположения относительно участка соседей. Согласовать с владельцами установку небольшого сруба всегда проще.
У малого строения много преимуществ, поэтому бани с большой площадью на стандартных придомовых или дачных участках редкость. Среди плюсов отмечают:
- минимальный расход материала;
- небольшую смету;
- малый срок строительства;
- большой выбор отопительных систем;
- малый расход ресурсов для отапливания.
В будущем площадь можно расширить, сделав небольшую открытую пристройку по типу стандартной террасы. На нее выносят зону отдыха, увеличивая пространство в парной и помывочной. Но и девяти квадратных метров хватит для отдыха 4 человек.
Недостатков у строения с такими габаритами тоже достаточно. Это необходимость грамотно выстроить внутреннее пространство и подумать о компактности каждого элемента. Теплоизоляция стен должна выполняться материалами, которые не увеличат толщину перегородок. Отопительная система устаревшего типа тоже займет слишком много места, а более практичной окажется топка или печка по индивидуальному заказу. Это может повлечь дополнительные расходы. Хотя квадратные метры достаточны для трех или четырех гостей, все же более комфортно смогут расположиться два человека. Для компаний чуть больше потребуется сноровка.
На небольшой площади нужно верно распределить метры между несколькими зонами. Большей должен быть метраж предбанника. Здесь можно раздеться, повесить полотенца, поставить столик и лавочки для отдыха. На этой же площади организуют хранение банных принадлежностей. Если в остальных помещениях человек практически не двигается, то в предбаннике нужен комфорт. Парная должна быть по размеру чуть больше помывочной. Это важно, поскольку парится вся компания обычно вместе, а в следующую комнату заходит уже по одному, ориентируясь на самочувствие. Помывочная может быть самой маленькой. При этом стоит разделить мокрую зону и сухую. Это необходимо для комфорта и для безопасности.
Сделать здание более удобным и функциональным можно, отказавшись от скоса крыши или увеличив общую высоту. Так можно «нарастить» полезную площадь, а расширение дверных проемов приведет к большему комфорту. Под парную можно будет отвести меньшее пространство, соорудив своими же руками несколько ярусов. В предбаннике получится поставить более высокие шкафы или установить вертикальные системы хранения.
На заметку!
Скосы крыши мансардного типа «съедают» примерно пятую часть свободной площади. Это нужно учитывать.
Баня с парилкой и помывочной. Баня с парилкой и мойкой: особенности планировки бань размером 4х6, 3х4, 5х5, 3х6, 3х5 с совмещённым или раздельным интерьером
Парилка и мойка являются основными помещениями в бане. Остальные помещения являются дополнительными, но не менее необходимыми, чем парилка и комната для охлаждающих процедур.
В большой бане легко разместить все эти помещения, а в небольшом пространстве хозяину часто приходится совмещать или делить все необходимые помещения на небольшие изолированные комнаты.

Необходимые комнаты в бане
Для полноценного и комфортного отдыха, каждая баня должна включать в себя следующие помещения:
- Парилку;
- Комнату для охлаждающих процедур;
- Туалетную комнату;
- Раздевалку;
- Комнату отдыха.

Парилка является помещением в котором обязательно должна быть печь и полки для того, чтобы можно было посидеть в парной. Комната для охлаждающих процедур должна быть оборудована душем или бочкой с холодной водой.
В этом помещении можно разместить бассейн. Туалетная комната должна быть оборудована унитазом. В этой комнате можно установить раковину. Раздевалка в бане необходима для хранения верхней одежды в то время, пока гости будут принимать банные процедуры.

Комната отдыха зачастую в небольших банях совмещается с раздевалкой и оборудуется столом и стулья или лавочками для сиденья.

Разнообразие проектов бани с парилкой
Любое строительство начинается с выбора проекта. В наши дни существует великое множество проектов бань с различными параметрами. Поэтому владельцу приусадебного участка остается только выбрать оптимальный исходя из личных предпочтений и возможностей.

Выбирая подходящий проект нужно учитывать функционал. Если банная постройка необходима только на летнее время, то можно выбрать самый простой проект бани с парной, моечной и комнатой отдыха.
- Баню для круглогодичного использования стоит оборудовать туалетной комнатой, раздевалкой — местом для верхней одежды.
- Кроме того существуют проекты бань с мансардой, где помещения для водных процедур оборудуются на первом этаже, а мансарда используется в качестве комнаты отдыха.
- А также, проекты бань с террасой, которая может быть использована как место для отдыха в теплое время года.

Терраса может быть застекленной. В этом случае, ее можно использовать для отдыха в зимнее время года. Бани с террасой способствуют экономии денежных средств на теплоизоляции и внутренней отделке.
Разграничение банного пространства на зоне зависит от целей использования бани:
- Если баня необходима для семейного пребывания, то парная и моечная должны быть просторными, а комната отдыха может быть совмещенной с раздевалкой;
- Если планируется использовать баню для отдыха в кругу друзей, то комнату отдыха следует сделать просторной, а парилку небольшой — для посещения нескольких человек одновременно. Комнату для банных процедур можно оборудовать только душем или небольшим бассейном и душем.

Важные нюансы при возведении бани
- Проектировать баню следует с учетом будущего ее использования.
- Составляя проект следует учесть климатические условия данной местности.
- Принять во внимание финансовые возможности, геологические особенности участка земли и его размер.
- Определить количество человек, которые будут посещать баню.
- В какое время года преимущественно будет использоваться банное помещение.
- Рядом с парилкой может находится душевая кабина.
- В парилке может стоять большая бочка с холодной водой для охлаждающих процедур.
- Парилка и моечная могут отделяться стеклянной перегородкой.

Учитывая все эти нюансы можно составить проект бани и рассчитать смету.

Правильная планировка бани с парилкой и мойкой
Комфортность пребывания в бане зависит от ее планировки. Например, предбанник защитит другие помещения от попадания в них холодного воздуха с улицы. Здесь можно сделать раздевалку, оборудовав ее крючками для одежды и лавочкой.

Как правило следующим помещением является комната отдыха, в которой размещается стол и стулья для того, чтобы можно было посидеть после банных процедур.

Далее располагается помещение для охлаждающих процедур и парная. По расположению этих помещений есть различные вариации.

Во-первых, мойка и парная могут быть полностью изолированы друг от друга, а могут совмещаться:

Во-вторых, комната для охлаждающих процедур может быть оборудована бассейном, душем, кадкой с холодной водой, лавочкой. В моечной можно установить унитаз для экономии пространства.

Совмещение парилки и мойки
Совмещение парной и моечной является вынужденной мерой, если для бани невозможно выделить большой участок земли. Как правило размер таких бань составляет от 9-ти до 16-ти квадратных метров.
Как сделать баню с отдельной парилкой. Баня с парилкой и мойкой в одном помещении: преимущества и недостатки
Баня с объединенными мойкой и парилкой в настоящий момент встречается не так часто. Этот вариант выбирают преимущественно в том случае, если площадь участка не позволяет сделать два отдельных помещения.
Компактная баня с объединенными помещениями дает возможность сэкономить не только территорию, но и деньги. Стоимость подобной постройки будет значительно дешевле, чем цена аналогичной по размерам бани с отдельными парилкой и моечной.
Еще одним плюсом является то, что баню, где парная и моечная объединены, в зимнее время посещать значительно приятнее: она быстро нагревается и быстро проветривается. Летом же, наоборот, охладить моечную достаточно сложно.
Баня с объединенными мойкой и парилкой имеет существенные недостатки. Первый из них связан с тем, что при такой конструкции гораздо сложнее поддерживать в парной нужные условия. В частности, если кто-то в моечной помоется, то в помещении повысится уровень влажности, и в парной будет менее комфортно. Да и запах мыла или геля для душа также мешает созданию нужной атмосферы.
По этой причине придется сначала всем париться, а только потом мыться, в противном случае вы будете вынуждены терпеть высокую влажность.
Кроме того, мыться в нагретой парной невозможно, поэтому придется ждать, пока помещение остынет.
Очевидно, что баня с объединенными моечной и парной – это вариант для небольшой компании (до 4-х человек). Если вы собираетесь отдыхать в большем составе, то однозначно нужно разделять эти помещения.
Как уже говорилось, баня с парной и моечной в одной комнате менее комфортна, т. к. всем приходиться либо париться, либо мыться, в раздельных же помещениях нет необходимости подстраиваться под других.
Ниже представлены фото бани с парилкой и мойкой, объединенными в одном помещении:



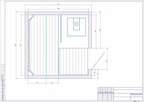
Проект бани 3х3 с совмещенными парной и моечной
Баня 3 на 3 совсем небольшая, поэтому сделать раздельные парную и моечную здесь затруднительно.
Ниже представлен проект маленькой бани, состоящей всего из двух помещений: парной и моечной, комнаты отдыха.
Этот бюджетный вариант подойдет для небольшого участка. В такой бане поместится 2-3 человека, но не более.
Проект бани 3х4 с совмещенными парной и моечной
Данная баня чуть больше, но она также имеет всего два помещения. Вместимость бани 3 на 4 составляет 2-3 человека.
В этом проекте предусмотрены более просторные парная и моечная, предбанник же имеет небольшую площадь – всего 6 кв. м.
