Планы для бани 5*4. Общие требования к характеристикам банных помещений
- Планы для бани 5*4. Общие требования к характеристикам банных помещений
- Проект бани 4 на 5 с мансардой. Баня 4х5 с мансардой по эскизу заказчика
- Проект бани 4 на 5 с террасой. Проекты
- Проект бани 5 на 5 метров: особенности составления планировки. 140 фото-примеров бань из сруба, с террасой, туалетом или мансардой
- Проект бани 5 на 4 из блоков. Выбор материалов
Планы для бани 5*4. Общие требования к характеристикам банных помещений
Пространства, предоставляемого баней размерами 4х5 м, достаточно для вполне комфортного отдыха семьей или небольшой компанией из 3-4 человек.
В соответствии с актуальными нормативными требованиями, на каждого посетителя парилки должно приходиться не менее 1-1,2 м2 свободного пространства, если человек будет париться, пребывая в сидячем положении. Если же любитель бани будет лежать или предпочтет занять какою-нибудь другую возможную позицию, требования к габаритам парного помещения соответствующим образом изменятся.
Эти моменты необходимо учитывать при проектировании бани в целом и полок в парилке в частности. Информация в отношении возможных положений тела в бане и рекомендации по размерам полок для каждого из них приведены на следующем изображении.
Рекомендуемые размеры полоков при разных положениях тела
Расположение полоков в парной
В отношении площади помывочной комнаты, рекомендации аналогичны – не менее 1-1,2 м2 на каждого посетителя. В целях экономии пространства мойка, как правило, делается сравнительно небольших размеров, чтобы хватило места для 1-2 посетителей, пришедших сюда одновременно.
Эффективно решить проблему распределения свободного пространства в помывочной комнате позволит современная компактная душевая кабина. В целом же габариты помывочного помещения могут увеличиваться в зависимости от условий его эксплуатации. К примеру, если владелец решит установить здесь бойлер для нагрева воды или даже стиральную машину (актуально при обустройстве дома-бани), размеры комнаты придется соответствующим образом увеличить.
Варианты обустройства душевой
Рекомендованная высота парилки – порядка 210 см, помывочного помещения – 220-230 см. Проектируя парную, следует придерживаться правила, в соответствии с которым между потолком и верхней полкой должно оставаться минимум 110 см свободного пространства. Также важно, чтобы верхняя полка в парилке была обустроена выше, чем печь – требование продиктовано соображениями, в соответствии с которыми на верхней банной полке должно быть жарче всего. Непосредственно каменка (наиболее популярный вариант банной печи) размещается на высоте в среднем 100 см от пола. В отношении других разновидностей печей для бани требования определяются индивидуальными особенностями используемых агрегатов.
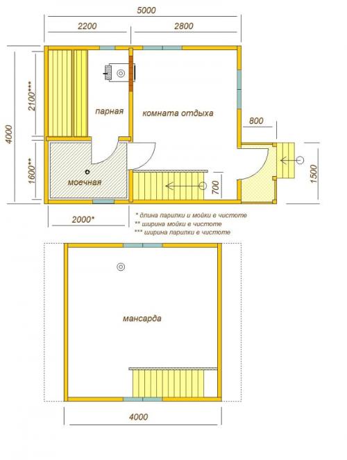
Проект бани 4 на 5 с мансардой. Баня 4х5 с мансардой по эскизу заказчика
Все фотографии принадлежат компании "Русские плотники".
В сентябре 2016 года нами построена баня в Сергиево-Посадском районе. Эскиз был разработан заказчиком самостоятельно, исходя из особенностей участка и пожеланий семейства. По-моему вышла компактная и функциональная постройка, сочетающая в себе собственно баню, которая заняла первый этаж, и приличное спальное место на мансарде.

Свайно-винтовой фундамент, предоставленный заказчиком, усилен (обвязан) по периметру стальным профилем. Это было сделано по той причине, что сваи возвышаются над землёй на разной высоте из-за особенностей ландшафта.
Основание бани (обвязка), лаги пола, черновой пол и все элементы силовой конструкции изготовлены из пиломатериалов камерной сушки (наша опция – «сухой комплект»). На стены и перегородки заложен профилированный брус камерной сушки, сечением 145*95 мм, профиля «блок-хаус». Сруб собирали на деревянные нагеля с применением пружинного узла СИЛА.
Фронтоны кровли отделаны снаружи блок-хаусом 28*140 мм. В «карманах» кровли установлены вентиляционные лючки На крышу постелили профнастил с полимерным покрытием цвета «зелёный мох» (RAL6005). Устроили систему водостока фирмы ДЁКЕ, смонтировали снегозадержатели.
В моечной устроен «протекающий пол», с выводом стока за периметр бани. Стены и потолок моечной отделаны вагонкой из лиственницы «А». Стены и потолок парилки – вагонкой из осины «А». Брусовая основа стен этих помещений была обработана защитным составом НЕОМИД, затем устроена пароизоляция, контробрешётка и только потом стены обшиты вагонкой, с учётом необходимого зазора на усадку.
Печь было решено оставить базовую – ЕРМАК 12 с навесным баком из нержавейки, ёмкостью 35 л. Вертикальный дымоход, проходящий через мансарду, выполнен из стальных нержавеющих сэндвич-труб 115*200 мм. Разделка топочного портала кирпичом заложена в базовой комплектации.
В качестве бонуса, вся постройка была обработана снаружи и изнутри огнебиозащитным составом НЕОМИД.
Фото строительства бани 4х5 из бруса







Бригада из двух человек собрала баню за 12 дней. Стоимость бани в приведённой комплектации: 577000 рублей .
Благодарим заказчика Владимира Игоревича и его семейство, за оказанное нам доверие и возможность заработать. Спасибо от всего коллектива «РУССКИХ ПЛОТНИКОВ», лёгкого пара и доброго здоровья!

Проект бани 4 на 5 с террасой. Проекты
Составляя проект, рекомендуется не забывать о важных нюансах. Планировка делится на два основных помещения.
В одной делается комната отдыха, во второй присутствуют:
- парилка;
- душевая;
- туалет.
Размеры комнат внутри не обязательно должны быть одинаковые. Здесь все зависит от воли домовладельца.
Для компактного расположения печь обустраивается около стены со стороны комнаты отдыха. Можно также агрегат расположить в любой части объекта, это дело сугубо добровольное. Важно, чтобы пожарная безопасность при этом была на должной высоте.
Печь устанавливается с выводом топочной дверцы в предбанник.
Важной деталью является тамбур, его присутствие дает возможность:
- сохранять тепло в зимнее время года;
- экономится свободная площадь в других помещениях.
В процессе проектирования бани 5х4 м необходимо иметь в виду существенные детали:
- вход позволительно делать с любой стороны, связано это с различными особенностями планировки участка и самого объекта;
- пространство между основным домом и баней делаются на минимальном расстоянии;
- расстояние между помещениями должно быть минимальным;
- труба для стоков должна находиться как можно ближе к канализационной яме;
- чаще всего парилка делается более просторной, чем помывочная.
Оборудуется мойка, в самой парилке находится печь дровяная или электрическая. В помещении делаются полки, ширина которых не менее 50 сантиметров. Отдельно можно сделать туалет.
Таким образом, 4x5 метра вполне достаточно, чтобы сделать хорошую баню , места для этого вполне может хватить. Соседнее помещение обогревается за счет тепла, поступающего из парной.
Второй вариант – это строительство и обустройство домика-бани. Вариант этот популярен. Можно сделать крыльцо и террасу размером 140 х 390 см, что вполне достаточно, чтобы вся семья уместилась с гостями за одним столом.
Предбанник реально сделать очень многофункциональным. В нем можно:
- хранить дрова;
- переодеваться;
- отдыхая, смотреть телевизор или петь караоке.
Обязательно следует обшить стену огнеупорным материалом; место, где стоит печка, обшивается нержавейкой, толщина которой не менее 2 мм. В такой компактной бане можно устроить небольшую душевую кабину и унитаз. Монтаж небольшого тамбура никогда не помешает, он может быть как перед раздевалкой, так и перед парилкой.
Преимущества веранды очевидны:
- это может быть идеальным местом для отдыха в теплое время года;
- широкий навес и наличие окон могут решить проблемы, если на дворе ненастная погода.
Важно при проектировании бани рассчитать размер каждого помещения. Следует учитывать при планировании: сколько человек будет находиться одновременно в помещении. Если будет париться 2-3 человека, то достаточно будет парилки не более 5 квадратных метров.
Предбанник удобно использовать для размещения в нем стола и стульев, а также телевизора и холодильника. Некоторые домовладельцы даже ставят СВЧ печь.
Предбанник рассчитывается по такому правилу: один человек – не меньше 1,2 квадратных метра свободного пространства.
Нередко в предбаннике ставится окно – стеклопакет, чтобы улучшить воздухообмен. Дверь, ведущая из парилки в предбанник, должна открываться в сторону предбанника.
Моечная – важное помещение, в котором должна присутствовать как холодная, так и горячая вода. Воду можно нагревать с помощью водонагревателя, который контактирует с печью.
Расчет делается по одному квадратному метру на одного человека. Также рационально в моечной разместить душевую кабину.
Основные факторы, которые оказывают влияние на проектирование помещения:
- габариты печи и ее технические особенности;
- расстояние между печью и окружающими предметами в комнате;
- количество людей, которое может одновременно присутствовать в помещении;
- размеры полок и их расположение.
Говоря о расчете в среднем одного квадратного метра на человека, следует учитывать, что в эту площадь не входят квадратные метры, которые занимают различные предметы, расположенные в парилке, а также проходы. Высота парилки составляет порядка двух метров.
Такие параметры дают возможность для максимального обогрева небольшого помещения.
Желательно, чтобы комната по длине и ширине превосходила два метра. Полки нередко делаются даже более одного метра, при длине в 2,2 метра. Такие размеры позволяют с комфортом разместиться практически любому человеку.
При отсутствии достаточного пространства можно сделать «сидячие места», ширина которых порядка 50 см.
Основные параметры проекта бани 4 х 5 метра, защищенной от ветра и дождя:
- площадь по внешнему основанию – 20 м2;
- площадь внутренняя – 12 м2;
- веранда – 3 м2;
- парилка – 5 м2
- моечная – 4,3 м2;
- предбанник – 3,5 м2.
Мы видим, что план бани 4х5 м сделать несложно. Но можно купить баню уже готовую, это будет стоить в районе 500 тысяч рублей, но сюда не входит цена отделки и утепления.
Проект бани 5 на 5 метров: особенности составления планировки. 140 фото-примеров бань из сруба, с террасой, туалетом или мансардой
Баня служит важной частью отдыха на приусадебном участке. Её приобретают подготовленную или возводят своими силами, выстраивая на дачной делянке или около частного дома. Недорогой вариант – сформировать её собственноручно.
В таком случае всё надо будет предусмотреть самим хозяевам. Если имеется небольшая территория, этот вариант бани 5×5 на ней должен разместиться.
Таких габаритов хватает для проведения свободного времени со своей семьёй или друзьями из 4 человек. Квадратуры достаточно, чтобы разместить все необходимые для удобного отдыха помещения.
Достоинства бани 5 на 5
- Небольшие размеры, экономия места на делянке.
- Минимальные траты топлива на обогрев.
- Возможность повысить квадратуру за счёт мансарды.
- Экономия на строительном сырье.
Особенности планировки бани 5 на 5
До того как приобретать материалы и начать стройку, нужно верно и в подробностях спроектировать баню. По традиции, каждая баня вмещает 2-3 помещения: парная, моечная, комната отдыха, предбанник.
- Парная служит главным помещением. Здесь находится печка для бани и полки. Оптимально создать полки таким образом, чтобы на них можно было полежать, тогда в баньке будет удобнее. Между полками и печкой должно быть расстояние, позволяющее свободно проходить. Высота парилки должна быть такой, чтобы человек мог без помех замахиваться веником.
- В моечной устраивается душ и там омываются водой после парной. Габариты парилки могут различаться, отталкиваясь от того, что в ней планируется поставить. Когда в ней будет только кабина для душа, то можно создать моечную размерами 2×2 м. Немало людей делают её размером с парилку, тогда здесь можно расположить лавку, кадушки, некоторые размещают купель.
- Комната для отдыха – служит местом в котором располагаются меж заходами в парилку. В ней должны находиться стол, стулья, лавки, диванчики. Здесь отводится место для раздевалки. Данная комната должна быть обширной, чтобы каждый посетитель чувствовал себя здесь комфортно и все могли свободно перемещаться.
- Предбанник – служит в качестве прихожей. В нём находятся шкафы и крючки для вешания одежды, часто здесь отводится место для дров. Большим тамбур создавать не требуется, хватит того, чтобы в нём помещались 1-2 человека. Это вспомогательное помещение, куда заходят изредка и по очереди. Квадратуры 2×1,5 м будет достаточно.
Проект бани 5 на 4 из блоков. Выбор материалов
Сделайте выбор в пользу практичности, ведь стены бани должны быть теплопроводными, чтобы она быстро нагревалась и сохраняла тепло, прочными, чтобы «пережить» и дожди, и снежные заносы, а также «дышащими», чтобы выдерживать высокие температуры. Ну а эстетичный вид будущей бани сформирует фактура материала.
- Дерево издавна считается лучшим материалом для строительства бани. Натуральный материал, удерживающий в помещении тепло и уют даже в зимнюю стужу, минимизирует затраты на отопление. Снаружи на баню приятно посмотреть, а внутри стоит приятный запах древесины.
- Бани из бревен подвержены усадке, поэтому приступать к отделочным работам можно примерно через полгода после окончания стройки. В целях пожарной безопасности продумайте расположение печных труб. Щели между бревнами конопатят натуральным мхом или синтетическим герметиком.
Для долговечности баню нужно облицевать кирпичом или сайдингом, а также обработать средством от вредителей.
- Деревянный брус, спиленный с двух или четырех сторон легко укладывать, что значительно ускоряет сроки строительства. Небольшая усадка позволяет сразу приступать к отделочным работам, постройка выглядит аккуратной. К серьезным недостаткам бруса можно отнести горючесть и склонность к образованию грибка, такая баня нуждается в проветривании и качественной дренажной системе.
- Баня из кирпича долговечна и пожаробезопасна, она не нуждается во внешней отделке и органично смотрится с другими дачными строениями. Однако стены кирпичной бани нуждаются в более длительном прогревании, при отсутствии качественной вентиляции они становятся сырыми.
- Пеноблоки с пористой структурой, высокопрочные керамзитобетонные блоки или шлакоблоки с высокой теплоизоляцией применяют для строительства бань из блоков. Их неоспоримым преимуществом является быстрота работы и минимальная усадка. Они обладают морозо- и огнестойкостью, прочностью и долговечностью. Наружная и внутренняя гидроизоляция защитит блочные бани от воды, а специальные опоры укрепят кровлю.
- Бани на плоту строят на реках или искусственных водоемах. На пластиковом или деревянном понтоне устанавливают деревянный каркас бани: ведь плавучая постройка не должна быть тяжелой. Внутри бани размещают предбанник, парилку, душевую и туалет. Нахождение людей в одном банном помещении неприемлемо, а их количество строго регламентируется в зависимости от веса.
- Плавучая баня — дорогое удовольствие, для постройки требуется вывод грязной воды за пределы водоохранной зоны или многоступенчатая система очистки. Иначе никто не даст разрешения на строительство.
- Владельцы своего пруда в специальном разрешении не нуждаются, но вывод грязной воды нужно спроектировать задолго до начала строительства. Да и в регионах с суровыми зимами такая постройка неудобна: до начала холодов баню нужно вынести на берег, разобрать и убрать в тепло до весны.