Проект бани 6 на 6 2 этажа. Баня из древесины
- Проект бани 6 на 6 2 этажа. Баня из древесины
- Планировка бани 6 на 6 с мансардой. Баня 6 х 6 – популярный вариант
- Проект бани 6 на 6 с террасой. Баня 6х6 с террасой и мансардой
- Проекты бань 6 на 6 со вторым этажом. Разработка плана бани с учетом условий дачного участка
- Проект бани 6 на 6 с туалетом. 4х6
Проект бани 6 на 6 2 этажа. Баня из древесины
Натуральное дерево – материал ценный, экологичный и любимый всеми. Такой аромат, который создает древесина, ни одна аромалампа не сможет передать. Тут и красота, и практичность, и ароматерапия. Ведь если правильно выбрать породу дерева, то баня простоит не одно десятилетие.

Образец русского зодчества на современный лад
Совет: какой бы тип древесины вы не выбрали, убедитесь, что она хорошо высушена. Иначе перекос вам гарантирован. А если вы задумали баню 6×6 с двухэтажной планировкой, конструкция не будет прочной в силу будущей деформации материала.
Поделимся рекомендациями, какое дерево можно брать, а какое не стоит.
- Осина подойдет. Да и древесина у нее очень ароматная.
- Липа. Как и липовый мед, веник, дерево тоже обладает оздоровительными свойствами.
- Дуб, бук – деревья прочные, с плотной древесиной. И вот именно из-за такой несгибаемости они не подходят. Повышенная влага «поведет» стены.
- Сосна, ели, лиственница и прочие деревья с иголочками вместо листочков не подойдут.

Деревянная баня 6×6

Вариант двухэтажной бани с террасой
Можно встретить советы, что для стен хвойные породы деревьев подойдут. Дескать, они дешевле и прочнее. Но только в том случае, если планировка бани 6×6 предусматривает парилку с собственными стенами. Согласитесь, под действием пара сосновый брус или бревно начнет «плакать» смоляными слезами. Нужно ли это?
Кстати, о разновидности материала из древесины. Что предпочтительней – брус или бревно?
- Бревно изначально нужно около 6 месяцев просушить. Готовы ждать?
- Однако бревенчатые бани выглядят самобытно, в духе древнерусских традиций.
- Зато бани из бруса экономически выгодны и намного быстрее возводятся.
На бани из бруса уходит и материала, и времени меньше, и стоит этот материал намного дешевле бревен. Если бревно – это первично обработанная древесина, то брус – это пиломатериал. Он и высушивается, как следует, и нарезается уже заготовками по 6 м.


Планировка бани 6 на 6 с мансардой. Баня 6 х 6 – популярный вариант
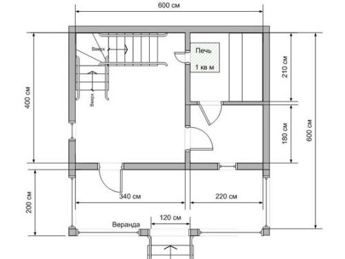
Конструкцию для бани размером 6х6 м можно назвать на сегодня наиболее популярной. Такое сооружение не занимает слишком много места на участке, обустройство же мансарды позволяет значительно увеличить полезную площадь постройки. Размеры помещений внутри бани могут быть разными, что зависит от потребностей и пожеланий владельца и членов его семьи.
Такая баня предусматривает наличие помещений на первом этаже того же назначения, что и в постройке 4 х 6 м – это входная зона с лестницей для подъема на мансарду, комната отдыха, парная и моечная, в которой можно дополнительно разместить маленький бассейн. Комнаты могут быть больше или меньше по площади в зависимости от потребностей семьи и многочисленности любителей банных процедур.
Терраса в такой бане может быть сделана достаточно просторной. Особенно это актуально в случаях, если баней активно пользуются в летний период. Но иногда площадь террасы сокращают в пользу других помещений внутри постройки. Чаще всего так поступают, если банные процедуры востребованы равномерно в течение всего года, в том числе и в холодный сезон.
Баня 6 х 6 метров
Мансардный этаж в бане 6х6 тоже оборудуют по-разному. Там может быть сделана одна большая комната для отдыха в компании родных или друзей. Но часто это большое пространство делится на несколько частей. Достаточно распространен вариант, когда в помещении мансарды обустраивают место, чтобы отдохнуть после парной, гостевую комнату и балкон. Здесь каждый выбирает для себя проект по душе, и что именно ему больше подходит.
Проект бани 6 на 6 с террасой. Баня 6х6 с террасой и мансардой
Баня из бруса 6х6 с мансардой преподносит массу вариантов для использования дополнительного пространства. Это может быть, например, еще одна комната отдыха большого размера, где можно оборудовать бильярдную.
Кроме того, на мансарде можно оборудовать комнату для гостей, которые приезжают и остаются ночевать, или большую столовую для проведения праздников, банкетов и вечеринок.
Проект дополнительно оборудован вместительным балконом, который позволяет с комфортом расположиться на нем всем желающим.
Баня с мансардой
Еще один неплохой вариант планировки «оздоровительного домика» – баня 6х6 из бруса с крыльцом и мансардой. Здесь зонам отдыха отведено максимальное пространство. К положительным чертам такой планировки относятся:
- Наличие небольшого тамбура, туда попадаешь с крыльца. Он станет дополнительной преградой на пути холодного воздуха и позволит дольше сохранить тепло в помещении.
- Окна в комнате отдыха и душевой позволяют достичь высокого уровня естественного освещения.
- В парилке от окна отказались для снижения теплоотдачи в помещении.
- Большая мансарда предоставляет массу вариантов использования полезного пространства.
К минусам подобной планировки можно отнести небольшую площадь функциональных помещений: парилки и душевой, а также отсутствие санузла. Но при большом желании и этот недостаток можно исправить, баня 6х3, планировка которой позволяет разгуляться еще меньше, и вовсе не предоставит такого шанса.
Баня 6х6 с мансардой и террасой
Максимально аскетический и бюджетный вариант планировки бани. К его плюсам относятся большой размер комнаты отдыха, мансарда без перегородок и открытая терраса, где дополнительно размещается необходимое оборудование, например, мангал.
Проекты бань 6 на 6 со вторым этажом. Разработка плана бани с учетом условий дачного участка
Чтобы создать идеальные условия для отдыха в бане, необходимо учесть некоторые нюансы, которые позволят избежать проблем при эксплуатации помещения. Желательно, чтобы зона строительства располагалась на суше с низким уровнем наличия грунтовых вод. Перед тем как приступить к разработке проекта, необходимо сразу исключить все участки, не соответствующие этому условию.

Проект сауны 5 х 7 метров с открытой террасой
Если на территории есть колодец, то расстояние между ним и баней должно быть не менее 5 м. Минимальное расстояние между парилкой и жилым домом — 8 м. Дальше от бани компостная яма и туалет расположены, тем лучше. Специалисты рекомендуют заходить с южной стороны. Зимой здесь образуется меньше сугробов, поэтому возможность перекрытия доступа к двери исключена. Лучше, если окна выходят на запад, что облегчит проникновение в комнату достаточного количества солнечного света.
Если на дачном участке есть водоем, то после постройки бани в 15-20 м от него можно использовать вместо бассейна. Кроме того, наличие реки или озера в непосредственной близости от объекта обеспечит систему водоснабжения.

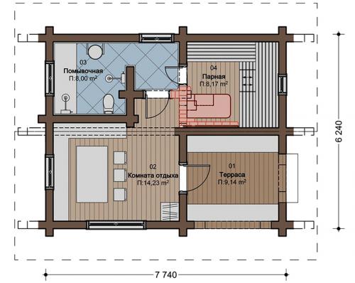
Размеры проекта сауны 7,74 х 6,24 метра
Для небольших участков (3-6 соток) подходят проекты санузлов 3 на 3, фото таких построек в изобилии на сайтах строительных компаний. Даже в таких компактных постройках парная остается основным помещением. Для организации этого помещения следует выделить максимально возможный объем пространства — примерно 8 м². Этого достаточно, чтобы установить 2-3 грядки (полочки) и поставить печь.
Остальные комнаты могут быть включены в планировку санузла 3х4м и более (по желанию). Конструкцию можно использовать по прямому назначению даже при отсутствии бильярдной или санузла. Баня не может существовать без турецкой бани. По этой причине разделение внутреннего пространства на функциональные зоны во многом зависит от масштабов проекта.

Сауны рекомендуется строить на расстоянии не менее 8 м от жилого дома
Если вам нужны дополнительные удобства, вы можете включить небольшую душевую или ванну в дизайн своей ванны размером 3 на 4 метра. После турецкой бани здесь можно смыть грязь и остыть. Типичные проекты характеризуются наличием комнаты отдыха, которая будет обслуживаться в перерывах между парными сеансами. Для его организации потребуется 4,5 м².
Пригодятся и другие помещения, например, гардеробная или тамбур. Они достаточно компактны, чтобы вместить бревенчатую сауну 5 на 5 вместе с основными помещениями.
Обратите внимание: размер купальной зоны на одного человека составляет 2 м².

Проект бани 6 на 6 с туалетом. 4х6
Это самые популярные габариты. Строение подходит для компании 5–6 человек. Планировка бани 4×6 включает террасу с навесом, сауну, гостевую, санузел, душевую. Общая площадь – 21, 7 кв. м.

В комнате отдыха 5, 8 кв. м умещается стол со скамьями и холодильник. Терраса открытая. В бане устраивают отдельно мойку и парилку. Сауна – стандартная, со скамьёй 60х1900 см. В моечной 4, 256 кв. м размещается душ с трапом. Возможно установка купели габаритами 1000х1700 мм. Санузел в планировке выглядит миниатюрным, однако тут умещается компактная мойка и унитаз.
В одноэтажных банях 4х6 чердак используют как кладовую. Но если утеплить кровлю, пространство превратится в полезную площадь. Проекты миниатюрных бань 4х6 с мансардным этажом – хорошее решение для маленьких участков. Наверху обычно располагают место для восстановления сил после водных процедур.

Представленный проект бани 6х4 имеет встроенную террасу, тамбур, 2 комнаты, сауну, помывочную. Площадь спальни на мансардном этаже – 16, 79 кв. м. При желании можно разделить перегородками пространство под крышей на 2 небольшие комнаты. Проект не предполагает наличие санузла. Парная комфортна для трёх человек.
На первом этаже в холле площадью 8 кв. метров может быть устроена обеденная зона. Планировку бани размером 4х6 с мансардой можно сделать более удобной, если вынести террасу на место крыльца, увеличить сауну до 5 кв. м, устроить туалет на первом этаже.