20+ этапов строительства бани 4 на 4 н. Постройка бани
20+ этапов строительства бани 4 на 4 н. Постройка бани
Далее мы будим рассматривать строительство бани, но при этом мы разобьем эти работы на этапы.
Угол с соединением в лапу
Закупка бруса
При покупке материала нужно быть внимательным и обратить особое внимание на:
- Отсутствие трещин. Если они будут на брусках, то рано или поздно они приведут к появлению очага гниения;
- Чтобы не было очагов гниения. Если есть даже маленький очаг, то такой материал не пригоден к строительству;
- Брус должен быть полностью целым и не иметь следов от повреждений разными жучками и насекомыми.
Вычисляем количество требуемых брусьев
В этом пункте мы подсчитаем, сколько материала потребует проект бани 5х4 из бруса, ведь для того чтобы ехать в строительный магазин нужно знать точные цифры.
Мы рассматриваем баню с габаритами 5 на 4 и высотой 2,5 метра. В зависимости от местности строительства можно купить брус 150*150 или 200*200 мм. Если вы живете в западных и южных регионах России, то первого будет вполне достаточно.
Предлагаем вам выполнить небольшой расчет для парилки из бруса 200*200, он подойдет для более северных районов.
(4+5)*2*0,2*2,5=9 м3
Где:
- (4+5) – ширина и высота стен;
- 2 – еще одна пара стен;
- 0,2 – размер бруса, мм;
- 2,5 – высота потолка бани.
Как можно увидеть из расчета, для постройки такой бани нам понадобиться девять кубов материала. Для большей уверенности можно добавить 10-15% сверху – это выйдет одна единица. В итоге нам нужно купить десять штук брусьев для нашего строительства.
Процесс постройки
Фундамент
Чтобы построить баню на долгие годы нужно сделать качественный фундамент, можно для нашей постройки взять:
- столбчатое основание. Для его создания нужно по всему периметру построить опалубку и залить её бетоном при этом глубина заливки должна быть больше промерзания грунта. Для того чтобы нижние венцы не портились от влаги, нужно обеспечить высоту основы не менее полметра над поверхностью земли. Внутреннюю часть основания нужно засыпать песком или щебнем. Всего спустя месяц можно переходить к укладке бруса;
- ленточный фундамент. Для строительства понадобится сделать столбы из кирпича и расположить их по периметру, а также по углам и в местах расположения будущих перегородок. Для каждого столба делается бетонная подушка для того чтобы не было проседания. Между опорами нужно делать расстояние по полтора метра, а в редких случаях до двух.
Обеспечиваем хорошую гидроизоляцию
Качественная гидроизоляция – это условие надежной и уютной бани.
Инструкция, приведенная ниже, поможет вам сделать его самостоятельно у себя на стройплощадке:
- Нужно купить битум и рубероид. Первый нужно разогреть и вылить на основание фундамента, сразу после этого стелиться рубероид;
- Как только эта конструкция высохнет, повторяем процедуру;
- Для лучшего схватывания на рубероид можно положить кирпичи.
Укладывание рубероида на основание
Укладываем венцы
- На фундамент нужно уложить рейки с размерами 15*15 см. В процессе этого делаем расстояние между ними в пределах 250-300 мм;
- Затем на них укладываем первый слой предварительно обработанных антисептиком брусьев;
- Улаживаем первый венец, пока его закреплять не будем – вначале нужно проверить его горизонтальное положение, для этого берем строительный уровень;
- Если все хорошо, то нужно закрепить венец и с помощью монтажной пены заполнить пустоты;
- Далее на установленный венец выкладывается слой из утеплителя для бани. Берем мох (паклю), и улаживаем так, чтобы по краям оставался запас (10 см) – он в будущем потребуется для конопатки;
- На утеплитель укладываем второй венец и закрепляем его штырями;
- Таким способом выкладываем оставшиеся венцы, но последние два не закрепляем, потому что нам придется после усадки устанавливать потолочные балки;
- На заключительном этапе выполняется конопатка стен бани с помощью специальных инструментов.
Жилая баня. Разработка плана бани с учетом условий дачного участка
Чтобы создать идеальные условия для отдыха в бане, необходимо учесть некоторые нюансы, которые позволят избежать проблем при эксплуатации помещения. Желательно, чтобы зона строительства располагалась на суше с низким уровнем наличия грунтовых вод. Перед тем как приступить к разработке проекта, необходимо сразу исключить все участки, не соответствующие этому условию.

Проект сауны 5 х 7 метров с открытой террасой
Если на территории есть колодец, то расстояние между ним и баней должно быть не менее 5 м. Минимальное расстояние между парилкой и жилым домом — 8 м. Дальше от бани компостная яма и туалет расположены, тем лучше. Специалисты рекомендуют заходить с южной стороны. Зимой здесь образуется меньше сугробов, поэтому возможность перекрытия доступа к двери исключена. Лучше, если окна выходят на запад, что облегчит проникновение в комнату достаточного количества солнечного света.
Если на дачном участке есть водоем, то после постройки бани в 15-20 м от него можно использовать вместо бассейна. Кроме того, наличие реки или озера в непосредственной близости от объекта обеспечит систему водоснабжения.

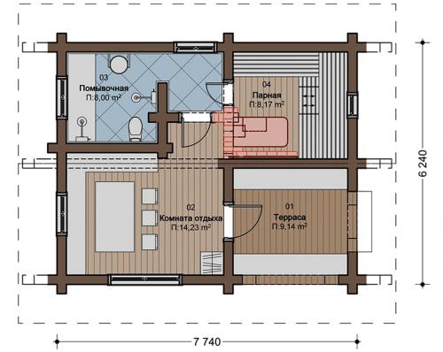
Размеры проекта сауны 7,74 х 6,24 метра
Для небольших участков (3-6 соток) подходят проекты санузлов 3 на 3, фото таких построек в изобилии на сайтах строительных компаний. Даже в таких компактных постройках парная остается основным помещением. Для организации этого помещения следует выделить максимально возможный объем пространства — примерно 8 м². Этого достаточно, чтобы установить 2-3 грядки (полочки) и поставить печь.
Остальные комнаты могут быть включены в планировку санузла 3х4м и более (по желанию). Конструкцию можно использовать по прямому назначению даже при отсутствии бильярдной или санузла. Баня не может существовать без турецкой бани. По этой причине разделение внутреннего пространства на функциональные зоны во многом зависит от масштабов проекта.

Сауны рекомендуется строить на расстоянии не менее 8 м от жилого дома
Если вам нужны дополнительные удобства, вы можете включить небольшую душевую или ванну в дизайн своей ванны размером 3 на 4 метра. После турецкой бани здесь можно смыть грязь и остыть. Типичные проекты характеризуются наличием комнаты отдыха, которая будет обслуживаться в перерывах между парными сеансами. Для его организации потребуется 4,5 м².
Пригодятся и другие помещения, например, гардеробная или тамбур. Они достаточно компактны, чтобы вместить бревенчатую сауну 5 на 5 вместе с основными помещениями.
Обратите внимание: размер купальной зоны на одного человека составляет 2 м².

Баня из вертикального бруса. Общестроительные работы
Решив провести полную революцию на своем дачном участке в шесть соток и взамен старого дома возвести новый, хозяева задумались о том, где же они будут жить во время строительства? И нашли выход из положения: «А поживем-ка мы в… бане. Построим сначала не дом, а банный комплекс — и попариться будет где, и гостей принять».
Этапы строительства русской бани.
«Революция» началась с создания проекта и сноса старого сарая, служившего хозблоком. В качестве материала для возведения стен бани был использован необработанный пиленый сосновый брус сечением 15 × 15 см. Брус на углах соединяли «в шип» (при этом концы не выходят за наружные плоскости стен). Такой метод выбрали потому, что коробку бани в дальнейшем планировалось утеплить и обшить.

Одноэтажное здание размером 11 × 5,5 м построили на ленточном фундаменте. Сборку стен начали с установки на фундамент (на проложенный в два слоя гидроизоляционный материал) обвязочного венца, который на углах соединяли вполдерева. После скрепления углов нагелями на обвязочный венец положили уплотнитель (льноджутовое волокно), а затем брусья следующего венца. Нагели (в данном случае — из березы) необходимы, чтобы соединить брусья друг с другом и предотвратить их скручивание. Крепление нагелями осуществляли в таком порядке. Просверливали три бруса с шагом 30–40 см, вставляли в отверстие нагель и забивали его молотком. Отверстия в стене делали по длине и высоте в шахматном порядке. На веранде в качестве вертикальных опор под несущие конструкции использовали брусья с компенсационными стальными домкратами. Одновременно со строительством наружных стен рабочие возводили и межкомнатные перегородки из бруса сечением 10 × 15 см.
Входную дверь в баню лучше сделать с южной стороны здания, что облегчит доступ к ней зимой, поскольку там бывает меньше сугробов и они быстрее тают
Следующий этап работ — создание стропильной конструкции. Для нее использовали брус сечением 20 × 5 cм. Крыша имеет сложную форму, представляющую симбиоз двускатной и вальмовой кровель. Поскольку чердак дома планировали сделать холодным, утепляли не кровлю, а потолочное перекрытие. На него уложили сначала пароизоляционный материал, затем слой теплоизоляции (10 см) из минеральной ваты, а после — настил из обрезной доски. На стропила с помощью контробрешетки прикрепили полотнища гидроветрозащитной мембраны, а поверх выполнили обшивку плитами OSB. Такого ровного, гладкого, сплошного основания потребовал выбранный хозяевами кровельный материал — гибкая черепица. Перед монтажом черепицы на торцевые части кровли, карнизные свесы и конек уложили подкладочный гидроизоляционный ковер. Свесы кровли защитили карнизными (капельники) и торцевыми планками. Далее приступили к настилу кровельного покрытия. Для уменьшения тонального дисбаланса предварительно перемешали содержимое всех шести упаковок черепицы. После ее укладки карнизные свесы обшили вагонкой и смонтировали водосточную систему из ПВХ.
Начало строительства бани. Построить баню можно самостоятельно: процесс возведения от «А» до «Я»
Любовь русского человека к бане сложилась исторически, ведь на протяжении многих веков это был традиционный и самый распространенный вид водных процедур на Руси. При самостоятельном ее возведении возникает масса вопросов: как и где на участке построить баню, из каких материалов, по какой технологии и т.д.
Мы постарались ответить на все эти вопросы максимально доступно.

Постройка бань на загородных участках – дело обычное.
Подготовка и фундамент
С чего начать
Постройка бани начинается с выбора места на участке.
Наиболее часто возникает следующая ситуация: «Хочу баню построить, но даже не знаю с чего начать, поэтому не начинаю».
Прежде всего, вы должны определить, сколько свободного места имеется на вашем участке, причем место это должно быть не где-нибудь, а в определенной позиции, которая будет соответствовать ряду требований:
- Согласно СНиП 30-02-97 и СНиП 2.08.01-89, а также СП 11-106-97 расстояние от бани до ближайшей постройки должно быть не короче, чем высота от земли до конька банной крыши, а это минимум 4 – 5 метров;
- Для садоводческих объединений и кооперативов определена такая норма: между баней и дачным домом расстояние должно быть не менее восьми метров;
- От ближайшего колодца следует отступить минимум 12 метров;
- До границ соседнего участка должно быть не менее 8-ми метров;
- Для сельской местности требования несколько мягче: между домом и баней – не менее 4-х метров, а до окон соседского дома – не менее 5-ти метров. До границ соседского участка – не менее 3-х метров;
- Если соседский дом построен из дерева – не менее 15 метров;
- До линии улиц или проездов – не менее 5-ти метров;
- До лесных насаждений и массивов – минимум 15 метров;
- До водоемов, рек, ручьев и т.д. – не менее 5-ти метров;
- На территории, отведенной под постройку, должны отсутствовать инженерные коммуникации и электропроводка, как воздушные, так и подземные;
- Зона обслуживания бани и ее внутренние помещения должны быть скрыты от посторонних глаз.