Баня 3 на 4 проекты с размерами. Возможные принципиальные подходы
Баня 3 на 4 проекты с размерами. Возможные принципиальные подходы

Возможная планировка компактной бани 3 на 4
Все бани можно разделить на три группы:
- в первую входят бани, основным способом обогрева в которых является сухой пар . В таких самая высокая температура воздуха – от 60 до 120 градусов, но совсем небольшая влажность – около 25%;
- во вторую, так называемые, сырые бани – в них уже главенствует пар, который при температуре в 50-70 градусов обеспечивает влажность от 75 до 100%;
- в третью – водяные бани . Здесь уже вовсю «хозяйничает» вода.
Среди этих трёх групп и размещаются следующие варианты бань из мирового опыта:
- Римская баня , как комбинация переходящих друг в друга пяти комнат. Первую можно назвать по-нашему, предбанником (хотя идея исходит от древних римлян). Вторую – «теплой», в ней температура повышается. Третья – «жаркая», здесь температура ещё выше. Четвертая – уже парная (как установлено, у римлян в ней температура была не менее 85 градусов). А пятая – разгрузочная, ароматическая.

Очень полезно в чертеж бани 3х4 включать и сноски на породу используемого дерева и его качество, как это принято в любом профессионально подготовленном чертеже
- Ирландская баня . Она очень похожа на римскую, но если та «последовательного» типа – комнаты идут одна за другой, то в ирландской все комнаты выходят в общий коридор, их обычно три, и, выходя из одной, посетитель может тут же последовать в следующую, более жаркую. Ну, или отказаться от продолжения процедур.
- Русская баня . Здесь все нам привычно и представленный выше проект «А» наглядный пример такой бани – предбанник, а к нему моечная и парная. В парной размещается печь.

Атрибуты русской бани неизменны в любые времена
- Финская баня , называемая ещё сауной. Здесь помещение одно, но с высокой температурой воздуха и малой влажностью.
- Японская баня — офуро . По нашим понятиям такую баню и назвать этим уважаемым словом нельзя – это просто бочка с горячей водой (до 60 градусов) и целебными травами. Мало кому удаётся просидеть в таком «помещеньице» больше 10 минут.
- Турецкая баня — хамам . Такие бани относятся к группе влажных и хорошо подходят для тех, кто не любит больших температур. Основным элементом такой бани является большой бассейн с горячей водой. Перед попаданием в этот бассейн посетитель попадает в несколько других с более холодной водой. Отличительной чертой турецких бань является очень хорошо подобранная и строго поддерживаемая температура во всех помещениях.

Баня турецкая тоже может иметь скромные размеры
Полезный совет! Прежде чем приступать к строительству бани, советуем внимательно отнестись к выбору её местоположения на участке.
Рекомендуем соблюдать следующие правила.
- Во-первых, располагать баню не ближе чем в 15 метрах от основного жилого здания, это требования техники безопасности.
- Во-вторых, по возможности, как можно ближе к водоёму.

Баня 3 на 4 с парилкой. Возведение бани по типовым проектам своими руками
Если ознакомиться с проектами, которые предлагают современные архитектурно-конструкторские компании, то среди них можно найти немало красивых вариантов негабаритных объектов. Наверняка среди них смогут подыскать для себя что-то интересное владельцы небольших приусадебных территорий, расположенных в пригороде. Как правило, планировка таких бань довольно скромная, ведь небольшие размеры не позволяют уместить в них всё, что бы хотел видеть владелец.
Бани размерами 3 x 3 и 3 x 4 метра пользуются популярностью у покупателей благодаря простой технологии сооружения и удобству сборки. Проектная документация составляется с учетом действующих норм и правил деревянного строительства и содержит точную смету материалов с указанием их количества и экономических затрат. При желании можно оформить заказ на строительство бани по индивидуальному проекту, который будет скомпонован в соответствии с предпочтениями клиента.
Проект постройки 3 x 3 метра
 Бани размерами 3 x 3 метра отлично подходят для небольших земельных наделов, поэтому прекрасно вписываются в ландшафт стандартного дачного участка площадью 6 соток . При строительстве загородного дома дачники пытаются сэкономить на всём, поэтому найти здесь просторные внутренние помещения крайне сложно. Поэтому вполне логично, что и комната отдыха, а также моечное отделение будут компактными.
Бани размерами 3 x 3 метра отлично подходят для небольших земельных наделов, поэтому прекрасно вписываются в ландшафт стандартного дачного участка площадью 6 соток . При строительстве загородного дома дачники пытаются сэкономить на всём, поэтому найти здесь просторные внутренние помещения крайне сложно. Поэтому вполне логично, что и комната отдыха, а также моечное отделение будут компактными.
Проект интерьера бани негабаритных размеров учитывает каждую мелочь. Правильно подобранные материалы для внутренней отделки создают атмосферу уюта и тепла. Как правило, здесь используют осину, кедр или липу . И хотя парная является довольно небольшим помещением, ее площади достаточно для того, чтобы быстро нагнетать пар, а это исключает перерасход топлива.
Проект постройки 3 х 4 метра
При составлении проектов для бань размерами 3 x 4 метра из профилированного бруса выбирается планировка, включающая три обязательных помещения:
- комнату отдыха;
- моечную;
- парное отделение.
При желании для таких объектов можно подобрать интересные проекты бань с верандой, которые могут быть оформлены вагонкой из осины. Веранда является полезным дополнением, поскольку помогает визуально увеличить пространство и без того небольшого помещения. Это, в свою очередь, создает более комфортные условия для отдыха.
Бани из профильного бруса пользуются большей популярностью, в отличие от срубов. Объясняется это тем, что эти объекты не подвержены усадке , что позволяет начать их эксплуатировать уже после завершения строительства.
Бан. 5 н. 3 на 4
Чем дальше — тем веселее. Планировки бани 3 на 4 внутри, конечно, не могут похвастаться такой вариативностью, как у решений с общей квадратурой полезной площади, превышающих 50 квадратных метров, но, тем не менее, позволяют грамотно распределить все необходимые функциональные зоны с единственно верной целью — сделать использование банного помещения действительно приятным и запоминающимся.
Разумеется, на общей площади в 12 квадратных метров трудно разместиться большой компании. Поэтому при размещении тех или иных зон следует учитывать наиболее вероятный факт: такой небольшой баней, скорее всего, будет пользоваться семья из 2-3 человек либо дружеская компания на столько же человек. Все, что свыше, так или иначе, но будет немного снижать уровень комфорта. Взглянем на варианты внутренней планировки бани 3 на 4 с объединенными мойкой и парилкой.




Если вы используете печь-каменку, то логично разместить ее между парной и предбанником, чтобы распространить тепло по всей площади постройки. К тому же, вынос топочной части в предбанник позволяет вам увеличивать температуру пара, даже не заходя в парную и не растрачивая, тем самым, тепло, которое так или иначе, но выходит через открытую дверь.
Особое внимание следует уделить оформлению парной:
- не располагайте верхний лежак чересчур высоко — есть риск, что человек будет ударяться головой о потолок, когда будет слазить;
- при обустройстве лежаков учитывайте, сколько человек будет регулярно пользоваться баней;
- не располагайте лежаки чересчур близко от печи в своем стремлении сэкономить место — это не только не приносит удовольствие, но даже опасно для жизни
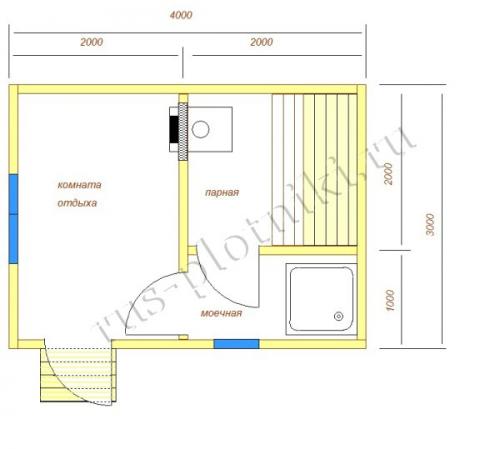
Вариант планировки 3х4 с мойкой и парилкой отдельно
Если проявить смекалку и некоторую инженерную хитрость, то можно осуществить внутреннюю планировку бани 3х4 с раздельным размещением мойки и парилки. В этом есть немало плюсов:
- принимать душ в прохладном помещении куда приятнее;
- возможность раздельного и одновременного использования моечной и парной;
- температура в парной всегда высокая, а пар — сухой и приятный.
Посмотрите на то, какие есть варианты планировки бани 3х4 именно с раздельной интеграцией двух зон.




