Бани с террасой и барбекю. Проект бани с беседкой, барбекю, бассейном или мангалом. ТОП-150 лучших фото-примеров построек из кирпича, бруса и пеноблоков
Бани с террасой и барбекю. Проект бани с беседкой, барбекю, бассейном или мангалом. ТОП-150 лучших фото-примеров построек из кирпича, бруса и пеноблоков
Планируете построить великолепную баню со всеми удобствами на своем дачном участке? Тогда почему бы не продумать все детали наперед и вместе с ней не соорудить комфортабельную беседку?
Так или иначе, но баня и беседка, расположенные в непосредственной близости друг от друга, а то и под одной крышей — это отличный вариант! Во-первых, такое строительство обойдется вам гораздо дешевле, чем если бы вы задумывали два проекта по отдельности. Во-вторых, быстрее достигните желаемого и сумеете удивить гостей.

Теперь к вопросу нужно подойти с профессиональной точки зрения, так сказать, посмотреть на все глазами архитектора. Сама по себе беседка представляет собой обычное строение, где роль несущих конструкций выполняют вертикальные стойки.
У нее нет ограничений по размерам и форме. Но вот если брать во внимание два разных типа конструкций и ставить их под одной крышей, то мы имеем дело с несколько иным типом здания, где, следовательно, работают другие правила и особенности при постройке.
Преимущества бани с беседкой
Начать, пожалуй, стоит с положительных моментов, которые вам может дать такая интересная постройка — как баня с беседкой под одной крышей.
- После пребывания в помещении с высокой температурой и не менее высоким уровнем влажности очень полезно будет закрепить лечебный эффект сидением на улице. Но чтобы не метаться из одного места в другое, можно с комфортом расположиться на лавочке в непосредственной близости с парилкой.
- Меньше времени и сил тратится на прокладку всех необходимых инженерных коммуникаций. Это выходит гораздо выгоднее и в финансовом плане. Например, для обустройства освещения достаточно будет запитаться от одного источника. Вам нужен всего лишь один силовой кабель и распределительный щиток.
- Для постройки одной цельной конструкции отводится гораздо меньше места, что помогает сэкономить место. Более того, можно решить вопрос, учитывая советы ландшафтного дизайнера касательно характеристик самого ландшафта.
- Стоит ли упоминать экономию времени, сил и денежных средств?
Особенности строительства бани с беседкой
Баня должна стать таким местом, где будет приятно проводить время. А для того, чтобы добиться максимального комфорта, необходимо оборудовать две комнаты. Причем в каждой должен быть свой санузел.

Когда перейдете к проведению проводки, не поленитесь обезопасить все таким образом, чтобы провода были в недоступном от влаги месте. Кроме того, вам понадобится сделать заземление. Для более качественного выполнения работ, воспользуйтесь услугами профессионалов.
Думая над будущим проектом, вы должны понимать, что одно помещение должно служить парилкой, а во втором нужно будет принять контрастный душ для увеличения лечебного эффекта после банных процедур. Поэтому такой комнатой отдыха может стать беседка, построенная под одной крышей с баней.

Уделив время на такое строительство, вы убьете двух зайцев одним выстрелом. Ведь в такой беседке, в зависимости от выбранного вами проекта, можно будет оборудовать место для мангала, барбекю или печи, чтобы после хороших посиделок можно было отлично перекусить вкусными блюдами.
Проект бани с верандой террасой и барбекю из кирпича. Баня из кирпича: плюсы и минусы

Баня – это незаменимое средство для расслабления после тяжёлого дня, отличное место для встречи с друзьями. Воспользоваться услугами строительной компании удобно, но выложить придётся крупную сумму.
Многие дачники предпочитают строить бани своими руками.
Преимущества и недостатки
Традиционно русские бани строили из дерева. В наше время всё чаще для таких целей используют огнестойкий кирпич, который более безопасен, при этом не менее экологичен. Данный строительный материал удобен в применении и позволяет воплотить в жизнь проект бани любой сложности. Перед началом строительства кирпичной бани необходимо ознакомиться с преимуществами и недостатками самого материала и строения из него.
Огнестойкий кирпич стоит дороже древесины, но и плюсов у него немало, а именно:
- высокий уровень пожарной безопасности – по степени огнеустойчивости кирпич значительно превосходит дерево. Огнеупорный кирпич отлично противостоит пожару, чего не скажешь о дереве;
- долговечность – баня, построенная из кирпича, может прослужить более 50 лет;
- экологичность – при изготовлении кирпича используется натуральное, природное сырьё, материал не представляет опасности для здоровья человека;
- простота в эксплуатации – не требуется особого ухода за кирпичным фасадом бани;
- применение кирпича позволит сооружать бани разнообразных форм и размеров, воплощать даже сложнейшие архитектурные проекты, использовать различные виды внутренней и наружной отделки. Прочность постройки позволяет экспериментировать с внутренней планировкой и формой крыши.
Проект бани с террасой и спальней. Особенности
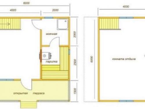
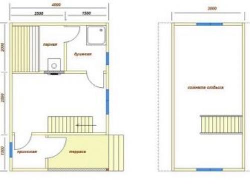
Проекты бани с комнатой отдыха можно разделить на три группы. Первая группа – традиционные одноэтажные бани. Они возводятся из капитальных строительных материалов с низкой теплопроводностью, имеют стандартный набор помещений: здесь есть парилка, душевая, комната отдыха, предбанник, иногда терраса.
Комната отдыха располагается на первом этаже рядом с парной и помывочной и соединяет в себе функции раздевалки. Это самый удобный вариант, который позволяет поддерживать оптимальную температуру во всех помещениях, так как печка равномерно обогревает все прилегающие комнаты с подачей пара в отделение сауны.
Такая планировка позволяет расположить топку печи и в парной, что не всегда удобно, и в комнате отдыха.
Истопник находится в комфортной температуре, к тому же легче убирать мусор после растопки. Современные технологичные печи длительного горения могут иметь стеклянный экран, что позволяет любоваться игрой пламени во время отдыха, создавая приятную каминную атмосферу и давая живое тепло обитателям комнаты. Простая планировка, тем не менее, включает все необходимое для банных процедур, имеет большую вариативность по площади.
Минимальная площадь строения – от 16 кв. метров , что удобно для небольших участков, максимальная – по желанию владельца. Этот варинант не требует больших капиталовложений из-за энергоемкости обогрева.
Вторая группа – проекты с комнатой отдыха, расположенной на мансарде или на втором этаже. Здесь потребуется возведение второго этажа или утепление кровли , что повлечет дополнительный расход материалов, фундамент потребуется усиливать на увеличение несущей нагрузки. Этот вариант удобен при небольшой площади строения.


На первом этаже размещают предбанник, раздевалку, парную, помывочную. На втором – комнату отдыха с балконом или без. Потребуется выделение пространства для лестничного марша. Красивая винтовая лестница может украсить интерьер бани.


Третья группа проектов – с вынесением комнаты отдыха на террасу. Такая планировка удобна для летнего использования. В холодное время года террасу потребуется застеклить и продумать систему обогрева. Однако такое расположение комнаты отдыха дает большой простор для воплощения дизайнерских решений.
Панорамный обзор пейзажа добавляет минутам отдыха эстетическое удовольствие.
Выбор планировки зависит от сезонности использования бани. Для круглогодичного применения подойдет первая и вторая группа проектов. Летом достаточно иметь комнату отдыха под навесом с гибким остеклением из пленки или поликарбоната для бюджетного варианта.
Большое значение имеет наличие свободной площади на участке, и если ее мало, то поднять на мансарду комнату отдыха будет хорошим выходом. Отопление второго этажа в холодное время года нуждается в устройстве воздушного или водного контура . Установка печи длительного горения с конвектором на первом этаже может решить эту проблему.
Размещение бани на участке должно отвечать нормам пожарной безопасности и удобству пользования. Окна комнаты отдыха желательно ориентировать на привлекательный видовой обзор . Приятно видеть красивые пейзажи перед глазами, а не забор или соседский сарай.
Желательно выбрать возвышенный участок для хорошей вентиляции и отвода воды . Эффектным дополнением может стать близость искусственного или естественного водоема.
Особое внимание уделяют материалам для строительства бани. Традиционно предпочтение отдается натуральному дереву в виде бруса или оцилиндрованного бревна липы, осины, кедра.
Сосна более доступна по цене, имеет красивый рисунок волокон сучковатой древесины и является популярным материалом для бани на даче. Недостатком ее является пористая структура древесины, которая сильно меняет показатели от нагрева и повышенной влажности, поэтому в парной и душевой сосну нужно обшить рейкой из твердых пород дерева, а для комнаты отдыха сосна с ее приятным запахом и эстетичным внешним видом будет оптимальным решением.
Кирпич – более дорогой материал, но он имеет самые лучшие показатели долговечности, устойчивости к перепадам температуры.
Бюджетную постройку можно возвести и из пеноблоков. Строительство бани из блоков можно выполнить своими руками, даже не имея специальных знаний.
Внутренние помещения обшиваются блок-хаусом, отделываются плиткой или натуральным камнем.
Оформление комнаты отдыха предполагает следование определенному стилю, в зависимости от дизайна подбирают отделочные материалы.