Баня из бруса с террасой. Обзор типовых проектов
- Баня из бруса с террасой. Обзор типовых проектов
- Дизайн бани с летней террасой. Преимущества бани с террасой, верандой
- Угловая баня с верандой и барбекю. Проект угловой бани: с террасой или беседкой, барбекю и бассейном
- Баня из бруса в чашу. Баня 5 на 6 м
- Баня с террасой под ключ. Баня 5х13 с большой террасой площадью 55 м
- Бани с террасами. Разработка плана бани с учетом условий дачного участка
Баня из бруса с террасой. Обзор типовых проектов

Прекрасно выглядит проект с открытой верандой на свайном фундаменте без цоколя, отмостки
Проекты с баней, террасой, верандой барбекю на даче, приусадебном участке — популярны, востребованы. Подобная комплектация включает все необходимые элементы для отдыха.

Проект бани 6 х 4 м c верандой
Банный комплекс состоит из трёх основных элементов: парилки, помывочной, предбанника. Дополнительно размещают раздевалку, комнату отдыха, террасу. Между парилкой и моечной устанавливают деревянную дверь. Популярны сейчас раздвижные стеклянные двери. В них предусмотрены ручки, которые не нагреваются.
Что нужно учесть в проекте бани и барбекю

Банный оздоровительный комплекс в усадьбе с размещением террасы возле пруда
Существуют СНИПы, которые определяют место здания по санитарным, пожаробезопасным нормам.
По СНИПам:
- удалённость от ограждения, забора — 3 м;
- при наличии колодца на территории приусадебного участка удалённость от бани – 8—12 м (чтобы не загрязнялись грунтовые воды);
- рекомендуемое расстояние до основной постройки, жилого дома — 8 м (из соображений пожарной безопасности).
Прежде чем выбрать проект бани с верандой, террасой, нужно учесть такие факторы:
- Прежде чем определиться с проектом бани с террасой, барбекю, необходимо подумать, сколько гостей будет отдыхать в оздоровительном комплексе . Это определяет габариты постройки, размер террасы для отдыха.
- Строение должно быть соразмерно участку, нужно соблюсти пропорции. Если только баня с террасой расположены не на отдельной территории.
- Будет ли баня с террасой эксплуатироваться в холодное время года. Когда используют в межсезонье, зимой, дополнительно необходимо оборудовать строение отсекающим тамбуром. Холодный воздух с улицы не попадёт внутрь помещения.
- Выбирают планировку, исходя из оборудования для бани: размера парилки; будет установлен мини-бассейн, купель или душевая кабина, чтобы окунуться после парилки. Варианты планировок предполагают наличие помывочной, санузла, комнаты для отдыха, раздевалки, прихожей (отсекающий тамбур), санузла. Туалет обычно делают в помывочной. Для того чтобы всё разместить, предварительно необходимо сделать чертёж в масштабе.
- Материальные возможности определяют затраты на застройку , подбор материалов, габаритные размеры постройки.
Дизайн бани с летней террасой. Преимущества бани с террасой, верандой
Веранда – небольшое открытое или закрытое сооружение с крышей. Она является частью банной конструкции, располагаясь с ней на одном фундаменте. Веранда строится вместе с баней либо позднее. Для террасы обустраивается собственный фундамент, другое, приподнятое над землей основание. Такая площадка выполняется закрытой, открытой, универсальной. Последний вариант пригоден для полноценного использования как летом, так и зимой.
Банька с верандой или террасой имеет множество преимуществ:
- на площадке перед баней можно организовать жарку шашлыков, барбекю, гриль;
- дружеские посиделки, семейный обед или ужин также удобен здесь;
- огромный выбор современных строительных материалов, дизайнерских решений позволяет создать постройку в любом стиле;
- расположить пристройку можно как сбоку банного помещения, так и между домом и баней, чтобы отдыхать, не отходя далеко;
- на территории площадки красиво разместятся растения в кадках, вазонах;
- грамотно выполненная постройка позволяет максимально соблюсти выбранную концепцию оформления ландшафта, не делая архитектурный ансамбль разобщенным;
- так как не придется сооружать отдельную крышу над площадкой для отдыха и местом помывки, а также соединять их дорожками, экономия времени и стройматериалов очевидна;
- с открытой террасы, веранды можно любоваться закатом или рассветом за чашкой чая, завернувшись в мягкий пледик;
- открытый бассейн легко расположить прямо на террасе.

На стандартной площадке размещают мангал, барбекюшницу, открытый каменный или кирпичный очаг, несколько лавочек или полноценных кресел, а также столики.
Угловая баня с верандой и барбекю. Проект угловой бани: с террасой или беседкой, барбекю и бассейном
В этой статье мы расскажем о том, как расположить баню на участке в угловой зоне. О планировочных решениях такой постройки и возможном использовании зон внутри и снаружи.
Также поговорим о зоне бассейна в комплексе и его плюсах.
Как правило основное место на участке отдается главной постройке – дому. И очень часто возникает ситуация расположения бани в одном из свободных углов приусадебной территории. Это расположение диктует несколько объемно пространственных и планировочных вариантов.
Мы расскажем с какими сложностями можно столкнуться при такой посадке бани. Ниже поговорим об одном из них.
Все о нашем проекте угловой бани
По заданию нашего заказчика нам предстояло решить непростую задачу – удобно расположить сразу несколько разных зон бани при её угловом расположении. Перечислим их для понимания:
- Зона отдыха с большим диваном с раскрытием на телевизор и стеклянную дверцу банной печки
- Бассейн, размером зеркала воды 8х3 метра
- Близкое расположение парной, душевой и санузла к бассейну
- Выход из помещения бассейна на террасу с барбекю
- Веранда с дровяником при входе
- Отдельное расположение топочной и котельной
- Передаточное окно для дров из топочной в комнату отдыха
- Открытая веранда для загара с шезлонгами
- Витражное остекление основных зон

В итоге наши специалисты придумали очень лаконичную планировку для угловой бани. При входе расположили дровяник на веранде. Также хранение дров предусматривается в специально отведенном помещении, откуда есть окно для подачи дров в зону отдыха. Такое решение позволит сохранить чистоту. А со стороны зоны отдыха передаточное окно выполнено в виде ниши. Её можно сделать вертикально или горизонтально – это будет эффектным элементом дизайна в современном стиле.
Вариант 1 с бассейном

Вариант 2 с террасой кухней и комнатой отдыха
Вариант 3 с террасой, гостевой комнатой, дровяником и котельной

У нас новая услуга — заполните небольшое тех задание и мы разработаем планировку первого этажа Вашей бани.
Близость бассейна к сауне позволит принимать «контрастные» водные процедуры. Для особо экстремальных посетителей, можно зимой место для загара превратить в специальную зону для ныряния в снег и расположить горячую ванну на улице — Японская баня «Офуро». Длина бассейна позволит заниматься любительским плаванием для поддержания иммунитета и здоровья членов семьи нашего заказчика.
Все зоны нашей бани очень удачно сообщаются между собой. Наш заказчик оценил предложенную планировку и остался очень доволен. Удобство и функционал – главные плюсы нашего предложения.
Вариант 1

Вариант 2 с открытой большой террасой

Вариант 3 с закрытой трассой в темном дереве
Внешняя архитектура банного комплекса исполнена в современном стиле. Модные вставки дерева на фасаде в сочетании с искусственным камнем и клинкерной плиткой на фоне белой декоративной штукатурки придают зданию стильный вид. Многоуровневая кровля повторяет зонирование планировочной структуры. Большие свесы кровли защищают фасад здания и формируют восприятие бани как добротного дома. Большие витражи дают много света и гармонируют в общем стиле.
Вариант 1

Вариант 2

Вариант 3 в темном дереве с гостевой

Вид на дровяник

Как удобно разместить барбекю или беседку под одной крышей в угловой бане с верандой?
Главный архитектор проекта совместно с заказчиком утвердили очень удачное решение – совмещенная беседка-барбекю с открытой площадкой для загара. Этот прием позволит отдыхать как под крышей, так и без — в зависимости от погоды. Открытая веранда может выполнять несколько функций. Например, её можно использовать как сцену. Вдруг компания детей захочет показать взрослым свою творческую нотку, и устроить показ спектакля – это легко можно сделать на открытой веранде. Она может стать центром притяжения всего комплекса!

В свою очередь, барбекю удобно расположена с торца корпуса с бассейном, под общей крышей. В ненастный вечер гости будут надежно защищены большими свесами кровли и уютным очагом печи со звуком потрескивающих дров.
Проект угловой бани – цены
Если Вам понравился наш проект современной бани в угловом расположении, мы предлагаем приобрести готовый эскизный проект. Архитектор выполнит привязку объекта на участке и Вам останется заказать у нас проект рабочих чертежей для возведения коробки бани. Или наши специалисты готовы разработатьпо Вашим пожеланиям.
Понравился проект бани? Приобретайте эскизный проект за 20 000 рублей. Бесплатно внесем корректировки в планировку без изменений 3д вида.
Проект угловой бани фото
В этом разделе статьи мы публикуем картинки банного комплекса с разных сторон.
Баня из бруса в чашу. Баня 5 на 6 м
Комплектация бани и её характеристики
- Фундамент столбчатый из пескоцементных фундаментных блоков — БЕСПЛАТНО (ленточный фундамент, свайно-винтовой фундамент, буронабивной фундамент, фундамент из ЖБ свай, либо выполняется заказчиком самостоятельно – либо по отдельному запросу нашей компанией). Обвязка из бруса с врубкой лаг для установки бани на винтовые сваи рассчитывается отдельно
- Сруб бани — пятистенок из бревна хвойных пород древесины (сосна, ель) диаметром 220-300 мм — внутри тесанный (полулафет)
- Крыша покрывается временно рубероидом (под усадку)
- Фронтоны крыши зашиваются вагонкой
- Стропильная система
- Обрешетка из обрезной доски
- Лаги пола из бревна, подготовленного под нашивку полов и потолков (выровнены в горизонталь)
- Балки перекрытия из бревна, подготовленного под нашивку полов и потолков (выровнены в горизонталь)
- Межвенцовый утеплитель — мох, пакля или льноджутовое полотно
- Метизы
- Сруб внутри разделен на две комнаты. При необходимости можно добавить шестую стену, отделив помывочную от парной. Так же возможна любая планировка по желанию заказчика.
- Тип крыши: чердак под двускатной кровлей с высотой конька 1.5-1.8 м
- Обрешётка из обрезной доски в зависимости от материала кровли
- Крыша прямая двускатная. По желанию заказчика крыша может быть мансардной,ломаной, вальмовой или односкатной
- Кровля профлист, металочерепица, гибкая черепица
- Возможен вариант бани с выпуском под террасу
- Возможна пропитка полностью после сборки вручную, шлифовка до пропитки, грунтовка и покраска пожеланию заказчика
Так же мы готовы предложить Вам проведение внутренних и наружных отделочных работ, в том числе отделку бани под ключ. Любые отделочные работы выполняются после усадки сруба.
Баня с террасой под ключ. Баня 5х13 с большой террасой площадью 55 м
Стоимость строительства бани под усадку
* (цена указана без учёта доставки на место )
БАЗОВАЯ КОМПЛЕКТАЦИЯ БАНИ ПОД УСАДКУ ИЗ МАТЕРИАЛА ЕСТЕСТВЕННОЙ ВЛАЖНОСТИ (ВКЛЮЧАЯ СБОРКУ И ДОСТАВКУ):
- Сруб – брус 150 х 150 мм (1 этаж),брус профилированный 145 х 145 мм (1 этаж).
- Все перегородки – брус 100 х 150 мм (1 этаж),брус профилированный 0.95 х 145 мм (1 этаж).
- Балки половые и потолочные – брус 100 х 150 мм (через 60 см под размер утеплителя).
- Перегородки второго этажа каркасные, устанавливаются после усадки дома (в стоимость не входят).
- Черновой пол 1 этаж – доска 25 х 150 мм.
- Черепной брусок для чернового пола брус 50 х 50 мм.
- Фронтоны крыши – доска 25 х 150 мм (зашиваются доской по каркасу. (имитация профилированного бруса 22 х 145 мм).
- Стропильная система – доска 50 х 150 мм (через 60 см под размеру утеплителя).
- Обрешетка крыши – доска 25 х 150 мм.
- Обработка нижнего венца и половых лаг антисептиком.
- Покрытие крыши рубероидом.(возможен замен на гидропароизоляцию под металлочерепицу).
- Высота 1-го этажа в чистоте – 2,3 м (в чистоте от балки до балки).
- Все расходные материалы (деревянные нагеля, льноволокно (джут), гвозди, скобы, рубероид).
- Бесплатная доставка по Московской области и до 600 км от нашей производственной базы.
- Сборка стен сруба на деревянные нагеля (шканты);
- Рубка угловых соединений в "ласточкин хвост" (теплый угол)
- Монтаж окон, дверей, покрытие полов, лестницы и утепление крыши осуществляются через 6-7 месяцев (после полной усадки сруба) и в комплектацию не входят.
СТОИМОСТЬ ПОДКЛАДОЧНОГО ВЕНЦА НА СВАЙНЫЙ ФУНДАМЕНТ
Брус - 150х200 мм с пропиткой антисептиком - в подарок
Проект бани с большой террасой под ключ предлагает реализовать в Москве, области или в любом другом городе ЦФО РФ, строительная компания “Древ-Брус”. Общая площадь бани составляет 55 кв. м. Перед входом внутрь спроектирована огромная терраса – 21 кв. м. Внутреннее пространство разбито на тамбур, санузел, комнату отдыха (10 м2), парную (9 м2) и помывочную (9 м2).
- Глубина заложения - 70 см, в т.ч. песчаная подушка 20 см.
- Ширина ленты 40см.
- Высота цоколя над уровнем грунта 50 см.
- Каркас арматуры 10-12 мм.
- Опалубка - доска 40х150 (25х150).
- Заливка бетон М-300.
СТОИМОСТЬ ЛЕНТОЧНОГО МЕЛКОЗАГЛУБЛЁННОГО ФУНДАМЕНТА : 223 тыс. руб.
Краткое технологическое описание:
Предоплата на бани из обычного бруса -1%
Предоплата на бани из профилированного бруса - 1%
Мы принимаем к оплате только наличные денежные средства.
При возведении стенового комплекта дома (коробки дома) оплачивается:
- 1 - 5% при заключении договора,
- 70 - 75% при доставке материала на участок заказчика,
- Полный расчет при сдаче и подписании актов выполненных работ.
Выезд специалиста для заключения договора - БЕСПЛАТНО. Тел.: +7 (910) 192-40-85
- Осмотр участка и подъездных путей,
- Обсуждение проекта дома, комплектации, сроков строительства,
- Заключение договора на строительство дома или бани,
Обеспечим электричеством на участке
Бензогенератор бесплатно, бензин оплачивается заказчиком (Используется при отсутствии электричества на участке.)Бытовка
Для рабочих монтируется бытовка 2х4. Стоимость 18 000 р.Бани с террасами. Разработка плана бани с учетом условий дачного участка
Чтобы создать идеальные условия для отдыха в бане, необходимо учесть некоторые нюансы, которые позволят избежать проблем при эксплуатации помещения. Желательно, чтобы зона строительства располагалась на суше с низким уровнем наличия грунтовых вод. Перед тем как приступить к разработке проекта, необходимо сразу исключить все участки, не соответствующие этому условию.

Проект сауны 5 х 7 метров с открытой террасой
Если на территории есть колодец, то расстояние между ним и баней должно быть не менее 5 м. Минимальное расстояние между парилкой и жилым домом — 8 м. Дальше от бани компостная яма и туалет расположены, тем лучше. Специалисты рекомендуют заходить с южной стороны. Зимой здесь образуется меньше сугробов, поэтому возможность перекрытия доступа к двери исключена. Лучше, если окна выходят на запад, что облегчит проникновение в комнату достаточного количества солнечного света.
Если на дачном участке есть водоем, то после постройки бани в 15-20 м от него можно использовать вместо бассейна. Кроме того, наличие реки или озера в непосредственной близости от объекта обеспечит систему водоснабжения.

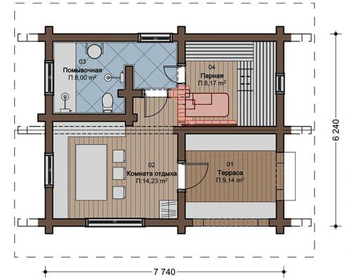
Размеры проекта сауны 7,74 х 6,24 метра
Для небольших участков (3-6 соток) подходят проекты санузлов 3 на 3, фото таких построек в изобилии на сайтах строительных компаний. Даже в таких компактных постройках парная остается основным помещением. Для организации этого помещения следует выделить максимально возможный объем пространства — примерно 8 м². Этого достаточно, чтобы установить 2-3 грядки (полочки) и поставить печь.
Остальные комнаты могут быть включены в планировку санузла 3х4м и более (по желанию). Конструкцию можно использовать по прямому назначению даже при отсутствии бильярдной или санузла. Баня не может существовать без турецкой бани. По этой причине разделение внутреннего пространства на функциональные зоны во многом зависит от масштабов проекта.

Сауны рекомендуется строить на расстоянии не менее 8 м от жилого дома
Если вам нужны дополнительные удобства, вы можете включить небольшую душевую или ванну в дизайн своей ванны размером 3 на 4 метра. После турецкой бани здесь можно смыть грязь и остыть. Типичные проекты характеризуются наличием комнаты отдыха, которая будет обслуживаться в перерывах между парными сеансами. Для его организации потребуется 4,5 м².
Пригодятся и другие помещения, например, гардеробная или тамбур. Они достаточно компактны, чтобы вместить бревенчатую сауну 5 на 5 вместе с основными помещениями.
Обратите внимание: размер купальной зоны на одного человека составляет 2 м².
