Баня с летней кухней. Преимущества комбинированных объектов
- Баня с летней кухней. Преимущества комбинированных объектов
- Баня с летней кухней проект. Варианты проектов
- Сколько стоит построить баню с летней кухней. Примеры построек до 40 м 2
- Баня с жилой комнатой и кухней. Плюсы и минусы планировки
- Баня с кухней и террасой. Что должно быть в бане с кухней?
- Баня с летней кухней под одной крышей. Преимущества бани с летней кухней
- Кухня в баню. Экономия плюс удобство
Баня с летней кухней. Преимущества комбинированных объектов
Еще на этапе составления чертежа конструкции все плюсы подобного соседства видны налицо. Ведь баня, совмещенная с летней кухней, увеличит функциональные возможности всего помещения, а в умелых руках станет оригинальным декоративным элементом дачного участка.
Пользователи часто ищут :
- Баня с беседкой под одной крышей
- Летняя кухня с беседкой
Кроме этого:
- Если строительные работы будут вестись на общем фундаменте и под одной крышей, уменьшаются затраты на стройматериалы. А это значит, что общая стоимость конструкции обойдется гораздо дешевле.
- Единая система отопления дома и хозпостройки – экономия энергоресурсов в несколько раз.
- Грамотное составление проекта бани с летней кухней сократит площадь используемого участка земли.
- Такое здание легко превратить в гостевой домик, предусмотрев там комнату для отдыха, а террасу либо веранду – в кухню на свежем воздухе.
- Если согласно плану, постройка вплотную прилегает к основному дому в таком случае не нужно беспокоиться о создании дорожек, которые бы соединяли конструкции между собой.
- Возможность круглогодичного применения.
- Усовершенствование существующего сооружения и дополнение его другими комнатами не потребует существенных затрат.
- Близкое расположение к дому упростит процесс подведение коммуникаций.
- Самостоятельная разработка дизайна постройки прибавит интерьеру индивидуальности, передаст характер и увлечение его жителей. Кроме этого, экономятся денежные средства на наем специалистов этой сферы.
- Удобное место для приема гостей в теплое время года, а если террасу застеклить, то посиделки с друзьями можно проводить даже зимой, греясь у печи либо камина.
Баня с летней кухней проект. Варианты проектов
План объединенной постройки, в основном, исходит из площади территории. Ее размеры могут доходить до десяти метров по одной стене.

Баня с кухней из дерева
Виды проектов:
- Кухня в бане. Даже в самое небольшое помещение можно уместить парную, душевую, комнату для отдыха, уборную. Подобная планировка предусмотрена для небольшой семьи. Чтобы сэкономить место, устанавливают раскладные диван и кресла, что позволяет оставаться здесь на ночь;

- Баня с летней кухней и террасой. Здесь предусматривается кухня закрытого типа, размещенная в обособленной комнате. Подобное решение уместно для тех, кто желает иметь на придомовой территории помимо бани, домик для гостей. Если есть тамбур, то баню можно посещать и в холодный период времени. Здесь можно разместить компактную парную, просторную помывочную, санузел. Если позволяет место обустраивают купель или маленький бассейн. На террасе часто устанавливают гриль или барбекю;
Заметка для читателя! Возможно вам также будет интересно посмотреть проекты летних кухонь с барбекю и печью .

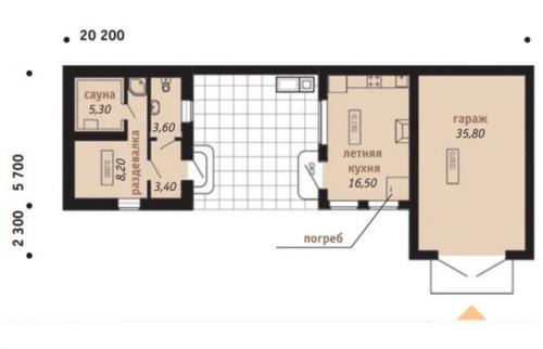
- Гараж с баней и летней кухней. Такой проект уместен при наличии отдельного дома, но при отсутствии гаража и бани. Группировка этих построек сохраняет полезное пространство. Гараж с баней лучше разделять летней кухней, чтобы избавиться от возведения усиленной гидроизоляции, а также спасти гараж от повышенной влажности, присущей банной зоне;


- Двухэтажная угловая баня с кухней. На нижнем этаже расположены основные комнаты – кухня, гостиная, уборная, тамбур, котельная и парная. На втором этаже размещена спальня с отдельным санузлом. Важную роль здесь играет расположение лестницы – ее делают удобной, не сильно крутой и не занимающей много полезного пространства. Таким образом, подобное сооружение не только выполняет свои основные функции, но и выступает отличным местом для проживания небольшой семьи;

- Баня с летней кухней, верандой и санузлом под одной крышей. Это решение также является аналогом полноценного загородного коттеджа. В нем найдется все для проживания — кухня, комната отдыха, санузел и для отличного отдыха – парная, помывочная, раздевалка, тамбур, терраса с летней кухней. Подобное строение подходит для всесезонного использования. Летом организуют пикник на летней кухне, даже в ненастную погоду, так как у террасы имеется крыша. А зимой проживают в доме, где тоже есть своя кухня;


- Зимний вариант. Если по периметру строения провести отопительные трубы от водонагревателя, то им можно пользоваться круглый год. Теплоэнергия от топки обогревает все пространство. Здесь предусматривается баня с сухим паром для уменьшения влажности, а для сушки делают качественную вентиляцию. Есть небольшая раздевался, кухня-гостиная с обеденной зоной и просторная веранда;

- Двухэтажное строение с мансардным этажом. У такой постройки компактные размеры и большая полезная площадь. На первом этаже расположена кухня, гостиная, тамбур, санузел, парная и помывочная. На мансардном этаже сделана спальня. Труба от печки поддерживает комфортную температуру на мансарде.


Сколько стоит построить баню с летней кухней. Примеры построек до 40 м 2
Нашли свободный уголок на своем земельном участке, можно построить на нем небольшую, но весьма функциональную летнюю кухню, совмещенную с баней площадью до 40 кв. м. Представляем вашему вниманию готовые проекты таких построек, что-то из этого вы вероятно «возьмете на вооружение».
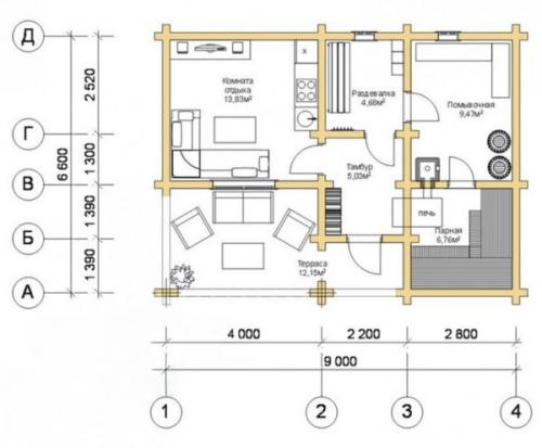
В данном случае на рисунке выше вы видите проект летней кухни совмещенной с баней и террасой. Общая площадь постройки 32,34 м 2 .
Несмотря на небольшие размеры, данное сооружение имеет все, что нужно для полноценного мытья, отдыха и приготовления пищи.
В наличии небольшая парная, проект содержит ее точные размеры 2400х2450 мм. К парной примыкает душевая таких же размеров. Есть летняя кухня 4200х3400 мм, разделенная на две функциональные зоны: приготовления пищи и отдыха. Ну и конечно, имеется небольшая терраса 4200х1500 мм, на которую можно выйти, подышать воздухом или устроить перекур.
А это проект супер небольшой бани с летней кухней, которая займет площадь всего 22,08 кв. м., весьма неплохой вариант для дачи и материала для строительства уйдет немного. Размеры всей постройки 4800х4600 мм. Возводится сооружение из бруса, деревянной доски и рейки. Подобных кухонь с банями довольно много, поскольку в столь ограниченное пространство удается поместить все необходимое :
- парилку или сауну;
- раздевалку или предбанник;
- зону кухни и гостиную;
- веранду.
Бани с кухней больше 40 м 2
Любителям отдыхать с комфортом придется отвести участок под баню с летней кухней побольше. В данном случае каких-либо ограничений не существует. Бывают проекты площадью 45, 50, 60 или даже 80 и 100 м 2 . Такие размеры достойны просторного жилого дома не то, что бани с летней кухней. Вот примеры просторных сооружений, совмещающие баню или сауну с летней кухней.
На рисунке выше баня с зоной кухни площадью 45,19 м 2 . Вся постройка разделена на две части: закрытую и открытую. В закрытой части располагается парная, помывочная, туалет, комната отдыха и тамбур, ну а открытая часть состоит из просторной террасы и зоны кухни. Примечательно то, что в этой уникальной бане, совмещенной с кухней, зона приготовления пищи и топка находятся рядом. Дело в том, что печь в данном случае служит для приготовления пищи и одновременно для того, чтобы греть каменку, находящуюся в парной – очень удобно и экономно.
Ну а эта просторная баня с зоной кухни имеет размеры небольшого жилого дома 51,7 кв. м. В закрытой части строения имеется довольно просторная душевая, парилка, просторный предбанник, он же комната отдыха, санузел и тамбур. Под открытым же навесом располагается печь, мангал, барбекю и большой стол со стульями. Сооружение изготовлено из клееного бруса – это экологически чистый материал, который отлично держит тепло, что очень ценно для бани.
На этом проекте представлена огромная баня с бассейном и летней кухней. Помещение с бассейном самое большое 32,3 м 2 , а вся постройка имеет площадь 94,5 м 2 . Второй по размеру является комната отдыха, совмещенная с кухней. Последней отводится небольшой уголок, а остальное пространство отведено дивану и обеденному столу. Парная в данном случае замечательная, просторная и располагается удобно рядом с комнатой отдыха.
Также имеется душевая, туалет, насосная, тамбур и довольно большая терраса.
Куда менее грандиозную баню вы можете видеть на рисунке выше. Ее площадь 66,24 кв. м. В углу строения располагается парная, рядом душевая, комната отдыха и тамбур. Тамбур выходит на террасу площадью 15 кв. м. На ней располагается мангал и круглый обеденный столик, за которым можно съесть свежеприготовленный шашлык прямо на свежем воздухе. Баня возведена полностью из калиброванного бревна и выглядит просто замечательно.
Итак, какой-бы проект вы не выбрали, помните, что баню с летней кухней наполняет не шикарная обстановка, а тепло сердец ваших друзей и родственников. Устраивайте почаще праздники для себя и своих близких, а просторная баня это лишь средство для того, чтобы сделать себя и других чуточку счастливее!
Если у вас есть дача или загородный дом, вы можете сэкономить средства и соорудить уютное место для отдыха, совместив летнюю кухню с баней.
Помещения такого типа – многофункциональны: здесь можно устраивать семейные завтраки, обеды и ужины, проводить время с друзьями, отдыхать на свежем воздухе и даже работать.
Благодаря близости помещений вы сможете проводить в этой зоне максимум свободного времени, но для того, чтобы ощущать себя комфортно, придется учесть некоторые детали.
Баня с жилой комнатой и кухней. Плюсы и минусы планировки
Все тонкости планировки стоит предусмотреть заранее, чтобы потом не возникало вопросов. Если на начальном этапе определиться, что баня будет с комнатой отдыха, то минусов у нее быть не должно, а плюсов сколько угодно. В бане всегда должны присутствовать парилка, моечная и предбанник. Все остальное уже зависит от площади, которая отведена под строительство здания. Плюсы тогда очевидны. Комната отдыха позволяет:
- полноценно отдохнуть после банных процедур;
- принять гостей и хорошо провести время;
- при необходимости комната отдыха в бане может временно послужить гостевой для задержавшихся друзей;
- в комнате можно хранить необходимые вещи для бани в специальном шкафчике;
- можно с помощью зонирования найти уголок, где можно приготовить несложные блюда.

Минусы планировки с комнатой отдыха могут возникнуть лишь от неправильно продуманного плана. Например, будет большим недостатком, если при входе в баню человек сразу попадает в комнату отдыха. Из-за этого тепло в помещении будет выветриваться быстрее, особенно в холодное время года, да и загрязняться это пространство будет быстрее. Поэтому все-таки нужен хотя бы небольшой предбанник.

Минусом может стать и слишком маленькая комната, но в этом случае нужно думать, какому помещению выделить больше места – парилке, моечной или комнате отдыха. Это зависит от того, сколько времени предстоит проводить в бане, сколько человек будет ею пользоваться одновременно.

Конечно, плюсами любой планировки станет, если к основным помещениям можно добавить не только комнату отдыха, но и отдельную кухню, спальни, бильярдную или, возможно, бассейн. Но все это зависит от возможностей хозяев участка.

Баня с кухней и террасой. Что должно быть в бане с кухней?
Каждый видит проект бани, соединенной с кухней под одной крышей, по-своему. Один может довольствоваться совмещенной постройкой площадью в 30 кв. м, где будет небольшая парилка, маленький предбанник и терраса с мангалом и столиком. Для другого немыслима совмещенная постройка без большой парилки, истопной, комнаты отдыха, зоны приема пищи, купели и кухни. В целом основные требования к бане, совмещенной с кухней, у людей умеренные и сводятся к тому, что такая постройка должна иметь:
- парилку, желательно просторную, чтобы на полок мог свободно лежа поместиться как минимум один человек;
- душевую, где можно было бы ополоснуться после посещения парилки;
- предбанник, где можно было бы свободно поставить диван и стулья со столиком;
- закрытую раздевалку, хотя бы небольшую, чтобы можно было зайти и спокойно переодеться одному человеку;
К сведению! Небольшая закрытая кабинка для переодевания, размещенная в предбаннике, сильно облегчит вам жизнь, если вы планируете посещать парилку разнополой компанией.
- зону приготовления еды, иными словами место, где можно было бы поставить мангал, печь, барбекю, столешницу, мойку, в общем, все, что нужно для приготовления пищи;
- обеденную зону, то есть место, где бы можно было эту пищу потребить. Обеденная зона должна быть достаточно просторной, чтобы поместить в ней большой стол и стулья.
Вышеуказанный список уже позволяет получить представление о будущей летней кухне с баней. Чтобы подкрепить это представление мы рассмотрим готовые проекты таких построек и возможно, вы все-таки созреете на возведение чего-то подобного у себя на участке. Если вам интересен вопрос, как построить летнюю кухню на даче своими руками , можете почитать одноименную статью на нашем сайте.
Баня с летней кухней под одной крышей. Преимущества бани с летней кухней
- Стоимость. Проект бани с летней кухней является относительно дешевым, т.к. этот совмещенный вариант не подразумевает наличие морозостойких материалов и утепляющих элементов. Наличие огромного ассортимента продукции на строительных рынках и магазинах, дополнительные материалы, оставшиеся от предыдущего возведения зданий, помогут задействовать все остатки и значительно сэкономить средства.
- Быстрое строительство. Баня с кухней и гараж под одной крышей построятся значительно быстрее, чем все эти сооружения по отдельности. Грамотно продуманный интерьер поможет соединить в одном помещении несколько зон для приятного времяпрепровождения за минимальные сроки, т.к. для этого не понадобится несколько планов, да и строительные материалы не потребуют большого количества отходов после обрезки. Всю работу можно сделать на одном дыхании.
- Экономия пространства. Проекты бань с летней кухней имеют весомое преимущество в плане экономии пространства, т.к. одно здание требует гораздо меньше места, чем несколько отдельно стоящих. Поэтому такое сооружение можно поставить даже на территориально небольшом участке. Ведь гараж и баня, оснащенная летней кухней, требуют отдельного подъезда либо подхода, а совмещенный вариант позволяет ограничиться одним общим.
- Наличие свободного места. Кухня в бане, беседка и гараж прекрасно сосуществуют в одном помещении, поэтому преимущество очевидно. Хозяева могут выбрать размеры по своему усмотрению, отталкиваясь от размеров территории участка, функционального назначения сооружения и своих материальных возможностей. Эта постройка максимально демократична, потому предполагает совмещение различных комбинаций. Баню с летней кухней и террасой можно совместить с жилой комнатой для отдыха и организации спальных мест в теплое время года. К данному проекту также можно присоединить гараж, бассейн, бильярдную и т.д.
- Функциональность. Интерьер совмещенных зон бани, кухни и гаража позволяет создать из подобного строения целый комплекс услуг для приятного времяпрепровождения. Правильно продуманный план поможет максимально удобно расположить функциональные секции. Например, русскую печь можно расположить в стене между кухней и баней таким образом, чтобы на ней можно было готовить еду и разогревать парилку. Это позволит вдвое сэкономить расход дров, угля или другого сырья для растапливания бани.
Кухня в баню. Экономия плюс удобство
- Весь комплекс будет базироваться на одном общем фундаменте , как известно единый фундамент не только проектировать, но и закладывать гораздо легче, чем несколько построек в разных местах.
- Весь комплекс будет находиться под одной объединенной крышей , что значительно удешевляет и облегчает процесс строительства.
- Площадь внешних, несущих стен, имеющих приличную толщину и которые необходимо вдобавок хорошо утеплять уменьшается в разы , что влечет за собой значительное уменьшение расходов на стройматериалы.
- Отпадает необходимость в обустройстве десятков метров дорожек соединяющих отдельные строения .
- Кухня в бане может исполнять роль комнаты отдыха и в этом случае вам не потребуется после парилки идти в соседнее здание, дабы попить ароматного чаю или закусить шашлыком.
- Гараж и баня с летней кухней хорошо сочетаются на маленьких дачных участках , на тех самых пресловутых Горбачевских шести сотках, где кроме строений хочется еще и садик с огородиком разместить.
- С точки зрения законов стилистики и архитектуры один комплекс вписать в общий ландшафт участка гораздо легче , нежели несколько строений.
- Имея единую систему отопления вы значительно снижаете затраты на обогрев здания .
- В едином комплексе очень удобно устраивать семейные торжества и принимать гостей круглый год .
- Обеспечить водоснабжение и выведение стоков в одном здании намного проще .
- Проще сделать электрическую разводку в комплексе , чем разносить ее по нескольким, отдельно стоящим помещениям.
- И наконец, по времени, построить одно здание быстрее и проще, нежели несколько .