Бюджетная баня своими руками. Из чего дешевле построить баню своими руками
- Бюджетная баня своими руками. Из чего дешевле построить баню своими руками
- Баня своими руками из подручных материалов. Экспресс-баня своими руками. Как сделать парилку из подручных материалов
- Баня своими руками из блоков. Технология постройки бани из блоков
- Каркасная баня своими руками. Как построить каркасную баню самому: преимущества и особенности самостоятельного строительства
- Бюджетная баня из бруса своими руками. Недорогие технологии строительства бань
- Баня 2х3 своими руками. Фундамент
- Самая простая баня своими руками. Выбор проекта
- Мини баня своими руками: чертежи. Миниатюрные каркасные баньки — оптимальный выбор
Бюджетная баня своими руками. Из чего дешевле построить баню своими руками
Баня на большинстве дачных участков представляет собой небольшую постройку, вмещающую только парную и в лучшем случае душ. Такие проекты очень просты в исполнении и дешевы.
Доступные материалы для возведения бюджетной бани
Маленькую баню можно построить дешево из подручных материалов
Бюджетная баня своими руками сооружается из самых разнообразных материалов. Это обширное поле для проявления смекалки и творческой жилки.
К самым популярным относятся следующие материалы.
- Доски – предпочтительнее лиственные породы, наподобие липы или осины. Для средних и северных широт больше подходит брус, так как он толще. Однако в южных районах или для летней баньки подойдут обычные струганые доски толщиной не более 25 мм. Смета такого проекта минимальная.
- Древесные материалы – деревянный каркас постройки зашивают листами ОСБ, фанеры, ДСП. Изнутри парилку нужно отделывать вагонкой, поскольку фанера или ОСБ чувствительны к влаге и перепадов температуры не выдержат. Это проект летней баньки.
- СИП-панели – представляют собой слой утеплителя, обычно минеральной ваты, между двумя слоями фанеры или ОСБ. Теплоизоляционные свойства панелей выше всяких похвал. Однако проблема с влагочувствительностью остается: парилку следует отделывать изнутри досками.
- Ячеистый бетон – газобетон, неавтоклавный пеноблок, древесный бетон. Такие модификации строительного камня отличаются меньшим весом, более высокими теплоизоляционными свойствами и куда более низкой ценой. Из блоков сооружают полноценные зимние постройки в любом районе, где температура опускается ниже нуля. Однако самодельная блочная баня нуждается в хорошем утеплении.
- Поликарбонат – весьма экзотичный вариант, вполне пригодный для летней постройки. Материал превосходно хранит тепло, устойчив к высокой температуре и влажности.
Баня своими руками из подручных материалов. Экспресс-баня своими руками. Как сделать парилку из подручных материалов

Стационарные бани - это хорошо, а если хочется попариться на природе во время турпохода?
Эти советы пригодятся и самодеятельным туристам, отправившимся в палаточный поход, и садоводам, которые еще не успели возвести капитальную баню, и просто любителям загородных вылазок, справляющим выходные на природе.
Главное в любой бане, в том числе и наспех сконструированной, это наличие замкнутого со всех сторон помещения для сохранения тепла. Его размеры зависят от имеющихся под руками материалов.
«Была бы прочна палатка…»
В походе баню обычно делают прямо в одной из палаток. Раньше, когда их выпускали из обычного брезента, палатку-баню накрывали листами полиэтилена снаружи и выстилали ими же внутреннее пространство. Полимерная пленка создает парниковый эффект и служит для более быстрого прогрева помещения.
Теперь палатки производят из прорезиненной ткани, которая не нуждается в дополнительной влагоизоляции. Однако бывалые туристы устраивать в них баню не советуют: ткань не рассчитана на высокие температуры и при сильном нагреве выделяет токсичные вещества. Сгодится разве что тропический или пустынный вариант, но для использования в наших широтах их вряд ли кто станет приобретать. Поэтому прежде чем использовать ультрасовременную палатку в качестве сауны, надо четко знать ее характеристики, в частности, влияние жары.
Но можно обойтись и без палатки. Хватит одной полиэтиленовой пленки.
«Для начала из деревянных жердей или толстых прутьев от палатки возводим каркас. Он может быть как прямоугольной формы, так и в виде вигвама. На остов натягиваем полиэтилен и крепим скотчем или обычными прищепками для белья, - рассказал инструктор по туризму Юрий Соколов . - Можно накрыть каркас хвойным лапником или ветками с густой листвой. Такое сооружение дольше держит тепло».
И жар, и пар
Однако кроме жара в традиционной русской бане должен быть и пар. А его невозможно получить без камней. Их можно использовать в двух вариантах: по-белому, и по-черному.
В первом случае, камни нагреваются вне палатки. Их можно положить в обычный таз и поставить на огонь, или навалить горкой и поверх них разжечь дрова, или соорудить подобие миниатюрной пещеры, в которой развести костер и сделать отверстие для выхода дыма. Для этих целей рекомендуют использовать камни средних размеров – сантиметров 10-15 в длину. Мелкие быстро охладятся, а крупные придется дольше прогревать.
Как только булыжники раскалятся, их лопатой переносят в палатку и кладут в какую-нибудь емкость, или на специально выложенный другими камнями пятачок. Затем, как в обычной русской бане, нагретые камни обдают водой или квасом, и наслаждаются образовавшимся паром.
Минус бани по-белому в том, что после одной-двух таких процедур камни придется менять. Поэтому вариант баньки по-черному более практичный.
В этом случае сначала делается каменная пещерка, в которой разводится огонь. А уже над ней ставится обернутый полиэтиленом каркас.
«Это идеальный вариант для парилки на природе, - поделился своим опытом рыболов-спортсмен, организатор рыболовных соревнований и фестивалей Евгений Замятин . – Для каменки делаем яму глубиной в полметра и обкладываем ее крупными камнями. Наверху оставляем отверстие для дыма. Внутри разводим костер. Спустя час-полтора можно ставить каркас с пленкой. Чтобы внутри не было дыма, можно дать дровам прогореть и убрать из каменки угли. После этого можно париться».
Для комфорта и аромата пол в такой мобильной бане можно выстлать хвойным лапником или листвой, а внутри, если позволяет размер помещения, соорудить импровизированные лавки: на древесные чурки положить спиленные вдоль отрезки бревен или поставить обычные складные стульчики.
Дёшево и сердито
Сейчас для любителей вылазок на природу производители предлагают готовые мобильные бани – с печкой, трубой и палаткой из специального материала. Однако помимо высокой цены – цена начинается от 7 тысяч рублей в варианте без печи, они имеют еще один недостаток – это дополнительный вес и объем.
Садоводы, у которых нет капитальной бани, могут попробовать необычное решение: устроить баню прямо в теплице. Правда, в этом случае подойдет только вариант «по-белому», с переноской камней извне, так как сооруженная внутри каменка может повредить обшивку теплицы, особенно если она собрана из поликарбоната.
Баня своими руками из блоков. Технология постройки бани из блоков
Иметь собственную баню – очень удобно и практично, ведь ею можно воспользоваться в любой момент. В последнее время распространилось строительство бани из блоков своими руками – это выгодное и практичное решение.
- Блоки легко повредить, поэтому при разгрузке надо быть осторожным.
- Удобство в эксплуатации.
- Для строений из блоков в обязательном порядке нужно делать облицовку. Без нее природные катаклизмы постепенно разрушат баню. В качестве облицовки можно использовать обычную штукатурку.
- Большой срок использования.
Важно! Во время облицовки здания из блоков необходимо оставлять воздушное пространство. При его отсутствии водные испарения не смогут выходить наружу. Не следует допускать высокую влажность в бане.
Преимущества и недостатки бани из блоков
Баня из блоков, как и все строения, имеет свои плюсы и минусы:
| Преимущества | Недостатки |
| Высокая теплопроводность. Блоки обладают хорошей теплоизоляцией и морозоустойчивостью. | Высокая восприимчивость перед влагой. |
| Не нужно строить мощный фундамент, благодаря маленькому весу. | |
| Высокая прочность. | |
| Паропроницаемость. Блоки сохраняют в бане нормальный уровень влажности. | Менее экологична, чем баня из дерева. |
| Устойчивость к огню, в отличие от дерева. | |
| Низкая цена материалов. | |
| Легкость в строении. С возведением бани из блоков справится любой человек не имевший опыта в постройке. | Невозможность построения высоких бань. |
| Может использоваться сразу после завершения строения. |
Преимуществ в блоках намного больше, чем минусов. Они легкие и прочные.
Виды блоков
Для строения бани в первую очередь нужно выбрать вид блока. Вот самые распространенные:
- Газобетонные блоки. Они бывают с меньшей и большей плотностью. Для небольшой бани подойдет первый вариант. Баня из таких блоков будет прочная и морозостойкая.
- Пеноблоки. Также имеют ячеистую структуру. Очень маленькие по весу и большие по объему. Требуют капитальной гидроизоляции.
- Газосиликатные. Состоят из бетона и извести, ровная поверхность. Также, как и пеноблоки, обладают высокой гигроскопичностью.
- Шлакоблоки. Они были популярны в свое время до появления альтернатив. Очень неровная поверхность. Отличаются дешевизной. При нагревании некачественные шлакоблоки могут выделять опасные вещества в воздух.
- Керамзитобетонные. Похожи на шлакоблоки, но вместо шлака в них добавляют керамзит. Не требуют большой гидроизоляции, имеют маленький вес. Керамзитобетонные и шлакоблоки имеют меньший размер, чем пеноблоки или газосиликатные блоки.
- Арболитовые. Самые экологичные из всех представленных, благодаря добавлению опилок в состав. Высокая теплоизоляция и маленький вес, но повышенная восприимчивость к влаге.
- Поризованные керамические. Редко используются в стройке зданий из-за высоких цен, в основном для внешнего оформления.
Лучшие блоки для бани
Есть несколько критериев выбора блоков:
- Чем больше плотность у блока, тем меньше теплоизоляция.
- Керамические, газовые и пеноблоки менее прочные, чем остальные виды.
- Обязательно нужно смотреть на срок эксплуатации, к примеру, шлакоблоки – самые недолговечные.
Обратите внимание! Эксперты советуют брать для бани керамзитобетонные блоки. Самая высокая прочность, средняя теплоизоляция и плотность, большой срок эксплуатации и невысокая стоимость – идеальный середнячок из всех вариантов.
Как рассчитать количество блоков
Чтобы рассчитать количество материалов, необходимо составить проект будущей бани: указать высоту, длину и ширину строения, а также толщину стен.
Для расчёта материалов существуют специальные строительные онлайн-калькуляторы, где нужно вбить параметры, и он выдаст требуемое число материалов.
Как сделать баню своими руками из блоков
Для начала нужно подготовиться к будущему строительству:
- Выбор места. Желательно выбирать равнину, если с грунтовыми водами, то глубоко расположенными. Чем ровнее местность, тем менее прочный фундамент придется строить. Баня не должна располагаться рядом с домом, колодцем и компостной ямой. Расстояние до ближайшего дерева – не менее 15 метров.
- Составить чертеж в подробностях. Определить для будущей бани количество комнат, дверей, окон и т. д.
- Согласование проекта бани в административных органах. Без нее баню в любой момент могут снести.
- Подготовить инструменты и материалы.
Фундамент

Следует выбирать вид фундамента в зависимости от типа грунта:
- Самый распространенный и подходящий для бани – заглубленный столбчатый. Он универсальный и легкий в построении.
- Для неровной местности подойдет свайный столбчатый фундамент. Он дешевый и также легкий в обслуживании.
Очень важно выбрать правильный фундамент – без него не начнется ни одна стройка.
Каркасная баня своими руками. Как построить каркасную баню самому: преимущества и особенности самостоятельного строительства
Благодаря доступности и быстроте возведения каркасная баня пользуется спросом у дачников и владельцев частного сектора. Это отличное место как для сезонного, так и для круглогодичного отдыха.можно заказать у специалистов или же соорудить ее с нуля своими руками.

- Экологичность сырья. Основной материал – дерево. Внутри бани всегда будет приятный аромат натурального дерева.
- Под строение не нужно заливать массивный фундамент . Вполне хватит столбчатого основания или винтовых свай (в зависимости от типа грунта).
- Конструкция прогревается быстрее, в отличие от кирпичных или бревенчатых бань.
- Экономия топлива. Дров для хорошей протопки такой бани потребуется в 2–3 раза меньше, чем для кирпичной.
- Невысокая цена на материалы.
- Возможность строительства в любое время и погоду.

Из минусов каркасной бани:
- Для круглогодичной эксплуатации строение придется утеплять, что повлечет дополнительные траты.
- Необходимы наружная и внутренняя отделка конструкции.
- Баня нуждается в периодической антисептической, огнезащитной обработке.
- Велика вероятность усадки бани спустя 1,5–2 года. Усадка может быть до 10 см. Из-за этого происходит деформация отделки внутри и снаружи.
Чтобы предотвратить существенную усадку конструкции, для строительства нужно применять доски и другие пиломатериалы, которые сушили камерным способом.
Варианты проектирования бани
В начале строительных работ разрабатывается проект будущего сооружения. Сделать это можно самостоятельно, взяв за шаблон один из готовых чертежей в интернете. Есть хорошая альтернатива, которая сэкономит время, – заказать проект у специалистов. Эта же команда займется и пошаговым возведением под ключ.

В продаже есть готовые модульные баньки, которые просто собираются по принципу конструктора и не нуждаются в наружной или внутренней отделке.
Бюджетная баня из бруса своими руками. Недорогие технологии строительства бань
Чтобы построить баню своими руками дешево и красиво, проекты необязательно должны быть сложными и дорогостоящими. Подойдите к вопросу строительства грамотно. Передовые строительные технологии позволяют за 1-2 месяца соорудить моечную, парилку и комнату для отдыха без привлечения бригады строителей.
Недорогими вариантами, чтобы построить каркасную баню своими руками, являются:
- каркасные конструкции. Представляют собой остов из бруса или бревна большого сечения, зашитый досками, ОСП-панелями с утеплительным слоем внутри. Технология строительства каркасной бани напоминает бутерброд. Баня на каркасной основе при своевременном ремонте прослужит более 20 лет;
- бани из пенобетона. Строительный процесс возведения стен напоминает кирпичную кладку. За счет небольшой массы блоков вам не потребуется спецтехника для подъема грузов. Чтобы построить баню из пеноблоков своими руками, достаточно 2-3 человек. Ряды из пеноблочных элементов и пространство между ними промазывают бетонным раствором. Блочная конструкция прослужит не менее 50 лет при регулярном ремонте и обновлении отделки;
- сооружение из бруса. Коробку будущей бани собирают из венцов. Деревянный брусок, благодаря правильной геометрической форме, не требует подгонки. Между собой брусья закрепляют нагелями. Пространство между каждым элементом заполняют утеплителем. Срок эксплуатации – не менее 30 лет.
| Основной материал для стен | Срок эксплуатации | Сроки возведения | Экологичность | Бюджетность | Пожаро- безопасность |
| Каркас | От 20 лет | 1-2 недели | Низкая | Самый дешевый вариант. Коробка обойдется от 20 тыс. руб. | Высокий класс опасности |
| Блоки | От 50 лет | 1 мес. | Высокая | В зависимости от проекта цена на коробку от 50 тыс. руб. | Низкая пожарная опасность |
| Брус | От 30 лет | С усадкой 1 год, без усадки 1-2 мес. | Высокая | В зависимости от размеров стоимость коробки от 30 тыс. руб. | Высокий класс опасности |
Сооружения из кирпича и бревна требует возведения мощного фундамента, который выдержит большую нагрузку тяжелых стен и крыши. Для строительства из пенобетона, бруса, каркасных конструкций достаточно мелкозаглубленного ленточного основания, блочных опор или площадки из винтовых свай.
Баня 2х3 своими руками. Фундамент
Если земельный участок располагается на каменистых, гравийных, либо плотно-песчаных почвах (то есть, они сухи и плотны), а грунтовые воды залегают на солидных глубинах, то деревянные бани 2 на 3 устанавливаются на простом, столбчатом фундаменте, возводимом прямо на коренном грунте.

Столбчатый фундамент
Строительство происходит следующим образом:
- выбранная строительная площадка освобождается от растительного слоя;
- места, где будут находиться углы банного сруба, а также в точках сочленения внешних и внутренних стен, закладываются крупными плоскими камнями, небольшими бетонными плитами, либо кирпичной кладкой;
- водруженные столбы «ровняются» с помощью цементного раствора;

Возможен вариант на трубах
- обустраивается гидроизоляция. Для этого применяется горячий битум и 2 рубероидных слоя. Теперь можно укладывать нижний венец сруба.
Существует более доступный дешевый способ монтажа столбчатого фундамента. В этом случае строится баня своими руками 2х3 на деревянных, вертикальных столбах-стульях.
Нижняя, заглубляемая часть обжигается или пропитывается гудроном, расплавленным битумом. Лучше, если столб будет стоять в бетоне.

В основании деревянный стул
Обратите внимание! Чтобы сруб бани не гнил снизу, нижний венец (оклад) смолится, покрывается гудроном, пропитывается антисептиком. При наличии пропитанных железнодорожных шпал, именно они используются в качестве подкладок.
Для заполнения промежутков между столбиками используется бутовый камень, кирпичная кладка, смесь мятой глины и рубленой соломы. По периметру обустраивается бетонная отмостка.
Самая простая баня своими руками. Выбор проекта
Вы можете составить план будущей бани самостоятельно, заказать чертёж или найти готовый вариант. Если вы планируете строительство небольшой бани своими руками, то найти подходящий чертёж не составит труда. Если же вы хотите сложную конструкцию с многочисленными комнатами, то лучше заказать готовую схему. Специалисты учтут все ваши пожелания и особенности участка.
Сделайте максимально подробный чертёж с указанием всех комнат, перегородок, окон и дверей, а также показателями размеров.
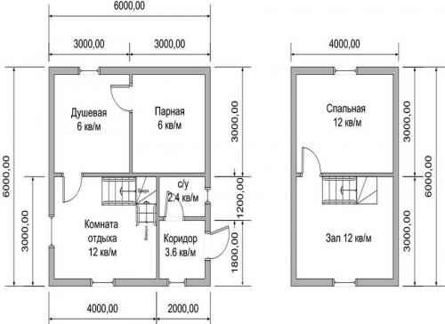
- Самым оптимальным вариантом проекта бани считают бани «6 на 4». Как правило, они включают следующие помещения:
- предбанник (он сохранит тепло внутри бани, а также позволит выделить место для хранения дров для отапливания)
- комнату отдыха (где можно разместить стол и стулья или же диван для времяпрепровождения в кругу друзей после посещения парной)
- парилку (самая важная часть бани, ради которой вы и занялись её постройкой)
- моечную (помещение, предназначенное для обмывки после парной комнаты)


- Существуют также проекты бань «6 на 6» и «4 на 4».


- Можете построить баню на своё усмотрение как в 1, так и в 2 этажа, а также дополнить её другими помещениями: бассейном, балконом, террасой.

- Для небольших участков подойдут бани «3 на 3». Такие проекты помогут вам получить компактную, комфортную и оборудованную всем необходимым баню. Обычно такие варианты предполагают наличие лишь двух комнат: отдыха, которая объединена с предбанником, а также совмещённую парную и моечную.
- Для обладателей крупных участков и больших потребностей существуют и огромные бани «10 на 10». В её стенах можно разместить всё, что пожелает душа: кухню, спальню, санузел, тренажёрный и бильярдный залы, да и вообще, что посчитаете нужным.

- Сэкономить место поможет проект угловой бани. Самым главным её плюсом является то, что печь, как правило, располагается в угловой комнате и способна отопить гораздо большую площадь.

- Проекты бани с террасой очень популярны среди любителей попариться и одновременно оставаться в контакте с природой. Террасу можно оборудовать столиком и уютными креслами, где можно наслаждаться горячими напитками и свежим воздухом.

Занимаясь планировкой будущей бани, учитывайте предполагаемое количество людей. И всегда лучше продумывать про запас.
Мини баня своими руками: чертежи. Миниатюрные каркасные баньки — оптимальный выбор
Мини-баня на загородном участке — прекрасный вариант для экономии площади. Правда, одновременно попариться в помещении 3х3 или 3х4 получится лишь у пары человек. Тем не менее, это самый быстрый и недорогой вариант постройки. За основу проще всего взять готовый проект каркасной бани. Можно объединить раздевалку, душевую и парилку в одном помещении. Или предусмотреть более удобный проект с отдельной парилкой, помывочной и комнатой отдыха.

Малогабаритные каркасные бани 4х3 или 4х4 — лучший выбор:
- для экономии на стройматериалах (брус 6 метров режут пополам, получается безотходная стройка);
- скоростного возведения конструкции (всего пару недель затрачивают на строительство при условии готового проекта);
- крепости готового сооружения (при закупке качественной пропитанной древесины каркасная баня простоит очень долго).
Баня до 20 кв. м — рациональное использование площади
Если есть возможность построить каркасную баню 6х6, ее обязательно нужно использовать. Стандартные чертежи включают парную, душевую, комнату отдыха, небольшой коридорчик и санузел. Если разработать проект с мансардой, получите дополнительную жилплощадь на втором этаже. Ее можно использовать под гостевую, бильярдную или спальню.

Техдокументация для проектов каркасных бань площадью 20 кв. м предполагает организацию опорно-столбчатого фундамента с блоками из бетона , основание должно быть надежно гидроизолировано. На пол укладывают черновой настил (22-миллиметровая обрезная доска), затем чистовое покрытие в виде 30-миллиметровой шпунтованной доски. Антисептическую обработку и утепление 10-сантиметровой минватой нужно обеспечить в обязательном порядке.
Стены, перегородки и перекрытия делают из бруса 150х100 мм, используется также доска 100х50 мм и 100х40 мм. Вагонка после камерной обработки идеально подходит для обшивки потолка и перегородок. Десятисантиметровые плиты минеральной ваты и пароизоляция в два слоя укладываются под обшивку.

Для обустройства стропильной системы предназначена доска 100х50 мм, для обрешетки — 22 мм. Для кровельных работ лучше взять ондулин с волновым профилем Выбор оконной системы — деревянной или металлопластиковой — остается за владельцем. Для парной надо приобрести дровяную печь с баком для воды, продумать кирпичную кладку там, где будет располагаться топка.
Вот такие чертежи и планы можно использовать для возведения каркасной бани своими руками.



Индивидуальные проекты позволяют реализовать практически любые пожелания будущего владельца. Есть возможность присоединить к бане веранду или террасу. И даже в чертежи готовой документации можно вносить небольшие корректировки. Компании по разработке проектов предлагают следующий ряд услуг:
- объект под ключ — проект каркасной бани с заводской сборкой стен и перегородок, полной отделкой внутренних стен и фасадов;
- черновая отделка — облицовка или фасада, или внутренних стен;
- без облицовки — базовая сборка из щитов.