Бани из бруса. Как самому построить баню из бруса с нуля: сложности и нюансы процесса
- Бани из бруса. Как самому построить баню из бруса с нуля: сложности и нюансы процесса
- Проект бани из бруса 3х4. Проекты бань из бруса 3х4 – отличительные особенности
- Проект бани из бруса 6х4. Планировка бани 6x4 — идеи, материал, этажность
- Гостевой дом-баня под ключ недорого. Только в нашей строительной компании вы найдете:
- Бани из бруса проекты. Проекты бань. Чертежи и фото
Бани из бруса. Как самому построить баню из бруса с нуля: сложности и нюансы процесса
Баня из бруса ‒ украшение загородного участка и уютное место для отдыха. Приятную атмосферу в ней создает природный аромат древесины. Такая банька может состоять из парной и предбанника или же быть гостевым домом с бассейном и мансардным этажом.

Размеры и планировка строения выбираются исходя из его назначения, наличия свободной площади и финансовых возможностей хозяев.
С навыками работы с деревом и соблюдением пошаговых инструкций мастеров можно сделать брусовую баню своими руками.
Какая порода дерева лучше
От качества приобретенного сырья зависит срок службы готового сооружения.

Поверхность бруса должна быть гладкой, без трещин. Наличие пятен черного, синеватого оттенка свидетельствуют о начале гниения древесины. Такой материал использовать для стройки нельзя. Не подойдет и брус с явными признаками порчи насекомыми, жуками-короедами.
Лучшей породой для бани считается лиственница из-за ее устойчивости к влажности. Материал с годами только набирает прочности.
Но из-за высокой цены на сырье построить полностью баньку из этой породы не всегда возможно. Поэтому оптимальное решение ‒ выложить нижние 2‒3 венца из лиственницы, а для последующих рядов взять более дешевый брус других хвойных пород (сосны, ели).
Проект бани из бруса 3х4. Проекты бань из бруса 3х4 – отличительные особенности
У вас есть загородный дом или дача, и на территории прилегающего к ней участка вы планируете построить небольшую парилку с душевой? В таком случае, вам необходим проект бани из бруса 3х4.
Такая постройка при малых габаритах характеризуется рациональным расположением помещений и удобством эксплуатации.

Типовой проект 3х4
Что собой представляет проект бани

Разновидность типового чертежа
Строительство любого здания предполагает наличие проектной документации. На основе правильно разработанного проекта можно составить смету строительных материалов. В результате, можно будет избежать недостатка или перерасхода стройматериалов, что благоприятно отразится на себестоимости готового результата.
Кроме того, проект — это точная инструкция, на основе которой можно будет с максимальной точностью рассчитать объём предстоящих работ и, как следствие, выяснить предварительные сроки их реализации.
Важно: проектная документация является необходимым условием для беспроблемной постановки строительного объекта на учет в кадастровых органах.

3D-модель бани
Типовые проекты бань из бруса 3 на 4включают следующую комплектацию:
- Опорно-столбчатый фундамент (при необходимости могут быть указаны другие типы основания,соответствующие тому или иному типу почвы);
- Несущие внешние стены из профилированного клееного или цельного бруса 140×90 мм;
- Внутренние каркасно-щитовые перегородки;
- Потолки бани высотой 2,20 метра;
- Окна: 1 шт — 800×800 мм, 1 шт — 600×600 мм;
- Банные двери – 2 шт, филенчатые двери – 1шт;
- Утепленные двойные полы ISOVER или URSA с толщиной 50 мм;
- Настил пола дощатый из строганной шпунтованной доски толщиной 27 мм;
- Кровельная система с применением материалов марки ONDULINE (цвета по каталогу RAL);
- Стропильная система, простроенная с применением бруса 100×50 мм, с шагом 1 метр;
- Потолочное перекрытие бани на основе утеплительных материалов ISOVER или URSA толщиной не менее 50 мм;
- Парилка,обшитая вагонкой (осина)с подкладкой из пароизолирующего фольгированного материала;
- Двухъярусные полки в парилке;
- Моечное помещение с душевым поддоном.
Важно: по желанию заказчика в проекты бани 3х4 из бруса могут быть внесены те или иные изменения, которые повлияют на комплектацию и на стоимость постройки.

На фото объект, возведённый по типовому проекту
Проекты бань 3 на 4 включают такие помещения как:
- Комната отдыха – 5.04м²;
- Парная – 3.33м²;
- Душевая – 1.81м².
Судя по назначению помещений, можно предположить то, что такая баня — это оптимальный вариант для эксплуатации в теплое время года. Для всесезонного применения постройки комнату отдыха придется использовать в качестве предбанника. Можно дополнить это помещение перегородкой и разделить комнату отдыха на небольшой предбанник и на помещение для отдыха.
Преимущества

Баня 3х4 – вид сверху
Выбор проекта бани 3 на 4 гарантирует ряд преимуществ, среди которых:
- Невысокая цена стройматериалов за счет их малого количества и экономного расходования . Брус от большинства производителей выпускается с длиной балки 6 метров. Таким образом, на стены протяженностью 3 метра брус пилится надвое и применяется без отходов.
- Сжатые сроки реализации строительных работ . Проектная документация, как вы уже могли убедиться, не изобилует сложными элементами и трудновыполнимыми архитектурными решениями. Поэтому справиться со строительством в соответствии с планом будет несложно даже своими руками.
- Долговечность и надёжность постройки . Проекты бань 3на 4, независимо от комплектации,предусматривают использование высококачественных современных строительных материалов, которые позволяют достичь оптимальных результатов.
- Отсутствие трудностей при регистрации объекта в кадастровых органах . В принципе баню можно и не ставить на учет. Но, если вы впоследствии планируете выгодно продать свой загородный дом на рынке вторичной недвижимости, лучше оформить постройку официально. Постановка бани на учет также необходима для ее страхования. Регистрация бани,построенной без проекта,потребует дополнительных временных и материальных трат, в то время как наличие проектной документации существенно упростит процедуру.
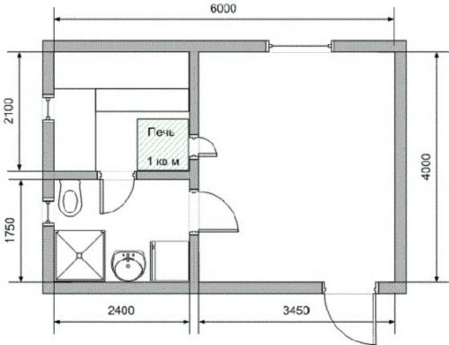
Проект бани из бруса 6х4. Планировка бани 6x4 — идеи, материал, этажность
О чем задумываются владельцы коттеджей и загородных домов? О том, как хорошо было бы поставить баньку. Ведь это SPA-салон в собственном распоряжении. А какая площадь должна быть?
В маленькой будет тесно, большая будет быстро остывать и усилий на поддержание микроклимата придется прикладывать много. А вот баня 6×4 метра – один из оптимальных размеров.
Строить баню самим? Почему бы и нет, если есть талант к строительному делу, необходимое оборудование и много сил. Купить? Такой вариант тоже хорош, поскольку получаете уже готовый банный комплекс. Но точно ли все устроит?

Сами будете строить или закажете готовое здание, проект бани 6×4 вам понадобится. Предлагаем несколько фото с размерами и внутренней планировкой. Так можно визуально представить, где вы и гости будут париться, где принимать душ, переодеваться и отдыхать.
План бани может быть один, а вариантов исполнения несколько в зависимости от материала для строительства стен. А если что-то не устраивает, можно внести дополнения в проект в виде веранды или террасы внизу или мансарды наверху.
Планировка бани 6×4 метра
Что должно быть в бане помимо самой парилки и сеней? Забудем темные и тесные деревенские строения, как помещения для купания. Сегодня баня – это место отдыха, поэтому план бани 6×4 должен быть хорошо продуманным. Что в него включить?


- Парная. Здесь стоит печь, находятся лавки с лежаками. Обычно парная занимает вторую по величине комнату и находится, как правило, в углу здания.
- Душевая. Находятся мойка и парилка отдельно, иначе либо парилка остынет, либо душ не принесет желаемого облегчения.
- Предбанник – место, где можно оставить вещи.
- Комната отдыха – самое большое по площади помещение. Здесь и удобные диваны, кресла и стол, и телевизор. Включив фантазию, можно украсить комнату живыми цветами и комнатным водопадом.
Комната отдыха внутри самой бани – отличное место для зимнего времяпрепровождения. А летом будет приятно посидеть на открытой террасе, в межсезонье – на застекленной веранде. Стоит продумать этот момент и спроектировать план бани 6×4 с террасой или верандой. С фото таких вариантов мы поможем.
Хочется в бане иметь помимо стандартных помещений еще и бассейн? Планировка бани 6×4 может учитывать и это. В таком случае понадобится второй этаж или мансарда. На них можно оборудовать раздевалки, комнату отдыха или душевую, а парилку или бассейн оставить снизу. Вдохновляйтесь фото-идеями.



Подробней о помещениях
Классическая баня 6×4 имеет три помещения.

Комната для отдыха, парная и душевая
Предбанник
Здесь гости раздеваются, тут же в ящиках хранится уголь или дрова для печи, а на полках веники.

Для экономии места предбанник часто объединяют с гостевой комнатой, расставляя здесь мебель, устанавливая телевизор и другие приборы, накрывая стол.
Его площадь в идеале – из расчета на 1 человека по 1,3 кв.м + место для хранения банных принадлежностей и вещей.
Важно! В комнате отдыха должно быть окно.
Парилка
В помещении стоит печь – натуральная, газовая или электрическая. К стенам крепятся полки. Здесь требования иные – минимум по 1 метру на каждого + печь + расстояние от печи до стен и проходы.

Идеальная высота – 2-2,1 метра. Если потолки будут выше, пар будет занимать лишнее, неиспользуемое пространство. Если ниже – накапливаясь, горячему воздуху понадобится выход, и он улетучится в вентиляцию. Ширина полок – 40-90 см.
Важно! Дверь должна открываться не в парилку, а из нее, то есть в комнату отдыха. В противном случае в предбаннике будет высокая температура и влажность.
Как могут париться гости и хозяева в парной, приведено на схеме ниже.

Как правильно париться
Душевая
В зависимости от размера помещения, здесь можно установить душевую кабинку, туалет, вмонтировать душ в стену.

Обогреваться душевая может той же печью, что и парилка (если у них смежная стена).
Выбрав планировку с учетом необходимых помещений в бане и их размерами, нужно определиться с материалом, из которого и будет возводиться комплекс.
Баня из бревна
Баня из бревна – это классика. И наиболее популярны оцилиндрованные бревна. Деревенские парилки как раз и возводили из сруба.

Прелесть таких комплексов в том, что дерево – материал здоровый, экологически чистый. Возводится такая баня в рекордные сроки. Если бревна обрабатываются механическим способом, а не вручную, стоимость их невелика. Сэкономить можно и на внутренней отделке – дерево само по себе прекрасно. А для пожаробезопасности и противостояния грибкам бревна обрабатываются специальными растворами.
Недостатки появятся, если компания, вызвавшаяся поставить баню, не просушила бревна, поэтому через некоторое время здание «поведет», или неправильно выбрала дерево: хвойные породы «плачут», дуб может растрескаться от жары.
Гостевой дом-баня под ключ недорого. Только в нашей строительной компании вы найдете:
Огромный выбор проектов. В нашем каталоге более 200 готовых проектов бань. Мы предлагаем деревянные дома и бани под ключ, в каталог внесены проекты гаражей и беседок из бревна, деревянных баз отдыха. Каждый эскиз хорошо продуман, планировки и фасадные решения опробованы на практике. У нас есть угловые бани под ключ, цена на которые не выше, чем на квадратные бани. Одна из таких компактных бань - это баня «Лесная» , визуализация которой представлена ниже.

Индивидуальное проектирование. В нашей компании работают сильные архитекторы, которые проектируют оригинальные бани под ключ за две-три недели. Работа ведется в лицензионной программе «АТ-Венцы» до полного утверждения Заказчиком. В первую очередь разрабатывается архитектурный раздел новой бани под ключ, куда входят виды и разрезы будущего сруба в четырех проекциях. Также здесь есть план фундамента и кровли, спецификации на заполнение оконных и дверных проемов. Конструктивный раздел – это кладочные планы, развертки бревенчатых стен, карты раскроя пиломатериалов (бревно, стропильная система и перекрытия) и другие файлы для производства и строительства. На фото - одна из страниц проекта: фасад бани в осях А-Е. Состав проекта сруба от компании «Русские Хоромы» представлен здесь .

Доступные цены. Бани под ключ от производителя «Русские Хоромы» по низким ценам – это реальность! Благодаря спецификациям и картам раскроя из проектной документации, создаются точные и прозрачные сметы. У нас в собственности есть две производственные базы, а также мы сами заготавливаем лес. Эти факторы позволяют придерживаться разумной ценовой политики и предлагать стоимость бани под ключ ниже, чем в среднем в Москве. Наш прайс на строительство домов и бань из бревна представлен на этой странице . К примеру, стоимость строительства одноэтажной бани по проекту «Ландыш» обойдется от 1,1 млн. рублей в зависимости от диаметра бревна и комплектации. Цена на стеновой комплект на двухэтажную баню «Майорка» начинается от 3 млн. руб. На фото, представленном ниже, запечатлен процесс сборки бани «Майорка» из оцилиндрованного бревна диаметром 260 мм.

Бесплатный авторский надзор. Во многих компаниях – это платная услуга. На наших объектах контроль над точным соблюдением СНИП и проектных наработок ведется на всех этапах: от рубки сруба или производства оцилиндрованного бревна для современной бани под ключ, до окончания отделочных работ и подписания Акта Приема Передач.

Оптимальный выбор древесины. Строю баню под ключ из разных пород древесины – это не фантастика, а реальность! Наша компания предлагает универсальную схему строительства: закладной венец из влагостойкой лиственницы, а стены из ангарской сосны. Для аромата и здоровья по периметру стен мы предлагаем пустить один-два венца сибирского кедра. Заказчики могут выбрать ручной сруб или оцилиндрованное бревно диаметром от 200 мм до 700 мм. На фотографии - рубленная баня из кедра диаметром 400 мм по проекту «Сицилия» : монтаж окладного венца из сибирской лиственницы.

Источник: https://bani-iz-brusa.postroivsesam.info/stati/banya-pod-klyuch-s-pechkoy-obustroystvo-bani
Бани из бруса проекты. Проекты бань. Чертежи и фото
Проекты бань. Чертежи и фото Проекты бань. Чертежи и фото

Нет ничего лучше, чем отдых на даче или в загородном доме. Особенно если в этот отдых включено такое наслаждение для тела, как баня. Продумывая проект бани, важно учесть множество нюансов. Это выбор места, стройматериалов, вопрос, как провести внутренние отделочные работы, как правильно установить печь, и многое другое. В этой статье мы собрали для вас информацию, которая станет полезной на этапе принятия решения. С ее помощью вы определитесь с тем, как обустроить свое индивидуальное место для релакса.
При проектировании бани следует учитывать такие факторы:
- расположение на участке, будет ли она отдельным зданием или выступает как пристройка к дому;
- мощность обогревателя;
- сколько будет посетителей;
- толщина стен, отделка, наличие или отсутствие утеплителя.

Виды бань
Многообразие бань возникает от разницы культур и традиций. Благодаря этому изобилию мы можем выбирать тот микроклимат в бане, который оптимально подходит нам по температуре, влажности и выработке пара.
Наиболее важен для самочувствия микроклимат, и в соответствии с ним бани подразделяются на виды.
Паровая баня: турецкий хамам
В такой бане температура достигает 40-45°, влажность 90-100%. За счет такой невысокой температуры создается мягкий микроклимат. В бане можно не только хорошо отдохнуть, но и заняться собой, порадовав тело косметическими процедурами.
Паровая сауна: русская баня
45-70° по температуре и невысокая влажность – 40-65%. Пар конденсируется на коже, образуя своеобразную пленку, а организм нагревается намного сильнее вследствие теплопроводности воды.
Суховоздушная (финская) баня
Небольшая влажность, 8-20%, сочетается с высокой температурой 70-110°. Отсутствие пара и высокая температура способствуют максимальному прогреванию организма;
Влажная сауна: спортивная
Температура 75-95° при 100% влажности . Является одним из подвидов финской бани. Температура специально повышается за счет полива камней водой. Такая сауна становится местом соревнований на выносливость и представляет для организма вред и даже опасность.
Водяная баня: японская баня офуро
Традиционная баня с температурой 40-60° и влажностью 100%, является экзотической разновидностью бани. Это обычно деревянная бочка, которая подогревается. Прогревание кожи под водой способствует потоотделению и вымыванию шлаков и пота.
В банях также различается способ подогрева и нагнетания пара . Зная эти особенности, вы выберете баню с характеристиками, которые максимально устроят вас и вашу семью.

Основные помещения в бане
Каждый тип бани включает такие функциональные помещения:
- предбанник (раздевалка);
- парная;
- моечное помещение;
- комната отдыха.

Предбанник (раздевалка)
Предбанник еще называют тамбуром. Здесь посетители оставляют свою одежду, здесь хранятся веники и дрова. Предбанник выполняет ряд функций :
- является зоной с функцией буфера, выравнивающей переход температур от климата снаружи до температуры внутри бани;
- служит местом для досушивания дров;
- зачастую служит также комнатой, в которой отдыхают.
Дверь предбанника должна открываться наружу.



Парная комната
Эта комната является основным, базовым помещением постройки. Здесь поддерживается самая высокая температура и размещается печь. В углу парной находятся камни, с помощью которых создается пар. Под ними должно находиться жароустойчивое покрытие.
Здесь же находятся лавки, размещенные ступеньками. Две, как правило, предназначаются для сидения, одна – лежания. Обустраивая парную комнату, необходимо продумать нюансы:
- для материала, которым обшиваются потолок и стены, характерны определенные теплоизоляционные свойства, с их учетом рассчитывается глубина теплоизоляции комнат, используются конструктивные приемы;
- эффективная работа системы вентиляции обеспечивается специальным коробом или распахивающимся окном, имеющим двойное остекление. Расположение окна – напротив печки;
- дверной проем проектируется с повышенным порогом: так под дверь не проходит прохладный воздух и не снижается теплоэффективность. Сама дверь распахивается наружу;
- парное и моечное помещения должны разделяться, иначе снижается качественные показатели пара и температуры, увеличивается расход топлива.


Моечная комната
Моечная комната, зачастую это душевая кабинка, размещается возле парной . Если размеры строения позволяют, эти зоны являются отдельными друг от друга, в маленьких постройках совмещены. В крупных строениях здесь же оборудуется бассейн или купель.
Средняя площадь моечного помещения составляет 2000х2000мм, тогда есть где принимать водные процедуры и размещать емкости с водой, горячей и холодной.
Окно строится в полтора раза больше окна в парной. Увеличен и дверной проем – 1800х800мм, чтобы обеспечить больший комфорт. По сохранению тепла требования меньше, чем в парной. Порог делается высокий, а пол укладывается из специальной плитки во избежание скольжения и сопутствующих травм.