Сколько кубов бруса надо на дом 7 н. Выбор материала и проектирование дома
- Сколько кубов бруса надо на дом 7 н. Выбор материала и проектирование дома
- Сколько кубов бруса надо на дом 9 н. Определение необходимого количества бруса на дом
- Сколько бруса надо на дом калькулятор. Устройство калькулятора
- Сколько кубов бруса надо на дом 6*8. Как посчитать по формуле количество бруса в кубе
- Сколько кубов бруса надо на дом 10х10. Расчёт количества бруса для строительства стен
- Сколько кубов бруса надо на дом 6х6. Пример расчета кубатуры
Сколько кубов бруса надо на дом 7 н. Выбор материала и проектирование дома
Дом из бруса 7х8 под ключ предлагают построить многие компании, однако цена такого здания может существенно различаться. Прежде всего, это зависит от выбранного строительного материала. Из чего построить дом?
- Из профилированного бруса. Этот вариант наиболее прост в монтаже, так как можно приобрести готовый домокомплект с заранее изготовленными соединительными элементами. В этом случае ничего не придётся подгонять, стены можно возвести очень быстро, и с их сборкой справится даже непрофессионал.
- Более дорогой вариант - дома из клеёного бруса 7х8 м. При аналогичных размерах стоить сама коробка будет в несколько раз дороже. При этом в дальнейшем можно будет сэкономить на обработке антисептиками и антипиренами. Клеёный брус не гниёт и не горит, поэтому он не нуждается в пропитках. К тому же, он почти не даёт усадку: это позволит существенно ускорить строительство.
- Можно приобрести обычный брус естественной влажности: это самый дешёвый, но и самый ненадёжный вариант: такой дом даёт значительную усадку, кроме того, при высыхании возможна деформация бруса с образованием трещин в стенах. В результате нарушается теплозащищённость дома, и он потребует тщательной конопатки.

Одноэтажный дом из бруса 7х8 метров – наиболее экономичный вариант: потребуется минимум материала на стены и кровлю, однако в таком здании будет достаточно тесно. Потребуется тщательно распланировать расположение помещений, чтобы сделать комнаты максимально удобными.
Наиболее распространённое решение - дом из бруса 7х8 с мансардой: это позволяет не тратить деньги на возведение полноценного второго этажа, при этом в мансардном помещении можно расположить спальни или детскую комнату.
Индивидуальное проектирование даст возможность построить дом, который будет соответствовать всем потребностям семьи: можно будет расположить помещения так, что ими будет максимально удобно пользоваться. Можно доработать типовой проект, но в любом случае лучше воспользоваться услугами профессионального архитектора.

Расчёт количества бруса на дом 7х8 метров
Важнейшая часть проектирования – составление сметы. Это подробный список расходов, в котором будет учитываться не только стеновой материал, но и перегородки, кровля, фундамент, отделочные и утеплительные материалы. Основная часть сметы – расчёт стоимости материалов, которые потребуются для строительства.
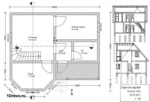
Обычная толщина бруса – 150х150 мм, этого достаточно, чтобы обеспечить зданию достаточную энергоэффективность. Средняя высота этажа – 3 м. Для расчёта количества бруса необходимо рассчитать периметр будущего дома: 7 + 8 + 8 + 7 = 30 м.

Эта величина умножается на высоту, получается суммарная площадь стен – 90 кв. метров. Из этой величины необходимо вычесть площадь оконных и дверных проёмов, после чего полученная цифра умножается на 0,15 м, чтобы получить объём профилированного бруса в кубометрах.
Такой расчёт имеет только предварительный характер, так как стройматериалы всегда приобретаются с запасом: часть в любом случае будет испорчена, кроме того, потребуется брус для сооружения стропил, лаг пола и потолка. Всё это требует тщательного предварительного расчёта.
Сколько кубов бруса надо на дом 9 н. Определение необходимого количества бруса на дом
Если в ваши планы входить строительство загородного коттеджа, нужно определиться с подходящими материалами. Профилированный брус сочетает в себе массу достоинств, ввиду чего обрел популярность при возведении жилья. Натуральность, прекрасные теплоизоляционные параметры, простота монтажа – лишь краткий перечень всех преимуществ этого строительного материала. Остановив свой выбор на нем, вам понадобится правильно рассчитать нужное количество материала. Это позволит оградить себя в дальнейшем от непредвиденных расходов.
Продажа бруса обычно производится в кубометрах. Иногда можно встретить указание поштучной цены. Расчет количества материала позволит получить примерное представление о будущих затратах на возведение коробки жилища.
Получить ответ на вопрос, сколько кубов профилированного бруса нужно на дом, можно только посредством тщательных расчетов. Исходить нужно как из габаритных размеров, так и из проектной специфики сооружения.
Самый простой вариант – одноэтажное строение. Неизменной характеристикой остается периметр жилища. Затем следует собрать иные параметры дома и материала с целью точного расчета кубатуры:
- Высота стен сооружения;
- Сечение материала;
- Число дверей и окон.
Расчет одноэтажного проекта здания по кубатуре проводится посредством простого перемножения всех значений. Затем учитываются оконные и дверные проемы для уточнения полученных результатов, если взять за основу ширину двух окон по 140 сантиметров и ширину одной двери 90 сантиметров, можно переходить непосредственно к расчетам.
Не менышее значение имеют габариты самих брусьев. Типовые сечения материала обычно составляют 100 на 100 мм, 150 на 150 мм и 200 на 200 мм. Как правило, в ходе строительства домов применяется последний вариант.
Сколько бруса надо на дом калькулятор. Устройство калькулятора
Калькулятор дома из бруса всегда доступен в онлайн режиме. Его интерфейс разработан таким образом, чтобы быть понятным даже человеку без специального строительного образования.
Некоторые калькуляторы позволяют сразу же подсчитать и итоговую стоимость материалов, для чего в полях ввода данных есть отдельная графа – цена за кубометр. Узнайте, сколько стоит куб бруса у вас в регионе, пропишите цифру в нужное поле и останется только нажать на клавишу расчета – результат будет моментально выведен на экран вашего девайса.
Калькулятор строительства дома из бруса можно применять для точного определения необходимого количества смежных пиломатериалов при возведении дома.
Можно производить расчет:
- Бруса;
- Межвенцевого утеплителя;
- Нагелей и пиломатериалов;
- Венцов и количества утеплителя между ними.
Программа позволяет просчитывать не только количество элементов конструкции, но и полный объем необходимого расходного материала.
Расчет необходимого количества бруса на дом
Надо помнить, что любой онлайн калькулятор дома из бруса действует на основании определенного алгоритма и обычно выдает только примерные результаты. Чтобы быть уверенным в работе онлайн-сервиса, будет полезно знать, как рассчитать количество бруса на дом самостоятельно.
Всю процедуру расчета можно подразделить на следующий перечень этапов:
- Зная назначение будущей постройки, необходимо подобрать брус соответствующего сечения. Далее следует выписать размеры дома (длина, ширина, высота, число перекрытий и перегородок, число стропил и балок, площадь кровли);
- По формуле определяется общая необходимая кубатура материала и периметр исходя из будущих габаритов жилья:
M = S*L*2+S1 (м)
где M – периметр, S – длина, L – ширина, S1 – количество перегородок;
- Далее высчитывают общую площадь строения:
N = M*L (м)
где N – общая площадь, M – длина периметра, L – высота постройки;
- Полученный результат необходимо умножить на длину бруса и получится число необходимого общего количества материала.
Например, сколько кубов бруса надо на дом 8x8x2,9 c одним перекрытием – пример расчета:
M = 8x8x2+1 = 129 (м);
N = 129x2,9 = 374,1 (м);
374,1x0,15 = 56,115 (куб. м)
где 0,15-длина одной стороны бруса.
Рассчитать брус на дом, используя онлайн калькулятор, не сложно. Следует учесть тот факт, что итоговое количество материала окажется немного больше, благодаря тому, что будут вырубаться окна и двери в будущем срубе но эти издержки зачастую перекрываются за счет обрезков, которые неизбежно появляются при любом строительстве.
Какое количество бруса необходимо для кровли
При подсчетах количества бруса для кровли надо понимать принцип его монтажа – по сути, это просто балки, уложенные с шагом 60 см. То есть, зная длину стены, на которую будет опираться крыша, и разделив ее на 0,6 – получаем нужное количество балок.
Сколько кубов бруса надо на дом 6*8. Как посчитать по формуле количество бруса в кубе
Методика расчетов для всех пиломатериалов одинакова. Пиломатериалы продают в кубометрах – м3. Потребитель может закупать в погонных метрах или штуках. Поэтому нужно знать, как проводить вычисления, сколько в кубе бруса 100 на 150 или других размеров. Они несложные, на уровне математики средней школы.
Методика вычисления следующая:
- Перевести мм в метры.
- Вычислить объем 1 бруса.
- Рассчитать сколько штук в кубе.
- Высчитать брус в погонных метрах.
- Посчитать сколько стоит 1брус.
- Рассчитать общие затраты на партию материала.
Ниже приведены формулы основных вычислений.
Формулы: как рассчитать кубатуру бруса и его стоимость
Пример 1: Вычислить: сколько бруса 150х150х6000 в кубе: переведем мм в метры, перемножим параметры материала: 0,150х0,150х6=0,135 и получим объем 1 единицы. Посчитаем сколько бруса 150х150х6000 в кубе: 1:0,135=7,4 шт.
Пример 2. Рассчитать затраты на брус 250х250х6000 для строительства дома размерами 6х6 м2 и высотой 2,5 м.
Вычисления:
1. Вычислим сколько штук бруса в расчете, что будет уложено 12 рядов: 12х4= 48 шт.
2. Переведет мм в метры и рассчитаем объем 1 бруса: 0,025 х 0,025 х 6 = 0,375 м3.
3. Рассчитаем сколько штук бруса в кубе: 1: 0,375 = 2,6 шт .
5. Рассчитаем затраты: 490 руб. х 18,5 = 9065 руб.
Объем древесины можно высчитать, зная количество материала в погонных метрах. Для подсчета нужно площадь сечения из мм перевести в м2 и умножить их на длину.
Пример. На баню 3х6 нужно 198 п\м. Приобретаем брус 150х150х6000, сколько штук в м3 купить? Вычисляем: 0,15х0,15х198=4,45 м3.
Выполнив такие несложные вычисления, можно точно рассчитать количество пиломатериала для стройки и не платить лишнее.
Сколько кубов бруса надо на дом 10х10. Расчёт количества бруса для строительства стен
Дом из клеёного бруса 10х10 метров можно возвести по типовому проекту: он может быть одноэтажным, двухэтажным, или можно снабдить его просторной мансардой. Стандартная толщина бруса, используемая в средней полосе России – 150х150 мм. Этого достаточно, чтобы обеспечить нормальную защищённость от холода. Клеёный брус выпускается с различными размерами сечения, можно посоветоваться с местными строителями относительно лучшего варианта для климата конкретной области.Сколько надо бруса на дом 10х10? Расчёт проводится в несколько этапов:- Определение периметра здания. Если предполагается строить квадратный дом с длиной одной стены 10 метров, его периметр составит 40 м.
К этой величине добавляется длина перегородок, если их тоже планируется складывать из бруса. К примеру, если в доме будет две капитальные перегородки, необходимо добавить ещё 20 м. Итого, требуемая общая длина бруса – 60 м.
- Расчёт высоты здания. Предположим, что строится одноэтажное здание, высота этажа составляет 3 метра. Чтобы определить общую площадь стен, нужно посчитать 60 *3 = 180 м2.
- Из общего значения площади вычитается площадь оконных и дверных проёмов. Если нет необходимости высчитывать предельно точное количество этим этапом можно пренебречь: лишний брус всё равно будет использоваться для создания лаг пола и перекрытия, а также для сооружения стропил.
- Расчёт итогового объёма бруса, необходимого для строительства: 180 кв. м. нужно умножить на 0,15 м – это толщина бруса. Получается, потребуется 27 кубометров бруса. Эта сумма является приблизительной, так как придётся дополнительно посчитать, сколько материала уйдёт на сооружение чернового пола и балок потолочного перекрытия, а также сколько его потребуется на возведение кровельной системы.

РЕКЛАМА
Обычно к основному расчётному количеству прибавляется 3-5 кубометров: если брус останется, ему можно будет найти применение, а если его не хватит, придётся останавливать строительство и срочно докупать материал, который, к тому же, может отличаться по качеству.Клеёный брус стоит дорого, поэтому каждый владелец старается максимально сэкономить. При необходимости можно рассчитать точное количество единиц, которое потребуется для строительства, но производители не любят продавать брус по отдельности, и заказ всё равно придётся округлять до целого количества кубометров.
Проектировка здания из клеёного бруса
План дома 10х10 из бруса клеёного можно найти в сети, но он всё равно будет нуждаться в доработке. Готовые планы отражают только расположение комнат, окон, дверей и лестниц, владельцу придётся дополнительно решать вопрос с прокладкой коммуникаций, вентиляционными ходами, созданием канализации. Дом большой площади важно правильно расположить на участке так, чтобы расстояние до септика, бани, заборов и других объектов соответствовало установленным санитарным нормам.План участка также включает расположение всех дополнительных построек и прилегающих объектов. Если планируется дополнительно строить баню, гараж и другие постройки из клеёного бруса, важно правильно посчитать, сколько материала потребуется на каждое строение.При проектировке здания необходимо учитывать потребности всех членов семьи: это касается расположения комнат, выбора типа лестницы, размещения санузлов, которых в доме большой площади должно быть минимум два. Если в доме будут жить дети или пожилые родственники, нецелесообразна установка винтовой лестницы: хотя она занимает меньше места, ей будет неудобно пользоваться. Обычный маршевый пролёт имеет свои преимущества, но он потребует длинных прочных перил с необходимыми украшениями.
В стоимость дома необходимо включать и материалы для отделки. Клеёный брусовой дом 10х10 можно оставить без отделки стен, но всё равно следует позаботиться о выборе качественного напольного покрытия и отделке потолка. Кроме того, нужно заранее решить вопрос с размерами окон и дверей: можно выбрать стандартные варианты, а можно заказать изготовление рам по особым размерам.Сколько кубов бруса надо на дом 6х6. Пример расчета кубатуры
Чтобы посчитать, сколько кубов бруса 150 на 150 надо на дом 6х6 такой планировки, сначала определяем периметр стен. В нашем случае он одинаковый для обоих этажей: 24 п.м. наружных стен + 9 п.м. внутренних. Итого – 33 п.м.
Это важно! Если перегородки из бруса другого сечения, его считают отдельно.
Следующий шаг – вычисление общей площади стен. Так как высота этажей разная, то считаем отдельно:
- 1 этаж: 33 х 3 = 99 м²;
- 2 этаж: 33 х 2,5 = 82,5 м².
- итого: 99 + 82,5 = 181,5 м².
Осталось умножить общую площадь стен на толщину бруса, и получим кубатуру:
181,5 х 0,15 = 27,2 м³.
Есть один нюанс: рассчитывая, сколько надо бруса 150х150 на дом 6х6, мы не учитывали проемы. При желании это легко сделать, достаточно определить их суммарную площадь и вычесть её из площади стен.
Источник lumipolar.com
Но я обычно этого не делаю по двум причинам.
Во-первых, при покупке стройматериалов его всегда берут с запасом в размере 10-15%, примерно столько в среднем и занимают проемы в стенах. поэтому полученные результаты можно считать окончательными.
Стандартная длина бруса как раз составляет 6 метров. Стены собираются из цельного пиломатериала, а проемы вырезаются в них потом. Вырезанные куски длиной 1-2 м считаются отходами, хотя их можно использовать для устройства перегородок или ограждений террасы.
Если у вас другой проект, например, нужно определить, сколько кубов бруса надо на дом 8х8 в один этаж, то такие обрезки могут использоваться по прямому назначению для наращивания стен по длине. Тогда лучше отдельно посчитать проемы, а к итоговой цифре прибавить 10-15 %.