Планировка небольшой бани 3х3. Проектирование бани: основные помещения и удачные примеры планировок
- Планировка небольшой бани 3х3. Проектирование бани: основные помещения и удачные примеры планировок
- Баня 3 на 3 из двух отделений планировка внутри. Подумаем о планировке
- Баня 3 на 3 планировка. Внутренняя отделка и планировка
- Баня 3 на 3 из блоков. Материалы
- Баня 3 на 3 с предбанником. Оптимальный проект недорогой бани в эконом варианте
Планировка небольшой бани 3х3. Проектирование бани: основные помещения и удачные примеры планировок
Даже самый маленький проект не может состоять только из турецкой бани. Чтобы санузел нормально функционировал и условия его эксплуатации обеспечивали комфорт человеку, в планировку следует включить и другие помещения. Для этого внутреннее пространство здания разделено на небольшие комнаты, каждая из которых играет свою роль.
В конструкции бани 5 на 6 м (с учетом небольших размеров такой постройки) нет необходимости использовать несущие стены для разделения пространства на зоны. Достаточно будет легких деревянных перегородок. Они не нуждаются в закладке фундамента и не несут дополнительных нагрузок.

При разделении пространства вместо стен можно использовать стеклянные перегородки для экономии места
За счет разделения основного пространства на несколько секций можно будет эффективно и быстро отапливать парилку. В этом случае остальные помещения не будут отапливаться. Это преимущество особенно полезно для комнаты отдыха.
Гардеробная относится к категории необходимых помещений. Это помещение используется как входная дверь в ванную комнату, предотвращая попадание холодного уличного воздуха в парилку. Здесь можно хранить дрова или другое топливо. Гардеробная подходит для обустройства небольшой гардеробной (гардеробной). При правильной планировке можно легко перейти из этой комнаты в парилку, душевую и комнату отдыха.
Планировка бани 3 х 5 м может включать достаточно просторную гардеробную. С помощью перегородок можно обустроить дополнительные помещения для хранения предметов и топлива. В гардеробной будет кстати большое окно, но только при условии, что его нет в парилке. В парилке должна быть только одна дверь, ведущая в раздевалку. Сама гардеробная может быть соединена переходами с другими помещениями.
Баня 3 на 3 из двух отделений планировка внутри. Подумаем о планировке
Небольшие габариты позволяют неплохо экономить на материалах и тратах на электроэнергию. Ведь небольшое парное помещение прогреть гораздо проще. Электрическая печь или кладка каменки – в любом случае потребуется меньше затрат. Говоря по делу, при правильном подходе, можно сохранить все функциональные особенности бани даже при таких размерах.
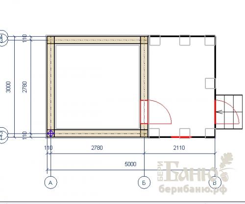
Размеры бани 3 на 3 позволяют организовать полноценное моечное отделение, парную и предбанник. При этом никто не запрещает совмещать внутреннее пространство. Составляя план, необходимо разграничить пространство на два отделения. Одно больше, под парную и мойку, второе немного меньше, для предбанника и раздевалки.
Печь лучше установить в углу стены прилегающей к предбаннику, а дверную коробку расположить с противоположной стороны. Таким образом, можно добиться максимального эффекта сохранения тепла. Учитывая небольшие размеры, печь лучше приобретать готовую и не пытаться «впихнуть» каменку, под которую необходимо делать дополнительную основу. В продаже есть различные экземпляры с защитными экранами. Будет удобнее выбрать печь для бани со встроенным накопителем для воды. Это позволит дополнительно выиграть площадь и оградить себя от дополнительных работ по монтажу отдельного бака.
Полок располагаем на противоположной от печи стороне. Минимальная ширина ступеней – 40 см. Так как высота до потолка будет под 2 мета, рекомендуется сделать 2 ступени. По желанию полок можно смонтировать съемный, что позволит снимать его для просушки по окончании банных процедур. В бане 3 на 3 метра, оконные конструкции можно не делать. Достаточно небольшого продуха в парной. Установить небольшое окно лучше в предбаннике.
Из чего будем строить?
Самым простым вариантом будет, конечно, каркасная конструкция, монтируемая на облегченной основе. Неплохим вариантом считается строение из бруса или традиционного «кругляка». Это отобранные бревна, предварительно ошкуренные и обработанные. Как утеплитель используется пакля или современное джутовое волокно. В зависимости от финансовых возможностей, допускается строительство бани из блоков, оцилиндрованного бревна или профилированного бруса. Но в любом варианте, материал должен быть соответствующего качества. Если предпочтение отдано дереву, оно должно быть просушенным и пропитанным защитными составами.
Как будем строить?
В любых габаритах, строительство бани выполняется по заранее заложенным правилам: вначале закладывается основа, затем собирается коробка или сруб, монтируется кровля и, на завершающем этапе проводится финишная отделка, с установкой банных агрегатов и подключением электропроводки.
Баня 3 на 3 планировка. Внутренняя отделка и планировка
Сначала в бане необходимо провести все коммуникации, а в частности свет, если подразумевается наличие электроэнергии на дачной территории. Вытяжка оборудуется из комнаты отдыха или парной и может являться системой вентиляции, работающей при помощи механического запуска.
Затем происходит утепление парилки с использованием минеральной ваты или другого вида утеплителя. Чтобы пар отражался от стен, внутренние стены отделывают фольгированным изолоном. Поверхность потолка обшивается деревянной вагонкой из осины, дуба или липы.
Оконные и дверные проемы лучше расположить следующим образом:
- для двери следует спланировать место с южной стороны, так как снег здесь будет сходить раньше, чем на северной. Такой баней очень удобно пользоваться в зимнее и весеннее время;
- окна лучше делать на западной части постройки в предбаннике (тамбуре), парилке и помывочной. Таким образом, свет будет хорошо освещать внутреннее помещение парилки, что позволит значительно сэкономить на электроэнергии.
Отказываться от оконных проемов, даже в такой маленькой бане 3 на 3, не стоит. Окна – это дополнительное проветривание помещений, а не только источник естественного солнечного света. Оптимальный размер окна в маленькой конструкции – это 40 на 40 сантиметров.
Очень важно комфортно обустроить пространство предбанника: повесить крючки для одежды и полотенец, предусмотреть полочки для емкостей и ведер, а также подставку для обуви. Хорошей идеей будет разместить там небольшой столик и стулья (или лавочку)
Две самые важные комнаты – это парная и мойка. Для удобства можно оборудовать отдельный тамбур (1,5 м), отделив душевую (2,5 м) от парилки (2 м). предбанник при этом будет составлять 2 м, а общая площадь – 8 кв метров. Сюда поместиться даже небольшая дешевая кабинка, настенное зеркало и маленький угловой диван.
Мини-баня с верандой
Мы видим, что даже на самом маленьком загородном участке можно построить уютную современную баню, оснащенную всем необходимым. И это вовсе не тесная коморка, а полноценный банный домик и миниатюрная здравница.
Оригинальная мини-баня в виде деревянной бочки
Сегодня очень популярны маленькие бани 3 на 3, а также множество фото-примеров планировки, ведь помещения внутри компактные и уютные. Все пространство банной постройки при этом используется максимально эффективно, а также экономятся финансовые средства на строительство и отделку. Поэтому для возведения бани на своем участке вовсе не обязательно планировать грандиозную многоэтажную конструкцию, достаточно будет и небольшого помещения.
Баня 3 на 3 из блоков. Материалы
Для фундамента разжился кирпичом от старых построек. Он очень прочный, сейчас такой не делают. Покупка обошлась около 5 000 руб. за 1 000 штук.
- Газосиликатные блоки для стен размером 600х300х200 мм стоили 18 300 рублей за 7,2 м3.
- Для перегородок и фронтонов взял блоки 600х300х100 мм на сумму 4 000 руб. за 1,4 м3. Доставку на дачу осуществили парни с ближайшего строительного рынка.
- Для кладки использовал около 1 тонны сухой кладочной смеси, за которую заплатил 5 400 рублей.
- Деревянный брус 100х100х6000 мм на лаги, перекрытия потолка и стропильную систему купил на пилораме, которых у меня в округе штук двадцать. Использовал 18 брусьев на сумму 620 рублей.
- Там же брал доски на пол 0,5 м3 и обрешетку на стропильную систему — 0,2 м3.Все пиломатериалы, включая вагонку, обошлись примерно в 45 000 рублей.
- Кровлю закрыл мягким еврошифером «Ондулин»: ушло 27 листов. С учетом доборных элементов и крепежа потратил 12 500 рублей.
- После ремонта квартиры остались оконные рамы и комнатные двери. Из них сделал окна, входную дверь и вход в парилку.
- Старые двери обшил вагонкой, пропитал декоративно-защитным составом «Акватекс». Выглядят не хуже новых!
- Сердце бани — печь «Везувий». Подбирал с запасом для парилки объемом до 14 м3. Выбрал со стеклянной дверкой для лучшего обзора.
- В комплекте взял бак самоварного типа на 100 л из нержавейки, дымоход и камни — 100 кг. Закупал через интернет-магазин с рассрочкой на 2 месяца. Покупка стоила 34 000 рублей.
- Полиэтиленовую емкость для холодной воды объемом 100 л установил на чердаке.
- Там же второй бак на 60 л с электрическим подогревом для душа после работы. Наполнение баков смонтировал через трубопровод от подземного насоса.
- Всю разводку сделал полипропиленовыми трубами Ø20 мм. Дополнительно потратил около 6 000 рублей.
Баня 3 на 3 с предбанником. Оптимальный проект недорогой бани в эконом варианте

Если вы не располагаете большой суммой денег на постройку бани, либо ваш земельный участок не позволяет построить баню больших размеров , наши специалисты, разработали для такого случая достаточно удобный и экономичный вариант постройки. Ознакомиться с ним можно, посетив наш офис, или, заглянув на сайт нашей фирмы. Вашему вниманию будет предоставлено баня 3х3 планировка фото .
Подробный план постройки и прилагаемое баня 3х3 фото помогут создать полную картину фасада и внутреннего обустройства данного варианта бани из рубленого бревна с предбанником каркасного типа. Сруб имеет размеры: 3х3 и предусматривает расположение предбанника, в котором можно поставить стол и несколько скамеек для отдыха, как перед баней, так и после нее, организовав чаепитие. Здесь же можно обустроить скромную раздевалку.

Сруб одновременно может позволить мыться, не стесняя друг друга, четырем людям. Полы в срубе предусмотрены двухуровневые. Первый уровень является бетонным основанием, в котором проложен желоб для слива воды. Желоб выходит за пределы бани сообщается с емкостью в 200 л, которая служит для воды приемником, иными словами – канализацией. Второй уровень представляет собой струганную доску 40х150, с обязательными зазорами для стока воды. Полы в предбаннике изготовлены из такой же доски 40х150, но уже без зазоров.
Баня 3х3 является небольшим проектом, поэтому рекомендуем планировать топку печи бани изнутри помещения в целях безопасности.
В данном проекте не предусмотрены окна, но утепление постройки предусмотрено обязательно. Стены сруба предлагаются на выбор из сосны, осины или дуба. Вариант предбанника может быть, как из бревна, так и каркасный с применением евровагонки.
В данном проекте предусмотрена обычная, двускатная крыша. Кровельным материалом служит оцинкованный профнастил.
Двери изготавливаются из сосны. При установке, соблюдается старинная технология с обязательным верхним зазором, для усадки постройки.

Фундамент ленточный, бетонно-заливной. По глубине фундамент равен 50 см. Песчаная подушка составляет по толщине 20 см и выступает над уровнем земли на 7-10 см. Имеется, также кирпичный слой из трех уровней красного кирпича, для большей гидроизоляции постройки. Ознакомиться с характеристиками данной конструкции можно на сайте, указав в запросе: « баня 3 3 проект ».