Проект бани 6 на 6 с туалетом. 4х6
Проект бани 6 на 6 с туалетом. 4х6
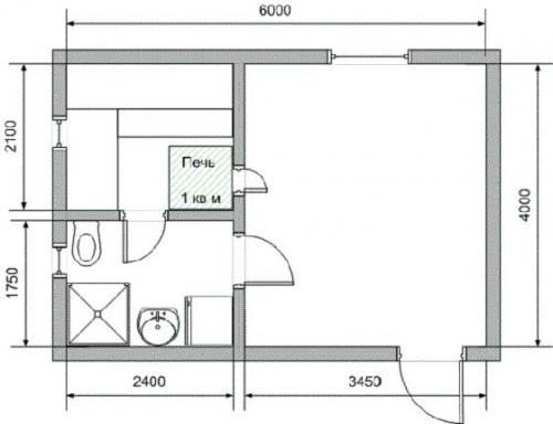
Это самые популярные габариты. Строение подходит для компании 5–6 человек. Планировка бани 4×6 включает террасу с навесом, сауну, гостевую, санузел, душевую. Общая площадь – 21, 7 кв. м.

В комнате отдыха 5, 8 кв. м умещается стол со скамьями и холодильник. Терраса открытая. В бане устраивают отдельно мойку и парилку. Сауна – стандартная, со скамьёй 60х1900 см. В моечной 4, 256 кв. м размещается душ с трапом. Возможно установка купели габаритами 1000х1700 мм. Санузел в планировке выглядит миниатюрным, однако тут умещается компактная мойка и унитаз.
В одноэтажных банях 4х6 чердак используют как кладовую. Но если утеплить кровлю, пространство превратится в полезную площадь. Проекты миниатюрных бань 4х6 с мансардным этажом – хорошее решение для маленьких участков. Наверху обычно располагают место для восстановления сил после водных процедур.

Представленный проект бани 6х4 имеет встроенную террасу, тамбур, 2 комнаты, сауну, помывочную. Площадь спальни на мансардном этаже – 16, 79 кв. м. При желании можно разделить перегородками пространство под крышей на 2 небольшие комнаты. Проект не предполагает наличие санузла. Парная комфортна для трёх человек.
На первом этаже в холле площадью 8 кв. метров может быть устроена обеденная зона. Планировку бани размером 4х6 с мансардой можно сделать более удобной, если вынести террасу на место крыльца, увеличить сауну до 5 кв. м, устроить туалет на первом этаже.
Проекты бань 6 на 6 со вторым этажом. Планировка бани с верандой 6 х 6 своими руками
В настоящее время существует огромное количество готовых проектов бань с туалетом , однако, это не мешает застройщику спланировать все на свое усмотрение. Такой подход позволит сделать все под себя и предусмотреть все нюансы, которые могут быть упущены в стандартной планировке. Рассмотрим некоторые моменты, на которые следует обратить внимание при проектировании парной своими руками:
- Габариты. Несмотря на то что размеры террасы привязаны к ширине бани, ее площадь может быть увеличена путем расширения длины пристройки. Поэтому, производя планировку будущего строения, необходимо ориентироваться на количество людей, которые будут одновременно проводить здесь время. Кроме этого, габариты террасы зависят от располагаемого на ней оборудования. К примеру, веранда может быть обустроена бассейном, что приведет к тому, что ее площадь должна быть значительно увеличена.Если же на веранде планируется поставить лишь стол и стулья для посиделок, то смысла в большой площади нет;
- Форма. Как правило, терраса в бане зависит от формы основного строения, ведь она, по сути, считается его продолжением. Однако необязательно придерживаться этого правила и существуют другие варианты строительства.
Веранда может быть сделана крытой, в виде коридора, где можно обустроить зимний сад. При строительстве веранды перед застройщиком открывается множество возможностей в плане планировки, однако, стоит понимать, что одна из сторон ее должна повторять очертания банной стены. Можно спроектировать отдельно стоящую веранду, которая будет соединяться с основным строением с помощью закрытого коридора;
- Дизайн. Немаловажным условием строительства веранды для бани является подбор отделочных материалов.
Пример комнаты отдыха на веранде бани
Если выполнить отделку веранды и отделку бани разными материалами, можно получить неорганичную композицию, которая будет бросаться в глаза. Фундамент террасы должен быть заглублен в землю так же, как и основание бани: чтобы помещения располагались на одинаковом уровне; - Второй этаж в бане. Если планируется возведение мансардного этажа над баней , то террасу можно сделать и на втором ярусе, однако, это потребует установки опор, что, конечно же, удорожит возведение бани. Однако такое преобразование наверняка будет оправдано благодаря хорошему настроению посетителей. Кроме этого, наличие мансардного этажа позволит лучшим образом распределить полезное пространство на первом этаже.
Планировка двух этажей бани 6×6 с мансардой
Перебазировав, к примеру, комнату отдыха с первого этажа на мансардный этаж, можно увеличить габариты парной, благодаря чему париться можно будет сразу большой компанией. На мансарде можно расположить бильярд, или мультимедийную технику (телевизор, караоке), что будет благоприятствовать отличному отдыху. Конечно же, обустройство мансарды не может обойтись без предварительной подготовки помещения.Так как под ней будут располагаться очень влажные помещения, необходимо позаботиться о качественной гидроизоляции и пароизоляции, иначе находиться на верхнем ярусе будет весьма некомфортно, да и плесень с грибком не заставит себя долго ждать. Также особое внимание следует уделить утеплению и гидроизоляции скатов кровли.
Источник: https://bani-iz-brusa.postroivsesam.info/stati/proekt-bani-6-na-6-2-etazha-banya-iz-drevesiny
Проект бани 6 на 6 с террасой. Баня с террасой
Планировка этой бани отличается повышенным комфортом. К плюсам бани 6х6 с террасой можно отнести максимально большую комнату отдыха, где разместится не только стол с сиденьями, но и дополнительное оборудование. Для бани 6 на 3 планировка может также включать террасу, которую располагают по длинной стороне.
Парная и душевая не рассчитаны на единовременное посещение большого количества человек, но компактные размеры позволяют быстро прогревать эти помещения и использовать «посменно».
Открытая терраса идеально подходит, чтобы удобно расположиться на ней в теплое время года после прохождения банных процедур. Для бани 6х6 планировка, фото которой размещено ниже, является одним из проверенных типовых вариантов.
Баня 6х6 с террасой и мансардой
Баня из бруса 6х6 с мансардой преподносит массу вариантов для использования дополнительного пространства. Это может быть, например, еще одна комната отдыха большого размера, где можно оборудовать бильярдную.
Кроме того, на мансарде можно оборудовать комнату для гостей, которые приезжают и остаются ночевать, или большую столовую для проведения праздников, банкетов и вечеринок.
Проект дополнительно оборудован вместительным балконом, который позволяет с комфортом расположиться на нем всем желающим.
Баня с мансардой
Еще один неплохой вариант планировки «оздоровительного домика» – баня 6х6 из бруса с крыльцом и мансардой. Здесь зонам отдыха отведено максимальное пространство. К положительным чертам такой планировки относятся:
- Наличие небольшого тамбура, туда попадаешь с крыльца. Он станет дополнительной преградой на пути холодного воздуха и позволит дольше сохранить тепло в помещении.
- Окна в комнате отдыха и душевой позволяют достичь высокого уровня естественного освещения.
- В парилке от окна отказались для снижения теплоотдачи в помещении.
- Большая мансарда предоставляет массу вариантов использования полезного пространства.
К минусам подобной планировки можно отнести небольшую площадь функциональных помещений: парилки и душевой, а также отсутствие санузла. Но при большом желании и этот недостаток можно исправить, баня 6х3, планировка которой позволяет разгуляться еще меньше, и вовсе не предоставит такого шанса.
Баня 6х6 с мансардой и террасой
Максимально аскетический и бюджетный вариант планировки бани. К его плюсам относятся большой размер комнаты отдыха, мансарда без перегородок и открытая терраса, где дополнительно размещается необходимое оборудование, например, мангал.
Баня 6 на 6 с комнатой отдыха. Планировка бани 6x4 метра
Что должно быть в бане помимо самой парилки и сеней? Забудем темные и тесные деревенские строения, как помещения для купания. Сегодня баня – это место отдыха, поэтому план бани 6×4 должен быть хорошо продуманным. Что в него включить?


- Парная. Здесь стоит печь, находятся лавки с лежаками. Обычно парная занимает вторую по величине комнату и находится, как правило, в углу здания.
- Душевая. Находятся мойка и парилка отдельно, иначе либо парилка остынет, либо душ не принесет желаемого облегчения.
- Предбанник – место, где можно оставить вещи.
- Комната отдыха – самое большое по площади помещение. Здесь и удобные диваны, кресла и стол, и телевизор. Включив фантазию, можно украсить комнату живыми цветами и комнатным водопадом.
Комната отдыха внутри самой бани – отличное место для зимнего времяпрепровождения. А летом будет приятно посидеть на открытой террасе, в межсезонье – на застекленной веранде. Стоит продумать этот момент и спроектировать план бани 6×4 с террасой или верандой. С фото таких вариантов мы поможем.
Хочется в бане иметь помимо стандартных помещений еще и бассейн? Планировка бани 6×4 может учитывать и это. В таком случае понадобится второй этаж или мансарда. На них можно оборудовать раздевалки, комнату отдыха или душевую, а парилку или бассейн оставить снизу. Вдохновляйтесь фото-идеями.



Планировка бани 6 н. Проект бани 6 на 6 с мансардой, террасой и балконом
Несмотря на общий типаж, есть достаточно много различных проектов бань 6 на 6 с мансардой. Выбирать среди них приходится исходя из своих вкусовых предпочтений и финансовых возможностей.
Универсальное решение, которое подойдет как для семейных банных процедур, так и в качестве места для отдыха в дружеской компании.
Главная изюминка проекта – дополнительное место на свежем воздухе, которое добавляется за счет пристройки террасы, над которой расположен просторный балкон.
Лестница на мансарду расположена в коридоре – это значит, что в случае необходимости верхний этаж может использоваться отдельно от бани, например, в качестве гостевой спальни.
Некоторым может не понравиться, что попасть в комнату отдыха из парилки также можно только через коридор, но это решение уже на любителя, тем более, что ничего не может помешать сделать прямую дверь между этими двумя помещениями. Правда в первом случае комнате отдыха не понадобится защита от высокой влажности.
Площадь предбанника должна учитывать наличие вешалок для одежды, здесь же находится запас дров для банной печи. В моечной кроме сантехники можно установить водонагреватель и использовать это помещение просто как душевую, в те дни, когда баня не топится.
Чтобы снизить потери тепла, в парной и моечной предусмотрены окна размерами 50 на 50 см. В комнате отдыха нужно больше солнечного света, поэтому здесь уже размер установленных окон 120 на 100 см.
Входные двери обычные – стандартные, а вот те, что ведут в парилку, обычно меньше, для лучшего сохранения тепла. Также надо учитывать, перепады температур в парилке и подбирать соответствующие материалы.