Совмещенная парилка и моечная. Как спланировать баню с парилкой и мойкой
- Совмещенная парилка и моечная. Как спланировать баню с парилкой и мойкой
- Как отделить парилку от мойки. Какая польза от правильно собранной перегородки
- Проект бани с моечной. ТОП-60 лучших проектов бани для дачи на 2023 год
- Проект парилки. Проект
- Баня с парилкой и помывочной. Варианты планировок
- Окно для парилки. Аргументы «за»
- Нужно ли окно в парилке
Совмещенная парилка и моечная. Как спланировать баню с парилкой и мойкой

В условиях ограниченной площади строительства всегда возникают несколько вопросов. Первый: целесообразно ли разделять домик 3х3 стенками или перегородками. На практике часто встречаются проекты без перегородок, когда мойка и парилка находятся в разных уголках домика. При желании можно оборудовать два отдельных помещения, разделив помывочную и парилку стеной. Оба варианта хороши и реализуемы в любых условиях, поэтому лучше рассмотреть оба:
- раздельное обустройство парилки и мойки;
- парилка и мойка вместе.
Раздельное обустройство парилки и мойки
При планировке бани 3х3 мойка и парилка могут находиться вместе. Перед строительством надо понять, как вы будете использовать тамбур или предбанник. Для обустройства в нём небольшого помещения понадобится сократить общую площадь парилки и мойки. Есть выход из положения: разделить тамбур и главное помещение бани на две равные части. Другое дело, если вы хотите использовать тамбур в качестве прихожки, где можно оставить одежду и вещи. В этом случае на него выделяют минимальное количество площади, стараясь оставить больше места на моечную и парную, совмещённые между собой.

При обустройстве маленьких парных надо обращать особое внимание на конструкцию и мощность печки. Небольшое помещение можно легко перегреть. Во избежание перегрева устанавливайте печь с регулятором мощности. При совмещении парилки с мойкой высокой влажности избежать не удастся, равно как и высоких температур (70, 90С и выше). Мыться при таких температурах будет некомфортно, но в условиях маленькой площади трудно оборудовать полноценную баню с кирпичной печью или каменным обкладом. Если есть возможность, увеличьте размеры парильни так, чтобы сделать в ней кирпичную кладку для маленькой печки. Иногда владельцы маленьких банных домиков приспосабливаются к «управлению» печкой. Им удаётся поддерживать в помещении температуру, пригодную для того, чтобы полноценно помыться после парилки.
Парилка и мойка вместе
При раздельном оформлении мойки и парилки придётся немного расширить исходный план. Его надо сделать больше всего на метр, и тогда вы сможете разделить моечную и паровую небольшой перегородкой. На пространство моечной будет выделен всего метр, без учёта толщины стен. Вы получите парилку приличной площади, если сократите комнату отдыха или уберёте её совсем, оставив маленький предбанник.
Важно!
Дверь, ведущая из парилки во двор, всегда должна открываться наружу. Это позволит легко выбить её при перегреве.
Как отделить парилку от мойки. Какая польза от правильно собранной перегородки
Другое дело, если банное строение построено на даче или за 20-30 м от основного жилья. В этом случае проблема оборудования перегородок в бане обстоит несколько сложнее.
Поэтому, чтобы определиться, как сделать перегородки в бане своими руками, стоит посчитать все варианты и выбрать правильный, который поможет и дрова сэкономить, и деревянное здание бани по возможности сохранить:
- Если размеры сауны и баньки небольшие, то внутри парной зачастую ставят съемную перегородку, отделяющую парилку от баков с запасом воды для мытья и шкафов с одеждой. После окончания банных процедур каркас перегородки в бане своими руками снимают, а небольшое пространство парной используют в качестве моечного отделения. Жара печки хватает, чтобы и в тепле помыться, и баню просушить основательно;
- Второй способ используется для классических деревянных бревенчатых бань размером 3х5 м и более. В данном варианте чаще всего используют каркасную или даже кирпичную перегородку с минимальным количеством теплоизоляции;
- Третий вариант предполагает глухую термоизоляцию перегородки, используется в брусовых, бревенчатых и кирпичных банях с двумя печками и бойлером для горячей воды.
Первый вариант используется довольно редко, чаще всего это бани небольших размеров, переделанные из деревянных бытовок. Чтобы поднять градус в парной и уменьшить потери тепла, перегородка в парной изготавливается своими руками в виде занавеса из полотна вспененного фольгированного полиэтилена или обычного брезента.
Последний вариант простенка с хорошими изолирующими свойствами считается наиболее надежным и простым в устройстве. Поэтому утепленная перегородка в бане из кирпича своими руками строится всегда, если по проекту парилка получается больших размеров, а полноценную печку – «ураган» поставить нет возможности. В этом случае совместную часть стены между мойкой и сауной следует строить из кирпича с обязательным утеплением поверхности со стороны сауны.
Проект бани с моечной. ТОП-60 лучших проектов бани для дачи на 2023 год
Баня: планировка и разделение общей площади на зоны
Если раньше бани состояли только из одной комнаты, то современные варианты этих конструкций включают несколько. Сюда могут входить прачечная, раздевалка, зона отдыха, бассейн, бильярдная и т.д. Для того, чтобы в дальнейшем хозяину не пришлось прибегать к реконструкции и приспособлению постройки, необходимо еще на этапе проектирования сделать все важные отметки в чертежах. Особого внимания заслуживают следующие моменты:

Для удобства современные сауны включают несколько функциональных зон
- внутренняя планировка;
- система водоснабжения;
- электрические кабели;
- канализация и дренаж.
Примечание! Имея перед собой подробную схему, вы сможете значительно упростить и ускорить процесс выбора и расстановки мебели.
Разработка плана бани с учетом условий дачного участка
Чтобы создать идеальные условия для отдыха в бане, необходимо учесть некоторые нюансы, которые позволят избежать проблем при эксплуатации помещения. Желательно, чтобы зона строительства располагалась на суше с низким уровнем наличия грунтовых вод. Перед тем как приступить к разработке проекта, необходимо сразу исключить все участки, не соответствующие этому условию.

Проект сауны 5 х 7 метров с открытой террасой
Если на территории есть колодец, то расстояние между ним и баней должно быть не менее 5 м. Минимальное расстояние между парилкой и жилым домом — 8 м. Дальше от бани компостная яма и туалет расположены, тем лучше. Специалисты рекомендуют заходить с южной стороны. Зимой здесь образуется меньше сугробов, поэтому возможность перекрытия доступа к двери исключена. Лучше, если окна выходят на запад, что облегчит проникновение в комнату достаточного количества солнечного света.
Если на дачном участке есть водоем, то после постройки бани в 15-20 м от него можно использовать вместо бассейна. Кроме того, наличие реки или озера в непосредственной близости от объекта обеспечит систему водоснабжения.

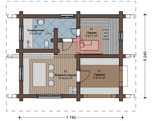
Размеры проекта сауны 7,74 х 6,24 метра
Для небольших участков (3-6 соток) подходят проекты санузлов 3 на 3, фото таких построек в изобилии на сайтах строительных компаний. Даже в таких компактных постройках парная остается основным помещением. Для организации этого помещения следует выделить максимально возможный объем пространства — примерно 8 м². Этого достаточно, чтобы установить 2-3 грядки (полочки) и поставить печь.
Остальные комнаты могут быть включены в планировку санузла 3х4м и более (по желанию). Конструкцию можно использовать по прямому назначению даже при отсутствии бильярдной или санузла. Баня не может существовать без турецкой бани. По этой причине разделение внутреннего пространства на функциональные зоны во многом зависит от масштабов проекта.

Сауны рекомендуется строить на расстоянии не менее 8 м от жилого дома
Если вам нужны дополнительные удобства, вы можете включить небольшую душевую или ванну в дизайн своей ванны размером 3 на 4 метра. После турецкой бани здесь можно смыть грязь и остыть. Типичные проекты характеризуются наличием комнаты отдыха, которая будет обслуживаться в перерывах между парными сеансами. Для его организации потребуется 4,5 м².
Пригодятся и другие помещения, например, гардеробная или тамбур. Они достаточно компактны, чтобы вместить бревенчатую сауну 5 на 5 вместе с основными помещениями.
Обратите внимание: размер купальной зоны на одного человека составляет 2 м².

Проект сауны 6х6 м со вторым мансардным этажом
Проектирование бани: основные помещения и удачные примеры планировок
Даже самый маленький проект не может состоять только из турецкой бани. Чтобы санузел нормально функционировал и условия его эксплуатации обеспечивали комфорт человеку, в планировку следует включить и другие помещения. Для этого внутреннее пространство здания разделено на небольшие комнаты, каждая из которых играет свою роль.
В конструкции бани 5 на 6 м (с учетом небольших размеров такой постройки) нет необходимости использовать несущие стены для разделения пространства на зоны. Достаточно будет легких деревянных перегородок. Они не нуждаются в закладке фундамента и не несут дополнительных нагрузок.

При разделении пространства вместо стен можно использовать стеклянные перегородки для экономии места
За счет разделения основного пространства на несколько секций можно будет эффективно и быстро отапливать парилку. В этом случае остальные помещения не будут отапливаться. Это преимущество особенно полезно для комнаты отдыха.
Гардеробная относится к категории необходимых помещений. Это помещение используется как входная дверь в ванную комнату, предотвращая попадание холодного уличного воздуха в парилку. Здесь можно хранить дрова или другое топливо. Гардеробная подходит для обустройства небольшой гардеробной (гардеробной). При правильной планировке можно легко перейти из этой комнаты в парилку, душевую и комнату отдыха.
ТОП-60 лучших проектов бани для дачи на 2023 год
Современные сауны - это не только простая комната для купания, но и комплекс функциональных зон, предназначенных для комфортного отдыха.
Важные отметки в проекте
- Учет комфортных зон
- Примечание! Детальное планирование поможет упростить и ускорить процесс выбора и расстановки мебели.
- Учет условий эксплуатации
- Выбор места строительства
Проект сауны 5 х 7 метров с открытой террасой
Если на территории есть колодец, то расстояние между ним и баней должно быть не менее 5 м. Минимальное расстояние между парилкой и жилым домом - 8 м. Дальше от бани компостная яма и туалет расположены, тем лучше.
Советы специалистов
- Захожу с южной стороны
- Окна выходят на запад, что облегчит проникновение в комнату достаточного количества солнечного света
Таким образом, создавая проект сауны, необходимо учитывать многие факторы, чтобы обеспечить комфортное использование и долгосрочную эксплуатацию.
Проект парилки. Проект
Чтобы не было проблем со строительством, нужно сделать проект и план парилки для бани. Казалось бы, что нет ничего проще, но все-таки это отнимет немало времени и сил. Если проектируется мини-баня или сауна, то сюда должны входить определенные зоны: предбанник, моечная и парилка.
Предбанник может исполнять и функции комнаты отдыха. Отдельным помещением должна быть помывочная, где может располагаться как бассейн, так и душевая кабина. И обязательно отдельным помещением должна быть парилка, проект которой необходимо начать с установки печи, являющейся главной частью парной.
При строительстве необходимо выбирать размеры печи, соответствующие пропорциям парилки, то есть объему всего помещения. Нужно учесть и соотношение ее мощности с размерами всего помещения. Для этого применяются такие пропорции: на один кубический метр в парной должен быть использован один киловатт тепловой энергии.
Немаловажным является количества людей, одновременно находящихся в парной. Согласно неписаным нормативам, на одного человека нужно приблизительно 0,70 метра площади. Также нужно учесть рост самого высокого члена семьи, добавив к нему двадцать сантиметров. При расчетах проекта не стоит забывать о том, что утепление парилки заберет пару сантиметров пространства, а если сделать помещение чересчур высоким, тогда тепло будет расходоваться понапрасну.
Оптимальная высота парилки – это два метра двадцать сантиметров.
Парную можно построить и без окон, однако в этом случае необходимо позаботиться об искусственном освещении. А если все же окно имеется, оно должно быть глухим и иметь минимальный размер приблизительно пятьдесят на пятьдесят сантиметров, чтобы не выпускать тепло на улицу.
При этом стоит учесть качество стеклопакетов. Они должны быть тепло- и звукоизолированы. Не стоит забывать и о системе вентиляции. Ведь если ее не будет, дерево быстро придет в негодность, а также образуется плесень, что плохо отразится на здоровье любого человека. Для дополнительного утепления можно использовать блоки, вагонку и другие варианты обшивки стен.
Баня с парилкой и помывочной. Варианты планировок
Организация пространства в банном комплексе зависит от площади постройки и ваших пожеланий к функционалу. Рассмотрим фото планировок бани внутри.
- Вариант №1 — план небольшого домика 4х5 м. 20 квадратов вполне достаточно, чтобы разместить самые необходимые зоны: предбанник, комнату отдыха, мойку и парилку. Последние две логично располагать рядом, а гостиную — ближе ко входу.
- Вариант №2 — домик площадью 35 квадратных метров. Здесь к стандартному набору зон добавилась мастерская. Для нее предусмотрели отдельный вход, чтобы минимизировать количество мусора. В остальной части разместились тамбур и раздевалка, санузел, комната, парная и помывочная.
- Вариант №3 — постройка с фундаментом 6х6 м. Квадратная форма определила спиральное расположение функциональных зон: тамбур, за ним — душевая с санузлом и парилка, а оставшееся пространство занимает мини-гостиная с кухней.
- Вариант №1 — банный домик площадью 43 кв. м. Этого метража вполне достаточно, чтобы выделить все необходимые для полноценного отдыха помещения: просторную гостиную-столовую и мини-кухню, сауну, помывочную с купелью, санузел и даже отдельный. Перед входом есть, на которой отведено место под дрова.
- Вариант №2 — баня площадью 53 кв м. Здесь выделены все те же стандартные зоны, но, помимо них, организовали небольшой закрытый бассейн. Он расположен так, что в него удобно попасть и из парной, и из душевой, и из комнаты отдыха. При входе организована компактная прихожая-предбанник с вешалками для одежды и банкеткой.
- Вариант №3 — план банного домика 8,7х7,5 м. Треть всей площади здесь занимает комната отдыха. В противоположной части постройки разместили парную с душевой, а соединяет две эти зоны большой холл. При входе организована мини-терраса.
Окно для парилки. Аргументы «за»
Парная комната вполне может обойтись без окон. Выбирать подобный вариант разрешается исключительно в случае установки хорошей вентиляции. Но есть множество поводов для появления оконных просветов с другой целью:
- страх пребывания в замкнутом пространстве;
- желание видеть солнечный свет;
- обязательно наличие окна в конструкции бани «по чёрному» для обеспечения «залпового» проветривания и выхода дыма;
- изгнание отработанного воздуха посредством дымохода и окна в бане «по белому»;
- понижение слишком высокой температуры во время парильной процедуры;
- проведение гигиенического проветривания в перерывах между использованием парилки;
- при заклинивании дверей форточка поможет не задохнуться и позвать на помощь;
- во время возгорания через окно можно покинуть помещение в аварийном режиме;
- экономия электричества при использовании бани в дневное время суток;
- усиление чувства комфорта по сравнению с полностью глухой парной.
Получается, окно в парилке устанавливать допустимо. Особенно удобно проветривать помещение между группами парильщиков. Так удастся избавиться от обеднённого кислородом воздуха, остывшего пара, снизить температуру до оптимального уровня.
Для окон в парилке можно использовать поворотную, откидную и комбинированную конструкцию.
Опасаться, что сквозь неплотно прилегающую раму в парилку будет поступать холодный воздух, не стоит. Современные стеклопакеты гарантируют полную герметизацию в закрытом виде. При этом неважно, из какого материала они сделаны – пластика или дерева. А если окно слишком большого размера, можно воспрепятствовать потерям тепла путём установления толстого стекла.
Нужно ли окно в парилке
Многие считают, что окно в парилке делать незачем: требуется по максимуму сохранить температуру и пар. Но такой подход имеет много недостатков: нет окна, как будете сушить и проветривать парилку? Ведь без этого никак не обойтись. Выход, разумеется есть — действенная система вентиляции , но ее устройство дело непростое. Окна сделать проще. А еще лучше и эффективнее сделать сразу и окна и вентиляцию. Одно другому не мешает, а просушивать баню нужно тщательно. Тогда и проблем не будет.

Окна в бане нужны. И в моечной и в парилке тоже
Вообще, знатоки русских бань говорят о том, что в парилке необходимо делать два окна. Первое — основное — делают в стене напротив двери. Делают его над полками — это для тех, кому нужен при парении свежий воздух. Размеры этого окна могут быть небольшими — чтобы можно было высунуть голову (это если сильно припечет) или понизить температуру, если вдруг «перетопили». Его задача состоит еще в том, чтобы организовать проветривание между банями. Вы его открываете, открываете двери, происходит быстрая смена воздуха, так называемое залповое проветривание. После все закрывается и температура снова поднимается. На это уже не нужно много времени: прогреты и стены и пол/потолок, а на нагрев воздуха уходит минут пятнадцать-двадцать.
Второе окно — вспомогательное — располагается под полоком. Оно вообще может быть небольшим и непрозрачным. Его задача — просушить полоки. Это обычно самая «застойная» зона, где чаще всего начинаются проблемы с древесиной. Если у вас там будет окно, проблема в значительной мере будет решена.

Баня строится каркасная, но окна в будущей парилке уже поставили — одно основное, второе — глухое для проветривания полок
Все окна в парилке во время процедур закрыты. Иногда, для женщин, например, окошко вверху приоткрывают. Перед и после бани их открывают полностью для того, чтобы обновить и освежить атмосферу.