Бани с открытыми верандами. Что нужно учесть в проекте бани и барбекю
Бани с открытыми верандами. Что нужно учесть в проекте бани и барбекю

Банный оздоровительный комплекс в усадьбе с размещением террасы возле пруда
Существуют СНИПы, которые определяют место здания по санитарным, пожаробезопасным нормам.
По СНИПам:
- удалённость от ограждения, забора — 3 м;
- при наличии колодца на территории приусадебного участка удалённость от бани – 8—12 м (чтобы не загрязнялись грунтовые воды);
- рекомендуемое расстояние до основной постройки, жилого дома — 8 м (из соображений пожарной безопасности).
Прежде чем выбрать проект бани с верандой, террасой, нужно учесть такие факторы:
- Прежде чем определиться с проектом бани с террасой, барбекю, необходимо подумать, сколько гостей будет отдыхать в оздоровительном комплексе . Это определяет габариты постройки, размер террасы для отдыха.
- Строение должно быть соразмерно участку, нужно соблюсти пропорции. Если только баня с террасой расположены не на отдельной территории.
- Будет ли баня с террасой эксплуатироваться в холодное время года. Когда используют в межсезонье, зимой, дополнительно необходимо оборудовать строение отсекающим тамбуром. Холодный воздух с улицы не попадёт внутрь помещения.
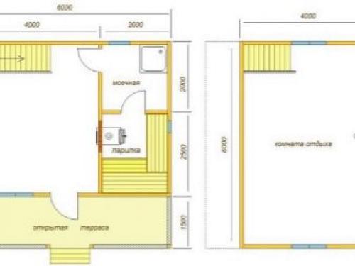
- Выбирают планировку, исходя из оборудования для бани: размера парилки; будет установлен мини-бассейн, купель или душевая кабина, чтобы окунуться после парилки. Варианты планировок предполагают наличие помывочной, санузла, комнаты для отдыха, раздевалки, прихожей (отсекающий тамбур), санузла. Туалет обычно делают в помывочной. Для того чтобы всё разместить, предварительно необходимо сделать чертёж в масштабе.
- Материальные возможности определяют затраты на застройку , подбор материалов, габаритные размеры постройки.
Закрытая веранда к бане. Веранда к бане своими руками: проекты, фото, идеи
Веранда представляет собой постройку, в которую можно попасть из бани и с улицы. Она бывает разных форм: квадратная, прямоугольная, П-образная и т. д. Она необязательно должна иметь ровные углы, оригинально будет выглядеть круглая веранда. Но учтите, что ее строительство будет значительно сложнее.
Самый простой вариант сделать веранду – это пристроить ее к дому. Преимуществом такого расположения является то, что для ее строительства понадобится меньше материалов, т. к. одна из стен у нее уже будет – это часть бани.
Если вы решили пристроить веранду к стене дома, то проверьте, чтобы стена была прочной и надежной.

Традиционный вариант расположения веранды – перед входной дверью. Преимущества подобного размещения: не придется менять планировку, делать дополнительный дверной проем, веранда органично впишется в интерьер и будет удобна в использовании.

Веранда может «опоясывать» баню с нескольких сторон, в этом случае она получится довольно просторной.

Если на участке кроме бани есть и дом, расположенный рядом, то отличным решением станет веранда, соединяющая две постройки. В этом случае даже в дождливый день вы сможете дойти из дома до бани, оставаясь сухим, крыша защитит от непогоды.

Если баня находится рядом с дорогой, то лучше размещать веранду во внутреннем дворе, чтобы можно было отдохнуть в уединении и вдалеке от пыли.
План веранды может быть разным. Кто-то ограничивается столом и лавками, а кто-то делает на террасе полноценную зону отдыха. Здесь можно поставить диваны и кресла, купель и даже сделать бассейн!
Если площадь вашей веранды будет большой, то прекрасным вариантом будет сделать баню с барбекю : расположить на веранде печь и готовить на ней еду.

Если вы выбрали веранду закрытого типа, то летом ее можно использовать в качестве гостевой комнаты или спальни. Тогда желательно, чтобы в ней была кровать или раскладной диван, например.




Проект бани с террасой и спальней. Особенности
Проекты бани с комнатой отдыха можно разделить на три группы. Первая группа – традиционные одноэтажные бани. Они возводятся из капитальных строительных материалов с низкой теплопроводностью, имеют стандартный набор помещений: здесь есть парилка, душевая, комната отдыха, предбанник, иногда терраса.
Комната отдыха располагается на первом этаже рядом с парной и помывочной и соединяет в себе функции раздевалки. Это самый удобный вариант, который позволяет поддерживать оптимальную температуру во всех помещениях, так как печка равномерно обогревает все прилегающие комнаты с подачей пара в отделение сауны.
Такая планировка позволяет расположить топку печи и в парной, что не всегда удобно, и в комнате отдыха.
Истопник находится в комфортной температуре, к тому же легче убирать мусор после растопки. Современные технологичные печи длительного горения могут иметь стеклянный экран, что позволяет любоваться игрой пламени во время отдыха, создавая приятную каминную атмосферу и давая живое тепло обитателям комнаты. Простая планировка, тем не менее, включает все необходимое для банных процедур, имеет большую вариативность по площади.
Минимальная площадь строения – от 16 кв. метров , что удобно для небольших участков, максимальная – по желанию владельца. Этот варинант не требует больших капиталовложений из-за энергоемкости обогрева.
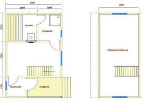
Вторая группа – проекты с комнатой отдыха, расположенной на мансарде или на втором этаже. Здесь потребуется возведение второго этажа или утепление кровли , что повлечет дополнительный расход материалов, фундамент потребуется усиливать на увеличение несущей нагрузки. Этот вариант удобен при небольшой площади строения.


На первом этаже размещают предбанник, раздевалку, парную, помывочную. На втором – комнату отдыха с балконом или без. Потребуется выделение пространства для лестничного марша. Красивая винтовая лестница может украсить интерьер бани.


Третья группа проектов – с вынесением комнаты отдыха на террасу. Такая планировка удобна для летнего использования. В холодное время года террасу потребуется застеклить и продумать систему обогрева. Однако такое расположение комнаты отдыха дает большой простор для воплощения дизайнерских решений.
Панорамный обзор пейзажа добавляет минутам отдыха эстетическое удовольствие.
Выбор планировки зависит от сезонности использования бани. Для круглогодичного применения подойдет первая и вторая группа проектов. Летом достаточно иметь комнату отдыха под навесом с гибким остеклением из пленки или поликарбоната для бюджетного варианта.
Большое значение имеет наличие свободной площади на участке, и если ее мало, то поднять на мансарду комнату отдыха будет хорошим выходом. Отопление второго этажа в холодное время года нуждается в устройстве воздушного или водного контура . Установка печи длительного горения с конвектором на первом этаже может решить эту проблему.
Размещение бани на участке должно отвечать нормам пожарной безопасности и удобству пользования. Окна комнаты отдыха желательно ориентировать на привлекательный видовой обзор . Приятно видеть красивые пейзажи перед глазами, а не забор или соседский сарай.
Желательно выбрать возвышенный участок для хорошей вентиляции и отвода воды . Эффектным дополнением может стать близость искусственного или естественного водоема.
Особое внимание уделяют материалам для строительства бани. Традиционно предпочтение отдается натуральному дереву в виде бруса или оцилиндрованного бревна липы, осины, кедра.
Сосна более доступна по цене, имеет красивый рисунок волокон сучковатой древесины и является популярным материалом для бани на даче. Недостатком ее является пористая структура древесины, которая сильно меняет показатели от нагрева и повышенной влажности, поэтому в парной и душевой сосну нужно обшить рейкой из твердых пород дерева, а для комнаты отдыха сосна с ее приятным запахом и эстетичным внешним видом будет оптимальным решением.
Кирпич – более дорогой материал, но он имеет самые лучшие показатели долговечности, устойчивости к перепадам температуры.
Бюджетную постройку можно возвести и из пеноблоков. Строительство бани из блоков можно выполнить своими руками, даже не имея специальных знаний.
Внутренние помещения обшиваются блок-хаусом, отделываются плиткой или натуральным камнем.
Оформление комнаты отдыха предполагает следование определенному стилю, в зависимости от дизайна подбирают отделочные материалы.
Источник: https://bani-iz-brusa.postroivsesam.info/novosti/luchshie-proekty-ban-s-verandoy-osobennosti
Дом баня с верандой. Особенности проектов гостевых домов
Основным отличием гостевого дома с парной от обычной привычной всем бани – это возможность жить в этом строении как периодически, приезжая только на отдых, так и постоянно. Здесь будет все необходимое для этого – кухня, санузел и спальные комнаты. Так же все системы коммуникации, такие как канализация и водопровод, будут доступны для использования в любое время года.
Материал для строительства гостевого дома с баней необходимо выбирать максимально безопасный для человека, даже при постоянном воздействии на него повышенной влажности и высоких температур. Лучшим вариантом будет деревянная постройка, все основные конструкции которой для увеличения эксплуатационного срока обрабатываются антисептиками и пропитками и другими защитными составами.
Размещение гостевого домика на участке
Удобство использования гостевого дома с баней зависит не только от его внутреннего наполнения, но и от того, в каком именно месте на участке он расположен. В соответствии с правилами пожарной безопасности возведение построек на участке возможно не ближе чем на расстоянии 6 метров от других зданий. Помимо этого, учитывая назначение гостевого домика, необходимо предусмотреть наличие парковочных мест, а так же дополнительной площадки для отдыха, желательно с мангалом и беседкой.
С целью финансовой экономии гостевой дом нужно строить максимально близко к основному дому, но при этом не нарушая пожарной безопасности, для того чтобы прокладка систем коммуникации не потребовала больших вложений.
Какие особенности строительства бани и домов ручной рубки? Как правильно выбрать материалы и на что обратить внимание? Ответы смотрите в этом видео:
Особенности оформления интерьера в гостевом домике
Так как парная в гостевом домике является основным помещением, то интерьер всех остальных помещений лучше всего выполнить в точно таком же стиле. Если он будет создан в деревенском стиле, то и все остальные помещения необходимо выдержать в нем же. Это можно сделать с помощью соответствующей внутренней отделки стен и других поверхностей, а также наполнением этих помещений определенной мебелью.