Баня 3 на 3 — планировка внутри и фото
Баня 3 на 3 — планировка внутри и фото
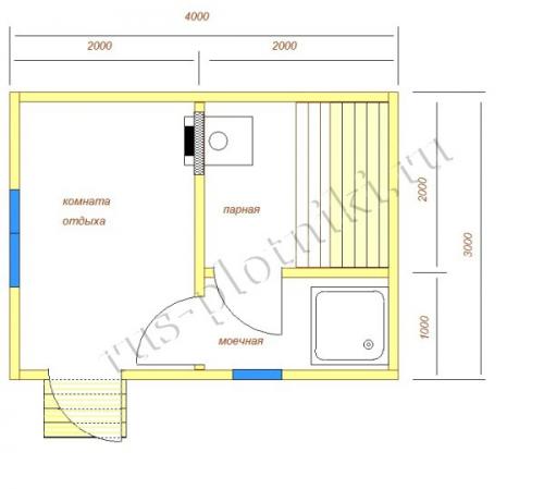
Сегодня у нас на повестке дня баня 3 на 3 — планировка внутри, фото и обустройство. В первую очередь рассмотрим, как грамотно все распланировать в таком небольшом пространстве, как и где установить банную печь, а также как совместить парное и моечное отделение в таких небольших габаритах.
И кстати, этот материал вам пригодится не только, если у вас вся баня 3 на 3. Планировка внутри, фото и схемы подойдут также тем, у кого только парилка 3 на 3 метра, а к ней еще пристроены моечное отделение, комната отдыха, предбанник и топочная.
Планировка бани 3 на 3 метра
Итак, у вас есть небольшой сруб размером 3 на 3 метра. Как на площади 9 квадратных метров разместить все в бане, чтобы было удобно принимать банные процедуры. Начнем с безопасности, а именно с размещения банной печи. На нескольких схемах планировки видно, что печь стоит в ближнем к входу углу.
При этом, естественно, нужно защищать сразу 2 стены банного сруба. В таких небольших размерах ставить вокруг банной печи кирпичные стенки с воздушным зазором не стоит – каждый сантиметр на счету. Лучше применить листовой минерит, который конечно же стоит монтировать с воздушным зазором от стены.
Когда планируется баня 3 на 3, планировка внутри, фото и прочая информация может быть взята и от банного помещения большего размера, но с пропорциональным уменьшением. Например, как разместить полок в такой небольшой бане? Лучше всего располагать его у стены, противоположной входу и установленной банной печи.
Где разместить моечное отделение в бане 3 на 3
Далее, как можно разместить моечное отделение в такой бане?
Единственный разумный вариант – это совместить моечное отделение и парное отделение. Потому что даже если выделить под парилку «кубик» 2 на 2 метра, то у вас останется «аппендикс» шириной всего 1 метр.
Баня 3 н. Проект бани 3 на 4: превращение недостатка в достоинство
6 мин.
Придомовая территория
Владельцам небольших земельных участков всегда приходится идти на компромисс, позволяющий при недостаточной площади создать строение, отвечающее всем запросам хозяев. Полноценная баня — одна из причин головной боли, ведь она при компактных размерах все же должна быть удобной и функциональной. Лучшее решение при дефиците свободного пространства — проект бани 3 на 4. Несмотря на скромные размеры в ней без труда можно разместить все необходимые помещения с максимальным комфортом. Плюс небольшого здания — возможность возвести его самостоятельно в относительно короткие сроки. Надо только выбрать наилучшую планировку, отвечающую всем требованиям хозяев.
Есть ли преимущества у такой бани?
Экономия — самый важный плюс, так как немногие участки могут позволить отнимать большую площадь у посадок и множества других необходимых строений. Если принять во внимание малые масштабы строительства, то они дадут возможность купить самые качественные материалы, но при этом не «вылететь в трубу».

Последняя возможность — шанс соорудить конструкцию, в прочности которой сомнений не возникнет. Сроки возведения небольшого строения не могут не вдохновлять, ведь весь процесс может занять всего неделю, а в некоторых случаях — и того меньше.
Традиционные материалы
Баня , первые упоминания о которой относятся к 907 году, так и осталась неизменным атрибутом быта. Есть и типичный материал, используемый повсеместно при сооружении данных построек. Это древесина, которая после соответствующей защитной обработки становится идеалом для частного строительства. Она:
- экологична, поэтому всегда привлекательна;
- способна противостоять высоким температурам и чрезмерной влажности;
- проста в обработке, что облегчает строительный процесс;
- обеспечивает бане оптимальный микроклимат;
- паропроницаема, имеет низкий уровень теплопроводности.
В малоэтажном частном строительстве популярны 2 разновидности древесины — оцилиндрованное бревно и брус.

Бревно, прошедшее минимальную обработку, обеспечивает долговечность постройки, однако имеет существенный недостаток. Сооружение из этого материала должно дать усадку — около 10%, поэтому ввод в эксплуатацию здания возможен только через полгода после его возведения. Также необходимо конопатить, шлифовать. Многих это условие не пугает, поэтому бани из бревна неизменно популярны, в большей мере это и относится к строениям небольших размеров. Главная причина — оригинальный вид бани, напоминающей постройки давних времен.

Баня 3 на 3 с выносом. 3 на 4
Чем дальше — тем веселее. Планировки бани 3 на 4 внутри, конечно, не могут похвастаться такой вариативностью, как у решений с общей квадратурой полезной площади, превышающих 50 квадратных метров, но, тем не менее, позволяют грамотно распределить все необходимые функциональные зоны с единственно верной целью — сделать использование банного помещения действительно приятным и запоминающимся.
Разумеется, на общей площади в 12 квадратных метров трудно разместиться большой компании. Поэтому при размещении тех или иных зон следует учитывать наиболее вероятный факт: такой небольшой баней, скорее всего, будет пользоваться семья из 2-3 человек либо дружеская компания на столько же человек. Все, что свыше, так или иначе, но будет немного снижать уровень комфорта. Взглянем на варианты внутренней планировки бани 3 на 4 с объединенными мойкой и парилкой.




Если вы используете печь-каменку, то логично разместить ее между парной и предбанником, чтобы распространить тепло по всей площади постройки. К тому же, вынос топочной части в предбанник позволяет вам увеличивать температуру пара, даже не заходя в парную и не растрачивая, тем самым, тепло, которое так или иначе, но выходит через открытую дверь.
Особое внимание следует уделить оформлению парной:
- не располагайте верхний лежак чересчур высоко — есть риск, что человек будет ударяться головой о потолок, когда будет слазить;
- при обустройстве лежаков учитывайте, сколько человек будет регулярно пользоваться баней;
- не располагайте лежаки чересчур близко от печи в своем стремлении сэкономить место — это не только не приносит удовольствие, но даже опасно для жизни
Вариант планировки 3х4 с мойкой и парилкой отдельно
Если проявить смекалку и некоторую инженерную хитрость, то можно осуществить внутреннюю планировку бани 3х4 с раздельным размещением мойки и парилки. В этом есть немало плюсов:
- принимать душ в прохладном помещении куда приятнее;
- возможность раздельного и одновременного использования моечной и парной;
- температура в парной всегда высокая, а пар — сухой и приятный.
Посмотрите на то, какие есть варианты планировки бани 3х4 именно с раздельной интеграцией двух зон.




Баня 3 на 3 сколько нужно бруса. Сколько бруса нужно на баню? Алгоритм и пример расчета

Чтобы подсчитать, сколько бруса нужно на баню, можно воспользоваться простейшим алгоритмом, составленным из пары формул со школьной программы. Для вычислений надо предварительно определиться с размерами постройки, а также с параметрами бруса, который подходит для строительства бани.
Простейший алгоритм расчета количества бруса для бани
Задача заключается в вычислении объема пиломатериала, который потребуется для сборки сруба. Объем этот выражается в кубических метрах (м3), из расчета которых можно легко подсчитать бюджет на покупку материала. Как правило, в большинстве случаев ценник на брус указывается производителем в деньгах за кубический метр.
Чтобы посчитать кубатуру бруса, необходимо заранее знать следующие величины:
- Сечение и высоту профиля бруса.
- Длину стен бани.
- Высоту стен бани.
Чаще всего для строительства бань применяется брус с высотой профиля 150 мм. А вот сечение можно выбирать в зависимости от того, какие теплоизоляционные характеристики требуются от бани. Так, например, если баня сугубо летняя, и зимой эксплуатироваться не будет, то бруса сечением 100 мм будет более чем достаточно. Для всесезонной бани такой толщины стен мало, потому стоит отдавать предпочтение в пользу 150-миллиметрового бруса.
Длина стен будущей бани считается очень просто. Для этого можно воспользоваться планом из проекта. По нему длина всех имеющихся стен просто суммируется. Если нужно обойтись без плана, то достаточно будет только ширины и длины постройки. Но в таком случае брус получится рассчитать только для строительства наружных стен. Перегородки рассчитываются отдельно. Кроме того, они чаще всего делаются из бруса меньшего сечения, чем наружные.
Стандартная высота брусовой бани составляет 2,40 м или 2400 мм. Она получается в аккурат из 16 венцов 150-миллиметрового бруса.
Зная общую длину и высоту стен бани, находим их площадь. Для этого длина перемножается на высоту в одних и тех же единицах измерения. А вот из площади стен и сечения бруса можно уже получить искомый объем пиломатериала, который потребуется купить для строительства. Для этого площадь умножается на сечение выбранного бруса. Оба параметра должны быть выражены тоже в одинаковых величинах.
Примеры расчета количества бруса для бани
Рассмотрим два примера. Один для летней бани с габаритами 6×4 м. Второй – для зимней или всесезонной бани с размерами 6×6 м.
Пример 1
Сначала посчитаем общую длину стен, которые будут собраны из бруса. При внешних размерах постройки 6×4 м периметр будет равен 20 метрам (6+6+4+4=20).
Теперь считаем площадь стен из бруса. Высоту берем стандартную – 2,40 м. Умножив периметр на высоту получим искомую площадь, которая в данном примере составляет 48 м2(2,40×20=48).
Остается только найти объем пиломатериала. Поскольку баня летняя, то для ее строительства подойдет брус сечением 100 мм. Чтобы включить этот размер в расчеты, необходимо миллиметры перевести в метры. 100 мм – это 10 см или 0,1 м. Умножаем площадь стен на их сечение и получаем объем. В данном примере он составит 4,8 м3(48×0,1=4,8).
Теперь, зная цену за кубометр бруса размерами 100×150 мм, элементарно можно посчитать бюджет на покупку пиломатериала для строительства стен бани.
Пример 2
Длина стен второй бани – 24 м. При высоте 2,40 м их площадь составит 57,6 м2. Поскольку баня зимняя, брус нужен сечением 150 мм. Соответственно, объем таких стен получится 8,64 м
Заключение
Как видно из показанных примеров, рассчитать, сколько надо бруса на баню не так уж и сложно. Вполне можно обойтись и без строительных калькуляторов. А воспользовавшись соответствующими таблицами, и зная длину бруса, на основании вычисленной кубатуры можно узнать, сколько бруса надо в штуках.