Баня с мансардой размером 6х6. Что лучше
Баня с мансардой размером 6х6. Что лучше
Чтобы выбрать между оцилиндрованным бревном и профилированным брусом нужно сравнить основные характеристики этих материалов. Брус выходит несколько дороже бревна. Но у него есть свои преимущества. Он меньше весит, что позволяет сэкономить на обустройстве фундамента и перевозке. При этом он обеспечивает помещениям более высокую теплоизоляцию.
Что касается усадки – здесь тоже преимущество на стороне бруса. Его усадка прогнозируемая, даже в случае с материалом естественной влажности. Он «сжимается» более равномерно и плавно. Бревно же в большинстве случаев после усадки дает такие эффекты как появление трещин и межвенцовых зазоров, а также деформация форм. Избавиться от всего этого можно только путем повторной конопатки.
Есть еще один критерий – внешний вид. Баня 6х6 с мансардой и террасой из бревна выглядит как классическая русская изба из сказки. Для многих домовладельцев этот фактор является решающим. Но и брус тоже достаточно эстетичен. Он хорошо смотрится как в классической, так и в современной архитектуре. Так, например, если коттедж на участке построен в стиле хай тек или конструктивизм, то аутентичная бревенчатая постройка будет рядом с ним смотреться негармонично. Зато бревенчатая баня вполне впишется в любое архитектурное окружение.
При всех перечисленных отличиях нередко выбор делается в пользу более удобного в строительстве материала. Строить проще из профилированного бруса. Пазогребниевая система позволяет быстро и без особого труда соединять отдельные элементы. Это сказывается на скорости возведения постройки. Поэтому многие домовладельцы выбирают именно брус.
Фундаменты для бани: какой лучше, какой дешевле
Этапы строительства
Рассмотрим поэтапный процесс возведения бани из профилированного бруса. Первым делом нужно выбрать место для ее расположения. Согласно нормам и правилам она должна стоять на расстоянии не менее 3 метров от забора, 8 метров от дома, 12 метров от колодца, 8 метров от участка соседей. Выбрав подходящее место для постройки можно приступать к планированию и строительству.
Проект
Для строительства бани можно использовать один из типовых проектов, разработанных профессиональными архитекторами. При желании можно заказать индивидуальный проект бани 6х6, планировка которой будет полностью соответствовать имеющимся требованиям.
При проектировании компактной бани самое главное – удобно разместить все необходимые помещения. В ней должна быть парная, моечная, санузел, комната отдыха. Желательно еще иметь небольшой тамбур для эффективного удержания температуры и помещение, в котором можно будет складывать вещи.
Баня с мансардой 6 н. Особенности
Исключительность мансардных бань подразумевает полноценную реализацию разнообразных конструктивных решений. Подбирайте вариант дома-бани с учетом характерных черт. Для любителей проектирования различных вариаций строений баня с мансардой будет отличным способом реализации собственных идей. Одной из главных надстроечных конструкций мансарды является лестница. Подъем на мансарду в бане потребует ее наличия.

Следует тщательно разобрать противовесные моменты с учетом аргументов за и против. Только после учета основных характеристик личного банного сооружения допускается рассмотрение вопросов проектирования. Еще одной конструкционной особенностью бань с мансардой является конструкция кровли. Важно учесть ограниченность мансарды. Чтобы этот этаж был полезным, чаще применяют кровлю ломаной двускатной конструкции.
Нежелательна односкатная кровля, тип традиционного двускатного варианта также нельзя назвать самым удобным. Нередко используют шатровые кровельные конструкции. С геометрическими параметрами более или менее ясно. Подберите вариант подъема на мансарду с учетом того или иного варианта кровли. Например, самыми действенными считаются варианты маршевого вида, но их сложно монтировать на малых площадях. Особенно плохо адаптируются маршевые устройства к конструкции бань 4х4 м.

Больцевые лестницы снабжены достоинствами маршевых устройств. Такие системы нельзя применять к каркасным сооружениям, так как для них требуется прочная несущая опора. К стене крепят ступени. Если баня выполнена из других материалов, устройство вполне приемлемо для использования.

Устройства винтового типа не отличаются удобством, но они эффективные в плане экономии пространства. Зачастую они становятся палочкой-выручалочкой в проекте мансардной бани 4х4 или 5х5 м.
Лучший вариант проекта с верандой, террасой и мансардой предполагает размещение комнат в следующем порядке:
- первый этаж;
- парилка;
- душевая кабина или помывочная;
- тамбур;
- маленькая веранда.

Веранду часто используют в качестве обеденной зоны, заполняя лавками, стульями, столами. Это пространство обычно открытое, поэтому создается атмосфера простой природной красоты. Однако верандой иногда жертвуют в счет увеличения внутренней площади бани. На площади мансарды допускается обустройство спального места, игровой комнаты (например, бильярдной), кладовой. Если мансарда является кладовой, место отдыха целесообразней оборудовать и внизу. Для комфорта на мансарде должна быть предусмотрена общая высота помещения от 2,5 метров.

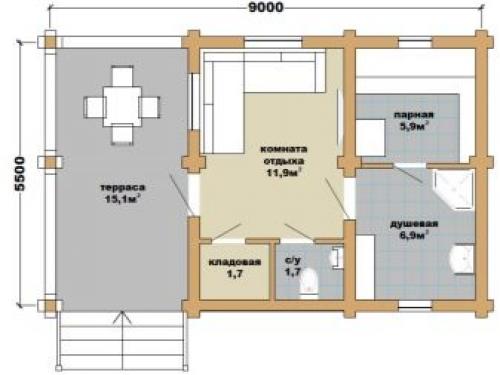
Баня 6 на 9 с мансардой. Обзор типовых планировок
Любое строительство начинается с разработки проекта. Необходимо составить подробный план и чертеж с указанием количества комнат, дверей и окон. А также рекомендуется сразу указывать размеры комнат, дверных, оконных проемов и банной мебели.
Обязательной является схема зарисовки проводки и иных коммуникаций.

Далее определяемся с материалом, из которого планируется строить баню 6х9 м. Лидерами строительства являются проекты из бревна. При наличии многих других материалов (каркасные, из арболита) банный комплекс из дерева – классика жанра: здесь идеальная атмосфера, эстетика. Неплохим вариантом является сруб из бруса 6 на 9. Дерево дает небольшую усадку и хорошо сохраняет тепло.
Даже одноэтажная баня такого размера будет выглядеть довольно просторно. Кроме основных процедурных помещений, можно планировать все что угодно. Советуем остановиться на проекте с тамбуром: здесь будет удобно хранить обувь, верхнюю одежду. Кроме этого, тамбур защитит основное помещение от холода.


Есть проекты, где отведено место под санузел. Это вполне обоснованно: места много не займет, но с туалетом решаются некоторые сложности, а отдых становится комфортным, особенно зимой.


Стоит обратить внимание на бани с террасой.
Ее можно сделать небольшой, запланировав место для стола и стульев.


Если принято решение возводить двухэтажное строение, то второй этаж можно отдать под полноценный гостевой домик со спальнями, балконом.


Предлагаем несколько рекомендаций по разработке проекта бани 6х9 м:
зону строительства планируйте на территории с низким залеганием вод;
располагайте банный комплекс подальше от колодца, скважины с питьевой водой, компостной ямы, туалета;
удобно планировать постройку рядом с водоемом – легко организовать подачу воды.

Баня 5 на 6 с мансардой. Варианты планировки
Обычно считается, что баня 5х6 метров вполне достаточна для нормальной гигиенической процедуры . Но тут есть множество тонкостей и нюансов, которые вытекают из личных потребностей. Выбор проекта (плана) в интернете, заказ его у профессионалов или составление самостоятельно — дело сугубо личного выбора. Простой и удобный вариант подразумевает деление помещения:
на входную зону;
парную;
моечную (несмотря на кажущуюся примитивность, подобное решение очень комфортно).
В этом варианте внутри бани расслабляются прямо там, куда и заходят с улицы. Мойка может быть относительно невелика. Особенно хороший способ экономить место — использование душевой кабины. Если площадь моечной комнаты увеличить, можно расставить там лавки и ушаты. В некоторых случаях оформляют комнату отдыха, пропорционально уменьшая другие помещения.
Однако это вряд ли можно считать хорошим решением. Ведь оно вредит самой сути бань. Компенсировать недостаток места можно, сделав постройку двухэтажной – тогда поддерживаются оптимальные размеры отдельных зон.


Следующий важный вопрос — должна ли находиться парилка отдельно или её лучше совместить с моечным участком. Сделать помещение удобнее помогает оснащение его дополнительными полками (ярусами).
В небольшую парную из обширного предбанника обычно ходят максимум группами по 2-3 человека. В идеале туда лучше вообще ходить поодиночке. К сведению: если невозможно оформить полноценный второй этаж, стоит присмотреться к решениям с мансардой. На строительство такой бани пойдет не так уж много материала.
Качественная работа подразумевает усиленную звукоизоляцию и теплоизоляцию верхнего яруса.
Баня с санузлом. Особенности стационарных конструкций
Стационарный санузел в бане может быть в виде отдельного изолированного помещения внутри строения или небольшой пристройки с внешней стороны. Такой туалет имеет оборудованный постоянный канализационный сток и вентиляцию.
Пристроенный санузел может изготавливаться одновременно со строительством самой бани. В этом случае его фундамент становится продолжением банного основания, а вход организуется изнутри строения. Если туалет пристраивается уже к действующему объекту, то он возводится непосредственно возле фундамента бани. Вход в него может быть нескольких вариантов:
- изнутри, когда в стене прорубается дверь;
- в тамбуре: для того, чтобы связать туалет и баню строится еще и тамбур (сени);
- с улицы: вход в туалет расположен на улице, но в непосредственной близости от банного входа.
Фото 1. План бани с туалетом внутри помещения
Проект бани с туалетом в тамбуре
Проект пристенного блока с туалетом к бане
Совмещение бани и санузла (фото 1 наглядно иллюстрирует его) с внутренним его размещением закладывается в проект сооружения. Существует множество типовых проектов, которые позволяют реализовать такую мысль с оптимальным расположением всех отделений. Дело в том, что туалет является достаточно специфическим помещением, и он не должен нарушать комфорт отдыхающих людей.
Важное условие! Для туалета в бане необходим стационарный канализационный отвод нечистот.
Он может иметь несколько вариантов исполнения:
- Отдельный накопительный септик за пределами бани, в который по трубе самотеком направляется сток нечистот. Как правило, он располагается недалеко от банной стены, но изолирован и не издает запахов.
- Общая канализационная система. Туалетный сток совмещается с банным сливом из парилки и моечного отделения, если оборудована система полной местной канализации с несколькими септиками.
- Выгребная яма. Такой вариант подходит только для пристроенного санузла.
Ддля выведения нечистот из бани можно соорудить септик или выгребную яму
Другим важным требованием для стационарного внутреннего туалета является наличие воды для смыва в унитазе. Система смыва может быть организована такими способами: центральный водопровод; собственный водопровод из скважины или колодца; накопительная емкость.
Источник: https://postroivsesam.info/novosti/banya-s-sanuzlom-planirovanie-osnova-ustroystva-sanuzla
Баня с мансардой 6 н. Каркасная баня 6 х 6 с мансардой
Каркасная баня 6 х 6 с пристроенной мансардой подойдет для участков площадью от 10 соток. Может использоваться в качестве гостевого домика или небольшой дачи, если для основного жилого здания места недостаточно. Выбрав нужную толщину стен, постройку можно адаптировать для сезонного или постоянного посещения и проживания. Благодаря простоте технологии для возведения под ключ каркасной бани 6 х 6 с мансардой нужно не больше 3 недель.
Варианты планировки
Базовый проект каркасной бани 6 х 6 метров включает парилку, помывочную, санузел, комнату отдыха на первом этаже, спальню в мансарде. Если площадь здания более 55 м², наверху можно организовать два отдельных помещения для гостей или членов семьи. При необходимости в планировку вносятся изменения (если количество перегородок не меняется, стоимость не увеличивается).
Для небольшого участка стоит купить проект с террасой – в этом случае устраивать отдельную крытую площадку для отдыха не придется.
От чего зависит цена каркасной бани 6 х 6 с мансардой?
На итоговые затраты влияет комплектация здания (тип фундамента, пристройки), высота стен, тип кровли, необходимость отделки и защитной обработки. Заказывая строительство бани в Москве или МО в компании «Каркасник», вы можете точно рассчитать предстоящие расходы – в карточке каждого проекта указаны все материалы, основные и дополнительные работы.
Оплата выполняется поэтапно. Первая часть (70 %) вносится при доставке материалов и по приезду строителей на участок, вторая – после подписания акта сдачи-приемки.
Баня 6х6. Баня с террасой
Планировка этой бани отличается повышенным комфортом. К плюсам бани 6х6 с террасой можно отнести максимально большую комнату отдыха, где разместится не только стол с сиденьями, но и дополнительное оборудование. Для бани 6 на 3 планировка может также включать террасу, которую располагают по длинной стороне.
Парная и душевая не рассчитаны на единовременное посещение большого количества человек, но компактные размеры позволяют быстро прогревать эти помещения и использовать «посменно».
Открытая терраса идеально подходит, чтобы удобно расположиться на ней в теплое время года после прохождения банных процедур. Для бани 6х6 планировка, фото которой размещено ниже, является одним из проверенных типовых вариантов.
Баня 6х6 с террасой и мансардой
Баня из бруса 6х6 с мансардой преподносит массу вариантов для использования дополнительного пространства. Это может быть, например, еще одна комната отдыха большого размера, где можно оборудовать бильярдную.
Кроме того, на мансарде можно оборудовать комнату для гостей, которые приезжают и остаются ночевать, или большую столовую для проведения праздников, банкетов и вечеринок.
Проект дополнительно оборудован вместительным балконом, который позволяет с комфортом расположиться на нем всем желающим.
Баня с мансардой
Еще один неплохой вариант планировки «оздоровительного домика» – баня 6х6 из бруса с крыльцом и мансардой. Здесь зонам отдыха отведено максимальное пространство. К положительным чертам такой планировки относятся:
- Наличие небольшого тамбура, туда попадаешь с крыльца. Он станет дополнительной преградой на пути холодного воздуха и позволит дольше сохранить тепло в помещении.
- Окна в комнате отдыха и душевой позволяют достичь высокого уровня естественного освещения.
- В парилке от окна отказались для снижения теплоотдачи в помещении.
- Большая мансарда предоставляет массу вариантов использования полезного пространства.
К минусам подобной планировки можно отнести небольшую площадь функциональных помещений: парилки и душевой, а также отсутствие санузла. Но при большом желании и этот недостаток можно исправить, баня 6х3, планировка которой позволяет разгуляться еще меньше, и вовсе не предоставит такого шанса.
Баня 6х6 с мансардой и террасой
Максимально аскетический и бюджетный вариант планировки бани. К его плюсам относятся большой размер комнаты отдыха, мансарда без перегородок и открытая терраса, где дополнительно размещается необходимое оборудование, например, мангал.