Планировка бани 4х5 мойка и парилка. Основные этапы строительства бани 4 х 5
- Планировка бани 4х5 мойка и парилка. Основные этапы строительства бани 4 х 5
- План бани 6 н. Тип постройки и ее размещение
- Проект бани 4 на 5 с террасой. Проекты
- Планировка маленькой бани. Виды
- Как разделить баню на парилку и мойку. Из чего сделать перегородки в бане
- План постройки бани. Новые и красивые проекты бань: чертежи, фото, видео
- Баня с парилкой и помывочной. Баня с парилкой и мойкой: особенности планировки бань размером 4х6, 3х4, 5х5, 3х6, 3х5 с совмещённым или раздельным интерьером
- Проект бани 5 на 4 из блоков. Достоинства и недостатки материала
- Как отделить парилку от мойки. Баня с парилкой и мойкой в одном помещении: преимущества и недостатки
Планировка бани 4х5 мойка и парилка. Основные этапы строительства бани 4 х 5
От предков к нам дошло немало советов по возведению конструкций из дерева, которые помогают сохранить материал на долгие годы. Появление новых стройматериалов внесло дополнительные коррективы и еще более упростило жизнь строителя. Поговорим о возведении бани подробнее. Если расписывать процесс пошагово, то можно без проблем самостоятельно спроектировать и построить деревянную баню:
- Выберите точное место для строительства. Желательно, чтобы оконные проемы смотрели на запад. Так в помещение будет попадать больше света, а в вечернее время мягкие солнечные лучи добавят уюта банным посиделкам.
- Все проекты бань в обязательном порядке предусматривают наличие фундамента. Он должен быть не менее полуметра в высоту и 30 см в ширину. Есть вариант поставить строение на сваи.
- Отступив около 2-х метров от фундамента, выройте сливную яму (в нее будет помещен конец канализационной трубы).
- Саму трубу укладывают в траншею под углом к яме (для обеспечения полноценного слива).
- Для сруба лучше использовать бревно диаметром 180 мм. Важно соблюдать чередование толстого и тонкого бревна при укладке. Ближе к фундаменту располагают бревна лиственных деревьев, а ближе к крыше – хвойные. Считается, что наиболее «полезная» кедровая баня.
- Для обеспечения герметичности конструкции между бревнами закладывают веревку из джута или льноволокно.
- Кровлю покрывают либо черепицей, либо шифером.
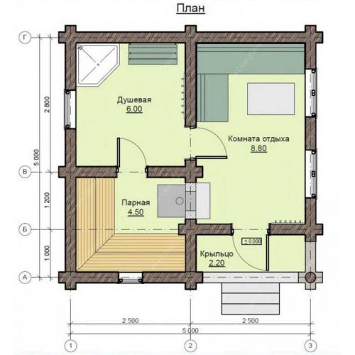
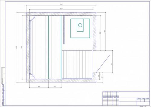
- Планировка бани имеет ряд особенностей. Наибольшую популярность получило деление помещения на тамбур и четыре комнаты. Входная дверь должна обеспечивать максимальное сохранение тепла внутри бани. Для предотвращения сквозняков многие строители выбирают установку тамбура с площадью около 0,4 кв. м. За ним идет комната отдыха приблизительно в 7,6-8,8 кв. м. Для того чтобы войти в парную, нужно пересечь душевую (4,0 кв. м). В душевой перегородками отделяют санузел. Желательно, чтобы парная (4,0 кв. м) имела 2 ряда полок и нижнюю скамью. Причем верхняя полка располагалась на расстоянии 1 метра от потолка.
- Внутреннюю обшивку банного помещения следует делать из хвойных сортов деревьев.
- Высота потолка должна быть минимум 2,3 м.
- Также необходимо обеспечить тепло- и гидроизоляцию.
- Нужно организовать систему вентиляции помещения, которая может быть выполнена в виде отдушины.
План бани 6 н. Тип постройки и ее размещение

Конечно, залогом истинного комфорта и удовольствия от бани становится также и правильное размещение проекта. С определения места и типа строительства вообще начинается любой проект, и баня в этом плане исключением быть не может.
Отдельное сооружение

Самый безопасный вариант, который рекомендуется экспертами и мастерами по причине его безопасности. При выборе строительных материалов для бани 4х6 без консультаций профессионалов не обойтись, так как разный вид почвы определяет разный подход к построению фундамента.
Особенно впечатляет планировка бани 4х6 на берегу реки или озера. Вот несколько фото с таким вариантом.



Конечно, у этого варианта планировки бани куча плюсов: нет ничего лучше после горячей баньки окунуться в слегка прохладную воду. Однако стоят такие участки, как правило, очень больших денег, да и далеко не всегда особенности рельефа той или иной местности позволяют в полной мере воплотить интересные инженерные задумки.
Пристройка к дому

Распространенный проект, который требует обеспечения хорошей изоляции пристройки. Ведь наличие общей стены обусловливает необходимость защиты дома от различных эксцессов. Да и от повышенная влажность также может негативно повлиять на основное сооружение, существенно снизив его эксплуатационные качества. Получается палка о двух концах: такой вариант планировки вроде бы и более экономичен, но при глубоком рассмотрении вопроса обнаруживается необходимость серьезных вложений в тепло и гидроизоляцию.
Проект бани 4 на 5 с террасой. Проекты
Составляя проект, рекомендуется не забывать о важных нюансах. Планировка делится на два основных помещения.
В одной делается комната отдыха, во второй присутствуют:
- парилка;
- душевая;
- туалет.
Размеры комнат внутри не обязательно должны быть одинаковые. Здесь все зависит от воли домовладельца.
Для компактного расположения печь обустраивается около стены со стороны комнаты отдыха. Можно также агрегат расположить в любой части объекта, это дело сугубо добровольное. Важно, чтобы пожарная безопасность при этом была на должной высоте.
Печь устанавливается с выводом топочной дверцы в предбанник.
Важной деталью является тамбур, его присутствие дает возможность:
- сохранять тепло в зимнее время года;
- экономится свободная площадь в других помещениях.
В процессе проектирования бани 5х4 м необходимо иметь в виду существенные детали:
- вход позволительно делать с любой стороны, связано это с различными особенностями планировки участка и самого объекта;
- пространство между основным домом и баней делаются на минимальном расстоянии;
- расстояние между помещениями должно быть минимальным;
- труба для стоков должна находиться как можно ближе к канализационной яме;
- чаще всего парилка делается более просторной, чем помывочная.
Оборудуется мойка, в самой парилке находится печь дровяная или электрическая. В помещении делаются полки, ширина которых не менее 50 сантиметров. Отдельно можно сделать туалет.
Таким образом, 4x5 метра вполне достаточно, чтобы сделать хорошую баню , места для этого вполне может хватить. Соседнее помещение обогревается за счет тепла, поступающего из парной.
Второй вариант – это строительство и обустройство домика-бани. Вариант этот популярен. Можно сделать крыльцо и террасу размером 140 х 390 см, что вполне достаточно, чтобы вся семья уместилась с гостями за одним столом.
Предбанник реально сделать очень многофункциональным. В нем можно:
- хранить дрова;
- переодеваться;
- отдыхая, смотреть телевизор или петь караоке.
Обязательно следует обшить стену огнеупорным материалом; место, где стоит печка, обшивается нержавейкой, толщина которой не менее 2 мм. В такой компактной бане можно устроить небольшую душевую кабину и унитаз. Монтаж небольшого тамбура никогда не помешает, он может быть как перед раздевалкой, так и перед парилкой.
Преимущества веранды очевидны:
- это может быть идеальным местом для отдыха в теплое время года;
- широкий навес и наличие окон могут решить проблемы, если на дворе ненастная погода.
Важно при проектировании бани рассчитать размер каждого помещения. Следует учитывать при планировании: сколько человек будет находиться одновременно в помещении. Если будет париться 2-3 человека, то достаточно будет парилки не более 5 квадратных метров.
Предбанник удобно использовать для размещения в нем стола и стульев, а также телевизора и холодильника. Некоторые домовладельцы даже ставят СВЧ печь.
Предбанник рассчитывается по такому правилу: один человек – не меньше 1,2 квадратных метра свободного пространства.
Нередко в предбаннике ставится окно – стеклопакет, чтобы улучшить воздухообмен. Дверь, ведущая из парилки в предбанник, должна открываться в сторону предбанника.
Моечная – важное помещение, в котором должна присутствовать как холодная, так и горячая вода. Воду можно нагревать с помощью водонагревателя, который контактирует с печью.
Расчет делается по одному квадратному метру на одного человека. Также рационально в моечной разместить душевую кабину.
Основные факторы, которые оказывают влияние на проектирование помещения:
- габариты печи и ее технические особенности;
- расстояние между печью и окружающими предметами в комнате;
- количество людей, которое может одновременно присутствовать в помещении;
- размеры полок и их расположение.
Говоря о расчете в среднем одного квадратного метра на человека, следует учитывать, что в эту площадь не входят квадратные метры, которые занимают различные предметы, расположенные в парилке, а также проходы. Высота парилки составляет порядка двух метров.
Такие параметры дают возможность для максимального обогрева небольшого помещения.
Желательно, чтобы комната по длине и ширине превосходила два метра. Полки нередко делаются даже более одного метра, при длине в 2,2 метра. Такие размеры позволяют с комфортом разместиться практически любому человеку.
При отсутствии достаточного пространства можно сделать «сидячие места», ширина которых порядка 50 см.
Основные параметры проекта бани 4 х 5 метра, защищенной от ветра и дождя:
- площадь по внешнему основанию – 20 м2;
- площадь внутренняя – 12 м2;
- веранда – 3 м2;
- парилка – 5 м2
- моечная – 4,3 м2;
- предбанник – 3,5 м2.
Мы видим, что план бани 4х5 м сделать несложно. Но можно купить баню уже готовую, это будет стоить в районе 500 тысяч рублей, но сюда не входит цена отделки и утепления.
Планировка маленькой бани. Виды
Современные бани можно условно поделить на несколько видов:
- Сухая – влажность в такой парилке не превышает 25%, а температура воздуха может подниматься до уровня 120°С. Такая баня считается самой жаркой и не очень популярна среди наших соотечественников.
- Влажная – классическая русская баня, влажность в парилке может подниматься до 100%, а температура для комфортного прогревания, как правило, колеблется от 50 до 90°С в зависимости от пожеланий банщиков.
- Водяная – по такому типу обустроены турецкие сауны, ключевая роль в данном случае отводится непосредственно пару и влажности.
Любая баня включает в себя необходимый минимум помещений:
- Предбанник или тамбур – то место, где можно оставить вещи перед походом в баню. Также здесь можно хранить дрова для топки печи и веники.
- Парилка – это сердце любой бани, она должна быстро нагреваться и долгое время держать жар. Здесь находятся полки и печь. Обычно лавки расположены на трех уровнях, чтобы на первых двух можно было сидеть, а на третьем, который в два раза шире, лежать. Парная должна быть расположена максимально далеко от входной двери. Ее размеры зависят от того, сколько человек одновременно будет в ней париться, и, как правило, в парилке нет окон.
- Моечная присутствует в современном варианте, если продумана система канализации. Здесь может находиться полноценная душевая кабина. Совмещать или разделять баню и моечную, каждый решает сам. Деревенская баня представляет собой единое пространство, в котором сначала парятся, а затем сразу моются. Но такой вариант многим кажется неудобным, поэтому чаще всего в современной русской парной моечная и парилка разделены.
- Комната отдыха . Обустройство данного помещения зависит от фантазии и возможностей хозяев.
Важную роль в бане выполняют размеры парилки. Для финской сауны больше всего подходит небольшая парилка, в которой, как правило, люди сидят на полках и двигаются мало. Этого не скажешь о классической русской бане, в которой принято париться с ароматным веником, отсюда и необходимый минимум для одного человека – около 2 м² . Сюда стоит прибавить размеры печки, и независимо от того, какую печь вы выберете – дровяную, газовую или электрическую – также важно понимать, что расстояние от печки до полок и деревянных стен должно быть минимум 20 см.
Необходимым минимумом для бани считается тамбур, парная и моечная.
Если площадь позволяет, то дополнительно можно разместить зону отдыха, туалет и место для контрастного душа.
Но для многих не по карману строительство капитальной бани на участке. И на этот счет есть прекрасная альтернатива – мобильная баня из бруса. Она представляет собой передвижную конструкцию в виде контейнера на колесах . Внутренняя обстановка мало чем отличается от традиционной бани. И к тому же, перевозную сауну можно использовать не только на загородном участке, а также в любом месте: в экспедиции, на строительной площадке или в путешествии.
Как разделить баню на парилку и мойку. Из чего сделать перегородки в бане
Значение простого, на первый взгляд, элемента настолько велико, что нередко хозяева решаются на серьезное перестраивание помещения с переносом простенков. Причиной такого решения может быть неудачная конструкция или неправильное первоначальное ее месторасположение. Понятно, что капитальную перегородку в бане никто сносить не будет, поэтому часто простенки между мойкой и парилкой ставят по временной схеме.
Внутренние перегородки в бане традиционно делают по нескольким схемам:
- Каркасные облегченные простенки. Наиболее удобный тип перегородок для парилок любой планировки. Возможность подобрать толщину теплоизоляции решает проблему точного дозирования количества тепла, перетекающего из парилки через стену в моечное отделение;
- Рубленые или сборные перегородки из бруса. Такие конструкции могут выполняться по разборной схеме, но лишь при условии, что при строительстве бани на стенах был установлен соответствующий крепеж;
- Простенки из кирпича или газобетонных блоков, применяются лишь при условии наличия внутри бани фундамента по линии разделения парилки и мойки;
- Стеклянные конструкции простенков удобны тем, что не требуют специальной гидроизоляции. Кроме того, часть излучаемого печкой тепла может беспрепятственно проникать через стекло внутрь мойки.
Кроме того, существуют конструкции временных раскладных перегородок, выполняемых по схеме жалюзи или ширмы. Используются для большого помещения бани в зимнее время, когда требуется уменьшить размеры парилки и тем самым поднять температуру внутри парного отделения. Такую же схему можно встретить в небольших баньках, протапливаемых по-черному.
Важно! Лучшим решением все же будет кирпичная перегородка в бане, стена между парилкой и мойкой служит одновременно тепловым аккумулятором.
Вся энергия, накопленная в кирпичном простенке от печки в парилке, будет использована для просушки и вентиляции помещения бани. Именно этим отличается перегородка из кирпича в бане от каркасных, блочных и брусовых простенков, они лишь изолируют помещение мойки, но никак не способствуют ее сохранению и проветриванию.
План постройки бани. Новые и красивые проекты бань: чертежи, фото, видео
Баня в отдельно стоящем помещении – комфортный отдых в загородном доме и радушный прием для дорогих гостей. Отдельно возведенная баня не доставляет неудобств с влажностью внутри основного помещения и не поднимает температуру в доме. Банное строение – любимое место отдыха, оздоровления и роскошное украшение двора.
Проекты бань. Чертежи и фото
Банный типовой проект – несуществующее определение, так как у будущего владельца бани есть свой вариант парной: необычный, нетипичный, на 100% уникальная схема постройки. Но для получения «красивой картинки», подумайте и над другими характеристиками будущей парной:
- место расположения ,
- материал (если основным сырьем будет деревянный брус, то каким он должен быть: параметры и цена),
- место возведения печи ,
- решение по отделочным работам (в каком стиле проектируется интерьер парной).
Спроектировать баню удачно и наилучшим образом станет возможным, если застройщик сразу определится со следующим:
- мощность нагрева печи ,
- каким образом баня будет взаимосвязана с домом (планировка бани может быть, как пристройкой самого дома, так и отдельно стоящим зданием),
- максимальное количество гостей в парной,
- толщина стен и необходимость утеплителя (зависит от климатических условий региона, частоты посещения бани и отдаленности от дома),
- внешняя отделка.
Обратите внимание! Парная – это неделимая часть всей придомовой территории, поэтому она должна гармонировать по внешнему облику с основным домом и другими дворовыми постройками.
Баня с террасой
Удачное сочетание для отдельно стоящего домика даже с небольшой площадью. Сама терраса (площадка перед входом, над которой обустроена только кровля) может быть до 10 кв. м . За входом – предбанник, далее – зона отдыха. Отсюда можно попасть в моечную и на финише – в парную. Распределение комнат устроено так, чтобы тепло максимально долго оставалось в парной. Из-за такого маршрута есть некоторые проблемы с освещением (его недостатком), но любая светодиодная лента по периметру потолка легко справится с недостатком. (Читайте статью на тему “Расстояние от бани до соседних строений: нормы и требования к строительству бани”)
Русская баня – современный вариант
Предназначена для большой компании, подразумевает немалую площадь. Комнаты следуют по такому маршруту: предбанник , направо – бассейн или купель , налево – комната отдыха. Уже из комнаты с бассейном можно попасть в парную или моечную. Удачное расположение комнат позволяет гостям в комнате отдыха не подвергаться высокой температуре из парной, так как между этими зонами расположена зона с бассейном. Этот отсек славится пониженной температурой из-за облицовочной плитки и прохладной воды в бассейне или купели.
Парная с бассейном
Бассейн – давно не редкость для парной, как и зимний сад или несколько тренажеров. Располагая в бане сразу столько разных зон, формируется комплект для отдыха. Иногда бассейн заменяют купелью, но тогда она располагается прямо в банной.
Проект с бассейном или купелью будет удачным, если общая площадь начинается от 60 кв. м . Иногда бассейн совмещают с моечной. Для этого комнату делают немного просторней и размещают возле бассейна душ. (Читайте статью на тему “Как правильно посещать баню и сауну — правила посещения”)
Баня с пристройками
Может возводиться поэтапно. Подходит для тех, кто летом любит переселяться в небольшой домик и пользуется баней в любой сезон года. Изначально возводится основная парная с санузлом, моечной и прачечной. Позже пристраивается гостевая комната и зона для отдыха, навес для барбекю, ванна с джакузи и др. Подходит тем домовладельцам, которые не имеют сразу большой суммы денег для возведения большого комплекса. (Читайте статью на тему “Строительство бани своими руками (Проекты, фото)”)
Двухэтажная баня с балконом, террасой и мансардой
Один из лучших проектных вариантов, так как сам по себе эскиз уже напоминает сказочный домик. Минимальные размеры застройки – 35 кв. м . Материал для стен и потолка – деревянный брус, фундамент – бетонные плиты, крыша мансарды – из металла (листов). Учитывая, что весь второй этаж может будет занят комнатами для сна и отдыха, баня превращается в полноценный домик для проживания. (Читайте статью на тему “Оптимальный размер бани и сауны — стандарты и размеры”)
Виды бань
Разнообразие парных исходит от большого количества наций и традиций. В каждом виде бани индивидуальная влажность и температура, отличаться может и сама подача пара.
Хамам – турецкая или паровая баня
Современные парные в коммерческих заведениях выглядят именно так. Особенным спросом хамам пользуется у слабого пола. В нем женщины находят что-то загадочное и экзотичное. Температура здесь поддерживается не высокая – 40-45°С . А влажность максимальная: . Это сочетание температуры и влажности считается оптимальным, поэтому микроклимат приятный и позволяет проводить различные косметические манипуляции.
Баня с парилкой и помывочной. Баня с парилкой и мойкой: особенности планировки бань размером 4х6, 3х4, 5х5, 3х6, 3х5 с совмещённым или раздельным интерьером
Парилка и мойка являются основными помещениями в бане. Остальные помещения являются дополнительными, но не менее необходимыми, чем парилка и комната для охлаждающих процедур.
В большой бане легко разместить все эти помещения, а в небольшом пространстве хозяину часто приходится совмещать или делить все необходимые помещения на небольшие изолированные комнаты.

Необходимые комнаты в бане
Для полноценного и комфортного отдыха, каждая баня должна включать в себя следующие помещения:
- Парилку;
- Комнату для охлаждающих процедур;
- Туалетную комнату;
- Раздевалку;
- Комнату отдыха.

Парилка является помещением в котором обязательно должна быть печь и полки для того, чтобы можно было посидеть в парной. Комната для охлаждающих процедур должна быть оборудована душем или бочкой с холодной водой.
В этом помещении можно разместить бассейн. Туалетная комната должна быть оборудована унитазом. В этой комнате можно установить раковину. Раздевалка в бане необходима для хранения верхней одежды в то время, пока гости будут принимать банные процедуры.

Комната отдыха зачастую в небольших банях совмещается с раздевалкой и оборудуется столом и стулья или лавочками для сиденья.

Разнообразие проектов бани с парилкой
Любое строительство начинается с выбора проекта. В наши дни существует великое множество проектов бань с различными параметрами. Поэтому владельцу приусадебного участка остается только выбрать оптимальный исходя из личных предпочтений и возможностей.

Выбирая подходящий проект нужно учитывать функционал. Если банная постройка необходима только на летнее время, то можно выбрать самый простой проект бани с парной, моечной и комнатой отдыха.
- Баню для круглогодичного использования стоит оборудовать туалетной комнатой, раздевалкой — местом для верхней одежды.
- Кроме того существуют проекты бань с мансардой, где помещения для водных процедур оборудуются на первом этаже, а мансарда используется в качестве комнаты отдыха.
- А также, проекты бань с террасой, которая может быть использована как место для отдыха в теплое время года.

Терраса может быть застекленной. В этом случае, ее можно использовать для отдыха в зимнее время года. Бани с террасой способствуют экономии денежных средств на теплоизоляции и внутренней отделке.
Разграничение банного пространства на зоне зависит от целей использования бани:
- Если баня необходима для семейного пребывания, то парная и моечная должны быть просторными, а комната отдыха может быть совмещенной с раздевалкой;
- Если планируется использовать баню для отдыха в кругу друзей, то комнату отдыха следует сделать просторной, а парилку небольшой — для посещения нескольких человек одновременно. Комнату для банных процедур можно оборудовать только душем или небольшим бассейном и душем.

Важные нюансы при возведении бани
- Проектировать баню следует с учетом будущего ее использования.
- Составляя проект следует учесть климатические условия данной местности.
- Принять во внимание финансовые возможности, геологические особенности участка земли и его размер.
- Определить количество человек, которые будут посещать баню.
- В какое время года преимущественно будет использоваться банное помещение.
- Рядом с парилкой может находится душевая кабина.
- В парилке может стоять большая бочка с холодной водой для охлаждающих процедур.
- Парилка и моечная могут отделяться стеклянной перегородкой.

Учитывая все эти нюансы можно составить проект бани и рассчитать смету.

Правильная планировка бани с парилкой и мойкой
Комфортность пребывания в бане зависит от ее планировки. Например, предбанник защитит другие помещения от попадания в них холодного воздуха с улицы. Здесь можно сделать раздевалку, оборудовав ее крючками для одежды и лавочкой.

Как правило следующим помещением является комната отдыха, в которой размещается стол и стулья для того, чтобы можно было посидеть после банных процедур.

Далее располагается помещение для охлаждающих процедур и парная. По расположению этих помещений есть различные вариации.

Во-первых, мойка и парная могут быть полностью изолированы друг от друга, а могут совмещаться:

Во-вторых, комната для охлаждающих процедур может быть оборудована бассейном, душем, кадкой с холодной водой, лавочкой. В моечной можно установить унитаз для экономии пространства.

Совмещение парилки и мойки
Совмещение парной и моечной является вынужденной мерой, если для бани невозможно выделить большой участок земли. Как правило размер таких бань составляет от 9-ти до 16-ти квадратных метров.
Проект бани 5 на 4 из блоков. Достоинства и недостатки материала
Пеноблок – материал не идеальный, он имеет и свои плюсы, и некоторые минусы. И в зависимости от того, какими характеристиками должно обладать строение, в частности – баня, а также зависимо от того, каким бюджетом располагает строитель, и выбирается материал. Пеноблок имеет небольшую стоимость, он очень легкий (масса блока – около 10 кг), чем в первую очередь и привлекает потребителя. Однако это далеко не все его достоинства.
- Баню из пеноблоков можно построить самостоятельно, имея на руках готовый проект , так как с перетаскиванием блоков и строительством из них вполне справится один человек.
- Пеноблок настолько легкий и имеет настолько небольшую плотность, что даже не тонет в воде. Чтобы он затонул, он должен полностью пропитаться водой. Также и мощный фундамент под баню из этого материала благодаря его легкости делать не придется.
Баня из пеноблоков своими руками
- Кладку из пеноблоков делать легко даже без особых навыков и умений. Главное – соблюдать правила.
- Работать с блоками легко – их можно пилить даже ножовкой при необходимости.
- Баня из пеноблока не даст усадки, в отличие от строения такого же типа, но возведенного из дерева.
Характеристики материала
- Пеноблок безопасен для здоровья человека и для окружающей среды, так как не содержит вредных веществ.
- Пеноблоки не горят, а значит, пожарная безопасность будет на высоте. Также этот материал не гниет, и баню из него не придется регулярно обрабатывать защитными средствами. Срок службы такой бани будет достаточно велик.
- Благодаря наличию пор и диффузным свойствам пеноблок является «дышащим» вариантом материала.
Как отделить парилку от мойки. Баня с парилкой и мойкой в одном помещении: преимущества и недостатки
Баня с объединенными мойкой и парилкой в настоящий момент встречается не так часто. Этот вариант выбирают преимущественно в том случае, если площадь участка не позволяет сделать два отдельных помещения.
Компактная баня с объединенными помещениями дает возможность сэкономить не только территорию, но и деньги. Стоимость подобной постройки будет значительно дешевле, чем цена аналогичной по размерам бани с отдельными парилкой и моечной.
Еще одним плюсом является то, что баню, где парная и моечная объединены, в зимнее время посещать значительно приятнее: она быстро нагревается и быстро проветривается. Летом же, наоборот, охладить моечную достаточно сложно.
Баня с объединенными мойкой и парилкой имеет существенные недостатки. Первый из них связан с тем, что при такой конструкции гораздо сложнее поддерживать в парной нужные условия. В частности, если кто-то в моечной помоется, то в помещении повысится уровень влажности, и в парной будет менее комфортно. Да и запах мыла или геля для душа также мешает созданию нужной атмосферы.
По этой причине придется сначала всем париться, а только потом мыться, в противном случае вы будете вынуждены терпеть высокую влажность.
Кроме того, мыться в нагретой парной невозможно, поэтому придется ждать, пока помещение остынет.
Очевидно, что баня с объединенными моечной и парной – это вариант для небольшой компании (до 4-х человек). Если вы собираетесь отдыхать в большем составе, то однозначно нужно разделять эти помещения.
Как уже говорилось, баня с парной и моечной в одной комнате менее комфортна, т. к. всем приходиться либо париться, либо мыться, в раздельных же помещениях нет необходимости подстраиваться под других.
Ниже представлены фото бани с парилкой и мойкой, объединенными в одном помещении:



Проект бани 3х3 с совмещенными парной и моечной
Баня 3 на 3 совсем небольшая, поэтому сделать раздельные парную и моечную здесь затруднительно.
Ниже представлен проект маленькой бани, состоящей всего из двух помещений: парной и моечной, комнаты отдыха.
Этот бюджетный вариант подойдет для небольшого участка. В такой бане поместится 2-3 человека, но не более.
Проект бани 3х4 с совмещенными парной и моечной
Данная баня чуть больше, но она также имеет всего два помещения. Вместимость бани 3 на 4 составляет 2-3 человека.
В этом проекте предусмотрены более просторные парная и моечная, предбанник же имеет небольшую площадь – всего 6 кв. м.
