Проект бани размером 6х6. Проект бани 6 на 6 с мансардой, террасой и балконом
Проект бани размером 6х6. Проект бани 6 на 6 с мансардой, террасой и балконом
Несмотря на общий типаж, есть достаточно много различных проектов бань 6 на 6 с мансардой. Выбирать среди них приходится исходя из своих вкусовых предпочтений и финансовых возможностей.
Универсальное решение, которое подойдет как для семейных банных процедур, так и в качестве места для отдыха в дружеской компании.
Главная изюминка проекта – дополнительное место на свежем воздухе, которое добавляется за счет пристройки террасы, над которой расположен просторный балкон.
Лестница на мансарду расположена в коридоре – это значит, что в случае необходимости верхний этаж может использоваться отдельно от бани, например, в качестве гостевой спальни.
Некоторым может не понравиться, что попасть в комнату отдыха из парилки также можно только через коридор, но это решение уже на любителя, тем более, что ничего не может помешать сделать прямую дверь между этими двумя помещениями. Правда в первом случае комнате отдыха не понадобится защита от высокой влажности.
Площадь предбанника должна учитывать наличие вешалок для одежды, здесь же находится запас дров для банной печи. В моечной кроме сантехники можно установить водонагреватель и использовать это помещение просто как душевую, в те дни, когда баня не топится.
Чтобы снизить потери тепла, в парной и моечной предусмотрены окна размерами 50 на 50 см. В комнате отдыха нужно больше солнечного света, поэтому здесь уже размер установленных окон 120 на 100 см.
Входные двери обычные – стандартные, а вот те, что ведут в парилку, обычно меньше, для лучшего сохранения тепла. Также надо учитывать, перепады температур в парилке и подбирать соответствующие материалы.
Проект бани 6 на 6 с террасой. Баня с террасой
Планировка этой бани отличается повышенным комфортом. К плюсам бани 6х6 с террасой можно отнести максимально большую комнату отдыха, где разместится не только стол с сиденьями, но и дополнительное оборудование. Для бани 6 на 3 планировка может также включать террасу, которую располагают по длинной стороне.
Парная и душевая не рассчитаны на единовременное посещение большого количества человек, но компактные размеры позволяют быстро прогревать эти помещения и использовать «посменно».
Открытая терраса идеально подходит, чтобы удобно расположиться на ней в теплое время года после прохождения банных процедур. Для бани 6х6 планировка, фото которой размещено ниже, является одним из проверенных типовых вариантов.
Баня 6х6 с террасой и мансардой
Баня из бруса 6х6 с мансардой преподносит массу вариантов для использования дополнительного пространства. Это может быть, например, еще одна комната отдыха большого размера, где можно оборудовать бильярдную.
Кроме того, на мансарде можно оборудовать комнату для гостей, которые приезжают и остаются ночевать, или большую столовую для проведения праздников, банкетов и вечеринок.
Проект дополнительно оборудован вместительным балконом, который позволяет с комфортом расположиться на нем всем желающим.
Баня с мансардой
Еще один неплохой вариант планировки «оздоровительного домика» – баня 6х6 из бруса с крыльцом и мансардой. Здесь зонам отдыха отведено максимальное пространство. К положительным чертам такой планировки относятся:
- Наличие небольшого тамбура, туда попадаешь с крыльца. Он станет дополнительной преградой на пути холодного воздуха и позволит дольше сохранить тепло в помещении.
- Окна в комнате отдыха и душевой позволяют достичь высокого уровня естественного освещения.
- В парилке от окна отказались для снижения теплоотдачи в помещении.
- Большая мансарда предоставляет массу вариантов использования полезного пространства.
К минусам подобной планировки можно отнести небольшую площадь функциональных помещений: парилки и душевой, а также отсутствие санузла. Но при большом желании и этот недостаток можно исправить, баня 6х3, планировка которой позволяет разгуляться еще меньше, и вовсе не предоставит такого шанса.
Баня 6х6 с мансардой и террасой
Максимально аскетический и бюджетный вариант планировки бани. К его плюсам относятся большой размер комнаты отдыха, мансарда без перегородок и открытая терраса, где дополнительно размещается необходимое оборудование, например, мангал.
Готовый проект бани 6х6. ТОП-60 лучших проектов бани для дачи на 2022 год
Баня: планировка и разделение общей площади на зоны
Если раньше бани состояли только из одной комнаты, то современные варианты этих конструкций включают несколько. Сюда могут входить прачечная, раздевалка, зона отдыха, бассейн, бильярдная и т.д. Для того, чтобы в дальнейшем хозяину не пришлось прибегать к реконструкции и приспособлению постройки, необходимо еще на этапе проектирования сделать все важные отметки в чертежах. Особого внимания заслуживают следующие моменты:

Для удобства современные сауны включают несколько функциональных зон
- внутренняя планировка;
- система водоснабжения;
- электрические кабели;
- канализация и дренаж.
Примечание! Имея перед собой подробную схему, вы сможете значительно упростить и ускорить процесс выбора и расстановки мебели.
Разработка плана бани с учетом условий дачного участка
Чтобы создать идеальные условия для отдыха в бане, необходимо учесть некоторые нюансы, которые позволят избежать проблем при эксплуатации помещения. Желательно, чтобы зона строительства располагалась на суше с низким уровнем наличия грунтовых вод. Перед тем как приступить к разработке проекта, необходимо сразу исключить все участки, не соответствующие этому условию.

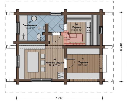
Проект сауны 5 х 7 метров с открытой террасой
Если на территории есть колодец, то расстояние между ним и баней должно быть не менее 5 м. Минимальное расстояние между парилкой и жилым домом — 8 м. Дальше от бани компостная яма и туалет расположены, тем лучше. Специалисты рекомендуют заходить с южной стороны. Зимой здесь образуется меньше сугробов, поэтому возможность перекрытия доступа к двери исключена. Лучше, если окна выходят на запад, что облегчит проникновение в комнату достаточного количества солнечного света.
Если на дачном участке есть водоем, то после постройки бани в 15-20 м от него можно использовать вместо бассейна. Кроме того, наличие реки или озера в непосредственной близости от объекта обеспечит систему водоснабжения.

Размеры проекта сауны 7,74 х 6,24 метра
Для небольших участков (3-6 соток) подходят проекты санузлов 3 на 3, фото таких построек в изобилии на сайтах строительных компаний. Даже в таких компактных постройках парная остается основным помещением. Для организации этого помещения следует выделить максимально возможный объем пространства — примерно 8 м². Этого достаточно, чтобы установить 2-3 грядки (полочки) и поставить печь.
Остальные комнаты могут быть включены в планировку санузла 3х4м и более (по желанию). Конструкцию можно использовать по прямому назначению даже при отсутствии бильярдной или санузла. Баня не может существовать без турецкой бани. По этой причине разделение внутреннего пространства на функциональные зоны во многом зависит от масштабов проекта.

Сауны рекомендуется строить на расстоянии не менее 8 м от жилого дома
Если вам нужны дополнительные удобства, вы можете включить небольшую душевую или ванну в дизайн своей ванны размером 3 на 4 метра. После турецкой бани здесь можно смыть грязь и остыть. Типичные проекты характеризуются наличием комнаты отдыха, которая будет обслуживаться в перерывах между парными сеансами. Для его организации потребуется 4,5 м².
Пригодятся и другие помещения, например, гардеробная или тамбур. Они достаточно компактны, чтобы вместить бревенчатую сауну 5 на 5 вместе с основными помещениями.
Обратите внимание: размер купальной зоны на одного человека составляет 2 м².

Проект сауны 6х6 м со вторым мансардным этажом
Проектирование бани: основные помещения и удачные примеры планировок
Даже самый маленький проект не может состоять только из турецкой бани. Чтобы санузел нормально функционировал и условия его эксплуатации обеспечивали комфорт человеку, в планировку следует включить и другие помещения. Для этого внутреннее пространство здания разделено на небольшие комнаты, каждая из которых играет свою роль.
В конструкции бани 5 на 6 м (с учетом небольших размеров такой постройки) нет необходимости использовать несущие стены для разделения пространства на зоны. Достаточно будет легких деревянных перегородок. Они не нуждаются в закладке фундамента и не несут дополнительных нагрузок.

При разделении пространства вместо стен можно использовать стеклянные перегородки для экономии места
За счет разделения основного пространства на несколько секций можно будет эффективно и быстро отапливать парилку. В этом случае остальные помещения не будут отапливаться. Это преимущество особенно полезно для комнаты отдыха.
Гардеробная относится к категории необходимых помещений. Это помещение используется как входная дверь в ванную комнату, предотвращая попадание холодного уличного воздуха в парилку. Здесь можно хранить дрова или другое топливо. Гардеробная подходит для обустройства небольшой гардеробной (гардеробной). При правильной планировке можно легко перейти из этой комнаты в парилку, душевую и комнату отдыха.
Проект бани 6 на 6 с мансардой. Каркасная баня или сруб?
Классическая парилка издавна представляла собой сложенную из бревен небольшую постройку с предбанником. На чердаке, как правило, хранились веники и бадьи. Сегодня конструктивно мало что изменилось, правда, далеко не все умеют париться с березовым веником, а потому предпочитают мочалки с мылом, что после прогрева в парной тоже неплохо. Однако и сами бани сегодня строятся частенько не из цельных бревен и даже не из бруса, а из керамического или силикатного кирпича, из шлакоблоков. Впрочем, есть вариант, который для многих станет золотой серединой – каркасная баня 6х6 с мансардой заменит дом-сруб с парной, который построить значительно сложнее.
Давайте сравним достоинства и недостатки обоих типов постройки. Начнем со сруба из смолистой древесины. Прежде всего, такая баня легко переносит воздействие пара, оседающего влажной пленкой на стенах. Помимо прочего, бревна, равно как и брус, “дышат”, или, иначе говоря, пропускают воздух, поэтому в такой постройке всегда легче дышится. Что касается термоизоляции, то мансарду утеплять все равно необходимо, поскольку толщины бревна даже при хорошо законопаченных стыках между венцами все равно недостаточно для защиты от зимних морозов. Да и парную не помещает под внутренней обшивкой утеплить, чтобы топить было быстрее и дешевле.
Каркасная же баня выгодна в первую очередь скоростью постройки, поскольку не дает усадки, в отличие от сруба, а значит – не нужно ждать год-полтора, пока венцы полностью не улягутся. Да и возводить каркас значительно легче, даже один человек способен справиться с небольшой конструкцией, тогда как бревна в одиночку ворочать никому не по силам. Кроме того, комплект готового здания стоит значительно дешевле оцилиндрованных пиломатериалов, и если строиться самостоятельно, то это прямая экономия. Что же касается долговечности и надежности, то при правильной сборке каркасная баня 6 на 6 с мансардой простоит не меньше, чем бревенчатая постройка, причем будет гораздо теплее.