3 варианта планировки бани 3х4. 3 на 4
3 варианта планировки бани 3х4. 3 на 4
Чем дальше — тем веселее. Планировки бани 3 на 4 внутри, конечно, не могут похвастаться такой вариативностью, как у решений с общей квадратурой полезной площади, превышающих 50 квадратных метров, но, тем не менее, позволяют грамотно распределить все необходимые функциональные зоны с единственно верной целью — сделать использование банного помещения действительно приятным и запоминающимся.
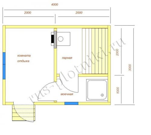
Разумеется, на общей площади в 12 квадратных метров трудно разместиться большой компании. Поэтому при размещении тех или иных зон следует учитывать наиболее вероятный факт: такой небольшой баней, скорее всего, будет пользоваться семья из 2-3 человек либо дружеская компания на столько же человек. Все, что свыше, так или иначе, но будет немного снижать уровень комфорта. Взглянем на варианты внутренней планировки бани 3 на 4 с объединенными мойкой и парилкой.




Если вы используете печь-каменку, то логично разместить ее между парной и предбанником, чтобы распространить тепло по всей площади постройки. К тому же, вынос топочной части в предбанник позволяет вам увеличивать температуру пара, даже не заходя в парную и не растрачивая, тем самым, тепло, которое так или иначе, но выходит через открытую дверь.
Особое внимание следует уделить оформлению парной:
- не располагайте верхний лежак чересчур высоко — есть риск, что человек будет ударяться головой о потолок, когда будет слазить;
- при обустройстве лежаков учитывайте, сколько человек будет регулярно пользоваться баней;
- не располагайте лежаки чересчур близко от печи в своем стремлении сэкономить место — это не только не приносит удовольствие, но даже опасно для жизни
Вариант планировки 3х4 с мойкой и парилкой отдельно
Если проявить смекалку и некоторую инженерную хитрость, то можно осуществить внутреннюю планировку бани 3х4 с раздельным размещением мойки и парилки. В этом есть немало плюсов:
- принимать душ в прохладном помещении куда приятнее;
- возможность раздельного и одновременного использования моечной и парной;
- температура в парной всегда высокая, а пар — сухой и приятный.
Посмотрите на то, какие есть варианты планировки бани 3х4 именно с раздельной интеграцией двух зон.




Баня 3 на 4 с мансардой. Интерьер бани 3х4: планировка, фото, идеи
При проектировании бани особенное внимание следует уделить продумыванию интерьера и расстановке мебели для бани. В парной рекомендуется делать двухъярусные полки или купе, в таком случае ее вместимость увеличится
Полки должна быть такой длины, чтобы на них можно было лечь во весь рост
Важно также соблюдать дистанцию от полок до потолка: недопустимо, чтобы, вставая, вы задевали потолок. В парной рекомендуется делать двухъярусные полки или купе, в таком случае ее вместимость увеличится
Полки должна быть такой длины, чтобы на них можно было лечь во весь рост. Важно также соблюдать дистанцию от полок до потолка: недопустимо, чтобы, вставая, вы задевали потолок
В парной рекомендуется делать двухъярусные полки или купе, в таком случае ее вместимость увеличится. Полки должна быть такой длины, чтобы на них можно было лечь во весь рост
Важно также соблюдать дистанцию от полок до потолка: недопустимо, чтобы, вставая, вы задевали потолок
В моечной можно поставить душевую кабину или поддон с ушатом. Для хранения душевых принадлежностей сделайте небольшие полки.
В комнате отдыха обязательно должны быть места, на которых можно посидеть, и стол. Лучше поставить лавки, а не стулья, поскольку они занимают меньше места, но имеют большую вместимость.
Помочь сэкономить пространство сможет складной стол. При необходимости вы всегда можете его сложить, тем самым освободив в комнате драгоценные метры.
Если проектом предусмотрен предбанник, то в нем нужно повесить крючки для одежды, если его нет, то их необходимо монтировать в комнате отдыха.
Обязательно добавьте небольшие мелочи для декора: картины, шапочки для бани (они используются не только для украшения, но и защищают голову от перегрева), различные статуэтки и другие детали. Подобные мелочи помогают создать атмосферную и уютную обстановку, настраивающую на отдых.
Баня 3 на 4 сколько нужно бруса. Производим правильный расчет самостоятельно
Прежде чем определиться, сколько бруса нужно на баню 3 на 4, следует более детально ознакомиться с конструкционными особенностями самой постройки, которая чаще всего обладает габаритами 3 на 4, 3 на 5 и 3 на 6. А связано это с тем, что количество бруса будет зависеть от числа помещений, высоты и этажности бани. В данном вопросе достаточно проблематично выделить какие-либо общие рекомендации и правила, однако в любом случае, нужно будет провести проектный расчет, в который будет входить длина всех перегородок и стен конструкции, а также ее высота. На основе полученных данных можно будет более точно определиться с размерами самого бруса (100х100 либо 150х150) и его количеством.
Вторым важным нюансом, который обязательно следует учитывать при выполнении расчета нужного количества бруса, является его размер. Стандартной является длина в 6 метров, однако сечение материала в подобном случае может иметь различные вариации: 100 на 100 мм, 100 на 150 мм, 100 на 200 мм, 150 на 150 мм либо 150 на 200 мм . Максимальным показателем, как правило, становится сечение 200х200 мм.
Используя показатели протяженности перегородок и стен, можно самостоятельно выполнить расчет бруса, требуемого для создания одного венца (в виду имеется один ряд постройки, выполненный по ее периметру, при этом в учет берутся и перегородки). Далее можно будет перейти к подсчету венцов, определить количество которых позволит обыкновенное деление на высоту бруса высоты всей постройки.
Используя эти цифры, можно определить нужное количество материала в штуках. Это даст возможность избежать возникновения лишнего расхода брусьев, а значит, и получить дополнительную экономию при построении бани.
Каких бы размеров ни планировалась баня (3х4, 4х5, 4х4, 6х6 и т.п.), если в процессе ее возведения был использован брус, тогда в конечном результате можно будет получить множество преимуществ:
- Длительные эксплуатационные сроки конструкции.
- Отличные тепло- и звукоизоляционные показатели.
- Неповторимый микроклимат внутри самого строения.
- Эстетичный и самобытный внешний облик бани.
- Высокие показатели устойчивости к разнообразным внешним воздействиям.
- Возможность выполнения монтажных работ собственными силами, без привлечения при этом профессиональных мастеров и дорогостоящей спецтехники.
- Доступность материала и минимальный его расход в процессе использования (однако второе достигается только при условии правильно проведенного расчета бруса).
Соблюдая все предложенные выше рекомендации, можно без особых усилий выполнить все необходимые расчеты.
Бан. 5 н. Проект 3х5
Планировка бани 3 5 помогает сэкономить драгоценные квадратные метры, поэтому она оправдана на дачных участках; ее по достоинству оценят и владельцы загородного коттеджа. Постройка кажется сжатой, но пропорции не влияют на комфорт, а места хватит для всех банных процедур.
Проект 3х5 рассчитан на одновременное присутствие максимум трех человек. Несмотря на маленькую площадь, в планировке возможны варианты. Главное, чем они отличаются – размещение парилки и моечного отделения; их можно объединить или сделать отдельными. В пользу совмещения говорит отсутствие разницы температур, которая может негативно повлиять на самочувствие.
В типовом совмещенном проекте присутствует два помещения: предбанник (он же комната отдыха) площадью 6 квадратов, и совмещенная с мойкой парная размером в 9 кв. м. Помещения обустраивают следующими способами:
- Предбанник. Места хватит на небольшой стол и пару скамеек; можно сделать одну угловую скамью. Дополнительное посадочное место можно организовать у входа, приспособив под него небольшую дровницу. Сюда же выходит топка печи.
- Парилка. Здесь наблюдается моечная зона (в виде душа или небольшой скамьи) и двухъярусный полок, под которым можно спрятать трап или переносную лавочку. Здесь же располагается печь и бак с горячей водой.
Проект 3х5 с выделенным моечным помещением принимает следующий вид:
- Комната отдыха (предбанник) увеличивается до 9 (3х3) квадратов.
- Парилка уменьшается до 4 квадратов, рядом с ней располагается мойка площадью 2 квадрата.
Каждый из проектов обладает остаточной гибкостью: вы можете его модифицировать, сдвигая стены в нужную сторону. В этом отношении несколько большими возможностями обладает планировка бани 4х5. В ней достаточно места для обустройства более просторной комнаты отдыха, с мебелью для комфортного чаепития и неглубокими шкафчиками для хранения одежды.
Проект 4х5
Несколько больше возможностей у бани 4х5 с террасой в проекте; лучшие проекты включают 3 помещения и крытую террасу. Оптимальными считаются следующие параметры:
- Терраса располагается по ширине бани; ее собственная ширина составляет 1 м. Площади хватит, чтобы организовать небольшое место для чаепития или отдыха.
- Место у входа занимает комната отдыха. Из нее можно попасть в моечную, а затем – в парилку. Площадь парилки задают в 4-5 квадратов, что достаточно для четырех человек.
- При такой планировке мойку часто объединяют с парилкой, чтобы увеличить зону отдыха. Чтобы избежать объединения, отказываются от террасы или делают ее за пределами бани.
- Жертвы можно избежать, если использовать план бани 4х6; мойка и парилка будут расположены отдельно, а предбанник будет достаточно просторным, чтобы всем гостям было комфортно.
Оптимальные размеры бани – как выбрать проект парилки
Проект 5х5
Комфортабельные условия для отдыха предоставляет баня 5 на 5; планировка востребована на участках среднего размера, она позволяет организовать следующие условия:
- Для комнаты отдыха выделяют 10-12 квадратов, часть площади можно отдать под теплоизолирующий тамбур. Оставшегося места хватит для дивана, стола и пары лавок. Часто ставят печку, имитирующую камин, с панорамным стеклом на дверце.