8 этапов планировки бани 6х3. Проект бани 6х3 из бруса
8 этапов планировки бани 6х3. Проект бани 6х3 из бруса

Рисунок 1. Планировка бани 6х3 из бруса.
Планировка бани 6 на 3 примерно имеет такой вид, как показано на рисунке 1. Полезная площадь такого строения составляет 16,8 кв.м. В состав бани 6 х 3 входит:
- комната отдыха — предбанник;
- душевая с душем и туалетом;
- парилка с полками;
- прихожая;
- печь-каменка.
Практически половину помещения занимает комната отдыха, в которой расположен стол, телевизор и скамейки, где пьют чай, и раздевалка, чтобы оставить одежду.
Парная рассчитана на 4 человек, она должна быть достаточно просторной. Высота и длина помещения должны позволять каждому посетителю свободно попариться и расслабиться. В парной размещают печь-каменку, которая и будет генерировать пар.
Вход в баню украшает крыльцо с навесом. Это защитит строение от атмосферных осадков.
Между венцами сруба обязательно прокладывают жгут, который предотвратит появление мостиков холода. Высота первого этажа бани равна 2,25 м. Крышу делают из стропил, которые представлены брусом 50 х 100 мм, а обрешетку — из необрезной доски 20 мм.

Ленточный фундамент под баню из бруса.
Кровельный материал выбирается исходя из личных предпочтений заказчика и масштаба материальных возможностей. Лучше всего подходит ондулин.
Полы в бане выстилают согласно технологии: черновой пол, паро-гидроизоляция и утеплитель. Поверхность чистового пола выполняют из шпунтованной напольной доски.
Парную отделывают вагонкой, которая имеет прокладку из фольги.
Почему многие отдают предпочтение бане с такими размерами, которые уже стали классическими? Преимущества бани 6 х 3 из бруса:
- небольшую сауну можно разместить на своем загородном участке;
- уютное помещение подарит много радости для всех членов семьи в любое время года;
- баня из профилированного бруса долго сохраняет тепло и одновременно создает хорошую вентиляцию;
- хвойные породы древесины при нагревании будут радовать посетителей приятными ароматами целебных смол;
- аккуратный внешний вид;
- простой и быстрый монтаж брусьев.
Баня 6 на 3 с туалетом. Разработка плана бани с учетом условий дачного участка
Чтобы создать идеальные условия для отдыха в бане, необходимо учесть некоторые нюансы, которые позволят избежать проблем при эксплуатации помещения. Желательно, чтобы зона строительства располагалась на суше с низким уровнем наличия грунтовых вод. Перед тем как приступить к разработке проекта, необходимо сразу исключить все участки, не соответствующие этому условию.

Проект сауны 5 х 7 метров с открытой террасой
Если на территории есть колодец, то расстояние между ним и баней должно быть не менее 5 м. Минимальное расстояние между парилкой и жилым домом — 8 м. Дальше от бани компостная яма и туалет расположены, тем лучше. Специалисты рекомендуют заходить с южной стороны. Зимой здесь образуется меньше сугробов, поэтому возможность перекрытия доступа к двери исключена. Лучше, если окна выходят на запад, что облегчит проникновение в комнату достаточного количества солнечного света.
Если на дачном участке есть водоем, то после постройки бани в 15-20 м от него можно использовать вместо бассейна. Кроме того, наличие реки или озера в непосредственной близости от объекта обеспечит систему водоснабжения.

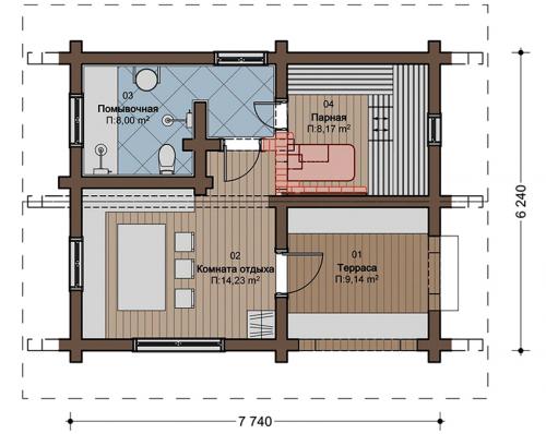
Размеры проекта сауны 7,74 х 6,24 метра
Для небольших участков (3-6 соток) подходят проекты санузлов 3 на 3, фото таких построек в изобилии на сайтах строительных компаний. Даже в таких компактных постройках парная остается основным помещением. Для организации этого помещения следует выделить максимально возможный объем пространства — примерно 8 м². Этого достаточно, чтобы установить 2-3 грядки (полочки) и поставить печь.
Остальные комнаты могут быть включены в планировку санузла 3х4м и более (по желанию). Конструкцию можно использовать по прямому назначению даже при отсутствии бильярдной или санузла. Баня не может существовать без турецкой бани. По этой причине разделение внутреннего пространства на функциональные зоны во многом зависит от масштабов проекта.

Сауны рекомендуется строить на расстоянии не менее 8 м от жилого дома
Если вам нужны дополнительные удобства, вы можете включить небольшую душевую или ванну в дизайн своей ванны размером 3 на 4 метра. После турецкой бани здесь можно смыть грязь и остыть. Типичные проекты характеризуются наличием комнаты отдыха, которая будет обслуживаться в перерывах между парными сеансами. Для его организации потребуется 4,5 м².
Пригодятся и другие помещения, например, гардеробная или тамбур. Они достаточно компактны, чтобы вместить бревенчатую сауну 5 на 5 вместе с основными помещениями.
Обратите внимание: размер купальной зоны на одного человека составляет 2 м².

Проекты бань из бревна 6 н. Разработка плана бани с учетом условий дачного участка
Чтобы создать идеальные условия для отдыха в бане, нужно учитывать некоторые нюансы, которые позволят избежать неприятностей в процессе эксплуатации помещения. Желательно, чтобы зона строительства располагалась на почвах с низким уровнем пролегания грунтовых вод. Перед тем как приступить к разработке проекта, нужно сразу же исключить все участки, которые не соответствуют этому условию.
Если на территории имеется колодец, то расстояние между ним и баней не должно быть менее 5 м. Минимальный разрыв между парилкой и жилым зданием составляет 8 м. Чем дальше от бани будет размещаться компостная яма и туалет, тем лучше. Специалисты советуют делать вход с южной стороны. В зимнее время здесь образуется меньше сугробов, поэтому исключается вероятность блокировки доступа к двери. Лучше, если окна будут смотреть на запад, что будет способствовать проникновению в помещение достаточного количества солнечного света.
Если на дачном участке имеется водоем, построив баню в 15-20 м от него, можно использовать его вместо бассейна. Кроме этого, наличие реки или озера поблизости от сооружения позволит обеспечить систему подачи воды.
Проект бани размером 7,74 на 6,24 метра
Для небольших участков (3-6 соток) подойдут проекты бань 3 на 3, фото таких построек в изобилии присутствуют на сайтах строительных компаний. Даже в таких компактных строениях основным помещением остается парная. Под организацию этой комнаты следует отвести максимально возможное количество площади – около 8 м². Этого достаточно для того, чтобы установить 2-3 лежака (полки) и поставить печь-каменку.
Другие помещения могут быть включены в планировку бани 3х4 м и более (по желанию). Сооружение может использоваться по назначению даже при отсутствии бильярдной или санузла. Баня же без парилки существовать не может. По этой причине разделение внутреннего пространства на функциональные зоны в первую очередь зависит от размеров проекта.
Строить бани рекомендуется на расстоянии минимум 8 м от жилого сооружения
Если же хочется дополнительных удобств, в проект бани 3 на 4 м можно включить небольшую душевую комнату или помывочную. После парилки здесь можно будет смыть с себя грязь и освежиться. Для типовых проектов характерно наличие комнаты отдыха, которая будет эксплуатироваться в перерывах между сеансами пара. Для ее организации потребуется 4,5 м².
Нелишними будут и другие помещения, например, раздевалка или тамбур. Они достаточно компактны, чтобы поместиться в проекте бани 5 на 5 из бруса наряду с основными комнатами.
Баня 6 н. Планировка бани 6x4 метра
Наиболее популярной планировкой считается баня 6х4. Она не занимает большой участок и в ней можно уместиться большой семьей или с друзьями. Но перед составлением проекта нужно учесть нюансы участка, расположение и пожелания, потому что построенная баня и то, что нарисовано на чертеже может отличаться.

Если имеются знания в построении чертежей, планировку можно составить самому или скачать план из интернета, но если есть сомнения, то лучше обратиться к проектировщикам.
Баня 6 на 4 не имеет стандартной планировки, можно больше места отвести на комнату отдыха, моечную или парилку. Кому-то больше нравится посидеть за столом в компании и беседовать, а кто-то предпочитает принимать банные процедуры, но в любом случае размер бани позволяет угодить каждому.
Возле бани можно сделать беседку с мангалом и отдыхать летними вечерами, если площадь на участке позволяет.
Примерные чертежи можно посмотреть в интернете и рассчитать, подойдет ли планировка для участка. Если нужен индивидуальный проект, то он рассчитывается компаниями проектировщиками.

Можно сэкономить и построить баню “собственными силами”, главное, чтоб было время, желание и необходимый материал.
Планировка бани 6х4 может быть свободной, но, как правило, существуют стандартные помещения, без которых не обойтись:
- предбанника (раздевалки);
- моечной;
- парной;
- комнаты отдыха.
Наличие предбанника не всегда бывает в планировке 6 на 4, это небольшая часть при входе в баню, здесь разуваются и оставляют одежду, можно хранить дрова зимой, чтоб они не промокали. Часто предбанник соединяют вместе с комнатой отдыха, но для удобства лучше, чтоб для этого было отдельное помещение.
Моечную можно сделать просторную или небольшую, все зависит от того, какое количество в семье предпочитает париться. Иногда больше места отводится под парную или две комнаты делаются одинаковыми. Или в моечной умещается только лавка и полки под шайки, ковшики и тазики. Удобно сделать три комнаты одинакового размера и маленький предбанник, но расположение меняется в зависимости от личных пожеланий.

Понятие “бани” место, где можно париться, поэтому этому помещению уделяется больше внимания. В ней должна размещаться печь, стол и лавки, но нужно учитывать, что чем больше парилка, тем дольше она будет топиться и уходить ресурс на растопку. Если не предполагается, что в парную будет одновременно приходить много человек, не нужно делать большую.
В комнате отдыха будет собираться все количество людей, которое в этот момент находится в бане. Это в моечную и парилку можно ходить по очереди, а в комнате отдыха нужно уместиться всем.

Комната отдыха не только для охлаждения, но и для проведения времени за разговорами. Чтоб не толпиться и не мешать друг другу, должно быть достаточно места для размещения стола лавок или стульев. Иногда предусматривается место под установку телевизора и дивана, а также кушеток для отдыха.

Планировка бани. Помывочная или душевая комната
Душевое помещение должно быть отделено от других, так как в нем, прежде всего, температура должна быть ниже, чем в парной, а само функциональное назначение этой комнаты подразумевает скрытность процесса. Чтобы не тратить и без того небольшой объем энергоносителей на обогрев помывочной, ее делают небольшой – в пределах 2-3 квадратных метров. Такую площадь под душевую можно выделить в любом, даже самом маленьком, проекте. А если баня предназначена исключительно для мужских посещений, то душевую вообще можно сделать миниатюрной – около 0,5 м2. Зато за ее счет можно расширить комнату отдыха.
Душевое помещение в русской бане
Если планировка бани 6 на 4 метра вас устраивает, то душевую можно организовать так, как показано на рисунке выше – это небольшое, но достаточно удобное и функциональное помещение.
Для семейной бани, чем более с детьми, душевая должна быть большой, удобной и многофункциональной, что подразумевает включение в ее состав отделения (или отдельного помещения) для стирки и других нужд. Из-за большой площади такая помывочная может быть даже основным помещением в бане, поэтому следует предусмотреть хорошую принудительную и естественную вентиляцию, естественное и искусственное помещение, правильно рассчитать схему отопления и площадь помещения по максимальному количеству посетителей. Если составлен именно такой план бани, то комнату отдыха можно вообще исключить из проекта, и перенести ее в дом.