Бани 6х4 с террасой. Стандарты по размерам помещений
- Бани 6х4 с террасой. Стандарты по размерам помещений
- Баня 6х4. Планировка бани 6x4 — идеи, материал, этажность
- Баня с предбанником и верандой. Преимущества бани с террасой, верандой
- Проект бани 6 на 4 с бассейном. Проекты бань. Чертежи и фото
- Планировка бани 6 н. Материал для возведения бани
- Проект бани 6 на 4 с террасой. Проекты бани 6х4: фото, особенности составления и преимущества
Бани 6х4 с террасой. Стандарты по размерам помещений
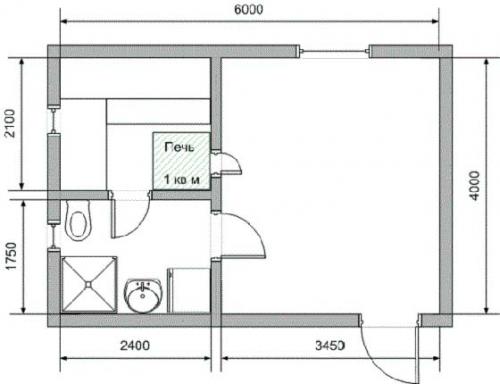
Планировка бань 6х4 м может быть разная. Это зависит от предпочтений хозяина. Однако существуют некоторые стандарты, которых стоит придерживаться:
- Окна. Баня с мойкой и парилкой отдельно не должна иметь большие размеры. Это позволит увеличить энергоемкость. Подходящие размеры достигают 70*80, 40*60 см. Окно в помывочной должно располагаться выше, чем в других помещениях.
- Двери. Размеры входной двери лучше сделать меньше, чем в других зданиях. Это сократит теплопотери. Внутри помещения двери не должны располагаться на одной прямой, так как в этом случае будут создаваться сквозняки.
- Высота потолков. Этот показатель может варьироваться в пределах 2,1-2,4 м.
План бани 6х4 м может содержать парную, комнату отдыха, душевую, террасу. Кроме того, можно во время строительства возвести вместо чердака мансарду. В этом случае полезная площадь увеличится.
Комната отдыха или предбанник
Задача предбанника состоит в том, чтобы предотвращать попадание холодного воздуха в парную. Кроме того, здесь можно оставить вещи и отдохнуть после водных процедур. Площадь данного помещения выбирают исходя из расчета, что на 1 человека необходимо около 1,3 кв. м. К полученной площади добавляют немного пространства для хранения банных принадлежностей и вещей.
Парилка
Баня с отдельной парилкой нуждается в том, чтобы при ее строительстве учитывались оптимальные размеры этого помещения. Учитывается количество человек, которые могут париться одновременно. Сидячее место составляет 1 м, лежачее – 2,2 м.
К полученному размеру добавляют место для установки печи и небольшой подход к полкам. Во время планировки не следует делать парную длинную и узкую. В противном случае баня будет быстро перегреваться.
Мойка или душевая
Если на участке будет баня с парилкой и мойкой, то габариты мойки могут достигать 1,5х1,5 м. В этой комнате можно установить душевую кабину и топчаны, тогда места потребуется немного больше.
Баня 6х4. Планировка бани 6x4 — идеи, материал, этажность
О чем задумываются владельцы коттеджей и загородных домов? О том, как хорошо было бы поставить баньку. Ведь это SPA-салон в собственном распоряжении. А какая площадь должна быть?
В маленькой будет тесно, большая будет быстро остывать и усилий на поддержание микроклимата придется прикладывать много. А вот баня 6×4 метра – один из оптимальных размеров.
Строить баню самим? Почему бы и нет, если есть талант к строительному делу, необходимое оборудование и много сил. Купить? Такой вариант тоже хорош, поскольку получаете уже готовый банный комплекс. Но точно ли все устроит?

Сами будете строить или закажете готовое здание, проект бани 6×4 вам понадобится. Предлагаем несколько фото с размерами и внутренней планировкой. Так можно визуально представить, где вы и гости будут париться, где принимать душ, переодеваться и отдыхать.
План бани может быть один, а вариантов исполнения несколько в зависимости от материала для строительства стен. А если что-то не устраивает, можно внести дополнения в проект в виде веранды или террасы внизу или мансарды наверху.
Планировка бани 6×4 метра
Что должно быть в бане помимо самой парилки и сеней? Забудем темные и тесные деревенские строения, как помещения для купания. Сегодня баня – это место отдыха, поэтому план бани 6×4 должен быть хорошо продуманным. Что в него включить?


- Парная. Здесь стоит печь, находятся лавки с лежаками. Обычно парная занимает вторую по величине комнату и находится, как правило, в углу здания.
- Душевая. Находятся мойка и парилка отдельно, иначе либо парилка остынет, либо душ не принесет желаемого облегчения.
- Предбанник – место, где можно оставить вещи.
- Комната отдыха – самое большое по площади помещение. Здесь и удобные диваны, кресла и стол, и телевизор. Включив фантазию, можно украсить комнату живыми цветами и комнатным водопадом.
Комната отдыха внутри самой бани – отличное место для зимнего времяпрепровождения. А летом будет приятно посидеть на открытой террасе, в межсезонье – на застекленной веранде. Стоит продумать этот момент и спроектировать план бани 6×4 с террасой или верандой. С фото таких вариантов мы поможем.
Хочется в бане иметь помимо стандартных помещений еще и бассейн? Планировка бани 6×4 может учитывать и это. В таком случае понадобится второй этаж или мансарда. На них можно оборудовать раздевалки, комнату отдыха или душевую, а парилку или бассейн оставить снизу. Вдохновляйтесь фото-идеями.



Подробней о помещениях
Классическая баня 6×4 имеет три помещения.

Комната для отдыха, парная и душевая
Предбанник
Здесь гости раздеваются, тут же в ящиках хранится уголь или дрова для печи, а на полках веники.

Для экономии места предбанник часто объединяют с гостевой комнатой, расставляя здесь мебель, устанавливая телевизор и другие приборы, накрывая стол.
Его площадь в идеале – из расчета на 1 человека по 1,3 кв.м + место для хранения банных принадлежностей и вещей.
Важно! В комнате отдыха должно быть окно.
Парилка
В помещении стоит печь – натуральная, газовая или электрическая. К стенам крепятся полки. Здесь требования иные – минимум по 1 метру на каждого + печь + расстояние от печи до стен и проходы.

Идеальная высота – 2-2,1 метра. Если потолки будут выше, пар будет занимать лишнее, неиспользуемое пространство. Если ниже – накапливаясь, горячему воздуху понадобится выход, и он улетучится в вентиляцию. Ширина полок – 40-90 см.
Важно! Дверь должна открываться не в парилку, а из нее, то есть в комнату отдыха. В противном случае в предбаннике будет высокая температура и влажность.
Как могут париться гости и хозяева в парной, приведено на схеме ниже.

Как правильно париться
Душевая
В зависимости от размера помещения, здесь можно установить душевую кабинку, туалет, вмонтировать душ в стену.

Обогреваться душевая может той же печью, что и парилка (если у них смежная стена).
Выбрав планировку с учетом необходимых помещений в бане и их размерами, нужно определиться с материалом, из которого и будет возводиться комплекс.
Баня из бревна
Баня из бревна – это классика. И наиболее популярны оцилиндрованные бревна. Деревенские парилки как раз и возводили из сруба.

Прелесть таких комплексов в том, что дерево – материал здоровый, экологически чистый. Возводится такая баня в рекордные сроки. Если бревна обрабатываются механическим способом, а не вручную, стоимость их невелика. Сэкономить можно и на внутренней отделке – дерево само по себе прекрасно. А для пожаробезопасности и противостояния грибкам бревна обрабатываются специальными растворами.
Недостатки появятся, если компания, вызвавшаяся поставить баню, не просушила бревна, поэтому через некоторое время здание «поведет», или неправильно выбрала дерево: хвойные породы «плачут», дуб может растрескаться от жары.
Баня с предбанником и верандой. Преимущества бани с террасой, верандой
Веранда – небольшое открытое или закрытое сооружение с крышей. Она является частью банной конструкции, располагаясь с ней на одном фундаменте. Веранда строится вместе с баней либо позднее. Для террасы обустраивается собственный фундамент, другое, приподнятое над землей основание. Такая площадка выполняется закрытой, открытой, универсальной. Последний вариант пригоден для полноценного использования как летом, так и зимой.
Банька с верандой или террасой имеет множество преимуществ:
- на площадке перед баней можно организовать жарку шашлыков, барбекю, гриль;
- дружеские посиделки, семейный обед или ужин также удобен здесь;
- огромный выбор современных строительных материалов, дизайнерских решений позволяет создать постройку в любом стиле;
- расположить пристройку можно как сбоку банного помещения, так и между домом и баней, чтобы отдыхать, не отходя далеко;
- на территории площадки красиво разместятся растения в кадках, вазонах;
- грамотно выполненная постройка позволяет максимально соблюсти выбранную концепцию оформления ландшафта, не делая архитектурный ансамбль разобщенным;
- так как не придется сооружать отдельную крышу над площадкой для отдыха и местом помывки, а также соединять их дорожками, экономия времени и стройматериалов очевидна;
- с открытой террасы, веранды можно любоваться закатом или рассветом за чашкой чая, завернувшись в мягкий пледик;
- открытый бассейн легко расположить прямо на террасе.

На стандартной площадке размещают мангал, барбекюшницу, открытый каменный или кирпичный очаг, несколько лавочек или полноценных кресел, а также столики.
Проект бани 6 на 4 с бассейном. Проекты бань. Чертежи и фото
Проекты бань. Чертежи и фото Проекты бань. Чертежи и фото

Нет ничего лучше, чем отдых на даче или в загородном доме. Особенно если в этот отдых включено такое наслаждение для тела, как баня. Продумывая проект бани, важно учесть множество нюансов. Это выбор места, стройматериалов, вопрос, как провести внутренние отделочные работы, как правильно установить печь, и многое другое. В этой статье мы собрали для вас информацию, которая станет полезной на этапе принятия решения. С ее помощью вы определитесь с тем, как обустроить свое индивидуальное место для релакса.
При проектировании бани следует учитывать такие факторы:
- расположение на участке, будет ли она отдельным зданием или выступает как пристройка к дому;
- мощность обогревателя;
- сколько будет посетителей;
- толщина стен, отделка, наличие или отсутствие утеплителя.

Виды бань
Многообразие бань возникает от разницы культур и традиций. Благодаря этому изобилию мы можем выбирать тот микроклимат в бане, который оптимально подходит нам по температуре, влажности и выработке пара.
Наиболее важен для самочувствия микроклимат, и в соответствии с ним бани подразделяются на виды.
Паровая баня: турецкий хамам
В такой бане температура достигает 40-45°, влажность 90-100%. За счет такой невысокой температуры создается мягкий микроклимат. В бане можно не только хорошо отдохнуть, но и заняться собой, порадовав тело косметическими процедурами.
Паровая сауна: русская баня
45-70° по температуре и невысокая влажность – 40-65%. Пар конденсируется на коже, образуя своеобразную пленку, а организм нагревается намного сильнее вследствие теплопроводности воды.
Суховоздушная (финская) баня
Небольшая влажность, 8-20%, сочетается с высокой температурой 70-110°. Отсутствие пара и высокая температура способствуют максимальному прогреванию организма;
Влажная сауна: спортивная
Температура 75-95° при 100% влажности . Является одним из подвидов финской бани. Температура специально повышается за счет полива камней водой. Такая сауна становится местом соревнований на выносливость и представляет для организма вред и даже опасность.
Водяная баня: японская баня офуро
Традиционная баня с температурой 40-60° и влажностью 100%, является экзотической разновидностью бани. Это обычно деревянная бочка, которая подогревается. Прогревание кожи под водой способствует потоотделению и вымыванию шлаков и пота.
В банях также различается способ подогрева и нагнетания пара . Зная эти особенности, вы выберете баню с характеристиками, которые максимально устроят вас и вашу семью.

Основные помещения в бане
Каждый тип бани включает такие функциональные помещения:
- предбанник (раздевалка);
- парная;
- моечное помещение;
- комната отдыха.

Предбанник (раздевалка)
Предбанник еще называют тамбуром. Здесь посетители оставляют свою одежду, здесь хранятся веники и дрова. Предбанник выполняет ряд функций :
- является зоной с функцией буфера, выравнивающей переход температур от климата снаружи до температуры внутри бани;
- служит местом для досушивания дров;
- зачастую служит также комнатой, в которой отдыхают.
Дверь предбанника должна открываться наружу.



Парная комната
Эта комната является основным, базовым помещением постройки. Здесь поддерживается самая высокая температура и размещается печь. В углу парной находятся камни, с помощью которых создается пар. Под ними должно находиться жароустойчивое покрытие.
Здесь же находятся лавки, размещенные ступеньками. Две, как правило, предназначаются для сидения, одна – лежания. Обустраивая парную комнату, необходимо продумать нюансы:
- для материала, которым обшиваются потолок и стены, характерны определенные теплоизоляционные свойства, с их учетом рассчитывается глубина теплоизоляции комнат, используются конструктивные приемы;
- эффективная работа системы вентиляции обеспечивается специальным коробом или распахивающимся окном, имеющим двойное остекление. Расположение окна – напротив печки;
- дверной проем проектируется с повышенным порогом: так под дверь не проходит прохладный воздух и не снижается теплоэффективность. Сама дверь распахивается наружу;
- парное и моечное помещения должны разделяться, иначе снижается качественные показатели пара и температуры, увеличивается расход топлива.


Моечная комната
Моечная комната, зачастую это душевая кабинка, размещается возле парной . Если размеры строения позволяют, эти зоны являются отдельными друг от друга, в маленьких постройках совмещены. В крупных строениях здесь же оборудуется бассейн или купель.
Средняя площадь моечного помещения составляет 2000х2000мм, тогда есть где принимать водные процедуры и размещать емкости с водой, горячей и холодной.
Окно строится в полтора раза больше окна в парной. Увеличен и дверной проем – 1800х800мм, чтобы обеспечить больший комфорт. По сохранению тепла требования меньше, чем в парной. Порог делается высокий, а пол укладывается из специальной плитки во избежание скольжения и сопутствующих травм.
Планировка бани 6 н. Материал для возведения бани
Совет! Перед тем, как составлять чертежи бань 6х4, вам необходимо определиться – из какого материала вы будете возводить строение.
Баня с каркасом – вы можете, как купить готовый каркас (см. фото), так и возвести его самостоятельно, при помощи нескольких брусьев.

Вариант постройки из готового каркаса.
Является наиболее легкой по сборке, среди прочих бань. По вашему усмотрению вы можете разместить парную, моечную, веранду, раздевалку и предбанник .
Баня из бруса (см. фото) – материал будет стоить вам дороже, вы ощутите больший комфорт при использовании парилки, так как брусья сохраняют все качества настоящего дерева.

Баня из бруса.
Не забывайте, для сохранения герметичности бани, вам необходимо будет проложить каждый ряд из брусьев специальным полотном изо льна.
Бревенчатая баня (фото) – не требует дополнительной внешней обшивки. За счет того, что бревна толстый и надежный материал – вам не понадобится дополнительного утепления стен.

Баня из бревен.
Также, перед тем, как будет составлена схема бани 6х4, предусмотрите следующие моменты:
- Количество членов вашей семьи, которые в дальнейшем буду пользоваться баней,
- Предусматриваете план бани 4х6 для того, что бы париться или только для купания,
- Рассчитываете пространство с тем условием, что необходимо разместить моечную, парную и предбанник (с условием того, что в парной одновременно должно находиться не менее двух людей, не стесняющих друг друга),
- Готовая площадь здания должна занимать не менее десяти квадратных метров – подобные размеры помогут принять баню одновременно всей семье в несколько заходов,
- Планировка бань 6х4 должна предусматривать следующие моменты – вентиляционный канал, канализационный канал, системы для подачи горячей и холодной воды, возможность пользоваться электричеством. И все это должно быть учтено с нормами пожарной безопасности.
Планировка бани 4х6 является наиболее самодостаточным вариантом. Отличительная черта этого проекта – возможность обустройства террасы. Так вы сможете спокойно подышать свежим воздухом, перед тем, как совершить очередной заход в парилку.
План сооружения
Также, планировка бани 6 на 4 предусматривает наличие тамбура, или предбанника. Таким образом, вы сохраняете тепло в парилке в любое время года, и дополнительно даете время своему организму, перестроится на теплый воздух бани. Также, советуем вам разместить комнату для мытья между парной и предбанником.
В таком случае, вы совершаете все необходимые банные процедуры в пределах двух комнат. Соответственно, вам нет необходимости выходить из бани, для принятия душа, который находится в доме.
Перед тем как начнете стройку – проконсультируйтесь по поводу того, насколько верен ваш план бани 4 на 6. Это может быть как строительные фирмы, так и различные архитекторы. При возможности, можете заверить его нотариально (проставить печать в различных инстанциях).
Проект бани 6 на 4 с террасой. Проекты бани 6х4: фото, особенности составления и преимущества
Баня 6 на 4 не займет много места, поэтому может быть установлена даже на участке, размеры которого невелики. При этом в ней может поместиться до 4-6 человек, т. е. одна семья или небольшая компания друзей.
Проект бани 6 на 4 является оптимальным. Постройка получится не слишком масштабной, но и не маленькой. В ней вы, ваша семья и друзья смогут отдохнуть в комфортных условиях, не толкаясь локтями в парилке или комнате отдыха.

Чрезмерно важно составить проект бани 4 на 6 правильно. Если будут допущены ошибки, то все они всплывут во время строительства, что приведет к финансовым и временным потерям. Составить проект можно самостоятельно, найти готовый в интернете или заказать у специалистов.
Если посмотреть фото проектов бань 6 на 4, то можно увидеть, что подобные постройки сильно различаются. Здание такой площади дает широкие возможности: кто-то делает, кто-то выделяет много площади под парную и т. д.
Проекты бани 6 на 4 представлены широким выбором в свободном доступе. В интернете вы без труда найдете самые разные варианты реализации. Если же вы хотите чего-то особенного, чертеж, сделанный специально для вас, то всегда можно обратиться в специальную компанию, которая разработает чертеж бани 6х4 с учетом вашего участка и личных предпочтений.
Конечно, каждый делает проект с учетом собственных пожеланий, но существуют некоторые общие правила.
Обычно планировка бани 6х4 предусматривает следующие помещения:
- предбанник/раздевалка;
- парная;
- моечная;
- комната отдыха.
Предбанник может быть небольшим, в нем нужно место лишь для того, чтобы оставить обувь, повесить верхнюю одежду, также нередко в этом помещении хранят дрова. Бывают проекты, где всего три помещения – без предбанника. Но планировки бань 6х4 с тамбуром выбирать предпочтительнее, т. к. он предотвращает появление сквозняков в комнате отдыха, а также используется для хранения различных вещей, которые в комнате отдыха могут мешать.
Парная – это основное и самое главное помещение. Оно должно вместитьи полки. Размер парной зависит от того, сколько людей в будущем будет одновременно посещать ее. Но не нужно делать парную слишком большой, чем она просторнее, тем дольше будет разогреваться и тем больше топлива понадобится.
Моечная может быть небольшой или просторной, в зависимости от планировка. Баня 6х4 может предусматривать моечную размером с парную или небольшое помещение, в котором поместится лишь душевая кабина. В первом случае в бане обычно ставят лавку с ведрами или шайками, а во втором – душевую кабину, поддон с душевой трубкой. Каждый из вариантов по-своему удобен, поэтому выбор зависит от личных предпочтений. Преимуществом небольшой моечной является возможность добавить в проект дополнительное помещение или сделать другое более просторным.
Комната отдыха – это место, где между посещением парной вы будете охлаждаться. Здесь обязательно должны быть места для сидения (лавки, стулья) и стол. Планировка бани 4х6 может быть разной, но важно, чтобы в этом помещении было просторно. В парную ходят группами, в моечную по 1-2 человека, но комната отдыха – это место, где собирается вся компания. Важно, чтобы вы могли не только сидеть, но и спокойно передвигаться по всему помещению.
Баня 4 на 6 (планировка внутри, фото):
Преимуществом проектов бань 6 на 4 является возможность варьировать размеры каждого из помещений в зависимости от своих желаний, увеличивая площадь одного из них за счет уменьшения другого.
Баня 4х6: проекты:
Проект бани 4х6 может предусматривать наличие санузла: он хоть и не является необходимостью, но значительно повышает комфортность посещения бани. Наличие туалета особенно важно в случае, если баня – это отдельная постройка, которая имеет доступ к дому только через улицу. Зимой бегать в туалет по холоду достаточно проблематично, кроме того, можно простудиться.
Многие строят баню на даче и посещают ее лишь в теплое время года. В этом случае вместо комнаты отдыха можно сделать небольшую веранду. Проект бани 4х6 с верандой удобен тем, что в таком случае вы будете отдыхать на природе, а не в помещении, сможете насладиться окружающими вас пейзажами и подышать свежим воздухом. Баня 6 на 4 с верандой может иметь просторную террасу, на которой поместится компания до 6-8 человек.
Веранда обязательно имеет крышу, обычно общую с баней, которая держится на опорах. Вы можете по-разному оформить стены веранды. Она может быть открытой, полузакрытой или закрытой, все зависит от ваших предпочтений. Оптимальным вариантом считается полузакрытая веранда, поскольку в таком случае вы не закрываете себе вид на окружающие вас территории, при этом она защищает вас от ветра и других внешних воздействий.
Ниже вы можете увидеть проекты и фото бани 6х4 с террасой:
Не забудьте в процессе составления проекта предусмотреть, канализацию, систему подачи воды, а также электропровода.