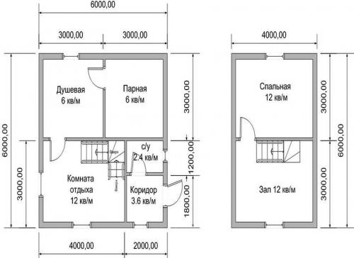
Баня 6х6 своими руками чертежи. Миниатюрные каркасные баньки — оптимальный выбор
- Баня 6х6 своими руками чертежи. Миниатюрные каркасные баньки — оптимальный выбор
- Маленькая каркасная баня своими руками. Как построить каркасную баню самому: преимущества и особенности самостоятельного строительства
- Проект каркасной бани со сметой. Проект каркасной бани 5х6 30м
- Каркасная баня 3 4 своими руками. Расчеты материалов
Баня 6х6 своими руками чертежи. Миниатюрные каркасные баньки — оптимальный выбор
Мини-баня на загородном участке — прекрасный вариант для экономии площади. Правда, одновременно попариться в помещении 3х3 или 3х4 получится лишь у пары человек. Тем не менее, это самый быстрый и недорогой вариант постройки. За основу проще всего взять готовый проект каркасной бани. Можно объединить раздевалку, душевую и парилку в одном помещении. Или предусмотреть более удобный проект с отдельной парилкой, помывочной и комнатой отдыха.

Малогабаритные каркасные бани 4х3 или 4х4 — лучший выбор:
- для экономии на стройматериалах (брус 6 метров режут пополам, получается безотходная стройка);
- скоростного возведения конструкции (всего пару недель затрачивают на строительство при условии готового проекта);
- крепости готового сооружения (при закупке качественной пропитанной древесины каркасная баня простоит очень долго).
Баня до 20 кв. м — рациональное использование площади
Если есть возможность построить каркасную баню 6х6, ее обязательно нужно использовать. Стандартные чертежи включают парную, душевую, комнату отдыха, небольшой коридорчик и санузел. Если разработать проект с мансардой, получите дополнительную жилплощадь на втором этаже. Ее можно использовать под гостевую, бильярдную или спальню.

Техдокументация для проектов каркасных бань площадью 20 кв. м предполагает организацию опорно-столбчатого фундамента с блоками из бетона , основание должно быть надежно гидроизолировано. На пол укладывают черновой настил (22-миллиметровая обрезная доска), затем чистовое покрытие в виде 30-миллиметровой шпунтованной доски. Антисептическую обработку и утепление 10-сантиметровой минватой нужно обеспечить в обязательном порядке.
Стены, перегородки и перекрытия делают из бруса 150х100 мм, используется также доска 100х50 мм и 100х40 мм. Вагонка после камерной обработки идеально подходит для обшивки потолка и перегородок. Десятисантиметровые плиты минеральной ваты и пароизоляция в два слоя укладываются под обшивку.

Для обустройства стропильной системы предназначена доска 100х50 мм, для обрешетки — 22 мм. Для кровельных работ лучше взять ондулин с волновым профилем Выбор оконной системы — деревянной или металлопластиковой — остается за владельцем. Для парной надо приобрести дровяную печь с баком для воды, продумать кирпичную кладку там, где будет располагаться топка.
Вот такие чертежи и планы можно использовать для возведения каркасной бани своими руками.



Индивидуальные проекты позволяют реализовать практически любые пожелания будущего владельца. Есть возможность присоединить к бане веранду или террасу. И даже в чертежи готовой документации можно вносить небольшие корректировки. Компании по разработке проектов предлагают следующий ряд услуг:
- объект под ключ — проект каркасной бани с заводской сборкой стен и перегородок, полной отделкой внутренних стен и фасадов;
- черновая отделка — облицовка или фасада, или внутренних стен;
- без облицовки — базовая сборка из щитов.
Маленькая каркасная баня своими руками. Как построить каркасную баню самому: преимущества и особенности самостоятельного строительства
Благодаря доступности и быстроте возведения каркасная баня пользуется спросом у дачников и владельцев частного сектора. Это отличное место как для сезонного, так и для круглогодичного отдыха.можно заказать у специалистов или же соорудить ее с нуля своими руками.

- Экологичность сырья. Основной материал – дерево. Внутри бани всегда будет приятный аромат натурального дерева.
- Под строение не нужно заливать массивный фундамент . Вполне хватит столбчатого основания или винтовых свай (в зависимости от типа грунта).
- Конструкция прогревается быстрее, в отличие от кирпичных или бревенчатых бань.
- Экономия топлива. Дров для хорошей протопки такой бани потребуется в 2–3 раза меньше, чем для кирпичной.
- Невысокая цена на материалы.
- Возможность строительства в любое время и погоду.

Из минусов каркасной бани:
- Для круглогодичной эксплуатации строение придется утеплять, что повлечет дополнительные траты.
- Необходимы наружная и внутренняя отделка конструкции.
- Баня нуждается в периодической антисептической, огнезащитной обработке.
- Велика вероятность усадки бани спустя 1,5–2 года. Усадка может быть до 10 см. Из-за этого происходит деформация отделки внутри и снаружи.
Чтобы предотвратить существенную усадку конструкции, для строительства нужно применять доски и другие пиломатериалы, которые сушили камерным способом.
Варианты проектирования бани
В начале строительных работ разрабатывается проект будущего сооружения. Сделать это можно самостоятельно, взяв за шаблон один из готовых чертежей в интернете. Есть хорошая альтернатива, которая сэкономит время, – заказать проект у специалистов. Эта же команда займется и пошаговым возведением под ключ.

В продаже есть готовые модульные баньки, которые просто собираются по принципу конструктора и не нуждаются в наружной или внутренней отделке.
Проект каркасной бани со сметой. Проект каркасной бани 5х6 30м
Цена бани с утеплением 100/150мм мин. ваты и отделкой внутри вагонка 309 т.р.Цена бани с утеплением 100/150мм мин. ваты, отделкой внутри вагонка и фундамент 311 т.р.Стандартное утепление 100мм стены и 150мм пол крыша базальтовой мин. ваты, макс. 150/200мм.Цена проекта для самостоятельной сборки 9,8т.р.Скачатьи читатьЕсли по каким-то причинам, вы не хотите или не можете сами построить дом по нашему проекту, то мы можем сделать всё это за вас, причём недорого и в кратчайшие сроки, подробнее о ценах и преимуществах строительства под ключ, читайте в разделе "".
Каркасная баня с террасой и комнатой отдыха
подробное описание.Чертежи каркасной бани 5х6м - компактная классическая баня 5х6 с террасой и комнатой отдыха. Парная 4,6 м2. Данный проект всего 30 м2, но в нём есть сауна и место для помывочной, где можно расположить унитаз, раковину и душевую, а также удобная терраса под крышей с сауной. Разноуровневая крыша делает внешний облик бани современным и привлекательным, такая баня подойдёт к любому участку и планировке. Данную баню можно использовать, как временный дом на период до строительства основного дома, или как гостевой. Данный проект примечателен тем, что, проект состоит из двух частей, бытовка/хоз.блок 3х6 и тамбур+терраса 2х6м. Их можно собрать по отдельности и по необходимости, так как там отдельные полы, стены, крыша, фундамент и тд. и тп. Такой дом вы можете построить сами, своими руками по нашим чертежам или нашими силами.
Отделка бани может быть изменена под ваши предпочтения, по проекту: наружная предчистовая ОSB и внутренняя чистовая вагонка во всех помещениях входит в стоимость проекта. Также в цену проекта включён фундамент, утепление 100/150мм мин. ваты (возможно до 200/250мм), в смете: электропроводка и установочные изделия, автоматика водоснабжения и канализование с сантехникой.
Баня в один этаж 30м2 Высота потолков 2,1-2,8м, Комната отдыха 12,1м, Парная 4,6м, Помывочная 3,7м, Терраса 6,6м.
Похожие проекты: иииииДля увеличения картинки нажмите на неё.
Вариант внешнего вида: возможна любая отделка, терраса входит в проект.
Высотные отметки:
Фундамент для этого дома: по проекту фундаментные блоки ФБС.возможны сваи (винтовые, забивные, буронабивные и т.д.) - 12шт.
Среднерыночная стоимость подобного дома, выше нашей в 3 раза.Заказ проекта
Для того, чтобы оформить заказ, выберите тип фундамента и другие возможные опции, затем нажмите кнопку "Заказать проект". В открывшейся форме укажите правильно Ваш email и другие необходимые данные (полный адрес, включая индекс, город, улицу, дом и т.д.). Если заказ оформлен верно, то после обработки заказа нашим специалистом, в течении дня, к вам на почту поступит подтверждение заказа с уточнением деталей и вариантами оплаты.Если по истечению суток ответ Вам так и не поступил, проверьте папку нежелательных писем или спам, если ответа нет, можете позвонить узнать, что с вашим заказом или сделать повторную заявку. Заказчики часто неверно указывают почту и письма не доходят до адресата.
Частые вопросы клиентов:
Что делать, если надо что-то поменять в понравившемся проекте?
Незначительнуюпроекта под вас мы сделаем бесплатно.
Если мне не подходит ни один проект, что делать?
Мы можем сделать индивидуальный проект, но это займёт примерно месяц и будет несколько дороже стандартного проекта.
Возможно, внести изменения в предложенную комплектацию и смету?
Да, конечно, проект не привязан жёстко к указанным там маркам материалов, по своему желанию, вы можете выбрать более дорогие или более бюджетные материалы, главное сохранить конструктив и технологию строительства по самому проекту. В смете к проекту содержатся пояснения по возможной замене материалов.
Какие возможны варианты стенового материала и утепления в этой комплектации?
Доска обрезная: стены и часть перегородок 100х50мм, крыша/пол 150мм, утепление минеральная вата базальтовых пород стены 100мм, возможно плюс 50мм горизонтально, пол/потолок 150мм макс. 200/250мм.
Какую толщину стен выбрать?
Для того чтобы правильно выбрать толщину стен, необходимо определиться с целевым использованием дома и регионом его строительства.
В доме для постоянного проживания с газовым отоплением: толщины стены в 150мм будет вполне достаточно. Для комфортного проживания и зимой, и летом рекомендуем утепление 150мм между стоек, плюс 50мм горизонтально со стороны дома. Если дом планируется как летний или гостевой: толщины стены и утеплителя в 150мм между стоек вполне достаточно.
Необходимость утепления
Утепление дома в разы повышает его энергосберегающие показатели. Например, утеплив дом 150мм между стоек, плюс по 50мм горизонтально со стороны улицы и дома, в нем уже можно будет проживать круглый год, и разумно использовать другие источники энергии, в том числе и электричество.
Мы в своих проектах предлагаем различные варианты утепления, в зависимости от заявленных требований к энергосбережению, это может быть утепление: фундамента, отмостки, дополнительное утепление дома снаружи, к существующим 150-200мм ещё плюс 50-100мм.
Каркасная баня 3 4 своими руками. Расчеты материалов
Сооружается каркасная баня своими руками разных размеров. Мы рассмотрим стандартный вариант, который подойдет для строительства начинающими мастерами.
Отделку бани изнутри и снаружи, часто проводят вагонкой, изготовленной из древесины хвойного происхождения. Крышу оборудуют двускатную, а для кровли применяют металлочерепицу.
Отталкиваясь от размеров 5 на 4 метра, для изготовления фундамента нам понадобится:
- два куба бетона;
- 0,3 куба обрезной доски;
- 80 погонных метров арматуры.
Каркасная баня под ключ, требует больших финансовых вложений именно на строительство каркаса. Чтобы сделать каркас, потребуется:
- 5,3 кубов бруса, сечением 12 на 12 сантиметров;
- 36 квадратных метра, минваты, толщиной 10 сантиметров;
- около сорока квадратов пароизоляционного материала;
- 75 квадратов деревянной вагонки;
- 40 квадратов гидроизоляционного материала.
Если необходимо сэкономить финансы, то брус можно заменить доской. Монтаж пола, также важный момент. Чтобы сделать пол в бане своими руками потребуется:
- 0,2 куба доски 150 на 50;
- двадцать погонных метров плинтуса;
- двадцать квадратов минваты и 20 квадратов вагонки.
Если хочется сэкономить на конструировании каркасной бани, то именно на возведении крыши, это можно сделать. Можно приобрести, самый дешевый утеплитель, и закрыть его не обрезной доской.
Но так как у нашей бани будет двускатная крыша, чердачное помещение можно использовать для хранения разного инструмента и ненужных предметов. Чтобы построить крышу, необходимо:
- один комплект водостока;
- 0,2 куба реек для стропил;
- 0,1 куба планок для обрешетки;
- 0,1 куба карнизных реек;
- двадцать квадратов металлочерепицы.
Кроме перечисленных материалов, потребуются:
- трубы из асбеста;
- саморезы и гвозди;
- скобы;
- цемент, песок и гравий.
Если строится каркасная баня, своими руками используя пошаговую инструкцию, нужен:
- уровень, угольник и рулетка;
- молоток, отвертки и плоскогубцы;
- электрическая дрель;
- миксер для бетона;
- емкость для дозировки сыпучих материалов;
- Брус (4-6 шт.)
- Доска (2-3 шт.)
- Монтажный материал (например, клей)
- Брус (12-15 шт.)
- Доска (6-8 шт.)
- Монтажный материал (например, клей)
- Доска (4-6 шт.)
- Монтажный материал (например, клей)
- Поместить кровельный материал (металлочерепица) на каркас
- Установить утеплитель
- Закрыть крышу обрезной доской
- Утеплитель (например, минеральная вата)
- Обрезная доска
- Знание основ безопасности при строительстве
- Умение работать с инструментами (например, молоток, уровень)
- Планирование и организация строительства
Сделав нужные замеры и подобрав по ним материалы, приступаем к конструированию будущего помещения.
Каркасная баня 3x4: расчеты материалов и пошаговая инструкция
Сооружается каркасная баня своими руками различных размеров. Мы рассмотрим стандартный вариант, который подойдет для строительства начинающими мастерами.
Отделку бани изнутри и снаружи, часто проводят вагонкой, изготовленной из древесины хвойного происхождения. Крышу оборудуют двускатной, а для кровли применяют металлочерепицу.
Расчеты материалов для фундамента
Отталкиваясь от размеров 5 на 4 метра, для изготовления фундамента нам понадобится:
Каркасная баня под ключ, требует больших финансовых вложений именно на строительство каркаса. Чтобы сделать каркас, потребуется:
Если необходимо сэкономить финансы, то брус можно заменить доской. Монтаж пола, также важный момент. Чтобы сделать пол в бане своими руками потребуется:
Если хочется сэкономить на конструировании каркасной бани, то именно на возведении крыши, это можно сделать. Можно приобрести, самый дешевый утеплитель, и закрыть его не обрезной доской.
Пошаговая инструкция по строительству крыши
Чтобы построить крышу, необходимо:
Кроме перечисленных материалов, потребуются:
Если строится каркасная баня, своими руками используя пошаговую инструкцию, нужен:
Сделав нужные замеры и подобрав по ним материалы, приступаем к конструированию будущего помещения.