Дом из бруса 8 н. Планировка дома
Дом из бруса 8 н. Планировка дома
Если документация будет составляться только для собственных нужд, то при проектировании можно обойтись необходимым минимумом. Комплект чертежей должен содержать информацию по планировке дома (с указанием основных геометрических размеров элементов), его конструктивным особенностям, в инженерной части внимание уделяется основным коммуникациям. Так что полноценный проект дома из бруса 8 на 8 на 8 на 8 должен являться своего рода руководством для строителей.
Обратите внимание! При заказе документации в организациях, специализирующихся на строительстве срубов и брусовых домов можно запросить и составление 3 Dмоделей всего дома и отдельных помещений. Весь вопрос в стоимости.

При заказе у специалистов можно дополнительно запросить визуализацию дома
Конечно, планировка дома сильно зависит от его габаритов, но есть и несколько общих правил:
- крупные постройки, например, дом из бруса 8 на 10 на 8 на 8 позволяют разместить не только минимально необходимые для комфортного проживания помещения (кухня, гостиная, спальня, санузел), но и выделить место под библиотеку, кабинет и т. д.;
- нежелательно при планировке небольших домов сильно мельчить, т. е. пытаться разместить на малой площади много помещения разного назначения. На первом этаже лучше обойтись просторного гостиной, совмещенной с кухней, а спальню вынести на 2 этаж;
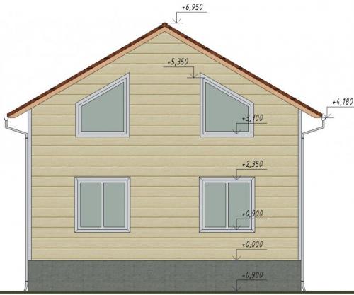
- независимо от того, строится дом из бруса 8 на 9 на 8 на 8 или габариты постройки будут меньше, как правило, чердак оборудуется как жилое помещение (мансарда). Это позволяет максимально полно использовать полезную площадь;

В разрезе виден жилой чердак
- форма дома не должна быть слишком вытянутой, сложно обставить вытянутое узкое помещение габаритами, например, на 8 на 2.
Проекты небольших домов из бруса. Дом 6 на 6 - самый бюджетный дом для постоянного проживания
Идеальный размер дома 6х6 позволяет построить его даже на участке в 6 соток
№4. Популярные проекты дачных домиков 6 на 6
Дом из бруса "Заокский" Общая площадь дома 70 м2, площадь застройки на участке 36 м2. Характеристики проекта: 5.9х5.9 (размеры указаны по осям) - габаритные размеры 6х6, полутораэтажный, дом из бруса, с многоскатной крышей, квадратный, с двумя спальнями, тамбур, кухня, гостиная - на первом этаже, от 50 до 100 кв.м.
Дом из бруса «Амур» (6х6) Общая площадь дома 60 м2, площадь застройки на участке 38 м2. Характеристики проекта: 5.85х5.85 (размеры указаны по осям) - габаритные размеры 6х6, полутораэтажный, дом из бруса, с двускатной крышей, квадратный, с одной спальней, тамбур, кухня, гостиная - на первом этаже, от 50 до 100 кв.м.
Дом из бруса "Лесной Городок" 6х6 – проект с мансардой и ломаной крышей. Общая полезная площадь дома 55.8 м² , площадь застройки на участке 36 м². Характеристики проекта: полутораэтажный, дачный, дом из бруса, с двускатной ломаной крышей, квадратный, размеры 5.9х5.9 м (размеры указаны по осям) (размеры указаны по осям) - габаритные размеры 6х6 м , одна спальня, кухня, гостиная, санузел, терраса, балкон - от 50 до 100 кв.м.
Дом из бруса "Заокский" Общая площадь дома 70 м2, площадь застройки на участке 36 м2. Характеристики проекта: 5.9х5.9 (размеры указаны по осям) - габаритные размеры 6х6, полутораэтажный, дом из бруса, с многоскатной крышей, квадратный, с двумя спальнями, тамбур, кухня, гостиная - на первом этаже, от 50 до 100 кв.м.
Дом 8 на 8 двухэтажный. Дом 8 на 8 — лучшие идеи и самые интересные проекты квадратных домов (135 фото и видео)
Строительство дома — очень ответственный момент, ведь помимо того, что нужно выбрать участок, решить из какого материала построить дом, просчитать бюджет, также необходимо тщательно продумать планировку будущего жилища.

От грамотности проектирования зависит комфорт и функциональность дома, а также дальнейшие затраты на его эксплуатацию.

Нарисуем — будем жить!
Естественно, прежде чем начать строительство, важно детально прорисовать все нюансы — площадь комнат, окна и межкомнатные перегородки, учитывая при этом конструкционные особенности безопасности.
Обзор готовых вариантов частных домов, всегда можно посмотреть на портале.

В помощь вам послужат готовые программные решения, с помощью которых можно как скорректировать готовую планировку, так и создать свой собственный проект с нуля.

Программы 3D-визуализации позволяют не только схематично изобразить план будущей постройки, но и создать фото-дизайн интерьера дома и ландшафтного оформления участка.

Что важно учесть при проектировании
Дом квадратной планировки, особенно небольших размеров, на многих строительных интернет-ресурсах является одним из самых популярных. Поисковики предлагают тысячи фото различных проектов домов 8х8 м2 и порой сложно определиться с выбором.
Советуем для начала определиться с ключевыми нюансами, которые важны для вас.

Собирается ли ваша семья за обеденным столом и нужна ли вам просторная кухня-гостиная, в какой комнате вам нужно больше дневного света, хотите ли вы гардеробную, совместный или раздельный санузел предпочтительнее?

Эти и другие детали позволят существенно сузить круг предложенных планировок домов 8 на 8.

Как выбрать материал для строительства
Для того, чтобы было проще ориентироваться в выборе сырья, нужно знать особенности и характеристики каждого из них.

Дом из кирпича
Кирпичный дом — вариант по прежнему самый популярный, т.к. ни у кого нет сомнений в его долговечности.

Преимущества:
- Высокая износостойкость
- Высокая шумоизоляция
- Хорошая теплоизоляция
- Широкие возможности для реализации проектов любой сложности.
Недостатки:
- Сложность укладки
- Тяжелый вес
- Потребность в прочном фундаменте
- Потребность в теплоизоляционном материале.

Дом из бруса
Дом квадратной планировки из бруса, несмотря на свои особенности обработки, по душе многим жителям России. Ведь он является образцом уюта и экологичности.

Преимущества:
- Невысокая стоимость относительно кирпичного дома
- Экологичность
- Более высокая теплопроводность
- Эстетическая привилегия без дополнительной отделки
- Долговечность.
