Из чего строить баню. Из какого дерева лучше строить баню?
- Из чего строить баню. Из какого дерева лучше строить баню?
- Из каких блоков лучше строить баню форум. #9 jaddd Предупредить
- Из чего строить баню дешевле. Из шлакоблока
- Баня. Разработка плана бани с учетом условий дачного участка
- Почему бани не строят из хвойных. Лучшее хвойное дерево для бани
- Из каких блоков лучше строить баню. Из какого блока лучше строить баню
Из чего строить баню. Из какого дерева лучше строить баню?
Каждой породе древесины присущи определенные качества, от которых зависят долговечность и прочность строений, микроклимат внутри бани. Чтобы разобраться, из какого дерева лучше построить баню, изучим его виды, плюсы и минусы.
Сосна
Наиболее распространенный в строительстве хвойный материал. Обладает высокой влагостойкостью, хорошими теплоизоляционными качествами и доступной ценой.
Смола — естественная защита от вредителей, плесени и грибка. Она же является и основным недостатком. При нагревании обильно выделятся в течение многих лет, что может доставлять забот.
Ель
Менее распространена, чем сосна. Обладает всеми положительными качествами хвойников. В разрезе практически не отличается от сосны.
Мягкий материал, склонен к растрескиванию, усадкам и деформации.
Кедр
Не боится температурных перепадов и влаги, не поражается вредителями, и микроорганизмами. Благодаря эфирным маслам обладает уникальным смолистым запахом.
К единственному недостатку кедра можно отнести его высокую стоимость.
Лиственница
Древесина красноватого цвета, не теряющая своей природной привлекательности долгое время. Прочная, влагостойкая и долговечная. Хорошо сохраняет тепло в помещении. Практически не подвержена гниению, поражению микроорганизмами и насекомыми. Под действием повышенной влажности становится только прочнее. В 2,5 раза дороже сосны.
Обладает большей плотностью и соответственно теплопроводностью. По этой причине малопригодна для возведения стен.
Осина
Распространенная порода, используемая для обшивки саун и парных. Не содержит смол, легко обрабатывается. Меньше других подвергается гниению и поражению насекомыми. Имеет доступную стоимость.
Дуб
Один из самых плотных, долговечных и прочных лиственных пиломатериалов. Отличается светло-кремовым цветом, приятной бархатистой текстурой.
Высокая цена делает дуб не слишком доступным. Твердая структура и большой удельный вес усложняет обработку.
Ольха
Имеет красноватый оттенок и легкий коньячный аромат. Идеально подходит для отделки парных. Практически не поддается усыханию и деформациям. Не впитывает влагу. Не слишком нагревается, что исключает ожоги при прикосновении. Славится антибактериальными и лечебными свойствами. Стойкая к перепадам температур и высокой влажности.
При распиловке бревен имеет малый выход качественных досок и следовательно высокую стоимость. Под действием высоких температур постепенно меняет первоначальный цвет.
Из каких блоков лучше строить баню форум. #9 jaddd Предупредить
Отправлено
Применение газосиликатных блоков по сути своей идентично применению утепленного изнутри сруба. И конструктив и последствия в целом очень и очень похожи. Так что строить баню из блоков можно. Но есть один очень важный нюанс. Должна быть отличнейшая пароизоляция. И дешевой баню из блоков сделать не получится. В отличии от остальных вариантов баня из блоков долговечна. Хотя и сруб при должном уходе может прослужить оооочень долго. Но тут вопрос про должный уход… С нашим менталитетом это не всегда реально. Сказано подновлять масляное покрытие раз в 2 года, значит надо подновлять, а не говорить - да ладно, и так пока класно выглядит!…
Если вопрос по бане подешевле, то самый лучший вариант, который мне встречался на этом форуме у Петра С. Фотоотчета не видел, но описание завораживает.
Вкратце каркас из дерева, дерево из тары, отходов ближайшей лесопилки и т.п. (Петр Дмитрич, если где приврал - поправьте). Тогда будет дешево. Если делать дешево из блоков все развалится. Блок требователен к фундаменту, пароизоляции, просушке, внешнему покрытию.
И к прочему. Блок имеет смысл использовать как теплоизолятор, только когда он на клей. Если блок положен на раствор, то тогда дешевле сделать кирпичную стенку с утеплением минеральной ватой.
внутри дерева (а по "крашенному" и р по поверхности) тоже конденсат может быть, но его промороз не разрушает дерево как кирпич и блоки..
нет конечно… разные блоки они по теплу много инерционнее дерева
оттого если баня не коммерческая (всегда постоянной температуры), то на блоках моментальненько появится конденсат… особенно если они за вагонку спрятаны. а если не появиться то значит он внутри блока, чутка за поверхностью…
Виан, ты конечно мне друг, но до истины ты не добрался. Ровно все те же последствия что ты описал - губительны и для сруба. Блок и сруб по своей природе не так уже и сильно отличаются. Да блок сильно теряет при напитывании влагой, но ведь сруб при напитывании влагой начинает гнить!!! И что-то никто не советует "не делайте бани из сруба!!! ОНИ ГНИЮЮЮЮТ!!!"
Это все только возможные последствия, которые обходятся конструктивом.
Конденсат в блоке не появится. Потому что если будет пароизоляция - то моментально он туду не попадет. И если она достаточно качественная - то попадет не в том количестве, чтобы влиять на что-либо. А если пароизоляции не будет, то в любом случае вагонка начнет впитывать воду раньше, чем появиться конденсат. И сгниет она тоже довольно шустро. С обратной стороны. При условии конечно что блоки не 50-100 мм толщины, а хотя бы 200.
Еще раз повторю - для дешевой бани блок не вариант. Если сделать конструктивно продуманно и качественно по исполнению - простоит дольше сруба.
Из чего строить баню дешевле. Из шлакоблока
Бюджетная баня своими руками возможна к постройке и с помощью шлакоблока. Это очень дешевый материал, так как изготавливаются из отходов производства, а в качестве связи используется цемент.

Плюсы:
- Цена. Можно сказать, что из шлакоблока возможно построить баню своими руками дешево. Этот материал продается большими партиями и стоит меньше кирпича. Особенно это полезно в том случае, если планируются большие сооружения.
- Размер. Стандартные параметры – 20х20х40 сантиметров. То есть строительство будет происходить быстрее и дешевле.
- Вес. Он легкий, даже если присажены тяжелые наполнители. Поэтому его легко перевозить и класть.
- Прочность.

Строительство бани своими руками экономически и технически обосновано, так как в обработанном виде он не уступает пенистому бетону и даже дереву. Но у него есть и минусы:
- Влагостойкость. Для бани обязательно нужно брать шлакоблок влагостойкий. Если есть только обычный – понадобится дополнительная облицовка битумной мастикой или другим составом.
- Дизайн. Неприятный серый цвет и рыхлая текстура не делает его привлекательным внешне. Поэтому лучше покрыть краской, штукатуркой, обложить деревянной вагонкой.
- Присадки. Так как даже по ГОСТу в него добавляется шлак, некоторые бренды добавляют туда канцерогенные отходы.

Из какого материала лучше строить баню, если сроки и бюджет сжаты? Только шлакоблок. В плане своих характеристик, удобства строительства (строить можно даже без опыта) и по скорости он однозначно выигрывает у других.
Баня. Разработка плана бани с учетом условий дачного участка
Чтобы создать идеальные условия для отдыха в бане, необходимо учесть некоторые нюансы, которые позволят избежать проблем при эксплуатации помещения. Желательно, чтобы зона строительства располагалась на суше с низким уровнем наличия грунтовых вод. Перед тем как приступить к разработке проекта, необходимо сразу исключить все участки, не соответствующие этому условию.

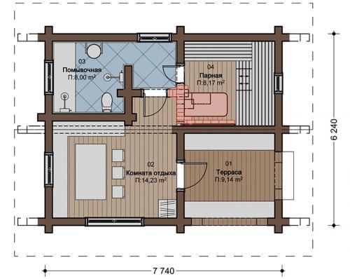
Проект сауны 5 х 7 метров с открытой террасой
Если на территории есть колодец, то расстояние между ним и баней должно быть не менее 5 м. Минимальное расстояние между парилкой и жилым домом — 8 м. Дальше от бани компостная яма и туалет расположены, тем лучше. Специалисты рекомендуют заходить с южной стороны. Зимой здесь образуется меньше сугробов, поэтому возможность перекрытия доступа к двери исключена. Лучше, если окна выходят на запад, что облегчит проникновение в комнату достаточного количества солнечного света.
Если на дачном участке есть водоем, то после постройки бани в 15-20 м от него можно использовать вместо бассейна. Кроме того, наличие реки или озера в непосредственной близости от объекта обеспечит систему водоснабжения.

Размеры проекта сауны 7,74 х 6,24 метра
Для небольших участков (3-6 соток) подходят проекты санузлов 3 на 3, фото таких построек в изобилии на сайтах строительных компаний. Даже в таких компактных постройках парная остается основным помещением. Для организации этого помещения следует выделить максимально возможный объем пространства — примерно 8 м². Этого достаточно, чтобы установить 2-3 грядки (полочки) и поставить печь.
Остальные комнаты могут быть включены в планировку санузла 3х4м и более (по желанию). Конструкцию можно использовать по прямому назначению даже при отсутствии бильярдной или санузла. Баня не может существовать без турецкой бани. По этой причине разделение внутреннего пространства на функциональные зоны во многом зависит от масштабов проекта.

Сауны рекомендуется строить на расстоянии не менее 8 м от жилого дома
Если вам нужны дополнительные удобства, вы можете включить небольшую душевую или ванну в дизайн своей ванны размером 3 на 4 метра. После турецкой бани здесь можно смыть грязь и остыть. Типичные проекты характеризуются наличием комнаты отдыха, которая будет обслуживаться в перерывах между парными сеансами. Для его организации потребуется 4,5 м².
Пригодятся и другие помещения, например, гардеробная или тамбур. Они достаточно компактны, чтобы вместить бревенчатую сауну 5 на 5 вместе с основными помещениями.
Обратите внимание: размер купальной зоны на одного человека составляет 2 м².

Почему бани не строят из хвойных. Лучшее хвойное дерево для бани
СОСНА
Срубы бань из сосны получили достаточно широкое распространение (особенно в последнее время) благодаря нескольким ее замечательным свойствам.

Сосновые бревна — популярный строительный материал для бани
Сосна обладает достаточно мягкой и легкой древесиной, удобной в обработке. Изготовление сруба для бани из сосны не вызывает затруднений даже для плотников с небольшим стажем.
Банный сруб из сосны мало подвержен деформации при полной усушке, бревна сруба почти не «ведет» и они не трескаются.
Существенным фактором выбора сосновых бревен для рубки сруба бани выступает их достаточно низкая их стоимость. Сосна является сегодня самым дешевым древесным строительным материалом.
Однако при всех этих замечательных качествах соснового сруба бани, он имеет и свои недостатки.
Первым минусом сосны можно считать ее слабую устойчивость к гниению во влажной среде, подверженность древесному грибку и древесным паразитам, со временем разрушающим структуру бревна.
Кроме того, поскольку сосна относится к хвойным породам деревьев, сосновые бревна сруба так или иначе выделяют некоторое количество сосновой смолы, особенно при их нагреве во время топки бани. Раскаленной смолой на стенах парной можно легко получить серьезные ожоги, или же просто испачкаться. Пары горячей смолы придают атмосфере бани чересчур сильный, даже удушливый аромат. Поэтому срубы из сосны можно использовать при строительстве бани только в случае дальнейшей внутренней обшивки деревом лиственных пород.
ЕЛЬ
Как и сосна, ель обладает достаточной легкостью и мягкостью древесины, так же легка в обработке. Кроме того, по сравнению с сосной, древесина которой со временем темнеет, еловые бревна характерны приятным бело-золотистым цветом, который сохраняется на протяжении длительного срока эксплуатации. Как и сосна, сруб из ели является экономичным вариантом строительства бани. Еловые бревна достаточно недорогие.
Но, как и ее «хвойная родственница», ель обладает все той же неприятной особенностью – наличием смолы в структуре древесины. Более того, еловая смола выделяется из сруба даже более интенсивно, чем сосновая. Поэтому без внутренней облицовки, как и в случае с сосной, тоже не обойтись.
ЛИСТВЕННИЦА
Лиственница, несмотря на свое название, тоже относится к группе хвойных пород деревьев, но от сосны и ели она отличается большей прочностью и долговечностью. Высыхая, бревна из лиственницы заметно затвердевают, приближаясь по твердости к древесине дуба.
Сруб из лиственницы простоит гораздо дольше срубов из ели и сосны, он меньше подвержен воздействию влаги и грибка, поскольку смола лиственницы содержит в своем составе природный антисептик. Кроме того, баня, построенная из лиственницы, оказывает лечебное и общеукрепляющее действие, предотвращая заболевания сердечно-сосудистой системы.
Если Вы хотите построить «баню на века», то лиственница может оказаться очень неплохим вариантом, правда стоимость бревен из лиственницы примерно в два раза дороже сосновых, но знатоки утверждают, что эта переплата того стоит.
Не стоит забывать и о необходимости внутренней отделки парилки, ведь лиственница буквально пропитана смолой, что, кстати говоря, существенно повышает ее огнестойкость.
КЕДР
Баня из кедра – это роскошь, далеко не всем доступная по карману. В настоящее время заготовки сибирского кедра существенно ограничены, значительная часть этого поистине царского дерева идет на экспорт, поэтому баня, построенная из кедра – творение элитарное.
Древесина кедра уникальна по своим свойствам. Благодаря волокнистой структуре кедровые бревна практически не дают усадку, не искривляются и не трескаются. Кедр намного превосходит другие хвойные породы по устойчивости к гниению, высоким температурам и влажной среде. Кроме того, сруб из кедра очень красив, его бревна отличает красивая структура и благородный оттенок.
В заключение можно упомянуть о ценных эфирных маслах, входящих в состав древесины кедра. Благодаря их испарениям кедровая баня обладает свойствами самой настоящей ароматерапии.
Вот почему кедровые срубы – отличный, хотя и достаточно дорогой вариант для строительства русской бани.
Из каких блоков лучше строить баню. Из какого блока лучше строить баню
При строительстве бани традиционно принято использовать как основной строительный материал дерево. Однако в последнее время значительное распространение получило применение различных видов блоков, обладающих преимуществами перед классическим методом строительства.
Ранее мы уже рассматривали, в данном случае мы подробно остановимся именно на выборе конкретного типа блоков. Для того, чтобы ответить на вопрос, из какого блока лучше строить баню, необходимо рассмотреть все возможные варианты применяемых блочных материалов.
Виды блоков
Достоинства применения блоков при строительстве
- Простота технологии. Возвести стены из блоков значительно проще, чем из какого-либо другого материала. Эти работы вполне по силам выполнить самостоятельно, без привлечения высококвалифицированных, следовательно, дорогих рабочих кадров.
- Дешевизна материала и технологии строительства. Изготовление блоков при помощи современных технологий позволяет добиться их высокого качества при относительно невысокой себестоимости. Кроме того, их характеристики, главным образом, небольшой вес, позволяют сберечь силы и средства на фундаменте, делая его облегченным.
Газобетонные блоки
Материал представляет собой разновидность ячеистого бетона. Производится из цемента и кварцевого песка с добавлением специальных пенообразователей. Блоки с требуемой повышенной прочностью дополнительно обрабатываются в автоклавах. Поэтому бывает два вида газобетона:
- объемной массой 0,3-0,5 т./куб. м. – может применяться для теплоизоляции;
- объемной массой 0,5-1,2 т./куб. м. (автоклавный) – применяется для кладки стен.

Для стен одноэтажной бани вполне достаточно газобетона марки D500 (0,5 т./куб. м.), причем блоки можно устанавливать на ребро, тогда толщина стены составляет примерно 20 см. Так как снаружи блоки обычно утепляются и отделываются, получившаяся конструкция будет отлично держать тепло и обладать требуемой несущей способностью.
Достоинства газобетона
- относительно малый вес;
- легкость обработки (сверлится обычной дрелью, режется ножовкой);
- негорючесть;
- со временем становится еще более прочным.
Недостатки
- достаточно высокая цена (по сравнению с другими блоками);
- требования к качеству материала (необходимость точного соблюдения технологии изготовления);
- гигроскопичность (снижается применением специальных добавок), приводящая к тому, что для укладки блоков необходимо использование специального клея. Кладка на раствор приведет к впитыванию блоками влаги и снижению теплоизоляционных свойств материала.
Цена за 1 куб. м. автоклавного газобетона – от 3200 руб.
Газосиликатные блоки

По технологии изготовления напоминает газобетон, но отличается от него составом связующего материала: для получения газосиликатных блоков используется известь (62% кварцевого песка и 24% извести), а для газобетона – цемент (до 60%). Газосиликат всегда белого цвета и обладает еще большей гигроскопичностью. Причем при насыщении влагой теряет прочностные характеристики, что может привести к разрушению материала. Поэтому его использование для строительства бани без дополнительной обработки или изолирования нерационально. Цена – от 3000 руб./куб.м.

Пенобетонные блоки
Еще один материал, относящийся к ячеистым бетонам. Производится из цемента, песка и воды с добавлением пены, создающейся в пеногенераторе. Технология изготовления проста, что допускает производство блоков в частных условиях. Это приводит к тому, что качество приобретаемого материала должно тщательно проверяться. В противном случае, конструкция из блоков быстро может прийти в негодность.

Достоинства пенобетона
- самая низкая стоимость по сравнению с другими блоками (кроме шлакоблоков) и, тем более, древесиной или кирпичом. Цена – от 2800 руб./куб.м.
Смотрите также: Баня из пеноблоков — Отзывы
Шлакоблоки
Производятся путем заливки раствором шлака, который представляет собой отходы от сгорания каких-либо материалов, например, угля. Стоимость шлакоблоков еще ниже, чем у блоков из пенобетона, однако, для получения качественного материала необходимо, чтобы шлак вылежался не менее года. В противном случае, возможно выделение опасных для здоровья человека веществ. При правильной подготовке шлака и соблюдении технологии производства блоков, шлакобетон является одним из лучших выборов для строительства бани, и уж точно самым дешевым. Цена за 1 куб. – от 1750 рублей.

Блоки из опилкобетона
Как следует из названия материала, в роли наполнителя выступают опилки.

Достоинства
- легко сверлить и разрезать;
- негорюч (благодаря изоляции опилок бетоном);
- неплохой показатель теплопроводности (в 2 раза превосходит кирпич);
- экологичность.
Недостатки
- гигроскопичность, которую можно снизить в 2 раза, если предварительно обработать опилки водоотталкивающим составом.
Цена за 1 куб.м. – от 2400 руб.

Источник: https://proremont-dom.ru/stati/iz-chego-luchshe-postroit-banyu-kak-proizvoditsya-montazh-sten

